Hallo Leute,
wir waren bei einem GU um uns ein Angebot für ein Einfamilienhaus einzuholen. Wir haben einen ersten, in meinen Augen sehr guten, Entwurf erhalten.
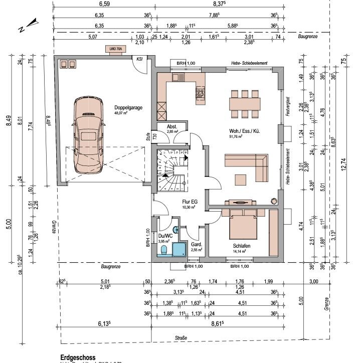
Mei Mann sieht hier noch Optimierungsbedarf. Ihm gefällt nicht, dass man die Küche nicht schließen kann. Unser Wunsch war eine mittels Schiebetür geschlossene Küche um Geräuschbelästigung zu vermeiden.. Hat wohl leider vom Grundriss her nicht gepasst. Das Wohnzimmer abzutrennen wäre eine Option, dies wäre dann aber relativ klein - zu klein für meinen Gatten
Im OG könnte das Elternschlafzimmer etwas größer sein.
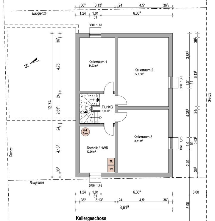
Gäbe es diesbezüglich von eurer Seite Ideen außer den Grundriss zu vergrößern oder das Büro in den Keller zu verfrachten?
Vielen Dank vorab
Bebauungsplan/Einschränkungen
Größe des Grundstücks - 594
Hang - nein
Grundflächenzahl 0,4
Geschossflächenzahl 0,5
Baufenster, Baulinie und -grenze
Randbebauung - ja
Anzahl Stellplatz
Geschossigkeit - 1,5
Dachform
Stilrichtung
Ausrichtung - First zur Straße
Maximale Höhen/Begrenzungen keine
weitere Vorgaben keine
Anforderungen der Bauherren
Stilrichtung, Dachform, Gebäudetyp - Satteldach
Keller, Geschosse - Keller + 1,5 Geschosse
Anzahl der Personen, Alter - 5 (41/40/10/8/3)
Raumbedarf im EG, OG - 4 Schlafzimmer im OG, Büro im EG, sonst das Übliche
Büro: Familiennutzung oder Homeoffice? - beides
Schlafgäste pro Jahr - keine
offene oder geschlossene Architektur -
konservativ oder moderne Bauweise - konservativ
offene Küche, Kochinsel - geschlossen, gerne Kücheninsel
Anzahl Essplätze - mind. 5
Kamin - nein
Musik/Stereowand - ja
Balkon, Dachterrasse - nein
Garage, Carport - Doppelgarage
Nutzgarten, Treibhaus - nein, Spielgarten
weitere Wünsche/Besonderheiten/Tagesablauf, gern auch Begründungen, warum dieses oder das nicht sein soll
- große geschlossene Garderobe, weil sonst immer Chaos herrscht
- Zugang Garage Wohnraum
Hausentwurf
Von wem stammt die Planung: - Architekt eines GU
Was gefällt besonders? Warum? - alle Wünsche wurde gut umgesetzt, ebenso wurde ein ebenerdiges wohnen für später eingeplant, gute Ausrichtung zur Himmelsrichtung
Was gefällt nicht? Warum? - Küche nicht schließbar = Geräuschkulisse im Wohnraum
Preisschätzung lt Architekt/Planer: 370000
Persönliches Preislimit fürs Haus, inkl Ausstattung:
favorisierte Heiztechnik: Wärmepumpe
Wenn Ihr verzichten müsst, auf welche Details/Ausbauten
-könnt Ihr verzichten:
-könnt Ihr nicht verzichten: Büro
Warum ist der Entwurf so geworden, wie er jetzt ist? ZB
Standardentwurf vom Planer? - Erst-Entwurf gemäß unserer Wünsche
Entsprechende/Welche Wünsche wurden vom Architekten umgesetzt? - Durchgang Garage - Wohnraum, Büro, große Garderobe, gleich große Kinderzimmer
Ein Gemisch aus vielen Beispielen aus div. Magazinen...
Was macht ihn in Euren Augen besonders gut oder schlecht? - in sich stimmiger Entwurf, wenig Flur, viel Raum auf kleinem Grundriss, sehr durchdacht.



wir waren bei einem GU um uns ein Angebot für ein Einfamilienhaus einzuholen. Wir haben einen ersten, in meinen Augen sehr guten, Entwurf erhalten.
Mei Mann sieht hier noch Optimierungsbedarf. Ihm gefällt nicht, dass man die Küche nicht schließen kann. Unser Wunsch war eine mittels Schiebetür geschlossene Küche um Geräuschbelästigung zu vermeiden.. Hat wohl leider vom Grundriss her nicht gepasst. Das Wohnzimmer abzutrennen wäre eine Option, dies wäre dann aber relativ klein - zu klein für meinen Gatten
Im OG könnte das Elternschlafzimmer etwas größer sein.
Gäbe es diesbezüglich von eurer Seite Ideen außer den Grundriss zu vergrößern oder das Büro in den Keller zu verfrachten?
Vielen Dank vorab
Bebauungsplan/Einschränkungen
Größe des Grundstücks - 594
Hang - nein
Grundflächenzahl 0,4
Geschossflächenzahl 0,5
Baufenster, Baulinie und -grenze
Randbebauung - ja
Anzahl Stellplatz
Geschossigkeit - 1,5
Dachform
Stilrichtung
Ausrichtung - First zur Straße
Maximale Höhen/Begrenzungen keine
weitere Vorgaben keine
Anforderungen der Bauherren
Stilrichtung, Dachform, Gebäudetyp - Satteldach
Keller, Geschosse - Keller + 1,5 Geschosse
Anzahl der Personen, Alter - 5 (41/40/10/8/3)
Raumbedarf im EG, OG - 4 Schlafzimmer im OG, Büro im EG, sonst das Übliche
Büro: Familiennutzung oder Homeoffice? - beides
Schlafgäste pro Jahr - keine
offene oder geschlossene Architektur -
konservativ oder moderne Bauweise - konservativ
offene Küche, Kochinsel - geschlossen, gerne Kücheninsel
Anzahl Essplätze - mind. 5
Kamin - nein
Musik/Stereowand - ja
Balkon, Dachterrasse - nein
Garage, Carport - Doppelgarage
Nutzgarten, Treibhaus - nein, Spielgarten
weitere Wünsche/Besonderheiten/Tagesablauf, gern auch Begründungen, warum dieses oder das nicht sein soll
- große geschlossene Garderobe, weil sonst immer Chaos herrscht
- Zugang Garage Wohnraum
Hausentwurf
Von wem stammt die Planung: - Architekt eines GU
Was gefällt besonders? Warum? - alle Wünsche wurde gut umgesetzt, ebenso wurde ein ebenerdiges wohnen für später eingeplant, gute Ausrichtung zur Himmelsrichtung
Was gefällt nicht? Warum? - Küche nicht schließbar = Geräuschkulisse im Wohnraum
Preisschätzung lt Architekt/Planer: 370000
Persönliches Preislimit fürs Haus, inkl Ausstattung:
favorisierte Heiztechnik: Wärmepumpe
Wenn Ihr verzichten müsst, auf welche Details/Ausbauten
-könnt Ihr verzichten:
-könnt Ihr nicht verzichten: Büro
Warum ist der Entwurf so geworden, wie er jetzt ist? ZB
Standardentwurf vom Planer? - Erst-Entwurf gemäß unserer Wünsche
Entsprechende/Welche Wünsche wurden vom Architekten umgesetzt? - Durchgang Garage - Wohnraum, Büro, große Garderobe, gleich große Kinderzimmer
Ein Gemisch aus vielen Beispielen aus div. Magazinen...
Was macht ihn in Euren Augen besonders gut oder schlecht? - in sich stimmiger Entwurf, wenig Flur, viel Raum auf kleinem Grundriss, sehr durchdacht.
Büro in den Keller? Das kommt doch stark auf die Nutzung an. Wenn ihr es regelmäßig als Homeoffice nutzt und am Besten noch einen Blick auf die Kinder haben wollt, würde ich es nicht in den Keller verbannen. Evlt. etwas kleiner und dem Platz dem Wohnzimmer zuschlagen
WC EG ich würde die Dusche entfernen. Die Garderobe ist doch recht beengt und im Bereich der Dusche kann ein Schrank nicht geöffnet werden.
Abstellraum durch die 2 Türen nicht wirklich viel Stellfläche. Den Abstellraum würde ich der Küche zuschlagen und dort ein paar Schränke mehr stellen.
Im Bad OG ein zweites Waschbecken und einen Wäscheabwurfschacht. Da kommt doch einiges zusammen bei 5 Personen.
WC EG ich würde die Dusche entfernen. Die Garderobe ist doch recht beengt und im Bereich der Dusche kann ein Schrank nicht geöffnet werden.
Abstellraum durch die 2 Türen nicht wirklich viel Stellfläche. Den Abstellraum würde ich der Küche zuschlagen und dort ein paar Schränke mehr stellen.
Im Bad OG ein zweites Waschbecken und einen Wäscheabwurfschacht. Da kommt doch einiges zusammen bei 5 Personen.
Wozu soll diese Schleuse gut sein? Mal gedanklich durchspielen, mit welchen Konsequenzen dieser Durchgang verbunden bzw welche Vor- und Nachteile der Durchgang hat.
Vorschlag: Von dieser Schleuse absehen und dort, wo Küche ist, das WZ hinverlegen. Die Küche dort, wo jetzt WZ ist, dann hat man auch den Spielgarten bei Heim- und Kocharbeit unter Kontrolle und ist mit der Küche nah an der Terrasse.
Vorschlag: Von dieser Schleuse absehen und dort, wo Küche ist, das WZ hinverlegen. Die Küche dort, wo jetzt WZ ist, dann hat man auch den Spielgarten bei Heim- und Kocharbeit unter Kontrolle und ist mit der Küche nah an der Terrasse.
rotihex schrieb:
sieht hier noch Optimierungsbedarf... hätte ich nicht schöner sagen können. Zeig´ mal die Ansichten, dann kann man ´mal ein bißchen tüfteln. Für das Fenster über der Treppe zu putzen, wollte ich nämlich nicht das Gerüst konstruieren müssen. Nur mal so als Beispiel für objektiven Murks. Geschmacklich gäbe es noch einiges mehr, die Eingangssituation zum Schlafzimmer finde ich nicht zufriedenstellend gelöst, das Bad sieht fantasielos "möbliert" aus.Aber zu vorher https://www.hausbau-forum.de/threads/grundrissoptimierung-siedlungshaus.25074/ ist das schon ein großer Sprung vorwärts.
https://www.instagram.com/11antgmxde/
https://www.linkedin.com/company/bauen-jetzt/
Schlafzimmer größer sehe ich kaum. 18m² ist jetzt auch nicht gerade wenig, oder? Was habt Ihr da noch vor?

Ansonsten schließe ich mich den Vorrednern an. Schleuse ist Mist und muss weg. Lieber überdachten Eingang von Garage aus. Dusche unten fragwürdig, selbst wenn man sie größer macht wie abgebildet. Garderobe besser gleich offen gestalten und fetten Schrank hin als dieses Gefruckel.
Ansonsten schließe ich mich den Vorrednern an. Schleuse ist Mist und muss weg. Lieber überdachten Eingang von Garage aus. Dusche unten fragwürdig, selbst wenn man sie größer macht wie abgebildet. Garderobe besser gleich offen gestalten und fetten Schrank hin als dieses Gefruckel.
Ähnliche Themen