Grundrissplanung Einfamilienhaus - Flachdach - 142 m²

4,20 Stern(e) 10 Votes
Zuletzt aktualisiert 19.12.2025
Sie befinden sich auf der Seite 6 der Diskussion zum Thema: Grundrissplanung Einfamilienhaus - Flachdach - 142 m²
>> Zum 1. Beitrag <<

S

-SCEPS-

Da fehlte mir ein wenig Euer Feedback. Für mich wär das ein Leben lang das Gefühl einer Behelfsküche wie in einer Ferienwohnung. Ihr sagt zwar, Ihr seid kein Partyservice, aber seid Ihr Euch der Raumgröße bewußt?
Das frag ich mich.
Wir haben z.Z. eine 6,5 m² große geschlossene Küche und mehr oder weniger alles auf einer 2,6 Meter breiten Zeile. Da kommen wir uns mal in die Quere, aber abgestochen haben wir uns noch nicht .
Wir werden den GU noch mal fragen, ob er ein vergleichbares Haus hat und wie die Küche dort gestellt wurde.

@kbt09 ist doch hier die Küchen-Expertin. Hast Du ne Idee für diese Küche?

Ihr geht für jedes Blatt Papier raus?
Natürlich nicht. Zeitungen kommen in das Zeitungskörbchen und werden immer wieder mal aussortiert. Im Küchenschrank mit den Abfalleimern könnte man auch einen für Papier berücksichtigen oder aber man stellt im Hauswirtschaftsraum ne Kiste hin.
Und was meinst: wie viel habt ihr nach dem Hausbau?
Ich hab gerade nachgezählt: wir haben 10. Beim Haus kommen vielleicht 5 dazu, wenn überhaupt ... einfach digitalisieren und man hat von überall Zugriff darauf .
Unsere 70er-Kisten passen zb nirgendwo rein.
Unsere 57er dagegen schon, .
Bei Dir hält der Büroschrank für mehr her, als er kann, der Dielenschrank ist gleich zu Anfang voll
Ich finde es auch gut, dass Du diesen Punkt ansprichst.
Wie sieht deine Alternative aus? 20 m² größer bauen?
Wir sind all unsere jetzigen Abstellflächen durchgegangen und kommen zum Ergebnis, dass wir mit den vorgesehen Flächen hinkommen. Mit dem schrank in der Diele planen wir hierbei noch nicht einmal.
Aber endlich ist hier mal einer, der mit Bepflanzung plant.
Also würdest du die Garage bis zum Terrassenende durchschieben?
Ich meinte natürlich beide Badezimmerfenster.
OK.

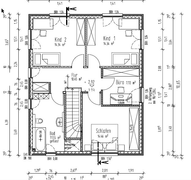
Ich möchte noch einmal auf folgende Punkte zu unserem Grundriss eingehen:
  • Was macht man mit dem Fenster in der Diele, wenn das Bad-Fenster auf der Ostseite nicht mehr bodentief ist? Bodentief sieht dann von außen auch nicht mehr so soll aus, oder?
  • In der Küche überlegen wir das bodentiefe Fenster 12,5 cm schmaler zu machen. 1,01 Meter sollte doch breit genug sein, oder?
  • Wie kann man es mit dem Fenster im Büro lösen, dass dieses mittig ist und dennoch die Außenansicht mit dem Küchen-Fenster aussieht? Oder ist es fürs Büro egal, ob das Fenster mittig ist oder nicht?
  • Im Schlafzimmer überlegen wir die Brüstungshöhe um 12,5 cm zu senken. Dann passt dort immer noch ein 1,2 Meter Rückenteil unter die Fensterbank und der Fenstergriff ist etwas tiefer.
  • Beim Schlafzimmer überlegen wir, ob wir die Wand mit Tür um 1 Meter nach planoben schieben, so dass wir die Wand auf der selben Höhe wie die vom Bad haben. Das Schlafzimmer würde hierdurch zwar nicht wirklich viel mehr Fläche gewinnen, aber die Tür würde nicht mehr in den Raum aufgehen, sondern könnte sich an die Wand vom Büro anschmiegen.
  • In der Diele könnte man auch statt des Schrankes gegenüber eine Nische bauen, in welche ein Einbauschrank passt. Würde vielleicht ein bisschen aufgeräumter aussehen. Wobei wir dann dort auch einen ca. 1,2 Meter breiten Schrank rein Bauen müssten. Der bisherige Grundriss mit dem Schrank stellt ja nur eine Option da.

Grundriss Obergeschoss: 2 Kinderzimmer, Schlafzimmer, Büro, Bad, Flur, Treppe.
 
kbt09

kbt09

Bei mir gäbe es die Küche an der Stelle nicht oder zumindest nicht in der Form. Gut gefällt mir Katjas Aufteilung aus Beitrag 20, insbesondere auch wg. dem Schlafzimmer etc. .. und grundsätzlich würde ich die Küche immer an der Terrasse positionieren. Gerade wieder gestern Abend gemerkt, nach dem Kino noch zum Absacker auf die Terrasse .. toll, dass die Küche gleich daneben ist und die Getränkeversorgung damit gut geklappt hat. Ich habe jetzt allerding keinen passenden Grundriss parat.

Fenster hinter dem Kopfteil von Betten mag ich auch nicht .
 
S

-SCEPS-

Gut gefällt mir Katjas Aufteilung aus Beitrag 20,
Wie schon geschrieben:
Der Grundriss ist nicht schlecht , wobei die Hauseingangsseite nicht so modern und einladend wirkt . ...
Wo hat man in diesem Grundriss mehr Abstellflächen? OK, die Küche hat nen guten Schrank mehr. Das Büro und der Hauswirtschaftsraum scheinen ähnlich groß zu sein und für unseren optionalen Schrank im Flur wäre kein Platz.
Uns gefällt unser Grundriss und zumindest ein paar von Euch finden den auch nicht ganz so schlecht .
Ein paar Punkte nehmen wir mit und vielleicht könnt Ihr uns ja bei meinen Punkten aus Beitrag 31 weiterhelfen?
  • Ergänzend hätte ich noch das Fenster in der Garderobe. Macht es eventuell Sinn dieses nicht bodentief zu machen, so dass man sich von der Straße bzw. vom Quartiersplatz nicht ganz so beobachtet fühlt, wenn man sich umzieht bzw. zum WC geht?
 
11ant

11ant

  • In der Küche überlegen wir das bodentiefe Fenster 12,5 cm schmaler zu machen. 1,01 Meter sollte doch breit genug sein, oder?
  • Wie kann man es mit dem Fenster im Büro lösen, dass dieses mittig ist und dennoch die Außenansicht mit dem Küchen-Fenster aussieht?
Ich würde beides so lassen: 113 Rohbaumaß ist besser, weil man dieses "Fenster" als Ausgang u.a. zum Schnittlauchholen nutzen wird; und das Bürofenster sollte in gerader Linie - nicht nur Achse - darüberliegen.
 
S

-SCEPS-

Danke für dein Feedback @11ant .

Wir haben heute noch einmal mit dem GU gesprochen. Die Küche 10 cm breiter zu machen wäre machbar (zulasten der Diele). Dann könnte man zumindest optisch die Schränke so gestalten, dass diese im 45/60/90 cm Raster passen.
 
S

-SCEPS-

Guten Abend zusammen,

wir haben mit dem GU noch einmal die Fenster (in einer 3D-Animation) besprochen und es war schon erstaunlich, wie es sich optisch auswirkt, wenn z.B. das Schlafzimmer- und WC-Fenster weiter nach außen (gleicher Abstand wie Bad und Hauswirtschaftsraum) gesetzt würden ... das Haus sieht auf einmal etwas breiter aus, obwohl es gleich breit bleibt.

Wir haben auch noch einmal überlegt, wie man das Schlafzimmer vielleicht doch noch anders gestalten und möblieren kann. Wir hatten auch eine Variante, bei welcher das Schlafzimmer-Fenster auf der Nordseite durch ein Fenster auf der West-Seite geändert wurde, aber das sah auf beiden Seiten sch... aus.

Das Büro würde nun etwas schmaler werden, wobei dort immer noch ein 250er Schrank reinpasst. Der Durchgang zwischen Schrank und Büro-Wand ist 89 cm. Der Fernseher würde dann wahrscheinlich an die Wand mit einer schwenkbaren Wandhalterung kommen.

Heraus kam diese Variante (wobei ich mit Photoshop das Fenster breiter gemacht habe als es im Entwurf ist):

Grundriss eines Hauses mit Treppe in der Mitte, Bad links, Schlafzimmer rechts, Garage oben.


Dann habe ich den Raum noch einmal gespiegelt und dann sieht es so aus:

Grundriss einer Wohnung: Treppe in der Mitte, Bad links, Schlafzimmer rechts.


Macht eine der beiden Varianten das Schlafzimmer aus eurer Sicht besser?

Alternativ wäre dann noch die ursprüngliche Variante, jedoch mit einem etwas breiterem Fenster:

Grundriss eines Hausabschnitts: Treppenhaus, Bad, Schlafen, Möbel, Maßenangaben.
 
Zuletzt aktualisiert 19.12.2025
Im Forum Grundrissplanung / Grundstücksplanung gibt es 2552 Themen mit insgesamt 88528 Beiträgen


Ähnliche Themen zu Grundrissplanung Einfamilienhaus - Flachdach - 142 m²
Nr.ErgebnisBeiträge
1Bungalow 135qm: Grundriss + Fenster - Seite 7104
2Grundriss unseres Bungalows - Seite 282
3Grundriss Stadtvilla mit Walmdach ca. 170 qm - Seite 561
4Grundriss Einfamilienhaus 175 m2 - Verbesserungsvorschläge? - Seite 425
5Anregungen zum Grundriss Einfamilienhaus ca. 175 qm, Satteldachhaus 167
6Eure Meinung zum Grundriss für das EG 28
7Meinungen zu Grundriss "Haus am Hang" erbeten - Seite 231
8Feedback zu Grundriss Einfamilienhaus erwünscht 18
9Kleinstmögliches Fenster für Lüftung Hauswirtschaftsraum 22
10Hauswirtschaftsraum Raum ohne Fenster - Lüftungsanlage ausreichend? 26
11Grundriss Schlafzimmer, Ankleide und Bad en Suite 36
12Grundriss Einfamilienhaus mit Doppelgarage und Terrasse - Seite 219
13Schuhe an der Terrasse; wohin damit? Wäre ein Schrank die Lösung? - Seite 228
14Eure Meinungen zu unserem Grundriss und Angebot - Seite 322
15Findet ihr den Grundriss unserer Stadtvilla so Ok? 46
16Meinung zu Grundriss - 2-geschossiges Einfamilienhaus - Seite 338
17Grundriss mit Garage auf Grundstück realisierbar? - Seite 429
18Grundriss 160m² Bungalow - Seite 546
19Grundriss - Eure Meinungen, Ideen und Vorschläge 31
20Grundriss-Planung Einfamilienhaus mit rund 150 m² - Seite 46581

Oben