Grundrissplanung Einfamilienhaus - Flachdach - 142 m²

4,20 Stern(e) 10 Votes
Zuletzt aktualisiert 25.11.2025
Sie befinden sich auf der Seite 8 der Diskussion zum Thema: Grundrissplanung Einfamilienhaus - Flachdach - 142 m²
>> Zum 1. Beitrag <<

kaho674

kaho674

Bei so kleinen Häusern will man ja möglichst jeden Fleck nutzen. Dieser Treppenaufgang ist im OG über dem Antritt reichlich ungenutzt. Ich frag mich, ob man hier die Treppe schräg abhängt (gibt auch eine schönere Optik, finde ich) und dann über dem Treppenantritt noch einen Wandschrank in Brüstungshöhe (ca. 90cm) einbaut.

Mal ne Skizze - ich hoffe, es wird klar:


Diagramm einer Treppe mit Stufen, Geländer und Sicherheitskennzeichnungen.



Grundriss eines Hauses mit Bad, Büro, Ankleide, Flur und zwei Wohnräume.

Hat das schon mal jemand versucht?
 
kbt09

kbt09



Ist schon kritisch mit der Treppe ... beim Raufgehen geht es gerade noch so, jedoch beim Runtergehen, da wippt man ja quasi immer leicht nach oben:

Schnitt A-A: Treppe mit Geländer, Mensch steigt, Maße an Stufen und Wand.


Hier hat die Stufe, auf die der Mensch gleich runtergehen will gerade gut 200 cm lichte Durchgangshöhe. Der Mensch, der aber von oben kommt, darf dann schon keine 180 cm mehr groß sein, wenn er ohne Kopfeinziehen da runtergehen will.

Deshalb würde ich Treppensituationen eigentlich immer ohne Überbauung der Antrittsfläche planen, Max. der ersten Stufe.
 
kaho674

kaho674

Wenn der Schrank aber erst in Brüstungshöhe anfängt, dann haben wir an der Stelle ja eine theoretische Raumhöhe von 3,85m in Deinem Beispiel. Das müsste doch gehen? Nur wie baut man es?


Innenraum mit grauen Wänden; Holzrahmentür mit Glasfenstern, dahinter roter Stuhl, Blick nach Gras.
 
S

-SCEPS-

Versuchs doch mal so:
Auch nicht schlecht, aber viel Flur und kein Platz für nen optionalen Schrank im Flur.
Ich glaub, weniger Flur geht nicht.
Licht im Flur müsste dann über Lichtkuppel kommen - ich liebe Flachdach.
Das stimmt, weniger Flur geht nicht .
Gut gelöst, aber jetzt kommt leider das Aber: wir möchten im Flur Tageslicht haben und eine Lichtkuppel finden wir beide nicht schön.
Ist schon kritisch mit der Treppe
Da stimme ich Dir zu, vor allem weil unser Schnitt in etwa (das Fenster im Schlafzimmer ist von der Höhe her nicht richtig) so ausschaut:

Schnitt durch zweigeschossiges Wohnhaus: Wohnen, Schlafen, Flur, Diele; Dach mit Kies und PV.


Viel Dank noch einmal @kaho674 für deine Mühe.

Wir werden uns heute noch einmal die Schlafzimmer-Grundrisse aus Beitrag 36 und 38 genauer ansehen und uns für einen entscheiden. Jeder hat seine Vor- und Nachteile ... mal schauen für welchen wir uns entscheiden .
 
kaho674

kaho674

Wir werden uns heute noch einmal die Schlafzimmer-Grundrisse aus Beitrag 36 und 38 genauer ansehen und uns für einen entscheiden. Jeder hat seine Vor- und Nachteile ... mal schauen für welchen wir uns entscheiden .
Schon festgelegt?

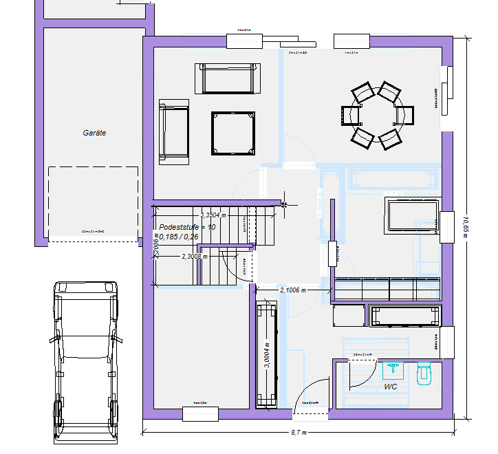
Falls Ihr nicht weiter kommt, hier noch mal eine echte Podesttreppe (keine Schrägen in den Stufen) zur Verwirrung. Den Rücksprung hab ich geopfert. Wenn Du mich fragst, ist der verschmerzbar.


Grundriss eines Hauses mit Garage links, Treppenhaus, Wohnzimmer, Essbereich, WC.


Grundriss eines Hauses: Flur in Mitte, Wohnzimmer, Esszimmer, Büro, Bad, Schlafzimmer; Auto davor.
 
Zuletzt aktualisiert 25.11.2025
Im Forum Grundrissplanung / Grundstücksplanung gibt es 2536 Themen mit insgesamt 88016 Beiträgen


Ähnliche Themen zu Grundrissplanung Einfamilienhaus - Flachdach - 142 m²
Nr.ErgebnisBeiträge
1Treppe im Flur, Grundriss steht eigentlich schon :o( - Seite 320
2Fenster Brüstungshöhe 130 im Schlafzimmer / Arbeitszimmer? - Seite 493
3Treppe im Wohnzimmer als Hype - Pro & Contra? - Seite 426
4Idee Schlafzimmer - Bett / Schrank Anordnung 32
5Grundrissfrage: Tausch gerader Treppe durch L-Treppe 31
6Meinung zu Grundriss versetztes Pultdach Einfamilienhaus - Versuch 2 - Seite 213
7Wohin mit der Treppe? Dachausbau Walmdachbungalow - Seite 219
8Hauseingang mit Flur oder ohne - Seite 215
9 2 Vollgeschosse, Durchgang Garage, Hauswirtschaftsraum unter Treppe 25
10Frage zu Grundriss, insbesondere Treppe 13
11Grundriss Elternbad und Durchgang zu Schlafzimmer 13
12Treppe Grundriss Planung, Auftritt und Unterzug 21
13Grundrissfrage, Garage, Treppe 33
14Teppich im Schlafzimmer trotz Fußbodenheizung? - Seite 336
15Einfamilienhaus ca. 150 qm Grundriss - Treppe wie planen? 65
16Verbindung Schlafzimmer / Ankleidezimmer / Bad 16
17Stadtvilla mit gerader Treppe, offene moderne Bauweise, 140m² 18
18Grundrissplanung Wohnzimmer und Flur zu schmal? - Seite 221
19Ausreichend Licht im Flur? Bitte um Meinung - Seite 212
20Grundrissplanung: Flur im EG breit genug? - Seite 257

Oben