Hallo ihr Lieben,
wir sind eine 4-Köpfige Familie (Kinder sind 4 und 13 Jahre) und versuchen nun schon seit 2017 eine Baugenehmigung auf dem Grundstück meiner Eltern, südlich von Potsdam, zu bekommen.
Problematisch ist dabei vor allem die Grundstückslage. Da das Wohnhaus meiner Eltern das letzte Haus in der Straße ist, endet auch der Innenbereich mit dem Wohnhaus und trotzt der vorhandenen 10 Hektar Land schrumpfen unsere Möglichkeiten dabei extrem zusammen. Nach einem langen Rechtsstreit, haben wir nun zumindest die Zusage für eine Baugenehmigung bekommen. Allerdings nur unter dem Kompromiss, den Neubau auf dem aktuellen Standort einer alten Scheune zu errichten (Stichwort Vorbildwirkung beim Bauen im Außenbereich) und dabei auch die Kubatur der Scheune einzuhalten. Wir müssen die Scheune also abreisen um im Anschluss unseren Neubau dort zu errichten und haben daher sehr starre Vorgaben was die Grundrissplanung angeht.
Einen amtlichen Lageplan haben wir erstellen lassen. Da unsere Ursprungsplanung (Winkelbungalow) aber im Prinzip das genaue Gegenteil von der jetzigen Planung war, wäre ich für Tipps bzgl. der Raumaufteilung und Ausrichtung der Räume sehr dankbar, ich finde leider keinen wirklich guten Ansatz. Die Scheune darf im Neubau auch nur so weit in der Achse verschoben werden, dass die Grundstücksflächen sich nicht überlappen. Laut dem Bauamt wird einer Dammstärke von 25 cm als Vergrößerung er Kubatur zugestimmt. Aber weitere Vergrößerung (Erker, veränderte Dachneigung... )wird es nicht geben. Das Eigenkapital beträgt rund 250.000 €.
Wir haben auch schon einen Planungstermin mit der Architektin (01.03.23) allerdings wäre es toll, wenn ich hier ein paar Ideen bekommen könnte, worauf wir im Vorfeld achten müssten. Vielleicht hat ja auch jemand von euch ähnliche Maße und Ideen, wie man einen schönen Grundriss gestalten kann.
Bebauungsplan/Einschränkungen
Größe des Grundstücks: Steht aktuell nicht fest. 2000- 300 m2 allerdings ist die bebaubare Fläche dabei vorgegeben.
Hang: Nein
Anforderungen der Bauherren
Stilrichtung, Dachform, Gebäudetyp: vorgegeben
Keller, Geschosse: kein Keller
Anzahl der Personen, Alter: 4, zwei Erwachsene und zwei Kinder (4 und 13 Jahre)
Raumbedarf im EG, OG: vorgegeben
Büro: Familiennutzung oder Homeoffice?: Ursprünglich mit Büro geplant (Mann ist Lehrer) allerdings gibt es dafür aktuell eine Alternative, die auch weitergenutzt werden kann. Büro wäre also schön aber nur wenn es nicht zu stark auf Lasten der anderen Räume geht.
Schlafgäste pro Jahr: nicht relevant
offene oder geschlossene Architektur: Wohnküche, sonst geschlossen
konservativ oder moderne Bauweise: wohl eher konservativ
offene Küche, Kochinsel: Wohnküche, Kochinsel wäre toll.
Anzahl Essplätze: 6
Kamin: Ja
Musik/Stereowand: nicht relevant
Balkon, Dachterrasse: nein
Garage, Carport: bereits vorhanden
Nutzgarten, Treibhaus: nicht relevant
weitere Wünsche/Besonderheiten/Tagesablauf, gern auch Begründungen, warum dieses oder das nicht sein soll

Vielen Dank
Sumi
wir sind eine 4-Köpfige Familie (Kinder sind 4 und 13 Jahre) und versuchen nun schon seit 2017 eine Baugenehmigung auf dem Grundstück meiner Eltern, südlich von Potsdam, zu bekommen.
Problematisch ist dabei vor allem die Grundstückslage. Da das Wohnhaus meiner Eltern das letzte Haus in der Straße ist, endet auch der Innenbereich mit dem Wohnhaus und trotzt der vorhandenen 10 Hektar Land schrumpfen unsere Möglichkeiten dabei extrem zusammen. Nach einem langen Rechtsstreit, haben wir nun zumindest die Zusage für eine Baugenehmigung bekommen. Allerdings nur unter dem Kompromiss, den Neubau auf dem aktuellen Standort einer alten Scheune zu errichten (Stichwort Vorbildwirkung beim Bauen im Außenbereich) und dabei auch die Kubatur der Scheune einzuhalten. Wir müssen die Scheune also abreisen um im Anschluss unseren Neubau dort zu errichten und haben daher sehr starre Vorgaben was die Grundrissplanung angeht.
Einen amtlichen Lageplan haben wir erstellen lassen. Da unsere Ursprungsplanung (Winkelbungalow) aber im Prinzip das genaue Gegenteil von der jetzigen Planung war, wäre ich für Tipps bzgl. der Raumaufteilung und Ausrichtung der Räume sehr dankbar, ich finde leider keinen wirklich guten Ansatz. Die Scheune darf im Neubau auch nur so weit in der Achse verschoben werden, dass die Grundstücksflächen sich nicht überlappen. Laut dem Bauamt wird einer Dammstärke von 25 cm als Vergrößerung er Kubatur zugestimmt. Aber weitere Vergrößerung (Erker, veränderte Dachneigung... )wird es nicht geben. Das Eigenkapital beträgt rund 250.000 €.
Wir haben auch schon einen Planungstermin mit der Architektin (01.03.23) allerdings wäre es toll, wenn ich hier ein paar Ideen bekommen könnte, worauf wir im Vorfeld achten müssten. Vielleicht hat ja auch jemand von euch ähnliche Maße und Ideen, wie man einen schönen Grundriss gestalten kann.
Bebauungsplan/Einschränkungen
Größe des Grundstücks: Steht aktuell nicht fest. 2000- 300 m2 allerdings ist die bebaubare Fläche dabei vorgegeben.
Hang: Nein
Anforderungen der Bauherren
Stilrichtung, Dachform, Gebäudetyp: vorgegeben
Keller, Geschosse: kein Keller
Anzahl der Personen, Alter: 4, zwei Erwachsene und zwei Kinder (4 und 13 Jahre)
Raumbedarf im EG, OG: vorgegeben
Büro: Familiennutzung oder Homeoffice?: Ursprünglich mit Büro geplant (Mann ist Lehrer) allerdings gibt es dafür aktuell eine Alternative, die auch weitergenutzt werden kann. Büro wäre also schön aber nur wenn es nicht zu stark auf Lasten der anderen Räume geht.
Schlafgäste pro Jahr: nicht relevant
offene oder geschlossene Architektur: Wohnküche, sonst geschlossen
konservativ oder moderne Bauweise: wohl eher konservativ
offene Küche, Kochinsel: Wohnküche, Kochinsel wäre toll.
Anzahl Essplätze: 6
Kamin: Ja
Musik/Stereowand: nicht relevant
Balkon, Dachterrasse: nein
Garage, Carport: bereits vorhanden
Nutzgarten, Treibhaus: nicht relevant
weitere Wünsche/Besonderheiten/Tagesablauf, gern auch Begründungen, warum dieses oder das nicht sein soll
Vielen Dank
Sumi
K a t j a schrieb:
Ähm, die Maße des Baufensters wären doch ganz nett, wegen den 6m Abstand...Das Haus muss genau dort hin, wo das alte steht. Es darf etwas wenig, ca. 25cm größer werden… usw.Sumi2188 schrieb:
Allerdings nur unter dem Kompromiss, den Neubau auf dem aktuellen Standort einer alten Scheune zu errichten (Stichwort Vorbildwirkung beim Bauen im Außenbereich) und dabei auch die Kubatur der Scheune einzuhalten.Sumi2188 schrieb:
und haben daher sehr starre Vorgaben was die Grundrissplanung angeht.Diese Vorgabe, dass das Haus genau dort in gleicher Kubatur gebaut werden darf/soll, hat nichts mit dem Grundriss zu tun.Sumi2188 schrieb:
Raumbedarf im EG, OG: vorgegeben Und vorgeben tut das Bauamt Dir auch nicht, wieviel Zimmerchen oder welche Räume Du brauchst,Letztendlich zählen Maße von allem, auch des Grundstücks. Wenn man 5 Jahre mit dem Bauamt verhandelt, könnte ich den Lageplan vom Grundstück mit allen Abmessungen und Abständen im Schlaf zeichnen.
Denn interessant wird es, ob man im Süden zb überhaupt Fenster setzen kann.
Und eine Zuwegung könnte man, also Du, auch schon einzeichnen - wo sie möglich ist.
Es gibt zwar etwas Licht ins Dunkle irgendwo mit dem Googleplan hier mitten in den 5 Seiten, aber so wirklich klar ist das alles nicht.
Und was ist mit der gekreuzten Fläche im Norden?
Das Netz ist voll mit Standardgrundrissen in kompakter Größe. @hanghaus2023 hat ja schon Danwood genannt, aber auch Google wird viel ausspucken, wenn man „Grundriss 120 qm“ eingibt. Auch DH können inspirieren, da die auf Optimum geplant wurden.
Holzständerbauweise verspricht dünnere Wände und dadurch mehr Grundfläche.
ypg schrieb:
Das Haus muss genau dort hin, wo das alte steht.Ich bin da nicht so sicher ob der TE tatsächlich die Grundfläche des jetzigen Gebäudes meinte. Eventuell ist der gesamte Teil seines Grundstück gemeint, welches als Wohnbaufläche gekennzeichnet ist. Das würde imho auch mehr Sinn machen, da man von der Gemeinde nicht erwarten würde, dass sie einem Neubau zustimmt, der sämtliche Abstandsregeln missachtet. Aber wer weiß...Ich sehe das wie @K a t j a .. denn ich hatte den TE auch so verstanden, dass eine Grundstücksteilung erfolgen soll, so dass dann eigentlich die Abstandsflächen greifen sollten. Idealerweise erfolgt die Grundstücksteilung dann auf der Linie, die 3 m vom Elternhaus entfernt ist.
Wow, vielen Dank für eure zahlreichen Antworten, ich versuch mal alles offene zu beantworten.
Nein, wir dürfen wirklich nur da bauen, wo die Scheune aktuell steht bzw. eben um die Längsachse 3 Meter in nördliche Richtung geschoben. Es gibt unterschiedliche Pläne. Der Flächennutzungsplan weißt z.B. die ganze Parzelle 1/4 als Wohnbaufläche aus, er ist aber auf Grund fehlender Satzung nicht gültig. Beim Bauamt wird sich darauf bezogen, dass auch diese Karte hier so nicht gültig ist, die ziehen die Außenbereichsgrenze mit 3 Meter Abstand um das Elternhaus (HN 14), demnach ist für sie die Scheune eh schon im Außenbereich.
Auch das haben wir durchdacht, leider finanziell nicht möglich. Das Elternhaus ist ebenfalls in keinem guten Bauzustand, die Sanierungskosten und Neubaukosten würden unser Budget sprengen. Zumal das Elternhaus auch eine ziemlich Wundertüte ist (Strohdecken etc).
Ja, auch kein Keller, kein Erker... nichts was von dem aktuellen Bau in der Form abweicht. Nein gibt keine wirklichen Höhenunterschiede.
K a t j a schrieb:
Ich vermute, dass das gelbe Euer Baufenster ist? Dort könnt Ihr frei verschieben? Oder ginge es etwa auch planrechts?
Wie sieht es denn mit den Leitungen aus? Könnt Ihr von den Eltern verlängern?
Könnt Ihr das Häuslein auch drehen oder ist die Firstrichtung festgelegt?
[ATTACH alt="baufenster.jpg"]78395[/ATTACH]
Was ist das für ein Gebäude, was da auf Deinem Land rum steht? Sieht aus, wie vom Nachbarn? Hat das Grundstück (Grundstück) da einen Knick? Wie hoch ist das?
Nein, wir dürfen wirklich nur da bauen, wo die Scheune aktuell steht bzw. eben um die Längsachse 3 Meter in nördliche Richtung geschoben. Es gibt unterschiedliche Pläne. Der Flächennutzungsplan weißt z.B. die ganze Parzelle 1/4 als Wohnbaufläche aus, er ist aber auf Grund fehlender Satzung nicht gültig. Beim Bauamt wird sich darauf bezogen, dass auch diese Karte hier so nicht gültig ist, die ziehen die Außenbereichsgrenze mit 3 Meter Abstand um das Elternhaus (HN 14), demnach ist für sie die Scheune eh schon im Außenbereich.
11ant schrieb:
Wäre es hier nicht sinnvoller, den Gesamtbedarf systemisch zu betrachten, und den Neubau eher als Austragshäusl für die Eltern zu planen ?
Auch das haben wir durchdacht, leider finanziell nicht möglich. Das Elternhaus ist ebenfalls in keinem guten Bauzustand, die Sanierungskosten und Neubaukosten würden unser Budget sprengen. Zumal das Elternhaus auch eine ziemlich Wundertüte ist (Strohdecken etc).
K a t j a schrieb:
Wurde der Keller auch untersagt oder wollt Ihr keinen? Bei kleinen Häusern entspannt der Keller oft.
Irgendwelche nennenswerte Höhenunterschiede auf dem Grundstück?
Ja, auch kein Keller, kein Erker... nichts was von dem aktuellen Bau in der Form abweicht. Nein gibt keine wirklichen Höhenunterschiede.
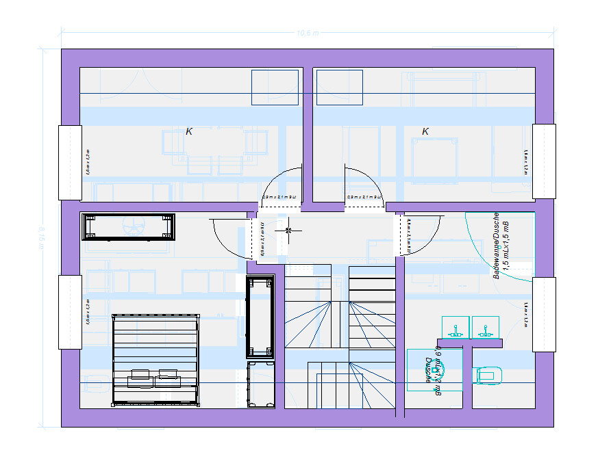
Okay, ich leg mal einen vor, damit wir ein Gefühl für die Sache kriegen.
Vorab zur Erinnerung: Das ist ein kleines Haus! Hier geht es um jeden Zentimeter und man sollte Kompromisse machen können. Ich habe mal folgende Annahmen gemacht: Bodenplatte versenkt bis auf 10cm über der Erde. Deckenhöhe 2,40m in jedem Geschoss. Decke + Fußbodenaufbau 30cm, Kniestock 145cm, 45° Dachneigung. Augebaute Spitze! Ich hoffe, ich hab mich nicht verrechnet. 😉
Ich wollte erst die Technik ins Dach legen, aber das geht m.W. nur bei Gasheizung sinnvoll. Gas ist out sagt Putin, also muss man hier die Kröte schlucken und über das WZ in den Technikraum gehen.
Vorteile:
- Die Dachspitze bringt zwar nur 2 kleine aber wichtige Räume. Büro und Wäscheraum finden da oben gerade so Platz.
- Wohnzimmer / Küche und Essplatz glänzen mit 46,7qm, was für die Hausgröße beachtlich ist.
- Geschlossene Bauweise sorgt für Ruhe im Haus.
Nachteile:
- Zugang Technikraum über WZ - lässt sich vielleicht ein wenig kaschieren, in dem man Rohre und Leitungen gut verkleidet und die große Technik um die Ecke mit einem regal davor verbirgt. Oder jemand hat noch eine Idee, wie sie doch nach oben kann.
- Deckenhöhe nur 2,40m Mindestmaß.
- Die Wände sind nicht übereinander so dass man wegen der Statik vermutlich nur mit Leichtbau arbeiten kann.
Planunten ist Osten, Terrasse im Westen:




Vorab zur Erinnerung: Das ist ein kleines Haus! Hier geht es um jeden Zentimeter und man sollte Kompromisse machen können. Ich habe mal folgende Annahmen gemacht: Bodenplatte versenkt bis auf 10cm über der Erde. Deckenhöhe 2,40m in jedem Geschoss. Decke + Fußbodenaufbau 30cm, Kniestock 145cm, 45° Dachneigung. Augebaute Spitze! Ich hoffe, ich hab mich nicht verrechnet. 😉
Ich wollte erst die Technik ins Dach legen, aber das geht m.W. nur bei Gasheizung sinnvoll. Gas ist out sagt Putin, also muss man hier die Kröte schlucken und über das WZ in den Technikraum gehen.
Vorteile:
- Die Dachspitze bringt zwar nur 2 kleine aber wichtige Räume. Büro und Wäscheraum finden da oben gerade so Platz.
- Wohnzimmer / Küche und Essplatz glänzen mit 46,7qm, was für die Hausgröße beachtlich ist.
- Geschlossene Bauweise sorgt für Ruhe im Haus.
Nachteile:
- Zugang Technikraum über WZ - lässt sich vielleicht ein wenig kaschieren, in dem man Rohre und Leitungen gut verkleidet und die große Technik um die Ecke mit einem regal davor verbirgt. Oder jemand hat noch eine Idee, wie sie doch nach oben kann.
- Deckenhöhe nur 2,40m Mindestmaß.
- Die Wände sind nicht übereinander so dass man wegen der Statik vermutlich nur mit Leichtbau arbeiten kann.
Planunten ist Osten, Terrasse im Westen:
Ähnliche Themen