ᐅ Erst-Entwurf vom Architekten - Optimierung
Erstellt am: 28.07.20 20:04
Hallo zusammen,
wir haben vor kurzen einen ersten Entwurf zu unserem Haus vom Architekten bekommen und würden uns über Optimierungen, Verbesserungsvorschläge und Meinungen hierzu sehr freuen. Insgesamt hat er unsere Vorstellungen schon ganz gut getroffen. Vorab aber erstmal der ausgefüllte Fragebogen.
Bebauungsplan/Einschränkungen
Größe des Grundstücks 856qm (schon vorhanden/gekauft)
Hang Ja, von Süd-West nach Nord-Ost steigend. Im Westen entspricht die Steigung in etwas 8m auf 30m Länge, im Osten 6m auf 30m Länge. Straße ist leider fallend.
Grundflächenzahl 0,35
Geschossflächenzahl 0,7
Baufenster, Baulinie und -grenze Im Bebauungsplan eingezeichnet (blaue Linie)
Randbebauung Abstandsflächen gemäß Art. 6 BayBO
Anzahl Stellplatz 2
Geschossigkeit 2
Dachform Keine Vorgaben/Einschränkungen
Stilrichtung Keine Vorgaben/Einschränkungen
Ausrichtung Straße Süd-West
Maximale Höhen/Begrenzungen Maximale Firsthöhe ab OK 9m
weitere Vorgaben
Anforderungen der Bauherren
Stilrichtung, Dachform, Gebäudetyp modern, Flachdach oder Pultdach
Keller, Geschosse kein Keller, zwei Vollgeschosse
Anzahl der Personen, Alter Aktuell 2; Mann 31, Frau 28. Kinder geplant
Raumbedarf im EG, OG Angedacht sind ca. 180qm Wohnfläche. Keine bestimmte Aufteilung nach UG/EG (praktikable Aufteilung)
Büro: Familiennutzung oder Homeoffice? Homeoffice
Schlafgäste pro Jahr nicht relevant
offene oder geschlossene Architektur offen
konservativ oder moderne Bauweise modern
offene Küche, Kochinsel offen, mit Kochinsel
Anzahl Essplätze 6-8
Kamin ja
Musik/Stereowand nicht nötig
Balkon, Dachterrasse große Terrasse
Garage, Carport Doppelgarage
Nutzgarten, Treibhaus nicht nötig
weitere Wünsche/Besonderheiten/Tagesablauf, gern auch Begründungen, warum dieses oder das nicht sein soll
Hausentwurf
Von wem stammt die Planung:
-Architekt
Was gefällt besonders? Warum? Offener Wohn-/Essbereich und offene Küche mit Kochinsel, große tlw. überdachte Terrasse (evtl. zu groß ), große bodentiefe Fenster Richtung Süden
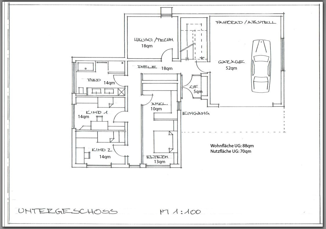
Was gefällt nicht? Warum? Etwas zu groß und Kosten zu hoch. Langer Flur im UG ("Schlauch"). Kinderzimmer evtl. etwas zu klein. WC im EG etwas klein.
Preisschätzung lt Architekt/Planer: 470.000€ ohne Baunebenkosten und Grundstück
Persönliches Preislimit fürs Haus, inkl Ausstattung: ca. 500.000-550.000€
favorisierte Heiztechnik: Luft-Wasser-Wärmepumpe mit Fußbodenheizung
Wenn Ihr verzichten müsst, auf welche Details/Ausbauten
-könnt Ihr verzichten: Von Flachdach auf Pultdach ändern -> ca. 10.000€ gespart? Kleinere Wohnfläche
-könnt Ihr nicht verzichten: Große Terrasse, offene und moderne Bauweise, Ankleide
Warum ist der Entwurf so geworden, wie er jetzt ist? ZB
Architekt hat Vorgaben auch anhand von Bildern gut umgesetzt. Moderne Bauweise, große Fenster, große Terrasse und der Überhang des EG über UG als Überdachung des Eingangsbereichs gefällt auch.
Was ist die wichtigste/grundlegende Frage zum Grundriss in 130 Zeichen zusammengefasst?
Vielen Dank vorab für die Unterstützung.
Einen schönen Abend noch.







wir haben vor kurzen einen ersten Entwurf zu unserem Haus vom Architekten bekommen und würden uns über Optimierungen, Verbesserungsvorschläge und Meinungen hierzu sehr freuen. Insgesamt hat er unsere Vorstellungen schon ganz gut getroffen. Vorab aber erstmal der ausgefüllte Fragebogen.
Bebauungsplan/Einschränkungen
Größe des Grundstücks 856qm (schon vorhanden/gekauft)
Hang Ja, von Süd-West nach Nord-Ost steigend. Im Westen entspricht die Steigung in etwas 8m auf 30m Länge, im Osten 6m auf 30m Länge. Straße ist leider fallend.
Grundflächenzahl 0,35
Geschossflächenzahl 0,7
Baufenster, Baulinie und -grenze Im Bebauungsplan eingezeichnet (blaue Linie)
Randbebauung Abstandsflächen gemäß Art. 6 BayBO
Anzahl Stellplatz 2
Geschossigkeit 2
Dachform Keine Vorgaben/Einschränkungen
Stilrichtung Keine Vorgaben/Einschränkungen
Ausrichtung Straße Süd-West
Maximale Höhen/Begrenzungen Maximale Firsthöhe ab OK 9m
weitere Vorgaben
Anforderungen der Bauherren
Stilrichtung, Dachform, Gebäudetyp modern, Flachdach oder Pultdach
Keller, Geschosse kein Keller, zwei Vollgeschosse
Anzahl der Personen, Alter Aktuell 2; Mann 31, Frau 28. Kinder geplant
Raumbedarf im EG, OG Angedacht sind ca. 180qm Wohnfläche. Keine bestimmte Aufteilung nach UG/EG (praktikable Aufteilung)
Büro: Familiennutzung oder Homeoffice? Homeoffice
Schlafgäste pro Jahr nicht relevant
offene oder geschlossene Architektur offen
konservativ oder moderne Bauweise modern
offene Küche, Kochinsel offen, mit Kochinsel
Anzahl Essplätze 6-8
Kamin ja
Musik/Stereowand nicht nötig
Balkon, Dachterrasse große Terrasse
Garage, Carport Doppelgarage
Nutzgarten, Treibhaus nicht nötig
weitere Wünsche/Besonderheiten/Tagesablauf, gern auch Begründungen, warum dieses oder das nicht sein soll
Hausentwurf
Von wem stammt die Planung:
-Architekt
Was gefällt besonders? Warum? Offener Wohn-/Essbereich und offene Küche mit Kochinsel, große tlw. überdachte Terrasse (evtl. zu groß ), große bodentiefe Fenster Richtung Süden
Was gefällt nicht? Warum? Etwas zu groß und Kosten zu hoch. Langer Flur im UG ("Schlauch"). Kinderzimmer evtl. etwas zu klein. WC im EG etwas klein.
Preisschätzung lt Architekt
Persönliches Preislimit fürs Haus, inkl Ausstattung: ca. 500.000-550.000€
favorisierte Heiztechnik: Luft-Wasser-Wärmepumpe mit Fußbodenheizung
Wenn Ihr verzichten müsst, auf welche Details/Ausbauten
-könnt Ihr verzichten: Von Flachdach auf Pultdach ändern -> ca. 10.000€ gespart? Kleinere Wohnfläche
-könnt Ihr nicht verzichten: Große Terrasse, offene und moderne Bauweise, Ankleide
Warum ist der Entwurf so geworden, wie er jetzt ist? ZB
Architekt hat Vorgaben auch anhand von Bildern gut umgesetzt. Moderne Bauweise, große Fenster, große Terrasse und der Überhang des EG über UG als Überdachung des Eingangsbereichs gefällt auch.
Was ist die wichtigste/grundlegende Frage zum Grundriss in 130 Zeichen zusammengefasst?
- Wie kann man den Grundriss am besten etwas verkleinern. Architekt meint nur etwas an der Front im EG um Proportionen nicht zu sehr zu ändern.
- Außerdem überlegen wir das Schlafzimmer mit dem Büro zu wechseln und die Kinderzimmer im UG zu lassen, um später Ruhe vor den partywüdigen Teenies zu haben Oder das Schlafzimmer und ein weiteres Zimmer in den EG zu legen, um am Anfang die Kinder auf dem gleichen Stockwerk bei uns zu haben und später dann mit dem Büro zu wechseln. Oder es wie es ist zu belassen und später evtl. das Schlafzimmer mit dem Büro zu wechseln.
- Hat jemand Erfahrung mit Terrassen über Wohnraum? Sind diese dicht? Überlegen die Terrasse etwas über das EG überlappen zu lassen als Dach oder ist es dann zu dunkel?
- Gibt es Vorschläge den Flur im UG zu ändern?Schön wäre es wenn man am Ende des Flurs zur Seite raus kann.
- Sonstige allgemeine Optimierungsvorschläge? Was findet ihr schlecht/würdet anders machen?
Vielen Dank vorab für die Unterstützung.
Einen schönen Abend noch.
P
pagoni202028.07.20 21:15Ich denke auch, dass UG besser geht und mit weniger als 18qm Flur.
Zu Deiner Frage, Terrasse über Wohnung gibt keinerlei Problem, sofern ordentlich augeführt. Hatte es 30 Jahr, Null Problem.
70qm extra Terrasse sind wohl nur ein Vorschlag, das braucht i.d.R. Keiner, da ja noch 16qm überdacht da sind.
Übergang Essen/Wohnen wirkt nicht ganz so flüssig aber alls das sind ja nur Details; ich denke, das wird ein schönes Haus, sofern Kosten etc. passen. Esstisch könnte passend zum Fenster stehen und nicht so schräg daneben-
Den direktehn Zugang zu Garage sehe ich zwar immer aber ich glaube, dass ich den nicht machen würde insbes. wg. Geruch, Staub etc. und der Hauseingang ja direkt daneben ist.
So aber schick.
Zu Deiner Frage, Terrasse über Wohnung gibt keinerlei Problem, sofern ordentlich augeführt. Hatte es 30 Jahr, Null Problem.
70qm extra Terrasse sind wohl nur ein Vorschlag, das braucht i.d.R. Keiner, da ja noch 16qm überdacht da sind.
Übergang Essen/Wohnen wirkt nicht ganz so flüssig aber alls das sind ja nur Details; ich denke, das wird ein schönes Haus, sofern Kosten etc. passen. Esstisch könnte passend zum Fenster stehen und nicht so schräg daneben-
Den direktehn Zugang zu Garage sehe ich zwar immer aber ich glaube, dass ich den nicht machen würde insbes. wg. Geruch, Staub etc. und der Hauseingang ja direkt daneben ist.
So aber schick.
Habt ihr noch ein Budget für die Außenanlage?
Das Haus sieht gut aus. Hat allerdings einige Kostentreiber
ist die Statik schon berechnet?
Das Budget ist sehr knapp. Erdarbeiten sind Wundertüten.
Der Flur ist sehr groß. Allerdings ist es schwierig eine Wand mit Garage, eine ohne Fenster. Das engt ein. Wir hatten unser UG deswegen auch zigmal hin und her geschoben. Der Flur ohne Fenster wird dunkel.
Die Speis ist zu klein für einen Gefrierschrank
Das Haus sieht gut aus. Hat allerdings einige Kostentreiber
ist die Statik schon berechnet?
Das Budget ist sehr knapp. Erdarbeiten sind Wundertüten.
Der Flur ist sehr groß. Allerdings ist es schwierig eine Wand mit Garage, eine ohne Fenster. Das engt ein. Wir hatten unser UG deswegen auch zigmal hin und her geschoben. Der Flur ohne Fenster wird dunkel.
Die Speis ist zu klein für einen Gefrierschrank
H
hampshire29.07.20 00:26Ich finde den Entwurf gelungen. Der lange Flur hat Charakter. Man kann ihn kürzen indem man das letzte Zimmer vergrößert und den Eingang vor Kopf setzt. Mit Fenster oder gar "Nebeneingang" ist das natürlich viel schöner. Insgesamt ist das Haus ausgezeichnet gut strukturiert. Große Gemeinschaftsfläche und kleine Rückzugsräume kann ein Lebenskonzept sein - da kenne ich die Vorgaben nicht. Ich kann mir das im Privatbereich ausgesprochen gemütlich vorstellen.
Schwer eine Änderung vorzuschlagen, denn der Architekt hat gute Arbeit geleistet und etwas Stimmiges abgeliefert.
Geht den Kosten mal genauer auf den Grund. Etwas Reserve solltet ihr schon haben.
Schwer eine Änderung vorzuschlagen, denn der Architekt hat gute Arbeit geleistet und etwas Stimmiges abgeliefert.
Geht den Kosten mal genauer auf den Grund. Etwas Reserve solltet ihr schon haben.
haydee schrieb:Den hätte ich aufgrund der Wärmeentwicklung auch ungern in der Speis.
Die Speis ist zu klein für einen Gefrierschrank
Ähnliche Themen