W
Mein Konto
Hausbau - Ratgeber
Bauherrenhilfe
- Bauherrenhilfe vor Vertragsabschluss
-- Warum einen unabhängigen Baubetreuer?
-- Vertragsgrundlagen
-- Bausumme
-- Zahlungsplan zur Kostenkontrolle
-- Pflichten des Bauherren vor Vertragsabschluss
-- Unterlagen beim Hausbau vor Vertragsabschluss
- Bauherrenhilfe nach Vertragsabschluss
-- Bauantrag bei Behörden
-- Bau-Genehmigungsverfahren bei Baubehörden
-- Bauspezifische Versicherungen
-- Bauzeitenplan
-- Baubeginn - die Letzten Pflichten der Bauherrschaft
- Bauherrenhilfe während der Bauzeit
- Gewährleistungsansprüche
- Bauabnahme
Baufinanzierung
- Baufinanzierung - Allgemeine Fragen
- Kreditarten
- Kredit-Konditionen
- Bausparen
- Staatliche Förderungen
- Verkehrswert
- Haushaltsrechnung und Bonität
Hausbau Planung
- Haustypen
- Hausbau Vorbereitungsarbeiten
- Das Baugrundstück
- Baugrund beim Hausbau
- Baurecht
- Gebäudeschutz
- Erdarbeiten und Wasserhaltung
- Stützmauern
- Einfriedung
- Untergeschoss
- Kanalisation
- Tragende Elemente
- Nichttragende Innenwände
- Fundation / Fundament
- Deckenkonstruktionen
- Dächer
- Kaminanlagen
- Treppen Rampen Leitern
- Dachbeläge und Spengler
- Fenster
- Sonnen und Wetterschutz
- Aussenputze
- Einbauten, Küchen, Türen
- Bodenbeläge und Unterlagsböden
- Parkett
- Gips, Wand, Decke
Haustechnik und Energie
- Heiztechnik
- Lüftung und Klimatechnik
- Sanitärtechnik
- Elektrotechnik
- Erneuerbare Energie
Whirlpools / Jacuzzi
Hausbau Magazin
- Baufinanzierung trotz Krise?
- Das Blockhaus
- Moderne Dämmstoffe im Vergleich
- Erker Vor- und Nachteile
- Glasflächen beim Hausbau
- Günstig ein Haus Bauen
- Mediterraner Hausbaustil
- Mehrgenerationenhaus
- Moderne Architektur
- Gartengestaltung leicht gemacht
- Traditioneller Ziegelbau
- Villa als höchster Traum
- Im Eigenheim Ruhestand geniessen
- Altbau sanieren
- Kauf einer Holzgarage
- Immobilienmakler
- Arbeitshandschuhe für den Winter
- Zuhause verschönern
- Outdoor-Plissees
- Schlafzimmer planen
- Terrassenüberdachung
- Wohngebäudeversicherung
- Zaunarten und Eigenschaften
- Hauseingang gestalten
- Der perfekte Grundriss
- Sparsamer heizen im Altbau
- Einfamilienhaus smart finanzieren
- Planung einer PV-Anlage
- Neues Haus
- Immobilienfinanzierung
- Installation einer Photovoltaikanlage
- Asbest erkennen und entfernen
- Sauna im Fokus - Wellness zuhause
- Erfolgreich vermieten
- Die perfekte Winterbekleidung
- Das Niedrigenergiehaus
- Der April und seine Stürme
- Architektonische Vielfalt
- Ökologisch und nachhaltig bauen
- Das perfekte Schlafzimmer
- Nachhaltige Energieversorgung
- Zukunftsorientiert bauen
- Nachhaltigkeit beim Hausbau
- Tiny Houses
- Wärmepumpen als nachhaltige Heizvariante
- Maßgeschneiderten Kleiderschrank
- Der richtige Baukredit
- Ratgeber für erfolgreichen Hausbau
- Haus als Altersvorsorge
Do-it-yourself Anleitungen
- Verlegeanleitung für Bodenbeläge und Parkett
- Bodenbeläge und Parkett reinigen und pflegen
- Malerarbeiten am Haus
- Garten Tipps
- Umzug und Reinigung

ᐅ Grundrisskritik: Einfamilienhaus mit 3 Kinderzimmern


Erstellt am: 29.10.20 08:47

DasWirdNix29.10.20 08:47
Hallo zusammen,
Wir sind in unserer Grundrissplanung recht weit, sodass ich mich nun traue ihn den Profis „zum Frass vor zu werfen“

Ich bedanke mich im Voraus für eure Tipps und Hinweise!

Bebauungsplan/Einschränkungen
Größe des Grundstücks: 843qm
Hang: nein
Grundflächenzahl
Geschossflächenzahl
Baufenster, Baulinie und -grenze
Randbebauung
Anzahl Stellplatz: 6
Geschossigkeit 2
Dachform Satteldach
Stilrichtung modern
Ausrichtung Nied/Süd
Maximale Höhen/Begrenzungen 18m
weitere Vorgaben keine Erdsonde, 3m Grenzabstand

Anforderungen der Bauherren
Stilrichtung, Dachform, Gebäudetyp: Satteldach, min 23 Grad
Keller, Geschosse: ja, 2 Geschosse
Anzahl der Personen, Alter: 5 (> 35, > 35, 13, 9, 2)
Raumbedarf im EG, OG: Gästebad, Büro, Küche, Wohnzimmer, Essbereich, Hauswirtschaft
Büro: Familiennutzung oder Homeoffice? Homeoffice und Gästezimmer
Schlafgäste pro Jahr:
offene oder geschlossene Architektur: offen
konservativ oder moderne Bauweise: modern
offene Küche, Kochinsel: ja
Anzahl Essplätze: 1
Kamin: ja
Musik/Stereowand nein
Balkon, Dachterrasse: evtl später auf Vordach/Garage
Garage, Carport: ja
Nutzgarten, Treibhaus: Hochbeete
weitere Wünsche/Besonderheiten/Tagesablauf, gern auch Begründungen, warum dieses oder das nicht sein soll

Hausentwurf
Von wem stammt die Planung: Kombination DIY und Architekt
Was gefällt besonders? Warum? grosse Kinderzimmer, Ausrichtung zum Garten
Was gefällt nicht? Warum? Küche nicht sehr gross, Essbereich an der Grenze zu eng, beides aber nicht dramatisch; kein Luftraum, Treppe nicht ideal (gerade oder mit Podest wäre besser aber schwierig); Fassade nach Norden (Strasse) ist nicht sehr stimmig aktuell
Preisschätzung lt Architekt/Planer: n/a
Persönliches Preislimit fürs Haus, inkl Ausstattung: n/a
favorisierte Heiztechnik: Ringgrabenkollekto, alternativ Luft-Wasser-Wärmepumpe (Grundwasserschutzgebiet)

Wenn Ihr verzichten müsst, auf welche Details/Ausbauten
-könnt Ihr verzichten: Garage könnte etwas schmaler werden
-könnt Ihr nicht verzichten: Kinderzimmer

Warum ist der Entwurf so geworden, wie er jetzt ist? ZB
Standardentwurf vom Planer? Grundüberlegungen bzgl. Ausrichtung zum Garten, Gestaltung der Kinderzimmer und Erfahrung mit offenem Wohnen in unserer heutigen Wohnung
Entsprechende/Welche Wünsche wurden vom Architekten umgesetzt? Alles was möglich war
Was macht ihn in Euren Augen besonders gut oder schlecht? Ökonomische Reduzierung der Laufwege, grosse Kinderzimmer

Was ist die wichtigste/grundlegende Frage zum Grundriss in 130 Zeichen zusammengefasst?
Übersehen wir ein wichtiges Detail in der Planung?


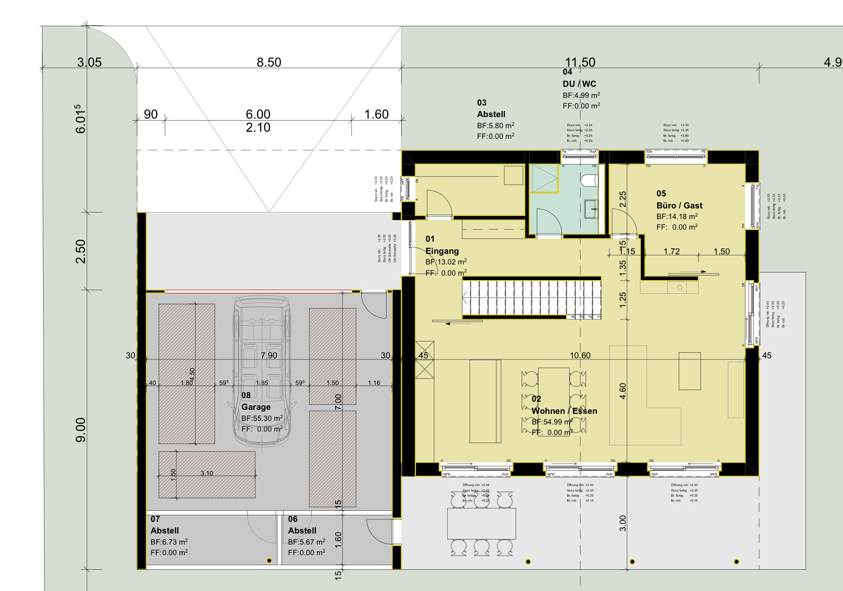
Grundriss eines Hauses: Eingangsbereich, Küche, Wohnen/Essen, Büro, Abstellräume, Garage.

Grundriss einer Wohnung mit Flur, 5 Zimmern, Bad/WC und Dusche/WC, Türen markiert
Osnabruecker29.10.20 09:18
Bei der Größe vermisse ich etwas mehr Haustechnik/Stauraumfläche.

Waschmaschine und Trockner sind auf einem Stellplatz eingezeichnet, im Neubau würde ich mir dort mehr Platz gönnen. In dem Raum kann man sich ja nicht mit einem Wäschekorb umdrehen wenn dort alle Zähler und Staubsauger etc. Untergebracht sind.

Da ihr von euch ja bereits 5 Personen seid würde ich den Essbereich einmal maßstabsgetreu mit Möbeln versehen um zu gucken ob euch der Platz reicht. Ggf mit größerem Tisch planen?

Welche Länge hat euer Kleiderschrank jetzt? Allzubreit ist die geplante Wand nicht.

Das arme Kind, das 20 m2 aufräumen muss
DasWirdNix29.10.20 09:25
Osnabruecker schrieb:

Bei der Größe vermisse ich etwas mehr Haustechnik/Stauraumfläche.
Wir haben noch einen Keller für die Haustechnik und Staufläche. Den Grundriss hänge ich noch an, ist aber nix besonderes.
Osnabruecker schrieb:

Waschmaschine und Trockner sind auf einem Stellplatz eingezeichnet, im Neubau würde ich mir dort mehr Platz gönnen. In dem Raum kann man sich ja nicht mit einem Wäschekorb umdrehen wenn dort alle Zähler und Staubsauger etc. Untergebracht sind.
In den Raum kommen Regale, Akkusauger, Gefrierschrank und Waschmaschinen/Trocknerturm. Meinst du der ist jetzt zu klein, um sich mit Wäschekorb umzudrehen? Hm, ich weiss aber nicht wo ich den Platz noch hernehmen sollte. Sonst wird das Büro zu klein.
Osnabruecker schrieb:

Da ihr von euch ja bereits 5 Personen seid würde ich den Essbereich einmal maßstabsgetreu mit Möbeln versehen um zu gucken ob euch der Platz reicht. Ggf mit größerem Tisch planen?
Heute haben wir die gleiche Fläche in der Wohnung, genau so angeordnet. Das ist nicht sehr grosszügig aber geht gerade so. Schmaler dürfte es nicht sein.
Osnabruecker schrieb:

Welche Länge hat euer Kleiderschrank jetzt? Allzubreit ist die geplante Wand nicht.
Der ist aktuell 2.5m lang, 2x1m plus 1x0.5m.
Osnabruecker schrieb:

Das arme Kind, das 20 m2 aufräumen muss
Unser ältester kriegt das Zimmer und er ist sehr ordentlich und strukturiert. Bei meiner Tochter auf der Westseite habe ich da mehr Sorgen

Danke für deine Kommentare!
DasWirdNix29.10.20 09:32
Grundriss vom Keller, aber nix besonderes:

Grundriss eines Gebäudeteils mit Treppenhaus, Räumen Technik, Disponibel und zwei Kellerräumen.
Nice-Nofret29.10.20 09:38
Mir gefällt der Grundriss gut, wobei mir die Küche zu wenig Platz böte; da wird wohl einiges an Küchenkram im Keller landen. Fragt sich auch, ob man Büro & Gast nicht gleich im Disponibel einplanen möchte.

Wenns mein Haus wäre, würde ich Küche mit Wohnen tauschen um mehr Stauraum und Arbeitsfläche in der Küche zu bekommen.
DasWirdNix29.10.20 09:43
Nice-Nofret schrieb:

Mir gefällt der Grundriss gut, wobei mir die Küche zu wenig Platz böte; da wird wohl einiges an Küchenkram im Keller landen. Fragt sich auch, ob man Büro & Gast nicht gleich im Disponibel einplanen möchte.
Wie meinst du das? Einen grpssen Raum für alles?
Nice-Nofret schrieb:

Wenns mein Haus wäre, würde ich Küche mit Wohnen tauschen um mehr Stauraum und Arbeitsfläche in der Küche zu bekommen.
Das ist auch der Wunsch meiner Frau, allerdings sehe ich ein Problem mit der heutigen Anordnung der Treppe. Die Wohnzimmerwand wäre dann ziemlich kurz/schmal, was mit dem Kamin zusammen dann nicht mehr passt. Wenn wir die Küche wieder rüber nehmen würden, müssten wir oben wieder einiges drehen und ändern.

Unsere Küche ist heute ziemlich genau so gross wie hier auf dem Plan. Das reicht eigentlich. Grosse Dinge wie Fondue, Raclette oder selten genutztes Gerät würden wir im Disponibel unterbringen. Der ist ja nicht weit.

Mein Gedanke war: Im Wohnzimmer hat man entweder Leselicht am Abend oder der Fernseher läuft. Dadurch ist es hell oder man hat Stimmungslicht. Heute ist es bei uns genau umgekehrt und meine Frau hat fast immer Licht über dem Esstisch an, weil es zum arbeiten zu dunkel ist. Daher tagsüber und morgens lieber einen hellen Essbereich und ein "dunkles" Wohnzimmer.
Ich hätte es auch gerne gedreht (Wasseranschlüsse näher an der Heizung im Keller, kürzere Wege vom Hauseingang/Auto in die Küche). Aber ich kriege es nicht so hin, dass es wirklich passt.
küchekelleressbereichkinderzimmerwohnzimmergaragegrundrissstellplatzdachformsatteldach