ᐅ Grundrissideen EG Doppelhaushälfte
Erstellt am: 23.05.22 18:05
T
Thunderbolz23.05.22 18:05Hallo zusammen,
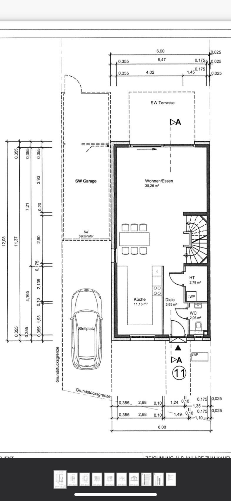
ich suche nach Ideen zur optimalen Raumnutzung des EG unserer im Bau befindlichen Doppelhaushälfte.
Auf dem Grundrissen sind die Standardvarianten zu sehen. Wir würden gerne den Flur schließen um einen Windfang zu erhalten. Es ist nicht ganz leicht, da die Treppe und die Tür vom Heizungsraum ungünstig positioniert sind. Die Tür vom Heizungsraum kann nur nach außen öffnend eingebaut werden.
Die Wand zwischen Treppe und Wohnzimmer möchten wir vielleicht verlängern um dort eine TV Ecke zu erstellen. Wir wissen nicht ob es uns dann zu viel Licht nimmt.
Das Haus hat eine Ost West Ausrichtung und Innenmaaße von 5,47m x 11,37m.
Über Ideen würde ich mich freuen!

ich suche nach Ideen zur optimalen Raumnutzung des EG unserer im Bau befindlichen Doppelhaushälfte.
Auf dem Grundrissen sind die Standardvarianten zu sehen. Wir würden gerne den Flur schließen um einen Windfang zu erhalten. Es ist nicht ganz leicht, da die Treppe und die Tür vom Heizungsraum ungünstig positioniert sind. Die Tür vom Heizungsraum kann nur nach außen öffnend eingebaut werden.
Die Wand zwischen Treppe und Wohnzimmer möchten wir vielleicht verlängern um dort eine TV Ecke zu erstellen. Wir wissen nicht ob es uns dann zu viel Licht nimmt.
Das Haus hat eine Ost West Ausrichtung und Innenmaaße von 5,47m x 11,37m.
Über Ideen würde ich mich freuen!
I
i_b_n_a_n23.05.22 18:28Wie weit ist denn der Bau bereits gediehen dass man dort noch Anpassungen an den Grundriss vornehmen kann? Und ihr wisst schon das die teuersten Änderungen die spontanen mitten in der Bauphase sind?
Vielleicht wurde euer Haus ja auch bereits hier besprochen? Dann wäre eine Verlinkung gut. Ansonsten würden vollständige Pläne helfen. Eine Änderung hier zieht oft Konsequenzen dort nach sich
Vielleicht wurde euer Haus ja auch bereits hier besprochen? Dann wäre eine Verlinkung gut. Ansonsten würden vollständige Pläne helfen. Eine Änderung hier zieht oft Konsequenzen dort nach sich
Thunderbolz schrieb:
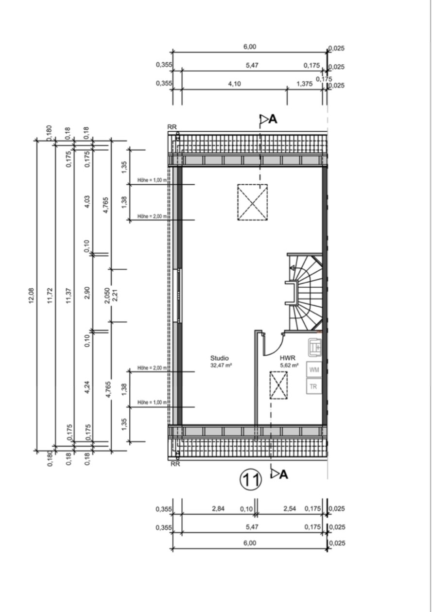
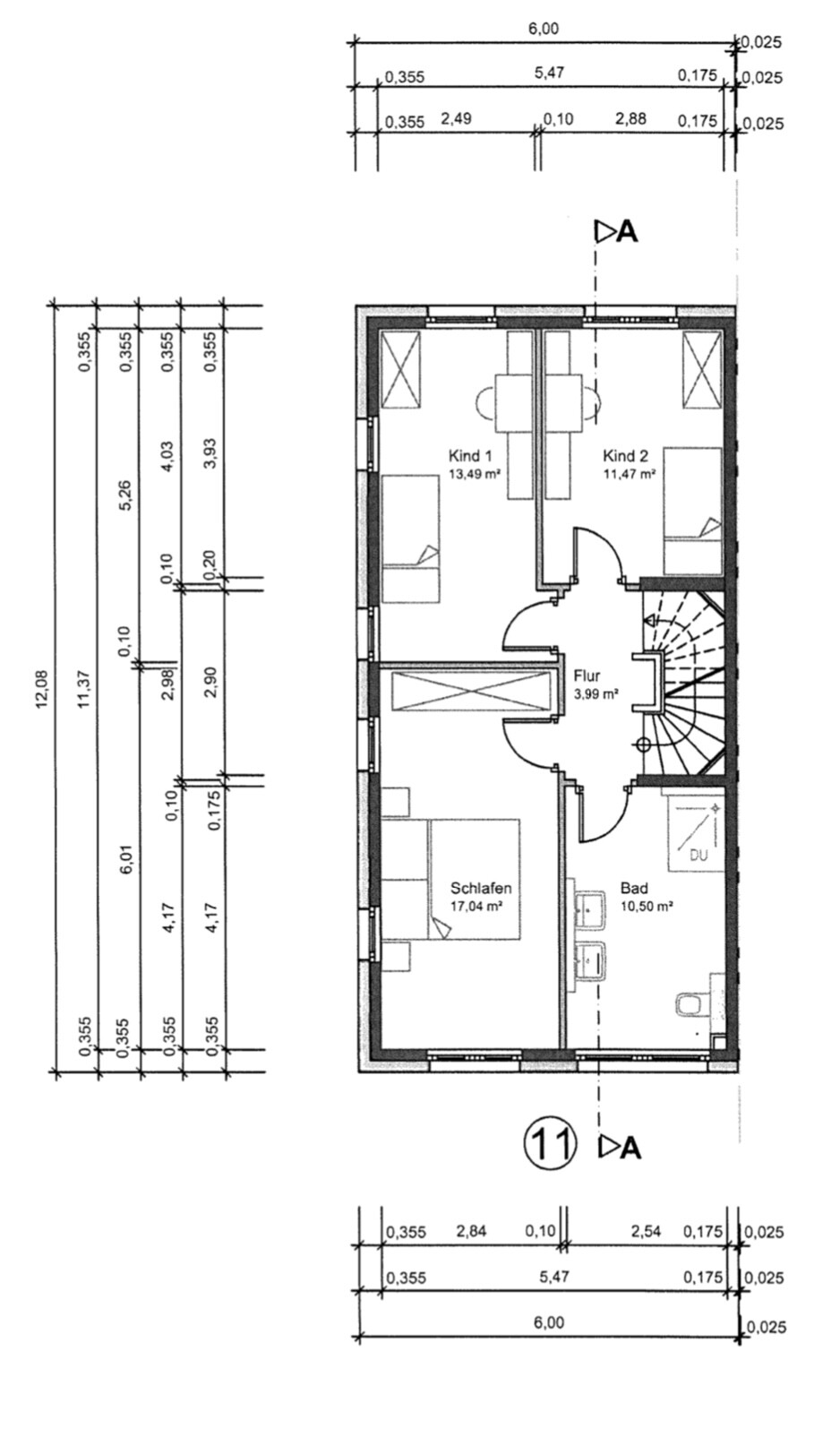
ich suche nach Ideen zur optimalen Raumnutzung des EG unserer im Bau befindlichen Doppelhaushälfte.Ich vermute, Du bist Käufer eines Bauträgerangebotes. Da sind die Flexibilitäten oft etwas enger als wenn man selbst bauen läßt. Immerhin "muß" ich hier einmal nicht den Hinweis geben, daß man sich mit dem Hälftennachbarn abstimmen sollte. Wir können Dich hier deutlich besser beraten, wenn Du auch die anderen Stockwerke zeigst - allein schon wegen Fallrohren und dergleichen. Betreffend des Kellers beispielsweise bin ich unsicher: die Grundrißzeichnung erweckt einerseits bzgl. der Treppe den Eindruck, es käme aus einem Keller eine nach oben; andererseits lese ich den Mini-Heizungsraum im EG als starkes Indiz (und die lange Garage als zweites), daß es hier garkeinen Keller gibt. Wir haben es wohl mit einem Anbieter zu tun, der dieses Hausmodell für Mitkeller- und Ohnekeller-Projekte einsetzt. Auch das spricht wieder eher gegen Hoffnungen auf große Flexibilität.i_b_n_a_n schrieb:
Vielleicht wurde euer Haus ja auch bereits hier besprochen? Dann wäre eine Verlinkung gut.Aber Vorsicht: nur hier - nicht nach extern !https://www.instagram.com/11antgmxde/
https://www.linkedin.com/company/bauen-jetzt/
Puh, der Grundriss ist ja "schlimm", eine Türe für den Windfang macht das Gebilde keinen Deut besser.
- Licht scheint auch nicht unbedingt der Freund des Planers gewesen zu sein...
- Wohnen schonmal möbliert?
- über 10 m Küche... 🙄
- Garderobe?
- WC-Türe kann nach innen (waschbecken an die gemeinsame Wand)
- Essen direkt an der Treppe... 🙄
Thunderbolz schrieb:Was könnt ihr überhaupt noch ändern, bzw. was ist bereits alles fix?
unserer im Bau befindlichen Doppelhaushälfte.
T
Thunderbolz23.05.22 19:37Danke für die schnellen Antworten.
Es wird gerade der Boden verdichtet. Wir haben bis zum 27.6. zeit Änderungen am Grundriss vorzunehmen, die dann vom Bauträger umgesetzt werden. Wir haben schon diverse Überlegungen angestellt sind aber zu keinem schlüssigen Ergebnis gekommen. Es ist kein Keller vorhanden. Unter der Treppe im EG kommt ein Abstellraum mit Tür nach außen öffnend. Der Platz in der Mitte der Treppe wird bis zum DG als Schacht für Kabel benötigt. Dafür fallen die Dreiecke an den Treppe weg.






Es wird gerade der Boden verdichtet. Wir haben bis zum 27.6. zeit Änderungen am Grundriss vorzunehmen, die dann vom Bauträger umgesetzt werden. Wir haben schon diverse Überlegungen angestellt sind aber zu keinem schlüssigen Ergebnis gekommen. Es ist kein Keller vorhanden. Unter der Treppe im EG kommt ein Abstellraum mit Tür nach außen öffnend. Der Platz in der Mitte der Treppe wird bis zum DG als Schacht für Kabel benötigt. Dafür fallen die Dreiecke an den Treppe weg.
M
Myrna_Loy23.05.22 19:46So ein schmales Hemd.
Ich würde - wenn es unbedingt ein Windfang sein soll - eine Schiebetür einbauen, die in die Wand zwischen WC und Heizungsraum läuft.
Die fehlende Garderobe ist aber ein fettes Manko. Da würde ich versuchen, der Küche eine Wandschranknische zu mopsen.
Ich würde - wenn es unbedingt ein Windfang sein soll - eine Schiebetür einbauen, die in die Wand zwischen WC und Heizungsraum läuft.
Die fehlende Garderobe ist aber ein fettes Manko. Da würde ich versuchen, der Küche eine Wandschranknische zu mopsen.
Ähnliche Themen