ᐅ Grundrissentwurf Einfamilienhaus165qm ohne Keller auf 400qm Grundstück
Erstellt am: 10.08.23 09:33
M
MaulwurfbauM
Maulwurfbau10.08.23 09:33Auf Wunsch von 11ant ein Beitrag mit ausgefüllter Liste ;-) Er hat ja leider immer noch keine Glaskugel.
Angeben alle so weit zum jetzigen Zeitpunkt möglich/vorhanden.
Bebauungsplan/Einschränkungen
Größe des Grundstücks: 400QM
Hang: nein, und mit nein, ist auch nein gemeint!
Grundflächenzahl: 0,4
Geschossflächenzahl: ?
Baufenster, Baulinie und -grenze: Ja, vorhanden.
Randbebauung: Möglich mit Garage.
Anzahl Stellplatz: mind. 1 besser 2
Geschossigkeit: I-II
Dachform: Satteldach (Neigung minimal 31°, maximal 45° )
Stilrichtung: ??
Ausrichtung: Giebelständig
Maximale Höhen/Begrenzungen: TH 6-7 m, FH 9-12m
weitere Vorgaben: keine Klinkerfassaden erlaubt. Einfahrt bzw Platz vor Garage 6 m mind. Rote Dachziegel muss, Helle Fassade
Anforderungen der Bauherren
Stilrichtung, Dachform, Gebäudetyp: Satteldach, vorgegeben
Keller, Geschosse: 2 Vollgeschosse ohne Keller
Anzahl der Personen, Alter: 4 Personen (2 Kleinkinder)
Raumbedarf im EG, OG
Büro: Familiennutzung oder Homeoffice?: Büro von ca. 12 qm ist ein Muss.
Schlafgäste pro Jahr: wenige
offene oder geschlossene Architektur: ? Was auch immer das bedeutet.
konservativ oder moderne Bauweise: eher moderne Bauweise.
offene Küche, Kochinsel: Offene Küche ggf. Kochinsel
Anzahl Essplätze: 6
Kamin: NO
Musik/Stereowand: Nicht vorgesehen, TV-Platz aber relativ wichtig.
Balkon, Dachterrasse: NO
Garage, Carport: Garage gewünscht. Carport mit Box aber denkbar.
Nutzgarten, Treibhaus: NO
weitere Wünsche/Besonderheiten/Tagesablauf, gern auch Begründungen, warum dieses oder das nicht sein soll:
Waschraum im OG. Wollen die Wäsche da verarbeiten, wo sie anfällt und wo sie sauber wieder hinmuss. Alles andere ist ein Krampf, für uns zumindest.
Hausentwurf
Von wem stammt die Planung: Architekt
Was gefällt besonders? Warum?
Es ist alles umgesetzt, was wir ihm als Basisinfo gegeben haben und was unser Alltag braucht.
Klare Linie/Struktur gefällt uns.
Der Luftraum im Flur.
Die Verbindung/Nähe aller Räume im EG und OG die Wasser/Abwasser benötigen. Also keine Späße mit Bad im OG in einer Ecke des Hauses und der Hauswirtschaftsraum um EG diagonal gegenüber. Gefällt mir persönlich gut.
Kein Erker oder sonstige unförmige anbauten.
Waschraum im OG, wo Waschmaschine und Trockner stehen sollen.
Was gefällt nicht? Warum?
Das Thema Wohnzimmer ist uns ggf. etwas zu exponiert. Könnte auch eine Kuschelecke mit TV-Möglichkeit ohne direkten Blick auf die Küche sein. Kochen und essen gern offen und zusammen, das WZ könnte etwas mehr abseits sein. Wirkt aktuell im Grundriss wie eine Schlauchige eher schattige Ecke.
Das etwas Schlauchige Schlafzimmer im OG ist kein KO aber nicht 100% gefällig.
Preisschätzung lt Architekt/Planer:
-
Persönliches Preislimit fürs Haus, inkl. Ausstattung:
500-575k
favorisierte Heiztechnik:
Vorgegeben, Erdwärmepumpe mit Kollektor. Kalte Nahwärme.
Wenn Ihr verzichten müsst, auf welche Details/Ausbauten
-könnt Ihr verzichten:
Das kleine Extrazimmer für den Papa im OG.
Garage, wie gesagt Carport auch denkbar.
-könnt Ihr nicht verzichten:
Büro.
Box an Garage oder Carport.
Die Kinderzimmer.
Warum ist der Entwurf so geworden, wie er jetzt ist? ZB
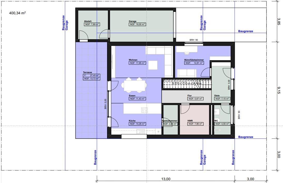
Der Entwurf ist so geworden, wie er ist, weil der Architekt unsere Wünsche und Vorgaben fast 1:1 umgesetzt hat. Dieser Grundrissentwurf ist in erster Instanz dabei herausgekommen.
Was macht ihn in Euren Augen besonders gut oder schlecht?
Siehe was uns gefällt und was nicht. Wobei besonders schlecht finden wir jetzt gar nichts. Eher nicht ganz optimal.
Was ist die wichtigste/grundlegende Frage zum Grundriss in 130 Zeichen zusammengefasst?
Anordnung Garage bündig mit Haus oder nach hinten Versetzt?
43,5qm + 4qm Speiss ausreichend als „Allraum“?
Gleicher Grundriss ggf gespiegelt? Dann aber Büro auf Südseite, ganzen Tag Sonne, Rollo immer unten. Gleiches Spiel im OG mit Schlafzimmer im Sommer zumindest. Eingang weiter Weg von Stellplatz.
Gebaut werden soll mit Holzständerbauweise. Mit einem lokalen Holzbauer.
Es handelt sich um eine erste Skizze nach Klärung der Bedarfe/Wünsche mit dem Architekten.



Angeben alle so weit zum jetzigen Zeitpunkt möglich/vorhanden.
Bebauungsplan/Einschränkungen
Größe des Grundstücks: 400QM
Hang: nein, und mit nein, ist auch nein gemeint!
Grundflächenzahl: 0,4
Geschossflächenzahl: ?
Baufenster, Baulinie und -grenze: Ja, vorhanden.
Randbebauung: Möglich mit Garage.
Anzahl Stellplatz: mind. 1 besser 2
Geschossigkeit: I-II
Dachform: Satteldach (Neigung minimal 31°, maximal 45° )
Stilrichtung: ??
Ausrichtung: Giebelständig
Maximale Höhen/Begrenzungen: TH 6-7 m, FH 9-12m
weitere Vorgaben: keine Klinkerfassaden erlaubt. Einfahrt bzw Platz vor Garage 6 m mind. Rote Dachziegel muss, Helle Fassade
Anforderungen der Bauherren
Stilrichtung, Dachform, Gebäudetyp: Satteldach, vorgegeben
Keller, Geschosse: 2 Vollgeschosse ohne Keller
Anzahl der Personen, Alter: 4 Personen (2 Kleinkinder)
Raumbedarf im EG, OG
Büro: Familiennutzung oder Homeoffice?: Büro von ca. 12 qm ist ein Muss.
Schlafgäste pro Jahr: wenige
offene oder geschlossene Architektur: ? Was auch immer das bedeutet.
konservativ oder moderne Bauweise: eher moderne Bauweise.
offene Küche, Kochinsel: Offene Küche ggf. Kochinsel
Anzahl Essplätze: 6
Kamin: NO
Musik/Stereowand: Nicht vorgesehen, TV-Platz aber relativ wichtig.
Balkon, Dachterrasse: NO
Garage, Carport: Garage gewünscht. Carport mit Box aber denkbar.
Nutzgarten, Treibhaus: NO
weitere Wünsche/Besonderheiten/Tagesablauf, gern auch Begründungen, warum dieses oder das nicht sein soll:
Waschraum im OG. Wollen die Wäsche da verarbeiten, wo sie anfällt und wo sie sauber wieder hinmuss. Alles andere ist ein Krampf, für uns zumindest.
Hausentwurf
Von wem stammt die Planung: Architekt
Was gefällt besonders? Warum?
Es ist alles umgesetzt, was wir ihm als Basisinfo gegeben haben und was unser Alltag braucht.
Klare Linie/Struktur gefällt uns.
Der Luftraum im Flur.
Die Verbindung/Nähe aller Räume im EG und OG die Wasser/Abwasser benötigen. Also keine Späße mit Bad im OG in einer Ecke des Hauses und der Hauswirtschaftsraum um EG diagonal gegenüber. Gefällt mir persönlich gut.
Kein Erker oder sonstige unförmige anbauten.
Waschraum im OG, wo Waschmaschine und Trockner stehen sollen.
Was gefällt nicht? Warum?
Das Thema Wohnzimmer ist uns ggf. etwas zu exponiert. Könnte auch eine Kuschelecke mit TV-Möglichkeit ohne direkten Blick auf die Küche sein. Kochen und essen gern offen und zusammen, das WZ könnte etwas mehr abseits sein. Wirkt aktuell im Grundriss wie eine Schlauchige eher schattige Ecke.
Das etwas Schlauchige Schlafzimmer im OG ist kein KO aber nicht 100% gefällig.
Preisschätzung lt Architekt/Planer:
-
Persönliches Preislimit fürs Haus, inkl. Ausstattung:
500-575k
favorisierte Heiztechnik:
Vorgegeben, Erdwärmepumpe mit Kollektor. Kalte Nahwärme.
Wenn Ihr verzichten müsst, auf welche Details/Ausbauten
-könnt Ihr verzichten:
Das kleine Extrazimmer für den Papa im OG.
Garage, wie gesagt Carport auch denkbar.
-könnt Ihr nicht verzichten:
Büro.
Box an Garage oder Carport.
Die Kinderzimmer.
Warum ist der Entwurf so geworden, wie er jetzt ist? ZB
Der Entwurf ist so geworden, wie er ist, weil der Architekt unsere Wünsche und Vorgaben fast 1:1 umgesetzt hat. Dieser Grundrissentwurf ist in erster Instanz dabei herausgekommen.
Was macht ihn in Euren Augen besonders gut oder schlecht?
Siehe was uns gefällt und was nicht. Wobei besonders schlecht finden wir jetzt gar nichts. Eher nicht ganz optimal.
Was ist die wichtigste/grundlegende Frage zum Grundriss in 130 Zeichen zusammengefasst?
Anordnung Garage bündig mit Haus oder nach hinten Versetzt?
43,5qm + 4qm Speiss ausreichend als „Allraum“?
Gleicher Grundriss ggf gespiegelt? Dann aber Büro auf Südseite, ganzen Tag Sonne, Rollo immer unten. Gleiches Spiel im OG mit Schlafzimmer im Sommer zumindest. Eingang weiter Weg von Stellplatz.
Gebaut werden soll mit Holzständerbauweise. Mit einem lokalen Holzbauer.
Es handelt sich um eine erste Skizze nach Klärung der Bedarfe/Wünsche mit dem Architekten.
G
Gerddieter10.08.23 10:11Hi - ich halte mich ja immer aus Grundrissdiskussionen heraus - weil ich keine Ahnung von der Materie habe.
Wenn ich aber diese "erste Skizze nach Klärung mit dem Architekten" sehe und wenn diese wirklich von Eurem Architekt stammt dann habe ich ein Deja-vu
- und kann Euch nur empfehlen ganz schnell vor diesem Architekt wegzurennen...:-)
Wenn ich aber diese "erste Skizze nach Klärung mit dem Architekten" sehe und wenn diese wirklich von Eurem Architekt stammt dann habe ich ein Deja-vu
- und kann Euch nur empfehlen ganz schnell vor diesem Architekt wegzurennen...:-)
H
hanghaus202310.08.23 10:16Hat das einen besonderen Grund, warum die Garage nicht an die Grenze soll?
Was sagt der Bebauungsplan zu Kniestock?
geplante Dachneigung?
Variable Höhen kenne ich so nicht.
Was sagt der Bebauungsplan zu Kniestock?
geplante Dachneigung?
Variable Höhen kenne ich so nicht.
M
Maulwurfbau10.08.23 10:16Harte Ansage.
Danke.
Mit der Begründung?
Danke.
Mit der Begründung?
M
Maulwurfbau10.08.23 10:20hanghaus2023 schrieb:
Hat das einen besonderen Grund, warum die Garage nicht an die Grenze soll?
Was sagt der Bebauungsplan zu Kniestock?
geplante Dachneigung?1 bis 2 Vollgeschosse möglich.
Das ist eine Skizze, nicht der genehmigte Entwurf ;-).
Die Garage kann auch auf/an die Grenze. Ja.
Mögliche Dachneigung laut Bebauungsplan ist ja oben angegeben. 31-45 kann gebaut werden.
H
hanghaus202310.08.23 12:56Maulwurfbau schrieb:
Mögliche Dachneigung laut Bebauungsplan ist ja oben angegeben. 31-45 kann gebaut werden.Mit welcher Dachneigung ist da gerechnet?Ähnliche Themen