Bebauungsplan/Einschränkungen: Ja
Wohnfläche: 183m²
Nutzfläche: 68m²
Bruttogrundfläche: 360m²
Bruttorauminhalte WH: 885cbm
Bruttorauminhalte GH: 194cbm
Größe des Grundstücks: 964m²
Hang: Ja
Grundflächenzahl: 0,3
Geschossflächenzahl: 0,5
Baufenster, Baulinie und -grenze: siehe Anhänge
Randbebauung: Garagen/Carport zulässig
Geschossigkeit: 1 Vollgeschosse
Dachform: Satteldach 20°- 35°
Ausrichtung
Maximale Höhen/Begrenzungen: Traufhöhe 6m über natürlicher Geländeoberkante
Anforderungen der Bauherren:
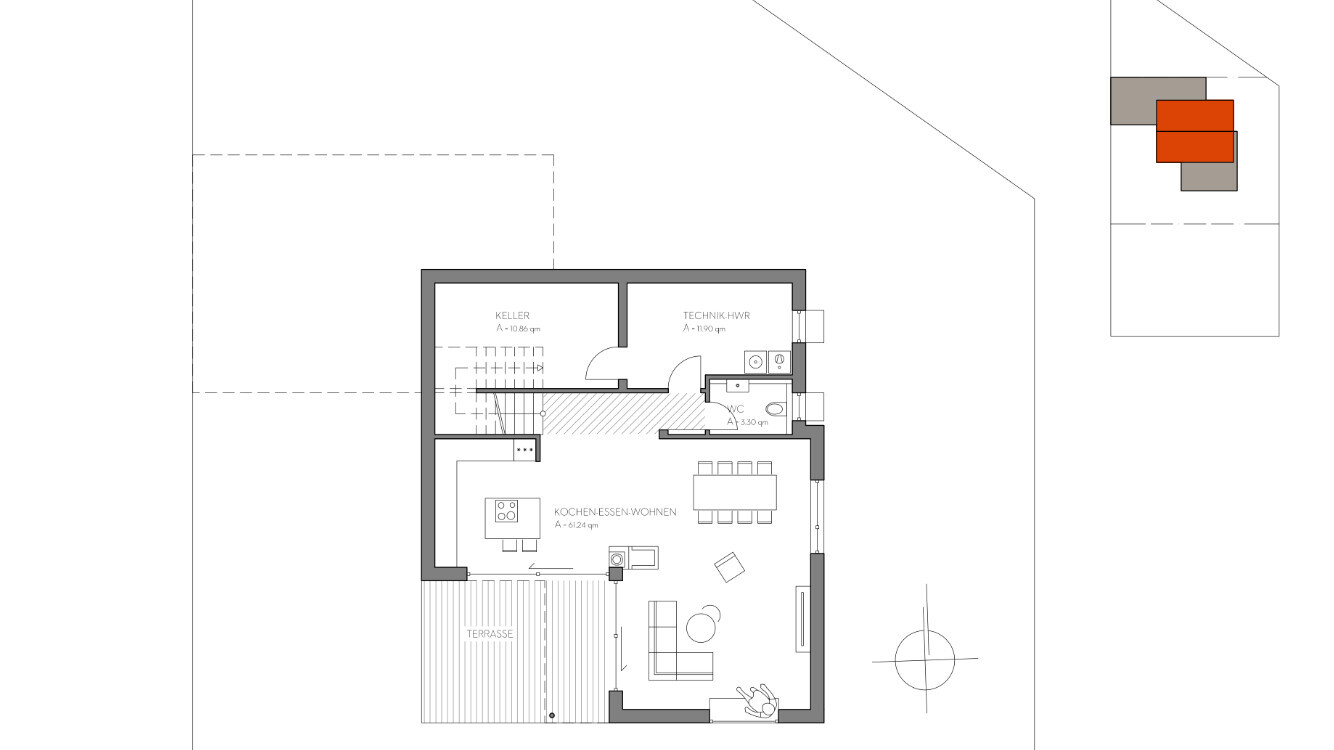
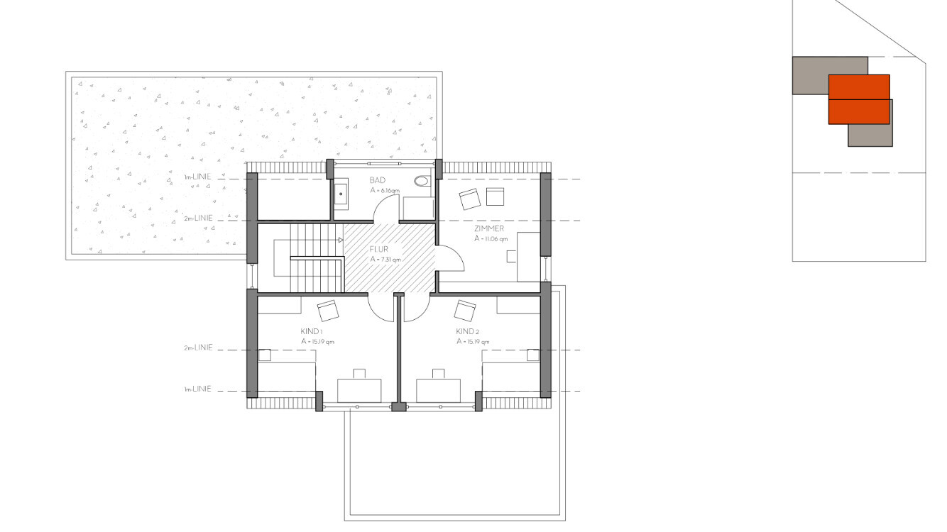
Stilrichtung, Dachform, Gebäudetyp: Satteldach, Einfamilienhaus mit Keller, Keller/Untergeschoss, Erdgeschoss, Dachgeschoss
Anzahl der Personen, Alter: 2 Erwachsene 35, 33; 2 Kinder 3, 3;
Raumbedarf im EG, OG, UG
Büro: Familiennutzung oder Homeoffice?: Familiennutzung/teilweise Homeoffice
offene Küche, Kochinsel: Ja
Anzahl Essplätze: 6-8 Sitzplätze
Kamin: Ja
Balkon, Dachterrasse: Ja
Garage, Carport: Doppelgarage
Hausentwurf:
Von wem stammt die Planung:
-Architekt: Ja
-Do-it-Yourself: SweetHome3D
Preisschätzung lt Architekt/Planer: 440.000€ ohne Eigenleistung
Persönliches Preislimit fürs Haus, inkl Ausstattung: 400.000 für alles komplett mit Eigenleistung
favorisierte Heiztechnik: LWW-Pumpe (mit Lüftungsanlage - noch unklar)
Warum ist der Entwurf so geworden, wie er jetzt ist?: Erste Entwürfe selber erstellt und dann vom Architekten umsetzen/optimieren lassen.
Standardentwurf vom Planer?: Nein
Würde mich sehr über Kritik/Feedback/Anregungen von Euch freuen! Vielen Dank schon mal
Gruß Alex







Wohnfläche: 183m²
Nutzfläche: 68m²
Bruttogrundfläche: 360m²
Bruttorauminhalte WH: 885cbm
Bruttorauminhalte GH: 194cbm
Größe des Grundstücks: 964m²
Hang: Ja
Grundflächenzahl: 0,3
Geschossflächenzahl: 0,5
Baufenster, Baulinie und -grenze: siehe Anhänge
Randbebauung: Garagen/Carport zulässig
Geschossigkeit: 1 Vollgeschosse
Dachform: Satteldach 20°- 35°
Ausrichtung
Maximale Höhen/Begrenzungen: Traufhöhe 6m über natürlicher Geländeoberkante
Anforderungen der Bauherren:
Stilrichtung, Dachform, Gebäudetyp: Satteldach, Einfamilienhaus mit Keller, Keller/Untergeschoss, Erdgeschoss, Dachgeschoss
Anzahl der Personen, Alter: 2 Erwachsene 35, 33; 2 Kinder 3, 3;
Raumbedarf im EG, OG, UG
Büro: Familiennutzung oder Homeoffice?: Familiennutzung/teilweise Homeoffice
offene Küche, Kochinsel: Ja
Anzahl Essplätze: 6-8 Sitzplätze
Kamin: Ja
Balkon, Dachterrasse: Ja
Garage, Carport: Doppelgarage
Hausentwurf:
Von wem stammt die Planung:
-Architekt: Ja
-Do-it-Yourself: SweetHome3D
Preisschätzung lt Architekt/Planer: 440.000€ ohne Eigenleistung
Persönliches Preislimit fürs Haus, inkl Ausstattung: 400.000 für alles komplett mit Eigenleistung
favorisierte Heiztechnik: LWW-Pumpe (mit Lüftungsanlage - noch unklar)
Warum ist der Entwurf so geworden, wie er jetzt ist?: Erste Entwürfe selber erstellt und dann vom Architekten umsetzen/optimieren lassen.
Standardentwurf vom Planer?: Nein
Würde mich sehr über Kritik/Feedback/Anregungen von Euch freuen! Vielen Dank schon mal
Gruß Alex
Zunächst einmal, der Entwurf gefällt mir weitgehend. Das Gebäude ist klar strukturiert, proportioniert und gegliedert und scheint mir dem Gelände gut zu folgen.
In den Zeichnungen scheint es mir einige Inkonsistenzen zu geben: im Grundriss gibt es zwei Zwerchhäuser, in den seitlichen Ansichten nur eines; der Schornstein endet wohl auch an der Wohnzimmerdecke. Tragende Wände sind wohl ein Stiefkind dieser Planung: geeignet sähe ich im Eingangsgeschoss eine, die jedoch zum einen durch Nischen geschwächt ist und zum anderen im darunterliegenden Geschoss auf einem Unterzug lasten müßte. Der seitliche Vorsprung der Dachterrasse ist "zum Sterben zu viel und zum Leben zu wenig", durch diese Kegelbahn kann man sich nicht mit einem Besen durchzwängen. Von den Kinderzimmern müßten mich Schnittzeichnungen davon überzeugen, daß die so funktionieren. Die Zwerchhäuser so wie hier dargestellt sehe ich allerdings ohnehin bei einer der nächsten Überarbeitungen über die Klinge springen, ehe man sie in Ausführungszeichnungen übersetzen muß. Ohne nachgemessen zu haben, scheint mir die Dachneigung von Max. 35° hier ein wenig überschritten worden zu sein ?
Insgesamt sage ich mal: "schade um den schönen Entwurf". Der sieht schon so überzeugend stimmig aus. Aber insbesondere mit noch so jungem Nachwuchs ist das Raumprogramm mit Kinderzimmern zwei Stockwerke über dem Wohnen und Kochen m.E. eine Fehlkonzeption.
Schön, mit einigen guten Ansätzen, strukturell wie gesagt angenehm klar, aber dennoch mit noch viel zu tun dran.
Ich freue mich auf eine konstruktive Diskussion und schätze ihren Zieleinlauf auf etwa den zweihundertsten Beitrag.
https://www.instagram.com/11antgmxde/
https://www.linkedin.com/company/bauen-jetzt/
In den Zeichnungen scheint es mir einige Inkonsistenzen zu geben: im Grundriss gibt es zwei Zwerchhäuser, in den seitlichen Ansichten nur eines; der Schornstein endet wohl auch an der Wohnzimmerdecke. Tragende Wände sind wohl ein Stiefkind dieser Planung: geeignet sähe ich im Eingangsgeschoss eine, die jedoch zum einen durch Nischen geschwächt ist und zum anderen im darunterliegenden Geschoss auf einem Unterzug lasten müßte. Der seitliche Vorsprung der Dachterrasse ist "zum Sterben zu viel und zum Leben zu wenig", durch diese Kegelbahn kann man sich nicht mit einem Besen durchzwängen. Von den Kinderzimmern müßten mich Schnittzeichnungen davon überzeugen, daß die so funktionieren. Die Zwerchhäuser so wie hier dargestellt sehe ich allerdings ohnehin bei einer der nächsten Überarbeitungen über die Klinge springen, ehe man sie in Ausführungszeichnungen übersetzen muß. Ohne nachgemessen zu haben, scheint mir die Dachneigung von Max. 35° hier ein wenig überschritten worden zu sein ?
Insgesamt sage ich mal: "schade um den schönen Entwurf". Der sieht schon so überzeugend stimmig aus. Aber insbesondere mit noch so jungem Nachwuchs ist das Raumprogramm mit Kinderzimmern zwei Stockwerke über dem Wohnen und Kochen m.E. eine Fehlkonzeption.
Schön, mit einigen guten Ansätzen, strukturell wie gesagt angenehm klar, aber dennoch mit noch viel zu tun dran.
Ich freue mich auf eine konstruktive Diskussion und schätze ihren Zieleinlauf auf etwa den zweihundertsten Beitrag.
https://www.instagram.com/11antgmxde/
https://www.linkedin.com/company/bauen-jetzt/
Vielen Dank für das umfangreiche Feedback!
Wie Sie schon richtig erkannt haben, ist der Entwurf sicherlich noch nicht final, auch hat sich der Statiker der Geschichte bislang noch nicht angenommen. Die sogenannte Kegelbahn bei der Dachterrasse bedarf definitiv noch einer gründlichen Überarbeitung. Die Gauben/Zwerchhäuser werden dann Richtung Ausführungsplannung noch mal genauer betrachtet - aber Fakt ist, dass diese benötigt werden, um angemessene Zimmergrößen zu erreichen.
Die Dachneigung sollte laut Architekt so passen - eventuell frage ich hierzu noch mal gezielt nach.
Ja, das Raumprogramm ist so ein Thema wo wir einfach Kompromisse eingehen mussten. Die Prämisse war, das Wohnzimmer im Untergeschoss unterzubringen, da hier der Zugang/die Aussicht zum Garten und angrenzenden Wald meiner Meinung nach (bei den Gegebenheiten) ein Muss sind. Auch wollten wir im EG nicht den Kindern die Dachterrasse überlassen - dadurch war die Unterbringung der Kinder im Dachgeschoss die einzige "vernünftige" Lösung.
Nochmals vielen herzlichen Dank für das Feedback!
Wie Sie schon richtig erkannt haben, ist der Entwurf sicherlich noch nicht final, auch hat sich der Statiker der Geschichte bislang noch nicht angenommen. Die sogenannte Kegelbahn bei der Dachterrasse bedarf definitiv noch einer gründlichen Überarbeitung. Die Gauben/Zwerchhäuser werden dann Richtung Ausführungsplannung noch mal genauer betrachtet - aber Fakt ist, dass diese benötigt werden, um angemessene Zimmergrößen zu erreichen.
Die Dachneigung sollte laut Architekt so passen - eventuell frage ich hierzu noch mal gezielt nach.
Ja, das Raumprogramm ist so ein Thema wo wir einfach Kompromisse eingehen mussten. Die Prämisse war, das Wohnzimmer im Untergeschoss unterzubringen, da hier der Zugang/die Aussicht zum Garten und angrenzenden Wald meiner Meinung nach (bei den Gegebenheiten) ein Muss sind. Auch wollten wir im EG nicht den Kindern die Dachterrasse überlassen - dadurch war die Unterbringung der Kinder im Dachgeschoss die einzige "vernünftige" Lösung.
Nochmals vielen herzlichen Dank für das Feedback!
aaliu schrieb:
Ja, das Raumprogramm ist so ein Thema wo wir einfach Kompromisse eingehen mussten.Wie hätte es denn ohne Kompromisse aussehen sollen ?aaliu schrieb:
Die Prämisse war, das Wohnzimmer im Untergeschoss unterzubringen, da hier der Zugang/die Aussicht zum Garten und angrenzenden Wald meiner Meinung nach (bei den Gegebenheiten) ein Muss sind.Da gehe ich mit.aaliu schrieb:
Auch wollten wir im EG nicht den Kindern die Dachterrasse überlassen - dadurch war die Unterbringung der Kinder im Dachgeschoss die einzige "vernünftige" Lösung.Genau, nun ist es eine Unterbringung. Mir sieht es danach aus, als gäbe das Baufenster auch einen Flachdachanbau über dem Wohnzimmer her. Vielleicht sogar mit einem Ausguck vom Schlafzimmer im Dachgeschoss. Schlafräume kommen besser als Kinderzimmer damit zurecht, am Ende des Raumprogramms zu liegen - zumindest bei einem Wohnbereich "am anderen Ende". Das Kilometergeld zwischen Wohn- und Kinderbereich würde ich minimieren wollen.Die Kompromiss-Raumanordnung könne mit ein Grund sein, warum ich den Entwurf gefühlt eher als einen sehr gelungenen Umbau eines Hauses mit Urbaujahr aus den 70ern wahrnehme als als Neubau.
https://www.instagram.com/11antgmxde/
https://www.linkedin.com/company/bauen-jetzt/
Vielen Dank erst mal für eure Rückmeldung. Die Raumanordnung kam u.a. eben auch dadurch zustande, da die Kinder - vor allem auch durch ihr Alter- nicht " allein" im EG ihre Zimmer haben sollten - Haustür, Garage & Dachterrasse sind m.E. noch zu große "Gefahrenquellen", um sie über Nacht und auch tagsüber unbeaufsichtigt zu lassen. Das Kilometergeld zwischen DG und Wohnbereich ist jedoch natürlich ein Argument... ein Flachdachanbau im EG würde von unserem Architekten aus optischen Gründen verworfen, auch wir hatten diese Idee.
Wie steht es um das Konzept des Flures im EG und dem direkten Zugang zur Dachterrasse?
Wie steht es um das Konzept des Flures im EG und dem direkten Zugang zur Dachterrasse?
Ähnliche Themen