ᐅ Einfamilienhaus ca. 155qm + ELW40qm. Erster Entwurf. Verbesserungsvorschläge?
Erstellt am: 06.11.19 15:52
L
Lucky-LukeL
Lucky-Luke06.11.19 15:52Hallo Liebes Forum und Hallo Miteinander,
Eurer Feedback zum Entwurf unseren Architekten wurde uns sehr freuen.
Wir sind kurz davor diesen an die Gemeine Einzureichen.
Bei Fragen gerne einfach kurz Rückmelden.
Bebauungsplan/Einschränkungen
Größe des Grundstücks: 670qm
Hang: ja
Grundflächenzahl: 0,3
Geschossflächenzahl: 0,5
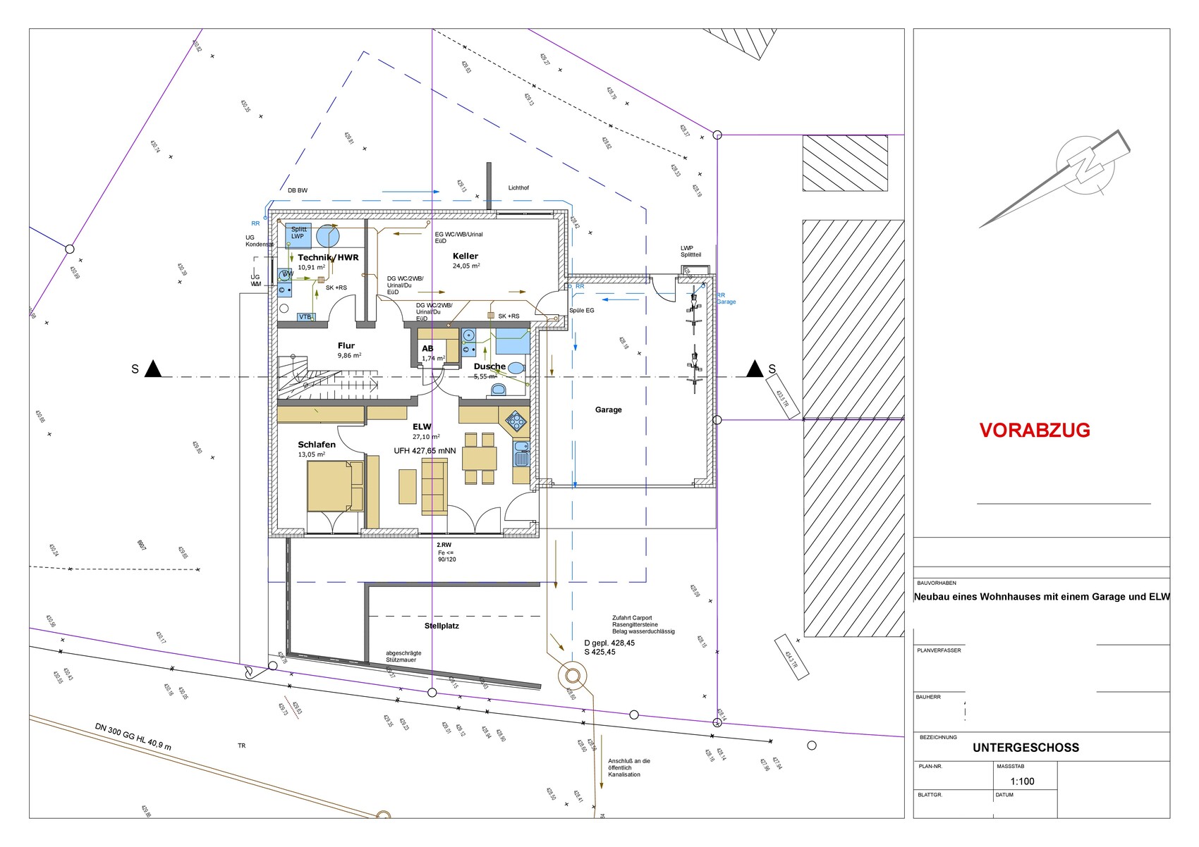
Baufenster, Baulinie und -grenze: Kein Rechteck. Bitte siehe Entwurf.
Randbebauung:
Anzahl Stellplatz:
Geschossigkeit:
Dachform: Satteldach
Stilrichtung:
Ausrichtung:
Maximale Höhen/Begrenzungen:
weitere Vorgaben:
Anforderungen der Bauherren
Stilrichtung, Dachform, Gebäudetyp: Modern, Satteldach.
Keller, Geschosse: UG + EG + DG. UG: Mit Einlieger bzw. Gästewohnung + Abstellraum, Hauswirtschaftsraum, etc.
Anzahl der Personen, Alter: 37+37+4+(geplant) UND 1-Mieter (Student) in Einliegerwohnung im UG.
Raumbedarf im EG, OG
Büro: Familiennutzung oder Homeoffice? Familiennutzung. im EG im Wohnraum Papa mit Büro + PC aber kein richtiges Homeoffice.
Schlafgäste pro Jahr: Durchschnitt: 2 Personen 3x im Jahr
offene oder geschlossene Architektur
konservativ oder moderne Bauweise: Modern, schlicht, Zeitlos.
offene Küche, Kochinsel: Kochinsel
Anzahl Essplätze: 6-8
Kamin: nein
Musik/Stereowand: Lautsprecher in Decken (KNX gesteuert)
Balkon, Dachterrasse: keine Balkone, aber Terrasse im EG und Terrasse im UG in der Einliegerwohnung.
Garage, Carport: Garage
Nutzgarten, Treibhaus: Kein Nutzgarten.
weitere Wünsche/Besonderheiten/Tagesablauf, gern auch Begründungen, warum dieses oder das nicht sein soll
Hausentwurf
Von wem stammt die Planung: Architekt
Was gefällt besonders? Warum?:
Was gefällt nicht? Warum?:
Preisschätzung lt Architekt/Planer: 350-450k mit Baunebenkosten. Viel in EL.
Persönliches Preislimit fürs Haus, inkl Ausstattung:
favorisierte Heiztechnik: Luftwärmepumpe. Zentralbelüftung. KNX.
Wenn Ihr verzichten müsst, auf welche Details/Ausbauten
-könnt Ihr verzichten:
-könnt Ihr nicht verzichten:
Warum ist der Entwurf so geworden, wie er jetzt ist? ZB
Standardentwurf vom Planer?
Entsprechende/Welche Wünsche wurden vom Architekten umgesetzt?
Ein Gemisch aus vielen Beispielen aus div. Magazinen...
Was macht ihn in Euren Augen besonders gut oder schlecht?
Was ist die wichtigste/grundlegende Frage zum Grundriss in 130 Zeichen zusammengefasst?






Eurer Feedback zum Entwurf unseren Architekten wurde uns sehr freuen.
Wir sind kurz davor diesen an die Gemeine Einzureichen.
Bei Fragen gerne einfach kurz Rückmelden.
Bebauungsplan/Einschränkungen
Größe des Grundstücks: 670qm
Hang: ja
Grundflächenzahl: 0,3
Geschossflächenzahl: 0,5
Baufenster, Baulinie und -grenze: Kein Rechteck. Bitte siehe Entwurf.
Randbebauung:
Anzahl Stellplatz:
Geschossigkeit:
Dachform: Satteldach
Stilrichtung:
Ausrichtung:
Maximale Höhen/Begrenzungen:
weitere Vorgaben:
Anforderungen der Bauherren
Stilrichtung, Dachform, Gebäudetyp: Modern, Satteldach.
Keller, Geschosse: UG + EG + DG. UG: Mit Einlieger bzw. Gästewohnung + Abstellraum, Hauswirtschaftsraum, etc.
Anzahl der Personen, Alter: 37+37+4+(geplant) UND 1-Mieter (Student) in Einliegerwohnung im UG.
Raumbedarf im EG, OG
Büro: Familiennutzung oder Homeoffice? Familiennutzung. im EG im Wohnraum Papa mit Büro + PC aber kein richtiges Homeoffice.
Schlafgäste pro Jahr: Durchschnitt: 2 Personen 3x im Jahr
offene oder geschlossene Architektur
konservativ oder moderne Bauweise: Modern, schlicht, Zeitlos.
offene Küche, Kochinsel: Kochinsel
Anzahl Essplätze: 6-8
Kamin: nein
Musik/Stereowand: Lautsprecher in Decken (KNX gesteuert)
Balkon, Dachterrasse: keine Balkone, aber Terrasse im EG und Terrasse im UG in der Einliegerwohnung.
Garage, Carport: Garage
Nutzgarten, Treibhaus: Kein Nutzgarten.
weitere Wünsche/Besonderheiten/Tagesablauf, gern auch Begründungen, warum dieses oder das nicht sein soll
Hausentwurf
Von wem stammt die Planung: Architekt
Was gefällt besonders? Warum?:
Was gefällt nicht? Warum?:
Preisschätzung lt Architekt/Planer: 350-450k mit Baunebenkosten. Viel in EL.
Persönliches Preislimit fürs Haus, inkl Ausstattung:
favorisierte Heiztechnik: Luftwärmepumpe. Zentralbelüftung. KNX.
Wenn Ihr verzichten müsst, auf welche Details/Ausbauten
-könnt Ihr verzichten:
-könnt Ihr nicht verzichten:
Warum ist der Entwurf so geworden, wie er jetzt ist? ZB
Standardentwurf vom Planer?
Entsprechende/Welche Wünsche wurden vom Architekten umgesetzt?
Ein Gemisch aus vielen Beispielen aus div. Magazinen...
Was macht ihn in Euren Augen besonders gut oder schlecht?
Was ist die wichtigste/grundlegende Frage zum Grundriss in 130 Zeichen zusammengefasst?
P
Pinky030106.11.19 15:58Hallo,
wieso wollt ihr mit Einliegerwohnung bauen?
wieso wollt ihr mit Einliegerwohnung bauen?
L
Lucky-Luke06.11.19 16:11Soll in erster Linie als Immobilieninvestition (Mieteinnahmen) dienen.
Viele Praktikanten und Praxisstudenten Mieten hier.
Viele Praktikanten und Praxisstudenten Mieten hier.
J
j.bautsch06.11.19 16:27..und dann nur ne Schiebetür ins Wohnzimmer? Besoffene, die auf der Party sich in der Tür vertun, ins Wohnzimmer reiern oder im Gästezimmer poppen? Oder die oben aufs WC gehen (weil unten gerade besetzt)...
Sowas nenne ich eine Einliegerwohnung mit Familienanschluß
Wie wäre es mit einer zweiten Tür, die einen Windfang ermöglicht mit eigenem Abgang in den Keller?
Sowas nenne ich eine Einliegerwohnung mit Familienanschluß
Wie wäre es mit einer zweiten Tür, die einen Windfang ermöglicht mit eigenem Abgang in den Keller?
Ähnliche Themen