ᐅ Grundrissplan Einfamilienhaus 180qm + Keller in Rhein-Main
Erstellt am: 24.07.20 14:10
Liebe HBFler/lerinnen,
ich hatte euch bereits zu euren Kosteneinschätzungen gefragt und auch versprochen einmal den Architektengrundriss anzuhängen, sobald wir einen Entwurf haben, der aus unserer Sicht passt.
Bebauungsplan/Einschränkungen
Größe des Grundstücks: 260qm
Hang: Leicht abfallend - vllt 50cm?
Grundflächenzahl: 0.4
Geschossflächenzahl
Baufenster, Baulinie und -grenze: §34 Baugesetzbuch; 3m zu den Nachbargrundstücken und direkte Bebauung an Straße möglich
Randbebauung: Ja zur Straße hin (Haus) und zu den Nachbarn Carport/ Stellplätze
Anzahl Stellplatz: 2
Geschossigkeit: 2,5
Dachform: Satteldach
Stilrichtung: Offen
weitere Vorgaben
Anforderungen der Bauherren
Stilrichtung, Dachform, Gebäudetyp: Offen/ Modern/ Hell, Satteldach, Einfamilienhaus
Keller, Geschosse: Keller (voll), EG, OG, DG; Insgesamt c. 180qm Wohnfläche + 63qm Keller
Anzahl der Personen, Alter: 2 Erw. (35 + 28), 2 Kinder (9 + <1)
Raumbedarf im EG, OG: EG: Offener Wohn- und Lebensraum mit direkter Küche und Essbereich; OG: Etage für die Kinder inkl. Badezimmer, ggfls. Arbeitszimmer, 3. Kinderzimmer vllt Gästezimmer
Büro: Kleines Arbeitszimmer für gelegentliches HO
Schlafgäste pro Jahr: 1-3 Gäste und ggfls mehrfach im Jahr
offene oder geschlossene Architektur: Offen und hell
konservativ oder moderne Bauweise: moderner Stil
offene Küche, Kochinsel: Geplant ist eine offene Küche mit einer Kochinsel als Abgrenzung zum Ess-/ Wohnbereich
Anzahl Essplätze: mind. 6 ggfls. 8 über ausziehbaren Tisch
Kamin: Ja im Wohnzimmer geplant
Musik/Stereowand. Nein
Balkon, Dachterrasse: Ja im DG (Elternbereich) für schönen Blick/ Sonnenaufgang und Entspannen
Garage, Carport: Carport geplant
weitere Wünsche/Besonderheiten/Tagesablauf, gern auch Begründungen, warum dieses oder das nicht sein soll: 3. Kinderzimmer vorgehalten für möglichen weiteren Nachwuchs; Entscheidung noch ausstehend; alternativ Spielzimmer, Gästezimmer
Hausentwurf
Von wem stammt die Planung:
-Architekt auf Basis unserer Vorgaben bzgl. Räumen und Stil (hell, offen, modern)
Was gefällt besonders? Warum? Uns gefällt die Planung in Summe, da wir aufgrund des kleinen Grundstücks etwas limitiert sind in der Größe. Wir wollten einen schönen, großen Wohn/ Essbereich haben, der gleichzeitig als Lebensmittelpunkt dient. Die Kinder sollen alle fast gleich große Zimmer haben (großer Abstand, aber trotzdem). Das DG soll uns als Rückzugsort dienen und über ein eigenes Badezimmer inkl. potenzieller kleiner Sauna ein nettes Ambiente schaffen. Wir planen im Rhein-Main Gebiet und wohnen etwas ländlich und wollen daher auch von unserem Schlafzimmer aus einen unverdauten Blick in die Natur haben (daher Balkon)
Was gefällt nicht? Warum? Wir sind eigentlich sehr zufrieden und haben auf Basis der guten Vorgaben hier im Forum schon früh eigene Ideen entwickelt und brauchten daher nur drei Runden mit dem Architekten zur Planung. Wir hätten gerne eine gerade Treppe gehabt anstatt der 2x-viertel gewandelte Treppe, aber nach dem 1. Entwurf haben wir davon Abstand genommen (zu viel Platz ging verloren
Preisschätzung lt Architekt/Planer: 540 Tsd.
Persönliches Preislimit fürs Haus, inkl Ausstattung: 650 Tsd
favorisierte Heiztechnik: Erd-Wärmepumpe mit Fußbodenheizung und Photovoltaikanlage
Wenn Ihr verzichten müsst, auf welche Details/Ausbauten
-könnt Ihr verzichten: An dem Punkt sind wir nicht
-könnt Ihr nicht verzichten:
Warum ist der Entwurf so geworden, wie er jetzt ist? ZB
Wie oben geschrieben ist unsere Grundfläche limitiert und wir wollen auch noch einen Rest Grünstreifen haben. Unser Architekt hat alle Wünsche berücksichtigt und uns offen und ehrlich Feedback zu Ideen gegeben (z.B. offene Galerie im Eingangsbereich bis ins OG -> wieder verworfen)
Was ist die wichtigste/grundlegende Frage zum Grundriss in 130 Zeichen zusammengefasst?
Wir sind mit dem Plan sehr zufrieden und fast alle Wünsche erfüllt. Nichtsdestotrotz wäre es toll eure Meinungen und Ideen zu hören v.a. im Hinblick auf eigene Erfahrungen und wie es sich in der Praxis anfühlt


ich hatte euch bereits zu euren Kosteneinschätzungen gefragt und auch versprochen einmal den Architektengrundriss anzuhängen, sobald wir einen Entwurf haben, der aus unserer Sicht passt.
Bebauungsplan/Einschränkungen
Größe des Grundstücks: 260qm
Hang: Leicht abfallend - vllt 50cm?
Grundflächenzahl: 0.4
Geschossflächenzahl
Baufenster, Baulinie und -grenze: §34 Baugesetzbuch; 3m zu den Nachbargrundstücken und direkte Bebauung an Straße möglich
Randbebauung: Ja zur Straße hin (Haus) und zu den Nachbarn Carport/ Stellplätze
Anzahl Stellplatz: 2
Geschossigkeit: 2,5
Dachform: Satteldach
Stilrichtung: Offen
weitere Vorgaben
Anforderungen der Bauherren
Stilrichtung, Dachform, Gebäudetyp: Offen/ Modern/ Hell, Satteldach, Einfamilienhaus
Keller, Geschosse: Keller (voll), EG, OG, DG; Insgesamt c. 180qm Wohnfläche + 63qm Keller
Anzahl der Personen, Alter: 2 Erw. (35 + 28), 2 Kinder (9 + <1)
Raumbedarf im EG, OG: EG: Offener Wohn- und Lebensraum mit direkter Küche und Essbereich; OG: Etage für die Kinder inkl. Badezimmer, ggfls. Arbeitszimmer, 3. Kinderzimmer vllt Gästezimmer
Büro: Kleines Arbeitszimmer für gelegentliches HO
Schlafgäste pro Jahr: 1-3 Gäste und ggfls mehrfach im Jahr
offene oder geschlossene Architektur: Offen und hell
konservativ oder moderne Bauweise: moderner Stil
offene Küche, Kochinsel: Geplant ist eine offene Küche mit einer Kochinsel als Abgrenzung zum Ess-/ Wohnbereich
Anzahl Essplätze: mind. 6 ggfls. 8 über ausziehbaren Tisch
Kamin: Ja im Wohnzimmer geplant
Musik/Stereowand. Nein
Balkon, Dachterrasse: Ja im DG (Elternbereich) für schönen Blick/ Sonnenaufgang und Entspannen
Garage, Carport: Carport geplant
weitere Wünsche/Besonderheiten/Tagesablauf, gern auch Begründungen, warum dieses oder das nicht sein soll: 3. Kinderzimmer vorgehalten für möglichen weiteren Nachwuchs; Entscheidung noch ausstehend; alternativ Spielzimmer, Gästezimmer
Hausentwurf
Von wem stammt die Planung:
-Architekt auf Basis unserer Vorgaben bzgl. Räumen und Stil (hell, offen, modern)
Was gefällt besonders? Warum? Uns gefällt die Planung in Summe, da wir aufgrund des kleinen Grundstücks etwas limitiert sind in der Größe. Wir wollten einen schönen, großen Wohn/ Essbereich haben, der gleichzeitig als Lebensmittelpunkt dient. Die Kinder sollen alle fast gleich große Zimmer haben (großer Abstand, aber trotzdem). Das DG soll uns als Rückzugsort dienen und über ein eigenes Badezimmer inkl. potenzieller kleiner Sauna ein nettes Ambiente schaffen. Wir planen im Rhein-Main Gebiet und wohnen etwas ländlich und wollen daher auch von unserem Schlafzimmer aus einen unverdauten Blick in die Natur haben (daher Balkon)
Was gefällt nicht? Warum? Wir sind eigentlich sehr zufrieden und haben auf Basis der guten Vorgaben hier im Forum schon früh eigene Ideen entwickelt und brauchten daher nur drei Runden mit dem Architekten zur Planung. Wir hätten gerne eine gerade Treppe gehabt anstatt der 2x-viertel gewandelte Treppe, aber nach dem 1. Entwurf haben wir davon Abstand genommen (zu viel Platz ging verloren
Preisschätzung lt Architekt/Planer: 540 Tsd.
Persönliches Preislimit fürs Haus, inkl Ausstattung: 650 Tsd
favorisierte Heiztechnik: Erd-Wärmepumpe mit Fußbodenheizung und Photovoltaikanlage
Wenn Ihr verzichten müsst, auf welche Details/Ausbauten
-könnt Ihr verzichten: An dem Punkt sind wir nicht
-könnt Ihr nicht verzichten:
Warum ist der Entwurf so geworden, wie er jetzt ist? ZB
Wie oben geschrieben ist unsere Grundfläche limitiert und wir wollen auch noch einen Rest Grünstreifen haben. Unser Architekt hat alle Wünsche berücksichtigt und uns offen und ehrlich Feedback zu Ideen gegeben (z.B. offene Galerie im Eingangsbereich bis ins OG -> wieder verworfen)
Was ist die wichtigste/grundlegende Frage zum Grundriss in 130 Zeichen zusammengefasst?
Wir sind mit dem Plan sehr zufrieden und fast alle Wünsche erfüllt. Nichtsdestotrotz wäre es toll eure Meinungen und Ideen zu hören v.a. im Hinblick auf eigene Erfahrungen und wie es sich in der Praxis anfühlt
A
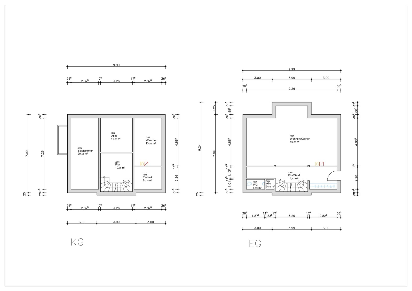
Alessandro24.07.20 14:30wenn ich an die anfallende Wäsche bei 5 Personen denke, würde ich einen Hauswirtschaftsraum im OG einplanen.
Ansonsten gefällt mir das EG überhaupt nicht, weil es einfach nur aus einem riesen Raum, einem sehr schmalen Flur, einem kleinen WC und einer Abstellkammer mit <1qm besteht.
Wo sind Fenster? Wo die Türen? Wie sieht das Grundstück und die Außenansicht aus?
Für 650.000,- würde ICH mehr daraus machen wollen.
Ansonsten gefällt mir das EG überhaupt nicht, weil es einfach nur aus einem riesen Raum, einem sehr schmalen Flur, einem kleinen WC und einer Abstellkammer mit <1qm besteht.
Wo sind Fenster? Wo die Türen? Wie sieht das Grundstück und die Außenansicht aus?
Für 650.000,- würde ICH mehr daraus machen wollen.
I
Ideensucher24.07.20 15:14Gibts den Entwurf auch mit Türen und grober Moeblierung und Küchenplanung?
Im EG das kleine WC z bsp - warum ist da noch ein Meter daneben ungenutzt vom Flur?
Habt ihr denn oben tolle Aussicht? Dann evtl Wohnzimmer nach oben mit Dachterrasse. Bei einem 300qm Grundstück duerfte das naechste Haus recht nah stehen, Aussicht aus dem Wohnzimmer dann eher so mittelmaessig.
Im EG dann Wohnkueche, Schlafzimmer, Elternbad. Dann lohnt auch Waschen im Keller.
3 Treppen laufen um die trockenen Socken hochzutragen waere nicht meins
Im EG das kleine WC z bsp - warum ist da noch ein Meter daneben ungenutzt vom Flur?
Habt ihr denn oben tolle Aussicht? Dann evtl Wohnzimmer nach oben mit Dachterrasse. Bei einem 300qm Grundstück duerfte das naechste Haus recht nah stehen, Aussicht aus dem Wohnzimmer dann eher so mittelmaessig.
Im EG dann Wohnkueche, Schlafzimmer, Elternbad. Dann lohnt auch Waschen im Keller.
3 Treppen laufen um die trockenen Socken hochzutragen waere nicht meins
Alessandro schrieb:
wenn ich an die anfallende Wäsche bei 5 Personen denke, würde ich einen Hauswirtschaftsraum im OG einplanen.
Der gelbe Schacht ist ein Wäscheschacht - hatte ich vergessen zu erwähnen.
Türen sind hier leider nicht (mehr) enthalten, aber es kommen welche und wir wissen auch bereits wo.
Ideensucher schrieb:
Im EG das kleine WC z bsp - warum ist da noch ein Meter daneben ungenutzt vom Flur?
Am Ende des Flurs soll ein bodentiefes Fenster hin.
Planung mit Küche und Möbeln haben wir nicht, aber im Kopf bereits "eingerichtet"
Ideensucher schrieb:
Habt ihr denn oben tolle Aussicht? Dann evtl Wohnzimmer nach oben mit Dachterrasse. Bei einem 300qm Grundstück duerfte das naechste Haus recht nah stehen, Aussicht aus dem Wohnzimmer dann eher so mittelmaessig.
Im EG dann Wohnkueche, Schlafzimmer, Elternbad. Dann lohnt auch Waschen im Keller.
3 Treppen laufen um die trockenen Socken hochzutragen waere nicht meins
Die nächsten Häuser stehen nah, aber kann man nicht ändern. Dein Gedanke zur Aufteilung ist interessant, aber für uns keine Option.
Angehängt einmal die Außenansicht. Denkt euch den Erker an der Seite weg, den gibts nicht mehr
I
Ideensucher24.07.20 15:29Ich wuerde auch Kinderzimmer 3 kleiner machen und die anderen beiden Zimmer vergroessern. Selbst wenn Kind 3 kommt - der ist dann 11 Jahre juenger als Kind 1.
Kind 1 wird zum studieren ausziehen - ihr wohnt laendlich, da wird wohl keine Hochschule mit dem Bus erreichbar sein. Dann ist Kind 3 hoechstens 10 und wird sich bis dahin nicht beschweren dass er das kleinste Zimmer hat.
Und wenn Kind 3 gar nicht kommt haltet ihr 15qm vor fuer "Gaeste ab und an" und "vielleicht mal home office"
Kind 1 wird zum studieren ausziehen - ihr wohnt laendlich, da wird wohl keine Hochschule mit dem Bus erreichbar sein. Dann ist Kind 3 hoechstens 10 und wird sich bis dahin nicht beschweren dass er das kleinste Zimmer hat.
Und wenn Kind 3 gar nicht kommt haltet ihr 15qm vor fuer "Gaeste ab und an" und "vielleicht mal home office"
I
Ideensucher24.07.20 15:45Amosa34 schrieb:
Am Ende des Flurs soll ein bodentiefes Fenster hin.Wozu? Wird praktisch niemand sehen und deine 8m entfernte Garderobe wird dadurch auch nicht merklich hellerÄhnliche Themen