ᐅ Grundrissdiskussion aufbauend auf bestehendem Thread
Erstellt am: 23.03.23 19:27
D
Dachshund9023.03.23 19:27Hallo zusammen,
bisher habe ich meine Themen in dem Thread "Vorgehen für Einfamilienhaus Neubau bei vorhandenem Grundstück" angesprochen.
Auf Wunsch habe ich nun einen neuen Thread erstellt, um euch einen Entwurfs-Grundriss zu zeigen.
Ich würde mich freuen, wenn ihr mit mir teilt, was euch auffällt. Haben zeitnah einen Termin, in dem wir unsere Auffälligkeiten/Änderungswünsche etc. an den Architekt geben möchten.
vielen Dank und viele Grüße




bisher habe ich meine Themen in dem Thread "Vorgehen für Einfamilienhaus Neubau bei vorhandenem Grundstück" angesprochen.
Auf Wunsch habe ich nun einen neuen Thread erstellt, um euch einen Entwurfs-Grundriss zu zeigen.
Ich würde mich freuen, wenn ihr mit mir teilt, was euch auffällt. Haben zeitnah einen Termin, in dem wir unsere Auffälligkeiten/Änderungswünsche etc. an den Architekt geben möchten.
vielen Dank und viele Grüße
K
K a t j a23.03.23 23:53Du solltest trotz vorherigem Thread unbedingt den Fragebogen ausfüllen. Siehe angepinnter Thread im Unterforum.
D
Dachshund9024.03.23 08:08SoL schrieb:
Was @K a t j a sagte.
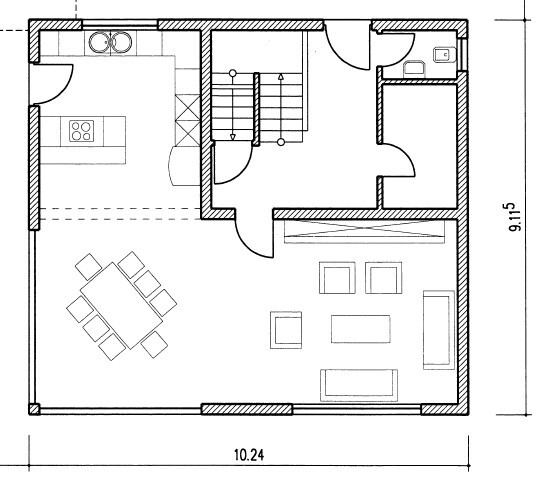
Zusätzlich: Lange Wege von Tür zur Küche mit Einkäufen. Warum wird die Terrasse nur von der Küche erschlossen?
Grausiges Ankleidezimmer, sehr schmales Schlafzimmer.Danke, ich finde den Weg in die Küche über die Terrassentür kurz. Den Ausgang aus dem Essbereich wünschen wir uns ebenfalls.Hinsichtlich Ankleide hatten wir uns überlegt, die Tür und das schräge Stück Wand einfach entfallen zu lassen.
K a t j a schrieb:
Du solltest trotz vorherigem Thread unbedingt den Fragebogen ausfüllen. Siehe angepinnter Thread im Unterforum.Hier der Fragebogen:Bebauungsplan/Einschränkungen
Größe des Grundstücks 769m²
Hang
Grundflächenzahl
Geschossflächenzahl
Baufenster, Baulinie und -grenze
Randbebauung
Anzahl Stellplatz
Geschossigkeit
Dachform
Stilrichtung
Ausrichtung
Maximale Höhen/Begrenzungen
weitere Vorgaben
Anforderungen der Bauherren
Stilrichtung, Dachform, Gebäudetyp
Keller, Geschosse
Anzahl der Personen, Alter
Raumbedarf im EG, OG
Büro: Familiennutzung oder Homeoffice?
Schlafgäste pro Jahr
offene oder geschlossene Architektur
konservativ oder moderne Bauweise
offene Küche, Kochinsel
Anzahl Essplätze
Kamin
Musik/Stereowand
Balkon, Dachterrasse
Garage, Carport
Nutzgarten, Treibhaus
weitere Wünsche/Besonderheiten/Tagesablauf, gern auch Begründungen, warum dieses oder das nicht sein soll
Hausentwurf
Von wem stammt die Planung:
-Planer eines Bauunternehmens
-Architekt
-Do-it-Yourself
Was gefällt besonders? Warum?
Was gefällt nicht? Warum?
Preisschätzung lt Architekt/Planer:
Persönliches Preislimit fürs Haus, inkl Ausstattung:
favorisierte Heiztechnik:
Wenn Ihr verzichten müsst, auf welche Details/Ausbauten
-könnt Ihr verzichten:
-könnt Ihr nicht verzichten:
Warum ist der Entwurf so geworden, wie er jetzt ist? ZB
Standardentwurf vom Planer?
Entsprechende/Welche Wünsche wurden vom Architekten umgesetzt?
Ein Gemisch aus vielen Beispielen aus div. Magazinen...
Was macht ihn in Euren Augen besonders gut oder schlecht?
Was ist die wichtigste/grundlegende Frage zum Grundriss in 130 Zeichen zusammengefasst?
D
Dachshund9024.03.23 08:27SoL schrieb:
Was @K a t j a sagte.
Zusätzlich: Lange Wege von Tür zur Küche mit Einkäufen. Warum wird die Terrasse nur von der Küche erschlossen?
Grausiges Ankleidezimmer, sehr schmales Schlafzimmer.Danke, ich finde den Weg in die Küche über die Terrassentür kurz. Den Ausgang aus dem Essbereich wünschen wir uns ebenfalls.Hinsichtlich Ankleide hatten wir uns überlegt, die Tür und das schräge Stück Wand einfach entfallen zu lassen.
K a t j a schrieb:
Du solltest trotz vorherigem Thread unbedingt den Fragebogen ausfüllen. Siehe angepinnter Thread im Unterforum.Hier der Fragebogen:Bebauungsplan/Einschränkungen
Größe des Grundstücks 769m²
Hang Ja
Grundflächenzahl siehe Plan
Geschossflächenzahl siehe Plan
Baufenster, Baulinie und -grenze siehe Plan
Randbebauung siehe Plan
Anzahl Stellplatz 2 auf Hof
Geschossigkeit KG, EG, OG
Dachform Satteldach
Stilrichtung
Ausrichtung
Maximale Höhen/Begrenzungen max. Firsthöhe 8m
weitere Vorgaben
Anforderungen der Bauherren
Stilrichtung, Dachform, Gebäudetyp Einfamilienhaus
Keller, Geschosse Keller ja, EG, OG
Anzahl der Personen, Alter 2 Erwachsene (32+34), 1 Kind (0)
Raumbedarf im EG, OG Wohnbereich+Küche, Gäste-WC, Abstellraum, Schlafzimmer, Ankleide, 2xKinderzimmer, Bad
Büro: Familiennutzung oder Homeoffice? HO
Schlafgäste pro Jahr 5
offene oder geschlossene Architektur Wohnbereich offen, Rest eher geschlossen
konservativ oder moderne Bauweise sieht wohl eher konservativ aus
offene Küche, Kochinsel offen, ja
Anzahl Essplätze 6-8
Kamin ja, fehlt im Entwurf
Musik/Stereowand Nein
Balkon, Dachterrasse Nein
Garage, Carport Ja, Ausführung je nach Budget
Nutzgarten, Treibhaus Ja
weitere Wünsche/Besonderheiten/Tagesablauf, gern auch Begründungen, warum dieses oder das nicht sein soll
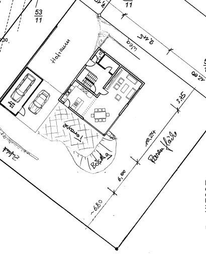
Uns ist die Ausrichtung in Richtung Aussicht / SO wichtig, diese ist durch die Anordnung auf dem Grundstück gut umgesetzt
Hausentwurf
Von wem stammt die Planung:
-Architekt
Was gefällt besonders? Warum? Letztendlich sind unsere Vorgaben aufgenommen ; Allraum, Terrasse gefällt
Was gefällt nicht? Warum? Alles etwas zu "schlicht" ; Dusche einsehbar ; fehlender Kamin ; Ankleidezugang ; Ausgang Terrasse aus Wohnbereich
Preisschätzung lt Architekt/Planer: -
Persönliches Preislimit fürs Haus, inkl Ausstattung: -
favorisierte Heiztechnik: Wärmepumpe
Wenn Ihr verzichten müsst, auf welche Details/Ausbauten
-könnt Ihr verzichten: Garage
-könnt Ihr nicht verzichten: Restlichen Raumbedarf, Entwurf stellt für uns das "Minimum" dar
Warum ist der Entwurf so geworden, wie er jetzt ist? ZB
Standardentwurf vom Planer? Nein
Entsprechende/Welche Wünsche wurden vom Architekten umgesetzt? Ja
Was macht ihn in Euren Augen besonders gut oder schlecht? siehe 130 Zeichen Zusammenfassung
Was ist die wichtigste/grundlegende Frage zum Grundriss in 130 Zeichen zusammengefasst?
Grundsätzlich sind unsere Vorgaben umgesetzt, der Allraum gefällt uns gut mit der großen Fensterfront. Ansonsten fehlen uns insgesamt ggf. ein paar m² und uns fehlt das "Besondere". Es sieht doch sehr nach einem "einfachen, viereckigen, kleinen Haus aus". Ein überdachter Einfang mit Säulen, doch ein Erker oder ein Absatz, eine Gaube oder oder oder wären erste Ideen, je nachdem was an Geld noch über ist.
K
K a t j a26.03.23 08:22Sorry, anhand Deiner Angaben kann ich das Grundstück nicht beurteilen.
Von wo aus gelten denn die 8m Firsthöhe? So wie jetzt die 2m Linie eingezeichnet ist, kannst Du überhaupt keine Schränke in Deiner Ankleide stellen, zumindest nicht die eingezeichneten Hochschränke.
Von einem Budget hab ich auch nix gelesen, was am Hang ja nicht unwichtig ist. Letzterer gehört unbedingt mit abgebildet.
Und ja, der Entwurf ist eher schlicht und die einsame Tür in den Allraum wirkt auf mich etwas trostlos. Das ist aber erstmal egal, solange die rechtlichen Vorgaben nicht eingehalten wurden bzw. zweifelhaft sind.
Insgesamt zu wenig Infos und zu viele Widersprüche für eine Diskussion. Du darfst nicht erwarten, dass jemand den vorherigen Thread liest, um hier etwas zu antworten. Genau deswegen macht man ja einen neuen Thread, damit man nicht 30 Seiten lesen muss, sondern alle Infos konzentriert auf Seite 1 zusammen stellt.
Dachshund90 schrieb:Wo sieht man diese Angaben denn auf dem Plan? Auf Deinem Lageplan ist nicht einmal das ganze Grundstück zu sehen und wo die Zufahrt ist, ist leider unklar. Planlinksunten steht auch nochmals Zufahrt aber anscheinend soll zusätzlich nahezu der gesamte Vorgarten gepflastert werden. Das finde ich reichlich absurd und sofort frage ich wieder nach der Grundflächenzahl?
Grundflächenzahl siehe Plan
Geschossflächenzahl siehe Plan
Baufenster, Baulinie und -grenze siehe Plan
Randbebauung siehe Plan
Von wo aus gelten denn die 8m Firsthöhe? So wie jetzt die 2m Linie eingezeichnet ist, kannst Du überhaupt keine Schränke in Deiner Ankleide stellen, zumindest nicht die eingezeichneten Hochschränke.
Von einem Budget hab ich auch nix gelesen, was am Hang ja nicht unwichtig ist. Letzterer gehört unbedingt mit abgebildet.
Und ja, der Entwurf ist eher schlicht und die einsame Tür in den Allraum wirkt auf mich etwas trostlos. Das ist aber erstmal egal, solange die rechtlichen Vorgaben nicht eingehalten wurden bzw. zweifelhaft sind.
Insgesamt zu wenig Infos und zu viele Widersprüche für eine Diskussion. Du darfst nicht erwarten, dass jemand den vorherigen Thread liest, um hier etwas zu antworten. Genau deswegen macht man ja einen neuen Thread, damit man nicht 30 Seiten lesen muss, sondern alle Infos konzentriert auf Seite 1 zusammen stellt.
Ähnliche Themen