ᐅ Grundriss und Platzfragen Einfamilienhaus
Erstellt am: 07.07.19 15:14
BastianBW07.07.19 15:14
Bebauungsplan/Einschränkungen
Größe des Grundstücks: 486qm
Hang: flach
Baufenster, Baulinie und -grenze: "Nachbarschaftsbebauung"
wobei sich mir hier kein richtiges Schema ergibt.
Anforderungen der Bauherren
Stilrichtung, Dachform, Gebäudetyp: Satteldach, 1-Familienhaus
Keller, Geschosse: kein Keller 1,5 Geschosse
Anzahl der Personen, Alter: 2, 24 Jahre
Hausentwurf
Von wem stammt die Planung: befreundeter Bauing
Hallo ihr,
ich bin neu angemeldet hier im Forum und hätte gerne ein paar Meinungen und eventuell Vorschläge zu den Grundrissen.
Das Grundstück ist leider relativ lang gezogen (ungefähr 16mx27m)
Im Moment steht darauf ein Abrissreifes Haus an der gleichen Position.
Raumaufteilung ist auch dadurch eingeschränkt dass auf der Grenzseite zumindest im EG keine Fenster möglich sind.
Freue mich über jegliche Kritik, Einwände und Tipps.



Größe des Grundstücks: 486qm
Hang: flach
Baufenster, Baulinie und -grenze: "Nachbarschaftsbebauung"
wobei sich mir hier kein richtiges Schema ergibt.
Anforderungen der Bauherren
Stilrichtung, Dachform, Gebäudetyp: Satteldach, 1-Familienhaus
Keller, Geschosse: kein Keller 1,5 Geschosse
Anzahl der Personen, Alter: 2, 24 Jahre
Hausentwurf
Von wem stammt die Planung: befreundeter Bauing
Hallo ihr,
ich bin neu angemeldet hier im Forum und hätte gerne ein paar Meinungen und eventuell Vorschläge zu den Grundrissen.
Das Grundstück ist leider relativ lang gezogen (ungefähr 16mx27m)
Im Moment steht darauf ein Abrissreifes Haus an der gleichen Position.
Raumaufteilung ist auch dadurch eingeschränkt dass auf der Grenzseite zumindest im EG keine Fenster möglich sind.
Freue mich über jegliche Kritik, Einwände und Tipps.
Escroda07.07.19 15:57
Habt Ihr über die Bebaubarkeit schon einmal mit der Genehmigungsbehörde gesprochen? Traufgassen waren bis ins 19. Jh. üblich, heute sind sie fast immer unzulässig. Also entweder Ihr baut auf die Grenze oder Ihr haltet Abstandsflächen oder - was ich für unwahrscheinlich halte - die Behörde gestattet Euch eine Abweichung. Gleiches gilt für den westlichen Nachbarn: Entweder anbauen oder 5m Abstand halten.
Bauen in alten Dorfstrukturen ist recht kompliziert. Wenn der Freund in eurem Alter ist, wird er vermutlich viel lernen (müssen). Das Lehrgeld bezahlt allerdings Ihr. Grundsätzlich solltet Ihr Euch überlegen, wie viel Euch die Freundschaft wert ist. Helfend zur Seite stehen ist gut, von der Projektübernahme rate ich ab.
Bauen in alten Dorfstrukturen ist recht kompliziert. Wenn der Freund in eurem Alter ist, wird er vermutlich viel lernen (müssen). Das Lehrgeld bezahlt allerdings Ihr. Grundsätzlich solltet Ihr Euch überlegen, wie viel Euch die Freundschaft wert ist. Helfend zur Seite stehen ist gut, von der Projektübernahme rate ich ab.
ypg07.07.19 16:28
BastianBW schrieb:
Anforderungen der Bauherren
Stilrichtung, Dachform, Gebäudetyp: Satteldach, 1-FamilienhausIch sehe ein Haus mit zwei 2-Zimmer-Wohnungen.
BastianBW07.07.19 16:58
Es geht erst mal um eine Bauvoranfrage.
Da das alte Haus abrissreif ist, wollte ich eben eine Bauvoranfrage stellen um sicherzugehen ob ich auch wieder wie Bestand bauen dürfte.
Müsste ich rechts und links 5m Abstand halten, wären ja nur 6m übrig.
Wie wird das in der Regel gehandhabt wenn es keinen Bebauungsplan gibt und alle anderen Häuser in der Straße auch auf der Grenze stehen?
Die Nachbarn haben zum Beispiel die Hausseite auf der Grenze und L-förmig eine Scheune anschließend von welcher die Stirnseite auch auf der Gegenüberliegenden Grenze steht.
Ja das Haus soll später eventuell teilbar sein, wenn der Platz nicht mehr benötigt wird.
Da das alte Haus abrissreif ist, wollte ich eben eine Bauvoranfrage stellen um sicherzugehen ob ich auch wieder wie Bestand bauen dürfte.
Müsste ich rechts und links 5m Abstand halten, wären ja nur 6m übrig.
Wie wird das in der Regel gehandhabt wenn es keinen Bebauungsplan gibt und alle anderen Häuser in der Straße auch auf der Grenze stehen?
Die Nachbarn haben zum Beispiel die Hausseite auf der Grenze und L-förmig eine Scheune anschließend von welcher die Stirnseite auch auf der Gegenüberliegenden Grenze steht.
Ja das Haus soll später eventuell teilbar sein, wenn der Platz nicht mehr benötigt wird.
Escroda07.07.19 17:10
BastianBW schrieb:
Wie wird das in der Regel gehandhabt wenn es keinen Bebauungsplan gibt und alle anderen Häuser in der Straße auch auf der Grenze stehen?Dann liegt eine geschlossene Bauweise vor und der Neubau muss auch auf die Grenzen. Dein östlicher Nachbar steht aber nicht auf der Grenze sondern in einem heute nicht mehr zulässigen Abstand. Da ist die Bauvoranfrage genau der richtige Weg, um die Sichtweise der Behörde zu erfahren. Wie gesagt, die planungsrechtliche Beurteilung im Altbestand ist sehr schwierig und führt oft zu bauordnungsrechtlichen Abweichungen, die dann gut zu begründen sind.BastianBW07.07.19 17:41
Escroda schrieb:
Dann liegt eine geschlossene Bauweise vor und der Neubau muss auch auf die Grenzen. Dein östlicher Nachbar steht aber nicht auf der Grenze sondern in einem heute nicht mehr zulässigen Abstand. Da ist die Bauvoranfrage genau der richtige Weg, um die Sichtweise der Behörde zu erfahren. Wie gesagt, die planungsrechtliche Beurteilung im Altbestand ist sehr schwierig und führt oft zu bauordnungsrechtlichen Abweichungen, die dann gut zu begründen sind.Vielen Dank für die Info. Also sollte das Haus eher direkt auf die Grenze und nicht dem Nachbarn gleich getan.
Der befreundete Bauing wurde erst mal angefragt um eben den Teil der Bauvoranfrage zu erledigen, damit das alte Haus möglichst bald abgerissen werden kann.
Dessen Zustand ist nämlich mehr als besorgniserregend.
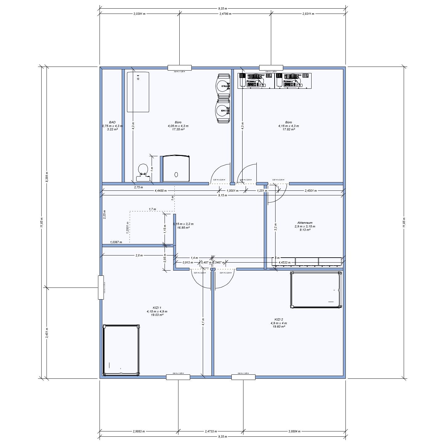
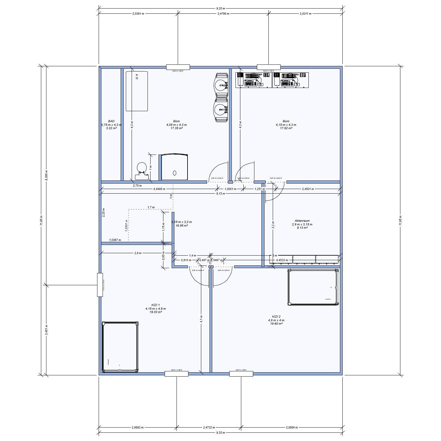
Die Grundrisse oben sind von Hand gezeichnet auf der Position des momentanen Hauses.
Es geht erst mal darum einen passenden Grundriss (Zimmeraufteilung und Größe etc) festzulegen. Es ist alle noch nichts finales weshalb ich mir hier auch weitere Inputs und Meinungen anhören will.
Ähnliche Themen