ᐅ Grundriss Tipps zur Verbesserung Einfamilienhaus mit 211m2 Wohnfläche
Erstellt am: 24.01.22 08:16
L
Lacher07Bebauungsplan/Einschränkungen
Größe des Grundstücks 914m2
Hang: Nein
Geschossigkeit: 2 + Dachboden (nicht ausgebaut)
Dachform: Walmdach
Stilrichtung -
Ausrichtung Richtung: Süden
Anforderungen der Bauherren
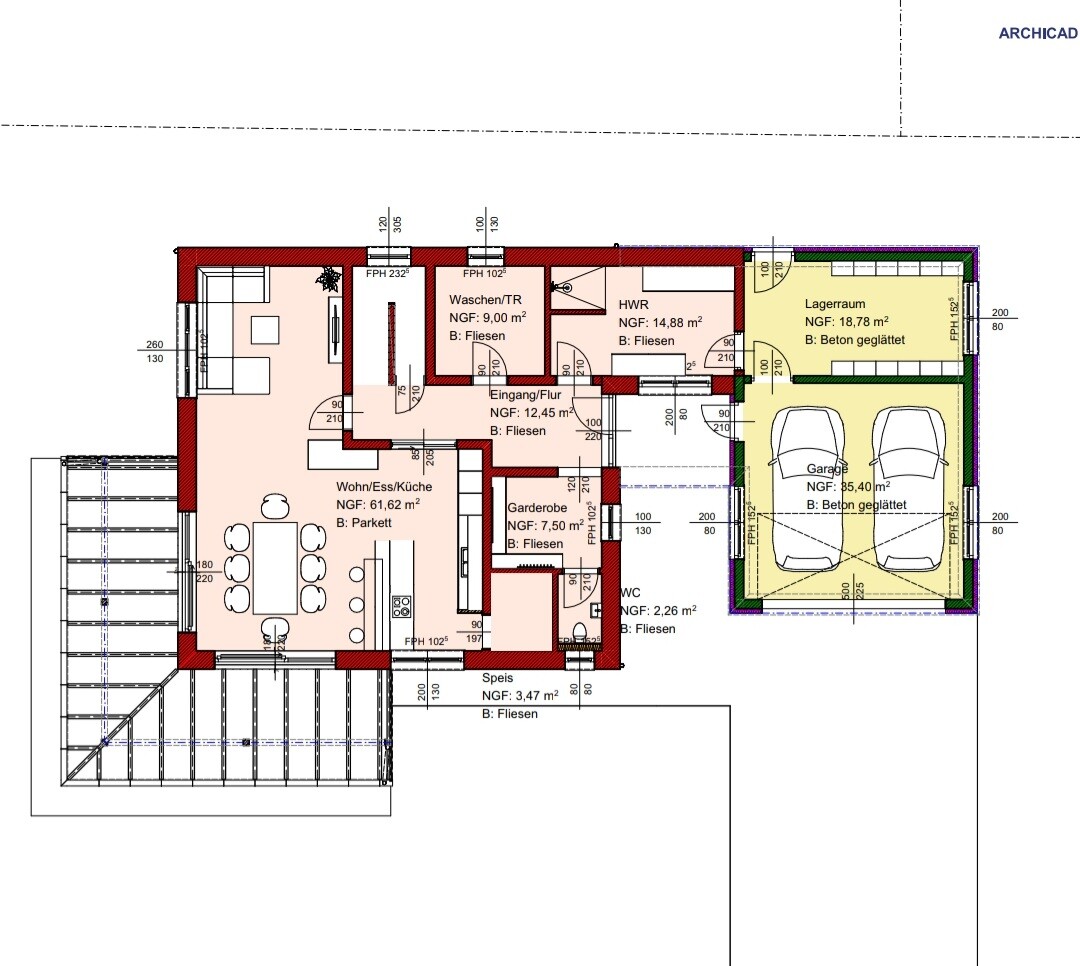
Keller, Geschosse: ohne Keller, 2 Geschosse, Dachboden nicht ausgebaut, aber begehbar
Anzahl der Personen, Alter: 26+24, 1 Hund und 2 geplante Kinder
Raumbedarf im EG, OG: EG 100m2, OG 100m2
Büro: Familiennutzung oder Homeoffice?: Nur Familiennutzung(wird auch als Gästezimmer genutzt)
Schlafgäste pro Jahr: Keine
offene oder geschlossene Architektur: offene
konservativ oder moderne Bauweise: eher modern
offene Küche, Kochinsel: offene Küche mit Kochinsel
Anzahl Essplätze: 6-8
Kamin: ja
Balkon, Dachterrasse: nein
Garage, Carport: Garage für 2 Autos + Geräteraum
Hausentwurf
Von wem stammt die Planung:
Freund(Architekt in Ausbildung)
Preisschätzung lt Architekt/Planer:
500.000€
Persönliches Preislimit fürs Haus, inkl Ausstattung:
ca. 500.000€ (Grundstück schon vorhanden)
favorisierte Heiztechnik:
Wärmepumpe mit Tiefenbohrung
Wenn Ihr verzichten müsst, auf welche Details/Ausbauten
-könnt Ihr verzichten: Büro im OG
-könnt Ihr nicht verzichten: -
Warum ist der Entwurf so geworden, wie er jetzt ist? ZB
Ein Gemisch aus vielen Beispielen aus div. Magazinen.
Von Freunden und Familie.
Wir sind 2 Personen + 1 Hund, geplant sind 2 Kinder.
Wir würden gerne auf einen Keller verzichten - reicht der Stauraum aus?
Straßenzufahrt ist im Süden und Terrasse würden wir auch im Süden vor dem Haus planen.
Würden uns über Meinungen und Tipps zur Verbesserung sehr freuen!


Größe des Grundstücks 914m2
Hang: Nein
Geschossigkeit: 2 + Dachboden (nicht ausgebaut)
Dachform: Walmdach
Stilrichtung -
Ausrichtung Richtung: Süden
Anforderungen der Bauherren
Keller, Geschosse: ohne Keller, 2 Geschosse, Dachboden nicht ausgebaut, aber begehbar
Anzahl der Personen, Alter: 26+24, 1 Hund und 2 geplante Kinder
Raumbedarf im EG, OG: EG 100m2, OG 100m2
Büro: Familiennutzung oder Homeoffice?: Nur Familiennutzung(wird auch als Gästezimmer genutzt)
Schlafgäste pro Jahr: Keine
offene oder geschlossene Architektur: offene
konservativ oder moderne Bauweise: eher modern
offene Küche, Kochinsel: offene Küche mit Kochinsel
Anzahl Essplätze: 6-8
Kamin: ja
Balkon, Dachterrasse: nein
Garage, Carport: Garage für 2 Autos + Geräteraum
Hausentwurf
Von wem stammt die Planung:
Freund(Architekt in Ausbildung)
Preisschätzung lt Architekt/Planer:
500.000€
Persönliches Preislimit fürs Haus, inkl Ausstattung:
ca. 500.000€ (Grundstück schon vorhanden)
favorisierte Heiztechnik:
Wärmepumpe mit Tiefenbohrung
Wenn Ihr verzichten müsst, auf welche Details/Ausbauten
-könnt Ihr verzichten: Büro im OG
-könnt Ihr nicht verzichten: -
Warum ist der Entwurf so geworden, wie er jetzt ist? ZB
Ein Gemisch aus vielen Beispielen aus div. Magazinen.
Von Freunden und Familie.
Wir sind 2 Personen + 1 Hund, geplant sind 2 Kinder.
Wir würden gerne auf einen Keller verzichten - reicht der Stauraum aus?
Straßenzufahrt ist im Süden und Terrasse würden wir auch im Süden vor dem Haus planen.
Würden uns über Meinungen und Tipps zur Verbesserung sehr freuen!
A
allstar8324.01.22 08:27Glaube auf ersten schnellen Blick dass hier noch einiges an Einsparpotenzial vorhanden ist ohne dass das euch wehtut.
Die Speisekammer könnte locker als Küchenschränke realisiert werden. Wenn diese dort integriert wird ergeben sich für den Eingangsbereich weitere Möglichkeiten ... Bestimmt 1m in Breite an Platzeinsparung möglich wenn die Dusche etc. dann noch etwas angepasst wird.
Ein Ausgang über Küche auf Terrasse ist echt cool. Finden wir zumindest.

Die Speisekammer könnte locker als Küchenschränke realisiert werden. Wenn diese dort integriert wird ergeben sich für den Eingangsbereich weitere Möglichkeiten ... Bestimmt 1m in Breite an Platzeinsparung möglich wenn die Dusche etc. dann noch etwas angepasst wird.
Ein Ausgang über Küche auf Terrasse ist echt cool. Finden wir zumindest.
wenn Architekten schätzen 🙄
Und da ist noch nicht mal der Bagger angerollt, also keine Baunebenkosten, keine DG, keine Außenanlagen…
Lacher07 schrieb:211xx2500 €/qm=?
Preisschätzung lt Architekt/Planer:
500.000€
Persönliches Preislimit fürs Haus, inkl Ausstattung:
ca. 500.000€
Und da ist noch nicht mal der Bagger angerollt, also keine Baunebenkosten, keine DG, keine Außenanlagen…
Ähnliche Themen