Hallo zusammen
Bebauungsplan/Einschränkungen
Größe des Grundstücks: 2429 m²
Hang: leicht abschüssig nach links (wenn man von der Straße auf das Grundstück schaut)
Baufenster, Baulinie und -grenze: nur vorne und hinten 5m Grenzabstand
Grundflächenzahl: 0,4
Geschossigkeit: 1 Vollgeschoss
(Es gibt tatsächlich keine weiteren Beschränkungen wie Dachneigung o.Ä.)
Anforderungen der Bauherren
Stilrichtung, Dachform, Gebäudetyp: eig. waren 2 Vollgeschosse gewünscht -> Stadtvilla
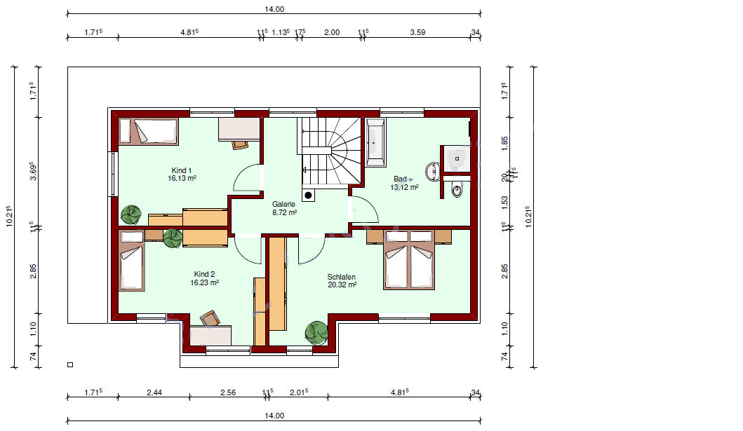
Keller, Geschosse: kein Keller, 2
Anzahl der Personen, Alter: 2 (geplant 4), 23 & 26
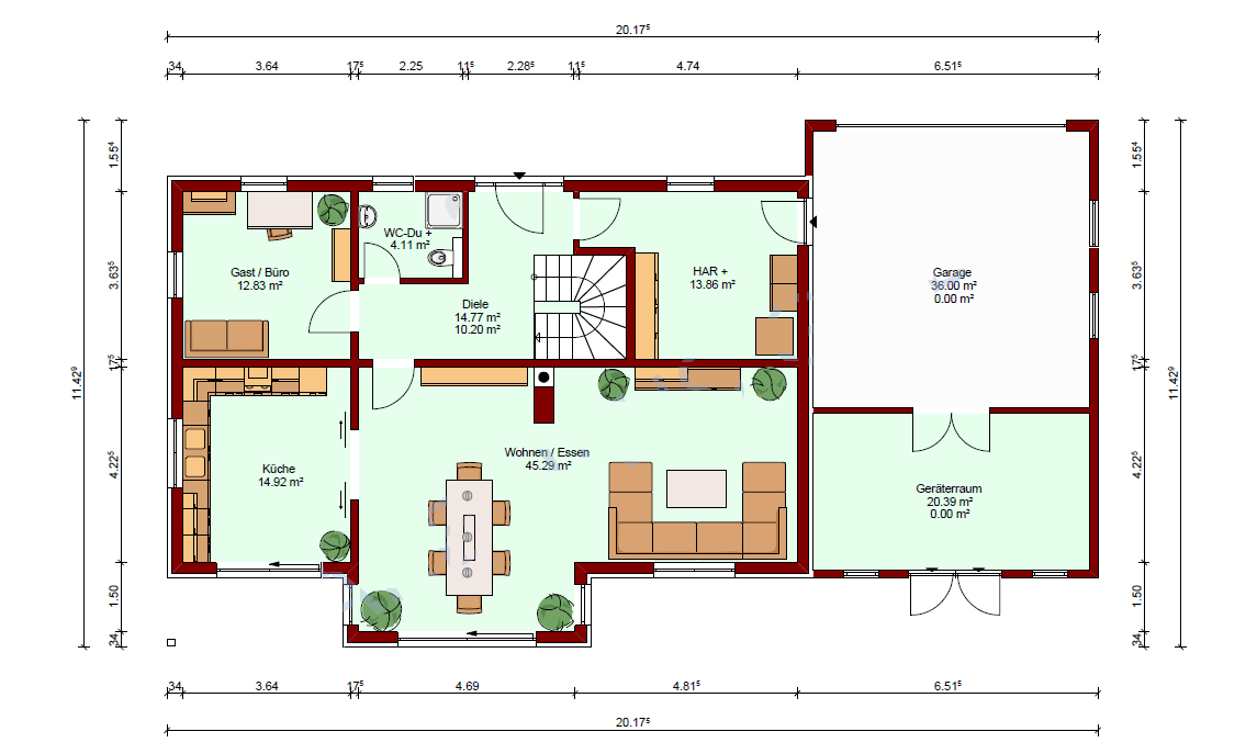
Raumbedarf im EG, OG
Büro: Familiennutzung
Schlafgäste pro Jahr: schlecht einschätzbar, eher wenig
offene oder geschlossene Architektur
konservativ oder moderne Bauweise
keine offene Küche, gerne mit Kochinsel
Anzahl Essplätze: 6 (+ erweiterbar auf 12 für Geburtstage/Weihnachten)
Kamin ja
Musik/Stereowand: 5.1 Surroundsystem
Balkon, Dachterrasse: nein
Doppelgarage
kleiner Nutzgarten
weitere Besonderheiten: es soll ein Smarthome werden
Hausentwurf
Von wem stammt die Planung: Do-it-Yourself, in 3D Ansicht durch Bauträger
Was gefällt nicht? Warum? Mehr überdachte Terrasse wäre wünschenswert
Preisschätzung lt Architekt/Planer: 265k€ für das Haus + 58k€ für Garage
Persönliches Preislimit fürs Haus, inkl Ausstattung: 300 - 320k€ (Eigenleistung im E-Bereich usw ist möglich)
favorisierte Heiztechnik: Erdwärmepumpe
Wenn Ihr verzichten müsst, auf welche Details/Ausbauten
-könnt Ihr verzichten: Größe der Kinderzimmer und des Schlafzimmers
Warum ist der Entwurf so geworden, wie er jetzt ist? monatelange Eigenplanung
Was ist die wichtigste/grundlegende Frage zum Grundriss in 130 Zeichen zusammengefasst?
Grundsätzlich finden wir den Grundriss schön. Natürlich wäre es mit Hinblick auf die Kosten schön, wenn wir den einen oder anderen m² einsparen könnten ohne merklich Wohnraum zu verlieren. Genau hier liegt der Knackpunkt. Ist der Grundriss praktisch? Oder könnte man durch kleine Veränderungen mehr rausholen (an Platz/Komfort/Kosten)?
Die Datei Grundriss 2 zeigt unseren geplanten Grundriss im Grundstück mit dem ungefähren Sonnenlauf. Bei Draufsicht linksseitig steht bereits ein Bungalow. Rechtsseitig geht's zunehmend abschüssig runter und dort ist bis jetzt noch nichts gebaut. Dort sind dann aber 2 Vollgeschosse möglich. Bäume sind nicht vorhanden. Das Grundstück besteht nur aus Wiese.
Ich hoffe das Gröbste habe ich zusammengetragen und freue mich auf euer Feedback.
Gruß denz


Bebauungsplan/Einschränkungen
Größe des Grundstücks: 2429 m²
Hang: leicht abschüssig nach links (wenn man von der Straße auf das Grundstück schaut)
Baufenster, Baulinie und -grenze: nur vorne und hinten 5m Grenzabstand
Grundflächenzahl: 0,4
Geschossigkeit: 1 Vollgeschoss
(Es gibt tatsächlich keine weiteren Beschränkungen wie Dachneigung o.Ä.)
Anforderungen der Bauherren
Stilrichtung, Dachform, Gebäudetyp: eig. waren 2 Vollgeschosse gewünscht -> Stadtvilla
Keller, Geschosse: kein Keller, 2
Anzahl der Personen, Alter: 2 (geplant 4), 23 & 26
Raumbedarf im EG, OG
Büro: Familiennutzung
Schlafgäste pro Jahr: schlecht einschätzbar, eher wenig
offene oder geschlossene Architektur
konservativ oder moderne Bauweise
keine offene Küche, gerne mit Kochinsel
Anzahl Essplätze: 6 (+ erweiterbar auf 12 für Geburtstage/Weihnachten)
Kamin ja
Musik/Stereowand: 5.1 Surroundsystem
Balkon, Dachterrasse: nein
Doppelgarage
kleiner Nutzgarten
weitere Besonderheiten: es soll ein Smarthome werden
Hausentwurf
Von wem stammt die Planung: Do-it-Yourself, in 3D Ansicht durch Bauträger
Was gefällt nicht? Warum? Mehr überdachte Terrasse wäre wünschenswert
Preisschätzung lt Architekt/Planer: 265k€ für das Haus + 58k€ für Garage
Persönliches Preislimit fürs Haus, inkl Ausstattung: 300 - 320k€ (Eigenleistung im E-Bereich usw ist möglich)
favorisierte Heiztechnik: Erdwärmepumpe
Wenn Ihr verzichten müsst, auf welche Details/Ausbauten
-könnt Ihr verzichten: Größe der Kinderzimmer und des Schlafzimmers
Warum ist der Entwurf so geworden, wie er jetzt ist? monatelange Eigenplanung
Was ist die wichtigste/grundlegende Frage zum Grundriss in 130 Zeichen zusammengefasst?
Grundsätzlich finden wir den Grundriss schön. Natürlich wäre es mit Hinblick auf die Kosten schön, wenn wir den einen oder anderen m² einsparen könnten ohne merklich Wohnraum zu verlieren. Genau hier liegt der Knackpunkt. Ist der Grundriss praktisch? Oder könnte man durch kleine Veränderungen mehr rausholen (an Platz/Komfort/Kosten)?
Die Datei Grundriss 2 zeigt unseren geplanten Grundriss im Grundstück mit dem ungefähren Sonnenlauf. Bei Draufsicht linksseitig steht bereits ein Bungalow. Rechtsseitig geht's zunehmend abschüssig runter und dort ist bis jetzt noch nichts gebaut. Dort sind dann aber 2 Vollgeschosse möglich. Bäume sind nicht vorhanden. Das Grundstück besteht nur aus Wiese.
Ich hoffe das Gröbste habe ich zusammengetragen und freue mich auf euer Feedback.
Gruß denz
R
RobsonMKK10.11.17 16:19Zaba12 schrieb:
Im Moment rechnet man mit 1800€-2000€ der qm Wohnfläche, oder?Aber nicht in Meck-PommDer Eingangsbereich ist nicht so meins. Man steht vor der Treppe und fliegt fast über die ersten Stufen. Aber ok, mit ordentlich Geländer kommt man gut dran vorbei.
Wenn Ihr m² sparen wollt, dann einfach in der Breite zusammen schieben, würde ich sagen. Das Wohnzimmer kann gut nachlassen, das Schlafzimmer oben auch, ein HAR mit 14 m² ist auch überdimensioniert und im Bad kann man sich auch sehr gut auf 10m² waschen - wenn man das blöde T wegmacht. 1m oder gar mehr geht da bestimmt.
Wenn Ihr m² sparen wollt, dann einfach in der Breite zusammen schieben, würde ich sagen. Das Wohnzimmer kann gut nachlassen, das Schlafzimmer oben auch, ein HAR mit 14 m² ist auch überdimensioniert und im Bad kann man sich auch sehr gut auf 10m² waschen - wenn man das blöde T wegmacht. 1m oder gar mehr geht da bestimmt.
Ähnliche Themen