Grundriss Staffelgeschoss - Ist der so praktisch?

5,00 Stern(e) 5 Votes
Zuletzt aktualisiert 21.11.2025
Sie befinden sich auf der Seite 7 der Diskussion zum Thema: Grundriss Staffelgeschoss - Ist der so praktisch?
>> Zum 1. Beitrag <<

11ant

11ant

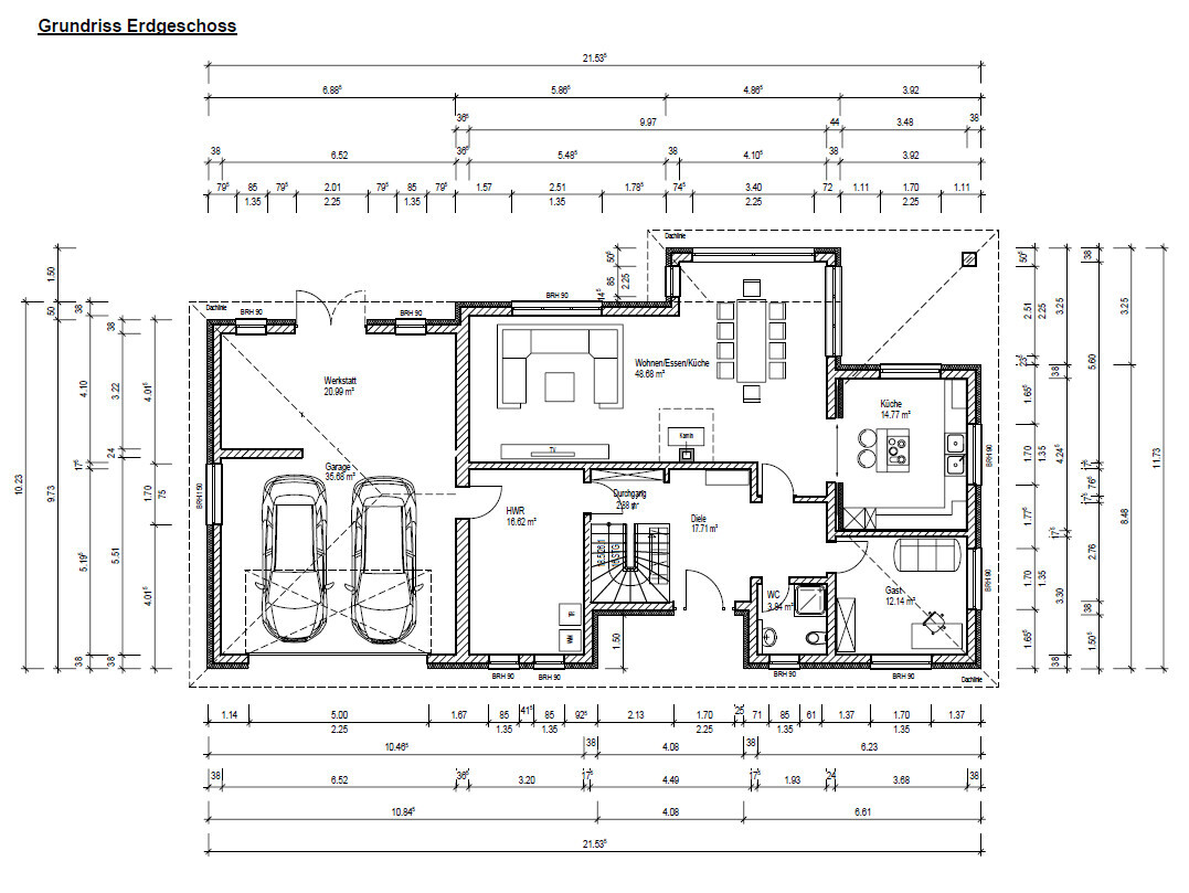
Gerade ist mir eingefallen, man könnte ja auch die Werkstatt nur halb so groß gestalten.
Die Wand vor PKW1 (der rechte) weg lassen und dort die Fahrräder (die müssen ja auch noch irgendwo hin) und das Motorrad platzieren und die Werkstatt Werkstatt sein lassen.
Eine Werkbank braucht ja keine Trennwand. Gerade wenn schon wegen des Motorrades Fahrzeugabstellen und Werkstattplatz fließend ineinander übergehen, macht das Sinn, auch keine Trennwand zu bauen. Die Wand erzeugt nur mehr Platzbedarf für Durchgangsflächen, die man dann davor und dahinter (also doppelt) braucht.

Die Breite aufbohren würde ich nicht: man kann das Motorrad auch mal durchschieben, wenn eines der Autos gerade nicht drinsteht. Und daß bei Regen mal auf beiden Fahrzeugseiten in der Garage ein- bzw. ausgestiegen werden will, passiert auch nicht mit zwei Autos im selben Moment. Alle eventuellen Komfortabstände zusammengerechnet, wird die Garage sonst leicht größer als der Menschenwohnbereich. Bei so viel Tamtam um die Töfftöffs wedelt im Verhältnis der Schwanz mit dem Hund. Sechseinhalb Meter Innenbreite wie geplant sind absolut schon First Class.
 
D

denz.

Eine Werkbank braucht ja keine Trennwand. Gerade wenn schon wegen des Motorrades Fahrzeugabstellen und Werkstattplatz fließend ineinander übergehen, macht das Sinn, auch keine Trennwand zu bauen. Die Wand erzeugt nur mehr Platzbedarf für Durchgangsflächen, die man dann davor und dahinter (also doppelt) braucht.
Also meinst du sollte ich dort überhaupt keine Wand stelle? (also zwischen Werkstatt und Garage)

Die Breite aufbohren würde ich nicht: man kann das Motorrad auch mal durchschieben, wenn eines der Autos gerade nicht drinsteht.
Naja das ist unpraktisch. Ich möchte ja nicht erst ein Auto rausfahren, bevor ich die Motorradtour starte. Alternative wäre vllt hinten raus und um die Garage rum zur Straße, Platz wäre da, allerdings muss das dann ja evtl. auch alles befestigt werden.


Und daß bei Regen mal auf beiden Fahrzeugseiten in der Garage ein- bzw. ausgestiegen werden will, passiert auch nicht mit zwei Autos im selben Moment. Alle eventuellen Komfortabstände zusammengerechnet, wird die Garage sonst leicht größer als der Menschenwohnbereich. Bei so viel Tamtam um die Töfftöffs wedelt im Verhältnis der Schwanz mit dem Hund. Sechseinhalb Meter Innenbreite wie geplant sind absolut schon First Class.
Ja ich hab mich auch schon gefragt wie alle anderen das hinkriegen mit "so schmalen" Garagen.
Aber ich will mich im Nachhinein halt auch nicht ärgern einen halben Meter zu schmal gebaut zu haben nur um 2k€ zu sparen.
Wie gesagt rechts braucht man nun mal ein bisschen Platz um aus dem Hauswirtschaftsraum zur Werkstatt oder dem anderen Auto zu kommen. Da sollte also schon 1 m Platz sein.
Wenn ich jetzt die bereits geplanten 6,50 m nehme: Minus die beiden Autos (je 2m) sind 2,50 m, minus 1m rechts: 1,50 m, bleiben 0,75 m zwischen den Autos und links zur Wand. Das reicht zum Türen öffnen. Aber ich kann die Außenwand neben dem linken PKW nicht nutzen. Wo packen alle anderen ihre Winterreifen und sonstiges Zeug so hin?
 
11ant

11ant

Wo packen alle anderen ihre Winterreifen und sonstiges Zeug so hin?
Bei einer so großen Werkstatt muß das doch nicht auch noch neben die Autos.

Also meinst du sollte ich dort überhaupt keine Wand stelle? (also zwischen Werkstatt und Garage)
Ja, mindestens keine durchgängige. Pfeiler an den Seiten und ein Unterzug sehe ich aber schon, wenn Du den weiteren Meter Breite noch haben willst.

Naja das ist unpraktisch. Ich möchte ja nicht erst ein Auto rausfahren, bevor ich die Motorradtour starte.
Ich meinte, daß im Normalfall nicht beide Autos wegen jeder einzelnen Stunde des Nichtgebrauchs gleich hereingefahren werden. In den meisten Doppelgaragen die ich kenne kommt mindestens ein Auto nur zum Schlafen herein und darf tagsüber draußen spielen. Wenn allerdings der Zweitwagen wirklich nur Zweitwagen ist und der Erstwagen nur ein Winterkennzeichen hat, sieht das anders aus, und dann braucht man eine breitere Gasse dazwischen. Ich rechne wie folgt: S-Klasse und Golf, einer vorwärts und einer rückwärts bedeutet Fahrertüren in der Mittelgasse; 40 cm (inkl. Spiegelbreite) an jeder Außenseite, das läßt (wiederum: Spiegel hineinragend) satte 2 m Mittelgasse bei 6,50 m.
 
D

denz.

Also bspw. so:

Grundriss Erdgeschoss: Wohn-/Essbereich, Küche, Garage, Werkstatt, Diele, Gäste-WC.


Dann habe ich quasi noch eine halbe Wand zum Stellen von Regalen o.Ä.

Und die satinierte Scheibe, dann quasi beim Posedt der Treppe, also neben der Hauseingangstür nur höher.
 
C

Censeo

"Hausentwurf
Von wem stammt die Planung: Do-it-Yourself,"

Das sieht man bsw. am Eingangsbereich. Anstelle eines schönen, repräsentativen Eingangsbereiches, schaut man auf die Garderobe, die ein Fachmann eher etwas versteckt hätte.

Hauswirtschaftsraum, Küche und WC hätte ein Fachmann wegen der Wasser-Zu- und Ableitungen direkt nebeneinander gelegt.

Statt die Sitzgruppe so auszurichten, dass sich den darauf verweilenden ein grosszügiges Sichtfeld bietet, wird der Blick durch die rechtsseitige sowie direkt davorliegende Wand stark eingeengt. So baut man heutzutage nicht einmal im Sozialen Wohnungsbau.
 
Zuletzt aktualisiert 21.11.2025
Im Forum Grundrissplanung / Grundstücksplanung gibt es 2535 Themen mit insgesamt 87982 Beiträgen


Ähnliche Themen zu Grundriss Staffelgeschoss - Ist der so praktisch?
Nr.ErgebnisBeiträge
1 2 Vollgeschosse, Durchgang Garage, Hauswirtschaftsraum unter Treppe 25
2Ergänzung von Garage & Werkstatt - Tipps? - Seite 218
3Zugang von der Garage in den Hauswirtschaftsraum 49
4Wie Gebäude platzieren? Haus Terrasse Garage Werkstatt 24
5Nebeneingangstür Garage / Haus, Hauswirtschaftsraum Garagenverordnung Niedersachsen - Seite 314
6Grundriss Einfamilienhaus / Garage im EG? 10
7Lage von Haus & Garage im Baufenster planen *Vorplanung* - Seite 15129
8Grundriss 140 m2 Einfamilienhaus mit Garage - Hausausrichtung ok? - Seite 218
9Grundriss: 150qm Einfamilienhaus+Einliegerwohnung - Carport / Garage + Schuppen / Werkstatt - Seite 745
10Reicht der Hauswirtschaftsraum auch als Abstellkammer aus? - Seite 422
11Haus ohne Garage und Keller? Ausbau Dachboden? Fresswarze? - Seite 585
12Erster Selbstentwurf - taugt das was oder kompletter Mist? - Seite 217
13Beheizung Garage. Was ist die beste / günstigste Lösung? 10
14Grundrissentwurf eines Passivhauses 170m² mit Garage - Seite 218
15Grundriss mit Garage auf Grundstück realisierbar? - Seite 329
16Einfamilienhaus mit Einliegerwohnung & Garage 14
17Grundriss Einfamilienhaus mit Garage, eigenplanung - Seite 217
18Ohne Keller - wohin mit der Werkstatt/Hobbyraum (Bilder?) 11
19Einfamilienhaus 145qm mit Garage ohne Keller 25
20Grundriss, längliches Einfamilienhaus, integrierte Garage kein Keller 16

Oben