Grundriss Staffelgeschoss - Ist der so praktisch?

5,00 Stern(e) 5 Votes
Zuletzt aktualisiert 24.11.2025
Sie befinden sich auf der Seite 5 der Diskussion zum Thema: Grundriss Staffelgeschoss - Ist der so praktisch?
>> Zum 1. Beitrag <<

D

denz.

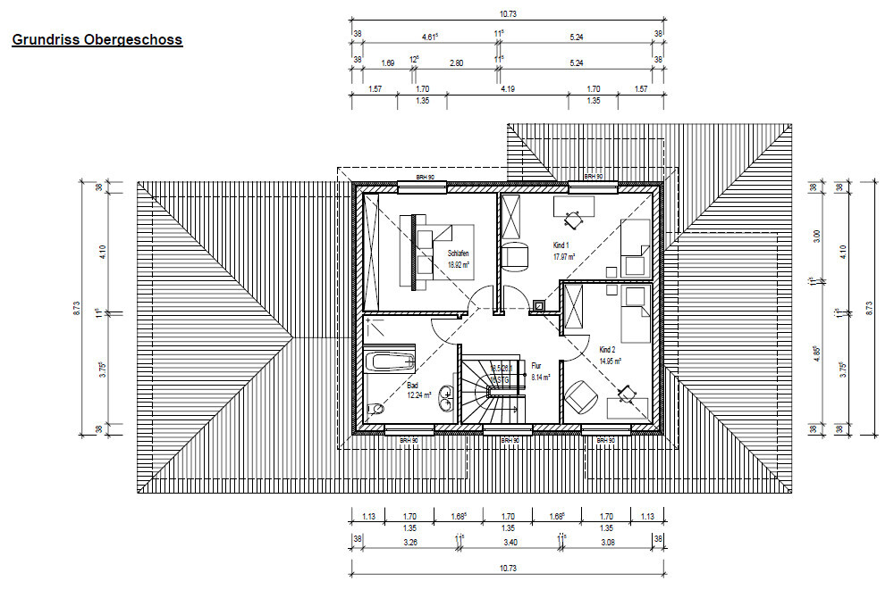
So hier nun der 2. Entwurf unseres GUs:

Grundriss Erdgeschoss: Garage, Werkstatt, Wohnen/Essen/Küche, Diele, Gast, WC, HWR


Obergeschoss-Grundriss mit Schlafen, Kind 1, Kind 2, Bad, Flur und Treppe.


Drei Ansichten eines modernen Einfamilienhauses mit Garage, vielen Fenstern und einem Eingang.

Das finden wir soweit ganz schick. Dazu will der GU nun eine Kostenaufstellung liefern - wir sind gespannt.
Was sagt ihr dazu?
 
kaho674

kaho674

Der Schornstein sollte oben in die Ecke des Kinderzimmers verschoben werden - unten entsprechend.

Dünne Wände oben fänd ich auch schlecht.

Hauswirtschaftsraum find ich recht groß - brauch man das?

Zwei Türen am Durchgang nerven - die zum Flur hin würd ich weglassen.

Treppe drehen - brächte oben weniger Flur und unten den Schmutzbreich vom Antritt weg.
 
D

denz.

Ok. D.h. die Wände im OG sollten eher in 17,5 ausgeführt werden?
zentrale Kontrollierte-Wohnraumlüftung soll verbaut werden. Muss ich dann mal schauen wo die Rohre geplant werden.

Kamin verschieben: Mal schauen. Momentan sehe ich das nicht so, weil der Kamin dann unten noch weiter von der Couch wegrückt. Zumal ich das oben eigentlich nicht schlimm finde. So entsteht oben doch noch eine Nische zum Abstellen.

Hauswirtschaftsraum soll schon etwas größer sein, aber du hast recht 2 m² weniger würden auch nicht schaden. Das hat sich halt so ergeben. Vielleicht nehmen wir bei der Hausbreite noch einen halben Meter weg und zwar im Wohnbereich. Dann würde der Hauswirtschaftsraum entsprechend auch einen halben Meter schmaler werden.

Zwei Türen am Durchgang: Das ist mir auch schon aufgefallen. Ich denke wir werden die einsparen (was zum Sparen gefunden ).

Treppe drehen: Sehr gute Idee!
 
O

Otus11

Ok. D.h. die Wände im OG sollten eher in 17,5 ausgeführt werden?
zentrale Kontrollierte-Wohnraumlüftung soll verbaut werden. Muss ich dann mal schauen wo die Rohre geplant werden.
17,5er Kalksandstein ist jetzt leider auch nicht so üppig. Denn der ist zudem innen heute per se auch noch meist hohl... (2-3 vertikale Röhren).

Ausführung der Wand im OG mutmaßlich wie folgt:
Lüftungskanal im Beton der Decke verbuddelt, dann vertikal die bis zur Zu- oder Abluftöffnung im Raum die Wand hoch, wo dafür gern ein fetter "Graben" die Wand hoch geführt wird (1/2 Steinbreite schnell mit der Hilti weggestemmt; dabei wird der ca. 8 cm hohe Lüftungskanal in den Graben gelegt, Schaum und Spachtel drüber, fertig...

Aus Sicht der Baufirmen gibt es halt keine Vorgaben zum Schallschutz im Einfamilienhaus, nur ansatzweise im Mehrfamilienhaus.
 
Zuletzt bearbeitet:
Zuletzt aktualisiert 24.11.2025
Im Forum Grundrissplanung / Grundstücksplanung gibt es 2536 Themen mit insgesamt 88009 Beiträgen


Ähnliche Themen zu Grundriss Staffelgeschoss - Ist der so praktisch?
Nr.ErgebnisBeiträge
1 2 Vollgeschosse, Durchgang Garage, Hauswirtschaftsraum unter Treppe 25
2Kontrollierte-Wohnraumlüftung auch im Flur? Haben wir nicht - stickig 11
3Grundriss Planung Einfamilienhaus ca. 150 m² auf 913m² Grundstück - Seite 213
4Geschlossene Küche planen mit Durchgang zum Hauswirtschaftsraum 18
5Kontrollierte-Wohnraumlüftung: Luftspalt unter den Türen erforderlich? 27
6Kontrollierte-Wohnraumlüftung + Kamin + Abluft für Küche, funktioniert das? 56
7Kontrollierte-Wohnraumlüftung (Wärmerückgewinnung) + Luftbrunnen + Dunstabzug Abluft und "unabhängiger" Kamin - Seite 215
8Treppe im Flur, Grundriss steht eigentlich schon :o( - Seite 320
9Zentrale Kontrollierte-Wohnraumlüftung mit Wärmerückgewinnung: Zimmer einzeln regelbar? 20
10Wie viele Lampen im 7m langen Flur? 13
11Grundrissfrage, Garage, Treppe 33
12Schallschutztür im Hauswirtschaftsraum notwendig? Erfahrungen? 22
13Kontrollierte-Wohnraumlüftung - Man hört jedes Wort im anderen Raum - Ist das Normal? 59
14Zugang von der Garage in den Hauswirtschaftsraum - Seite 249
15Grundriss 170m2 - Hauswirtschaftsraum zu klein? Verbesserungsvorschläge? - Seite 342
16Planung HAR/Hauswirtschaftsraum - Technikpläne unbekannt - Seite 212
17Stadtvilla mit gerader Treppe, offene moderne Bauweise, 140m² 18
18Treppe im Wohnzimmer als Hype - Pro & Contra? - Seite 426
19Wohin mit der Treppe? Dachausbau Walmdachbungalow - Seite 219
20Neubau Poroton T7 MW 36,5 ohne Kontrollierte-Wohnraumlüftung - Seite 745

Oben