ᐅ Grundriss & Positionierung Einfamilienhaus ca. 150qm 2 Vollgeschosse Satteldach
Erstellt am: 17.09.24 02:04
T
toni111ypg schrieb:
Nein richtig!
Lass ihn machen und seine Erfahrungen machen. Anders geht es ja nicht.Ich lasse ihn ja, oder halte ich ihn mit meinen berüchtigten Schlägertrupps davon ab ?Mir fehlt es lediglich an Sadismus, ihn in das Messer der frustrierenden Erfahrung hinein laufen zu lassen.
Und vor allem: es ist schlicht nicht zielführend. Obergeschosse gibt es ja bereits, die dem TE gefallen / zusagen; und sie haben Erdgeschosse, die ihn nicht überzeugen. Also gilt es nützlicher herauszuarbeiten, wo deren Unzufriedenheitspunkte liegen.
Denkverbote habe ich keine ausgesprochen. Ich weise lediglich darauf hin, welche Effekte von einer "Bottom up" Entwicklung von Geschoßgrundrissen zu erwarten sind (und darauf, daß diese Effekte systemimmanent sind, also keineswegs am Laientum von Planern liegen). Das laienspezifische Moment liegt lediglich in der Denkweise, die größere Aufmerksamkeit dem wünschegewürzteren Stockwerk zuzuwenden. Der erfahrene / frustrationsscheuere Planer stellt sich stattdessen faul und leitet lieber das niederkomplexer gegliederte Stockwerk vom höherkomplexer gegliederten ab. Wer will, kann darin in einem freien Land eine überzeugungsmäßige Geschmackssache sehen. Ich teile lediglich meine Erfahrung, transparent mit der mitgelieferten Begründung, zum Selbernachvollziehen durch den mündigen Bauwilligen.
https://www.instagram.com/11antgmxde/
https://www.linkedin.com/company/bauen-jetzt/
11ant schrieb:
oder halte ich ihn mit meinen berüchtigten Schlägertrupps davon ab ?Nein, aber mit einem abgesetzten Ausrufezeichen ! Das ist quasi das gleiche, nur in digitalAlso danke erstmal fürs nachsichtige erklären der EG/OG-planungsreihenfolge, ypg und 11ant. ich werde das mal zu beherzigen versuchen, ist ja doch einiges noch zu optimieren, wie ich erkannt habe.
Technikraum oben kommt eher nicht in Frage, dafür sind wir zu wenig experimentierfreudig. Eher noch ein Technikraum-Zubau außerhalb der gedämmten Gebäudehülle -- wobei ich nicht wüsste wohin damit, würde überall im Norden stören und Licht wegnehmen. Oder was wir derzeit überlegen: Technikraum auf 6qm reduzieren, Hauswirtschaftsraum in OG, eventuelle Photovoltaik-Technik (Wechselrichter, Batterie) in Garage.
Technikraum oben kommt eher nicht in Frage, dafür sind wir zu wenig experimentierfreudig. Eher noch ein Technikraum-Zubau außerhalb der gedämmten Gebäudehülle -- wobei ich nicht wüsste wohin damit, würde überall im Norden stören und Licht wegnehmen. Oder was wir derzeit überlegen: Technikraum auf 6qm reduzieren, Hauswirtschaftsraum in OG, eventuelle Photovoltaik-Technik (Wechselrichter, Batterie) in Garage.
11ant schrieb:Wenn ich die nächsten 2 Wochen keinen gefunden habe, mache ich das, danke.
Ich suche berufsmäßig Architekten (aber diesen Monat nicht mehr, melde Dich trotzdem).
11ant schrieb:Ok, jetzt hab ich es verstanden. Trotzdem also: kein Keller
Nein, die Kellerregel beantwortet nicht die Frage, ob ein Keller nötig wäre. Sondern die Frage, wie sich die Kosten eines Kellers auf Kellerbaukosten und Geländemodellierungsersparnis aufteilen. Wenn das Grundstück tatsächlich eben ist, kostet ein Keller 100% Kellerbaukosten minus 0% ersparte L-Steine und Geländemodellierung. Dann ist im Ergebnis oberirdischer Kellerersatzraum günstiger.
11ant schrieb:Guter Punkt. Muss ich mir mal rechtlich ansehen was das bedeutet. Kurzer Weg Garten -> Einfahrt bei versperrter Garage, Lagerung für Leitern, Holz, etc. und v.a. unabhängig vom Nachbarn zu sein würden dafür sprechen.
Ein Besengang nur um das Hammerschlagsrecht nicht in Anspruch zu nehmen wenn man alle zwanzig Jahre mal die Wand streicht ist mit "Luxus" noch nett umschrieben, das grenzt schon an Dekadenz. Falls der Nachbar oder sein Nachfolger weitgehend winddicht einfriedet, hat man da eine 1a Laubsammelschneise.
H
hanghaus202320.09.24 13:48hanghaus2023 schrieb:
Tisch eben und 10 Grad sind aber schon nicht das selbe.Ich hole mal meine Bemerkung nochmal hoch. Dir ist schon klar, das 10 Grad nicht ohne sind. Gibt es einen Plan mit Höhenangaben, damit man das Gefälle sieht? Bei 10 Grad rechnet sich nach der @11ant en Regel ein Keller. Ansonsten nur mit UG und EG bauen, falls das eine Alternative ist.toni111 schrieb:
Technikraum oben kommt eher nicht in Frage, dafür sind wir zu wenig experimentierfreudig. Eher noch ein Technikraum-Zubau außerhalb der gedämmten Gebäudehülle -- wobei ich nicht wüsste wohin damit, würde überall im Norden stören und Licht wegnehmen. Oder was wir derzeit überlegen: Technikraum auf 6qm reduzieren, Hauswirtschaftsraum in OG, eventuelle Photovoltaik-Technik (Wechselrichter, Batterie) in Garage.Quatsch. Hauseinführung unten und eigentlicher Technikraum oben ist kein Experiment; Technikraum außerhalb der thermischen Hülle wäre schon eher ein solches. Den meisten (einsparungsbegehrten) Raum benötigen die Flächen für die Sicherheit der Wartungskräfte.toni111 schrieb:
Wenn ich die nächsten 2 Wochen keinen gefunden habe, mache ich das, danke.Deine Wartezeit kann nicht beginnen, bevor Du auf der Warteliste stehst.toni111 schrieb:
Guter Punkt. Muss ich mir mal rechtlich ansehen was das bedeutet. Kurzer Weg Garten -> Einfahrt bei versperrter Garage, Lagerung für Leitern, Holz, etc. und v.a. unabhängig vom Nachbarn zu sein würden dafür sprechen.Kurzfassung Hammerschlagsrecht: der Nachbar muß das Anstreichen Deiner Garagenwand dulden, Du mußt ihm Deinen Besuch mit angemessenem Vorlauf ankündigen und die von Dir zertrampelten Beete danach wiederherstellen.hanghaus2023 schrieb:
Ich hole mal meine Bemerkung nochmal hoch. Dir ist schon klar, das 10 Grad nicht ohne sind. Gibt es einen Plan mit Höhenangaben, damit man das Gefälle sieht? Bei 10 Grad rechnet sich nach der @11ant en Regel ein Keller. Ansonsten nur mit UG und EG bauen, falls das eine Alternative ist.11ant schrieb:
Ich vermute, gemeint ist, daß die Nord-Südachse auf aeronautisch 35/17 liegt, und das Gelände topografisch platt ist.Ansonsten wären 10° Geländeneigung auf zehn Meter knapp Einsachtzig entsprechend 90% Kellerbaukosten, ja.https://www.instagram.com/11antgmxde/
https://www.linkedin.com/company/bauen-jetzt/
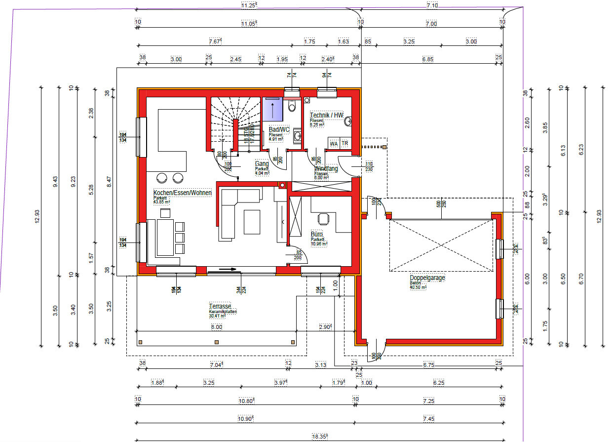
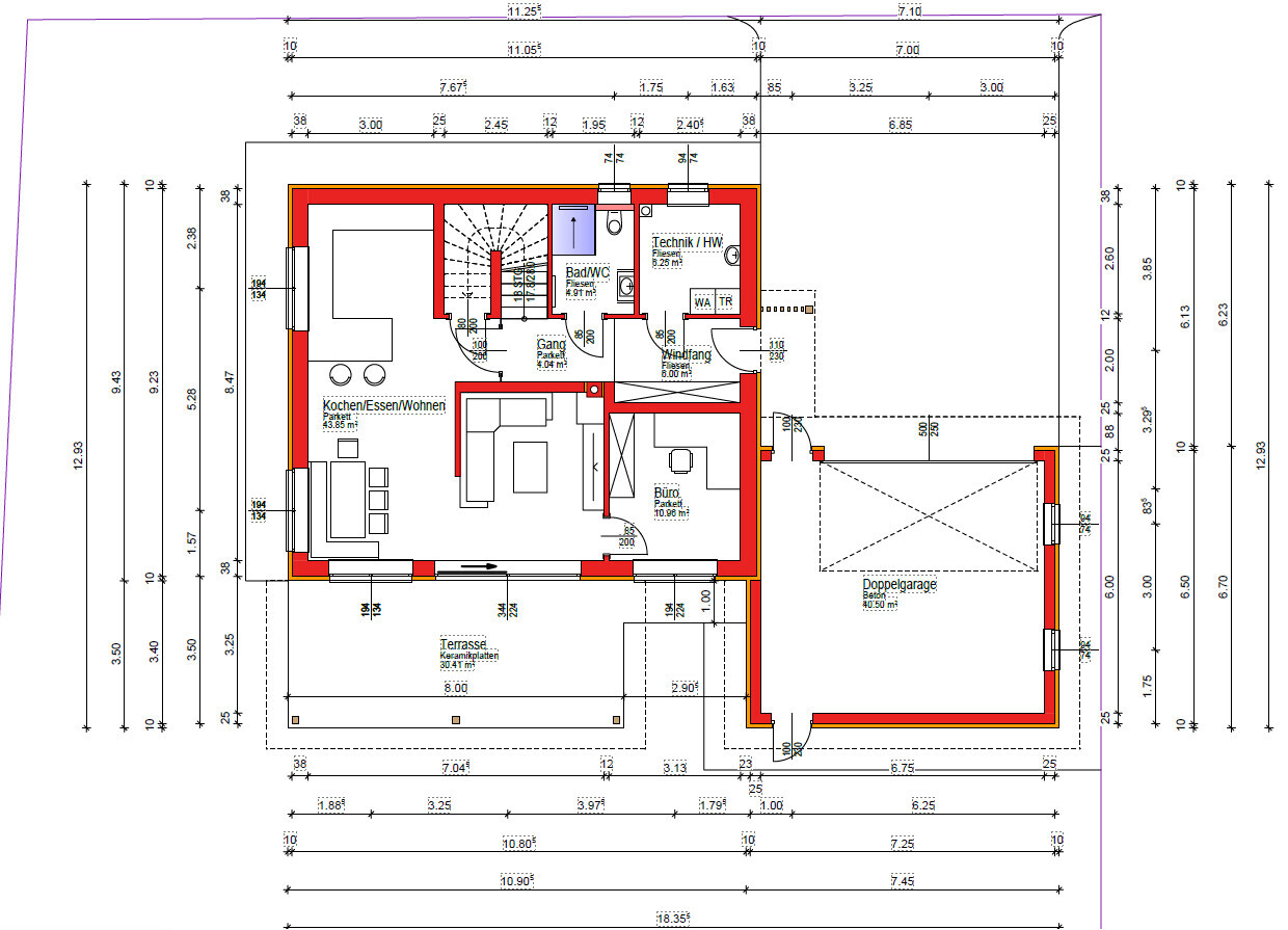
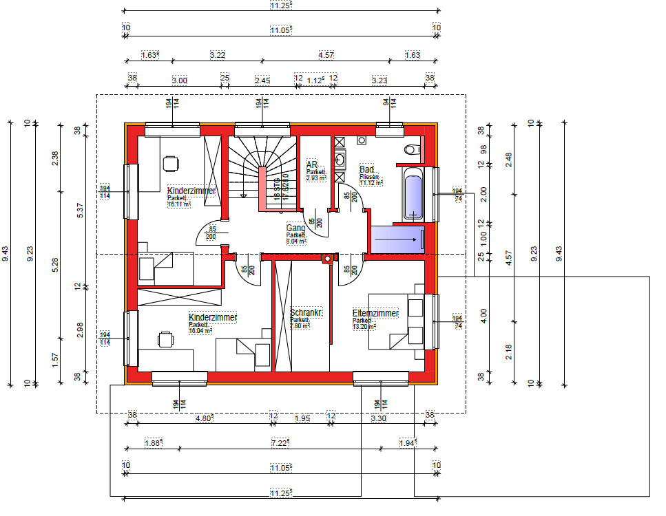
Wir haben nun den ersten Entwurf vom Planer erhalten. Im EG wurde mein Erst-Entwurf fast 1:1 übernommen, obwohl dies gar nicht gefordert war. Folgendes sollte aus unserer Sicht nun geändert werden:
EG:
- Kamin wird an Ecke der tragenden Wand zwischen Küche und Essbereich versetzt.
- Fix verbauter (Kamin-)Ofen wird mit einer Breite von 40-50cm mitgeplant, sodass dieser statt der Wand als Raumteiler zwischen Essbereich und Wohnzimmer fungiert. Länge ist noch unklar, vlt 150cm?
- Ausrichtung Couch und Fernseher umgedreht. Couch steht an Büro/Gästezimmer-Wand und Fernseher hängt an Kamin
- Küche evtl. schmales Fenster nördlich zusätzlich, nahe Hausecke.
- Flurbreite abseits von Garderobe um 10-15cm verkleinern (derzeit 140cm)
- WC/Bad in Breite reduzieren. Z.B. indem die Dusche als Nische hinten in den Technikraum hineinragt. Breite zur Tür hin dafür nur 1,2m?
- Küche: Breite entlang der Nordseite soll 3,1m statt 3m betragen, damit sich ein 65cm Eckschrank und sonst ausnahmslos 60er Schränke ausgehen.
- Küche: unklar ob Engstelle zwischen Ecke Flur und "Bar".
- Technikraum: unklar ob zu klein.
OG:
- Wäscheschacht stört vermutlich so mittig im Bad.
- Stiege: großflächiges Fenster ab Stufe
- Elternzimmer: Eingang durch Schrankraum. Schrankraumwand beginnt ab Außenwand
- Umplanungen bei Kinderzimmern bzgl. neuer Position von Kamin nötig.
- Fenster in Elternzimmer und Kinderzimmern: jeweils nur 1 größeres Fenster, nur im Süden bzw. Westen.
Außenbereich:
- Terrasse: Zu Garage hin durchgehende 3,5m-Pflasterung und Überdachung, kein "Loch". Dafür westseitig Überdachung verkürzen.
- Dekoelemente an Außenfassade und Eingangsbereich werden eher nicht realisiert. Einen Schönheitspreis wird die Außenansicht sicher nicht erhalten. Wenn kostenseitig möglich würde ich eine teilweise Fassadenverkleidung (Aluminium oder Lärchenholz?) andenken.





EG:
- Kamin wird an Ecke der tragenden Wand zwischen Küche und Essbereich versetzt.
- Fix verbauter (Kamin-)Ofen wird mit einer Breite von 40-50cm mitgeplant, sodass dieser statt der Wand als Raumteiler zwischen Essbereich und Wohnzimmer fungiert. Länge ist noch unklar, vlt 150cm?
- Ausrichtung Couch und Fernseher umgedreht. Couch steht an Büro/Gästezimmer-Wand und Fernseher hängt an Kamin
- Küche evtl. schmales Fenster nördlich zusätzlich, nahe Hausecke.
- Flurbreite abseits von Garderobe um 10-15cm verkleinern (derzeit 140cm)
- WC/Bad in Breite reduzieren. Z.B. indem die Dusche als Nische hinten in den Technikraum hineinragt. Breite zur Tür hin dafür nur 1,2m?
- Küche: Breite entlang der Nordseite soll 3,1m statt 3m betragen, damit sich ein 65cm Eckschrank und sonst ausnahmslos 60er Schränke ausgehen.
- Küche: unklar ob Engstelle zwischen Ecke Flur und "Bar".
- Technikraum: unklar ob zu klein.
OG:
- Wäscheschacht stört vermutlich so mittig im Bad.
- Stiege: großflächiges Fenster ab Stufe
- Elternzimmer: Eingang durch Schrankraum. Schrankraumwand beginnt ab Außenwand
- Umplanungen bei Kinderzimmern bzgl. neuer Position von Kamin nötig.
- Fenster in Elternzimmer und Kinderzimmern: jeweils nur 1 größeres Fenster, nur im Süden bzw. Westen.
Außenbereich:
- Terrasse: Zu Garage hin durchgehende 3,5m-Pflasterung und Überdachung, kein "Loch". Dafür westseitig Überdachung verkürzen.
- Dekoelemente an Außenfassade und Eingangsbereich werden eher nicht realisiert. Einen Schönheitspreis wird die Außenansicht sicher nicht erhalten. Wenn kostenseitig möglich würde ich eine teilweise Fassadenverkleidung (Aluminium oder Lärchenholz?) andenken.
Ähnliche Themen