Grundriss-Planung Einfamilienhaus mit rund 150 m²

4,10 Stern(e) 34 Votes
Zuletzt aktualisiert 07.10.2025
Sie befinden sich auf der Seite 8 der Diskussion zum Thema: Grundriss-Planung Einfamilienhaus mit rund 150 m²
>> Zum 1. Beitrag <<

C

chrisw81

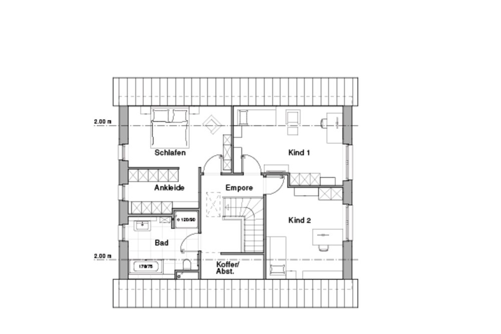
noch eine Variante:
allerdings muss hier das WZ an Tiefe opfern, wenn die Hausbreite bestehen soll. Knapp 4m finde ich aber noch ok. Dafür mehr Platz bei Gast / Hauswirtschaftsraum / Schlafzimmer.
Interessante Idee, danke!. Oben sieht es aber sehr knapp aus und es fehlt der Abstellraum. Schöner wäre schon, wenn es nur ein Bad gäbe mit direktem Zugang vom Flur. Die Ankleide finde ich gut positioniert.
Knapp 4m im WZ finde ich bei der Raumlänge schon recht wenig, es könnte dann schnell schlauchig wirken. Ein Kamin mit einer gewissen Tiefe kommt ja auch noch dazu.
 
C

chrisw81

Das sehe ich allerdings - selbst mit Eurem höheren Kniestock - bei weniger Haustiefe nicht umsetzbar, da wären Ähnlichkeiten nachher nur noch zufällig.
Ich meinte auch nur das Bad von diesem Beispiel - der Rest geht natürlich nicht. Das Bad sollte aber kein Problem und ich finde die Lösung sehr gelungen, bei der sich durch die Dusche 2 Vertiefungen Richtung Giebelseite ergeben.
 
Zuletzt aktualisiert 07.10.2025
Im Forum Grundrissplanung / Grundstücksplanung gibt es 2511 Themen mit insgesamt 87187 Beiträgen
Oben