ᐅ Grundriss Einfamilienhaus - Beurteilung
Erstellt am: 21.05.15 07:58
Hallo zusammen,
ich stelle hier mal unseren Entwurf vom Architekten, zur Diskussion, zur Verfügung. Ich würde mich über Eure
Einschätzungen freuen bzw. was nicht so gut ist und was man anders machen sollte.
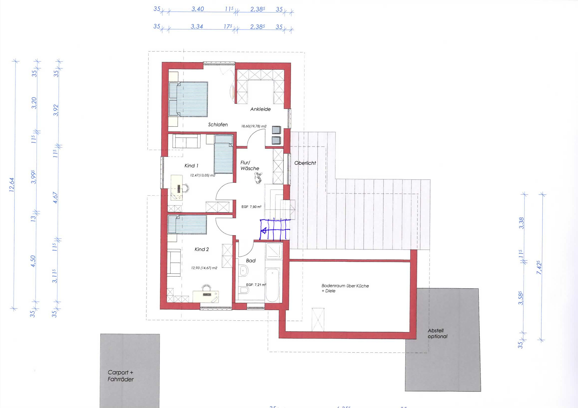
Einmal vorweg zum Grundstück: NO Ausrichtung mit Gefälle nach hinten Richtung NO ( 650 m²) , deshalb einmal eine Terrasse hinter und vor dem Haus wg. Nordausrichtung.
Der Grundriss besteht aus quasi 2 Baukörpern den linken Bauteil, welcher 2 geschossig ist und quasi dem Verlauf des Grundstückes mitgeht, sprich weiter unter liegt. Der vordere rechte Teil ist ein 1 geschossig und steht höher zum Baukörper 2. Man geht von Baukörper 1 sechs Stufen runter zu Baukörper 2 und anders nach oben herum, also ein sogenanntes Split Level Haus. Diskussion zu nicht altersgerecht wg. Stufen müssen nicht angesprochen werden, ist uns soweit klar.
Auf beiden Baukörpern ist ein Pultdach. Mir geht es in erster Linie um die Einteilung der Räume und
deren Größen. Das ganze Haus hat eine Grundfläche von 175 m² inkl. Nutzflächen. Der Abstellraum rechts am Gebäude ist erstmal optional, stand der Dinge wollen wir diesen auch machen.
Nicht von der Treppe verwirren lassen, diese wurde mit Hand eingezeichnet, das Programm hat sie nicht gedruckt 🙂
Uns gefällt der Grundriss schonmal einmal ganz gut. Was mir persönlich nicht gefällt ist das Bad oben,
ich finde es für ein Haupt Badezimmer zu klein. Unser Architekt gab den Vorschlag es auf Kosten des
angrenzenden Kinderzimmers zu vergrößern. Nachteil die Kinderzimmer werden zu klein, oder ?
Frage zur Küche, wir hätten gerne eine Kochinsel, ist dazu die Küche ausreichend dimensioniert ?
Uns war der Sichtkontakt vom Bereich Essen zum Wohnzimmer wichtig, das als Info vorab.
Und nun seit Ihr dran, vorab schonmal vielen Dank für Eure Rückinfos
Gruß
Thomas


ich stelle hier mal unseren Entwurf vom Architekten, zur Diskussion, zur Verfügung. Ich würde mich über Eure
Einschätzungen freuen bzw. was nicht so gut ist und was man anders machen sollte.
Einmal vorweg zum Grundstück: NO Ausrichtung mit Gefälle nach hinten Richtung NO ( 650 m²) , deshalb einmal eine Terrasse hinter und vor dem Haus wg. Nordausrichtung.
Der Grundriss besteht aus quasi 2 Baukörpern den linken Bauteil, welcher 2 geschossig ist und quasi dem Verlauf des Grundstückes mitgeht, sprich weiter unter liegt. Der vordere rechte Teil ist ein 1 geschossig und steht höher zum Baukörper 2. Man geht von Baukörper 1 sechs Stufen runter zu Baukörper 2 und anders nach oben herum, also ein sogenanntes Split Level Haus. Diskussion zu nicht altersgerecht wg. Stufen müssen nicht angesprochen werden, ist uns soweit klar.
Auf beiden Baukörpern ist ein Pultdach. Mir geht es in erster Linie um die Einteilung der Räume und
deren Größen. Das ganze Haus hat eine Grundfläche von 175 m² inkl. Nutzflächen. Der Abstellraum rechts am Gebäude ist erstmal optional, stand der Dinge wollen wir diesen auch machen.
Nicht von der Treppe verwirren lassen, diese wurde mit Hand eingezeichnet, das Programm hat sie nicht gedruckt 🙂
Uns gefällt der Grundriss schonmal einmal ganz gut. Was mir persönlich nicht gefällt ist das Bad oben,
ich finde es für ein Haupt Badezimmer zu klein. Unser Architekt gab den Vorschlag es auf Kosten des
angrenzenden Kinderzimmers zu vergrößern. Nachteil die Kinderzimmer werden zu klein, oder ?
Frage zur Küche, wir hätten gerne eine Kochinsel, ist dazu die Küche ausreichend dimensioniert ?
Uns war der Sichtkontakt vom Bereich Essen zum Wohnzimmer wichtig, das als Info vorab.
Und nun seit Ihr dran, vorab schonmal vielen Dank für Eure Rückinfos
Gruß
Thomas
Hauswirtschaftsraum wäre mir zu weit von Küche weg.
Bad im OG zu weit vom Schlafzimmer weg und zu klein
Das EG finde ich zu verwinkelt und die Wege weit: Wohnzimmer - Küche, Küche - WC bzw. Hauswirtschaftsraum, Büro/Gast finde ich den Zugang nicht sinnvoll
Fenster im Gäste-WC fehlt
Die Kinderzimmer so nah am Treppenaufgang zum Essbereich finde ich auch nicht optimal. Stichwort: Privatsphäre und Geräuschkulisse. Wenn ihr mal feiert, dringt jedes Geräusch nach oben und gleichzeitig könnt ihr (und eure Gäste) euer Kind vom esstisch beobachten, wenn es aufs Klo geht. Mag ja im Kindesalter noch gehen, aber wenn sie mal Teenager sind, finden die Kids es sicher sehr unangenehm sich im Schlafi den Erwachsenen zu zeigen.
Bad im OG zu weit vom Schlafzimmer weg und zu klein
Das EG finde ich zu verwinkelt und die Wege weit: Wohnzimmer - Küche, Küche - WC bzw. Hauswirtschaftsraum, Büro/Gast finde ich den Zugang nicht sinnvoll
Fenster im Gäste-WC fehlt
Die Kinderzimmer so nah am Treppenaufgang zum Essbereich finde ich auch nicht optimal. Stichwort: Privatsphäre und Geräuschkulisse. Wenn ihr mal feiert, dringt jedes Geräusch nach oben und gleichzeitig könnt ihr (und eure Gäste) euer Kind vom esstisch beobachten, wenn es aufs Klo geht. Mag ja im Kindesalter noch gehen, aber wenn sie mal Teenager sind, finden die Kids es sicher sehr unangenehm sich im Schlafi den Erwachsenen zu zeigen.
Ich kann Manu1976 nur zustimmen, mir persönlich wäre das EG auch zu verwinkelt und der Hauswirtschaftsraum in den ja so wie es aussieht auch die Heizung mit rein soll zu klein (wo soll den Bügelbrett, Deko, Saisonkleidung, Waschmaschine, Vorräte, etc. alles hin).
Macht euch auch Gedanken ob euch die Garderobengröße für vier Personen inkl. Gäste wirklich ausreicht.
Macht euch auch Gedanken ob euch die Garderobengröße für vier Personen inkl. Gäste wirklich ausreicht.
Hmm, Nordosten ist also planoben - oder?
Manus Einwendungen unterschreibe ich mal und ergänze, dass der Küchenraum sehr schlecht zu möblieren ist. Was ist mit Kühlschrank, hochgestelltem Backofen, evtl. auch Geschirrspüler etc. Außerdem ist die Küchenarbeit in die dunkelste Raumecke verbannt.
Der Essbereich ist mit 300 cm Tiefe und dan noch einem Sideboard sowie dem Terrassenausgang relativ eng, zumal der eingezeichnete Tisch wohl nur ca. 75 cm Tiefe hat.
Der Raum Schlafen/Ankleide nimmt relativ viel Grundfläche ein, bietet dafür aber relativ wenig Staumöglichkeiten.
Manus Einwendungen unterschreibe ich mal und ergänze, dass der Küchenraum sehr schlecht zu möblieren ist. Was ist mit Kühlschrank, hochgestelltem Backofen, evtl. auch Geschirrspüler etc. Außerdem ist die Küchenarbeit in die dunkelste Raumecke verbannt.
Der Essbereich ist mit 300 cm Tiefe und dan noch einem Sideboard sowie dem Terrassenausgang relativ eng, zumal der eingezeichnete Tisch wohl nur ca. 75 cm Tiefe hat.
Der Raum Schlafen/Ankleide nimmt relativ viel Grundfläche ein, bietet dafür aber relativ wenig Staumöglichkeiten.
Hallo, vielen Dank schoneinmal für die bisherigen Antworten.
Also der Grundriss hat ja eine offene Bauweise was von Uns auch so gewünscht, dadurch ist natürlich logisch das es dadurch z.B oben für die Kinder mal lauter werden kann, dennoch haben Sie Türen vor den Zimmern 😉
Die Waschmaschine und Trockner sind im unteren WC untergebracht, dadurch wird Hauswirtschaftsraum entlastet. Zusätzlich ist Stauraum über der Küche und Diele unter dem Pultdach über eine ausziehbare Treppe erreichbar das wären knapp 21m².
Das mit der Küche und dunklen Raum verstehe ich nicht, weil es ist doch die SüdWest Ausrichtung Richtung. Planoben ist NO.
Auch den Essen / Galerie Bereich fand ich nun nicht so klein, aber klar man muss mal den Tisch messen und dann schauen ob das mit der Tür nach draußen überhaupt passt. Uns war halt wichtig das wir den Tisch ausziehen können.
Elternschlafzimmer, gebe ich Euch Recht das es relativ groß ist und wenig Raum bietet. Ist halt die Frage wie man es alles anders anordnen soll.
Frage wie groß sollte ein Kinderzimmer mind. sein ? und wie groß ein Badezimmer (oben) ? Nach eurer Erfahrung heraus bzw. empfinden
Also der Grundriss hat ja eine offene Bauweise was von Uns auch so gewünscht, dadurch ist natürlich logisch das es dadurch z.B oben für die Kinder mal lauter werden kann, dennoch haben Sie Türen vor den Zimmern 😉
Die Waschmaschine und Trockner sind im unteren WC untergebracht, dadurch wird Hauswirtschaftsraum entlastet. Zusätzlich ist Stauraum über der Küche und Diele unter dem Pultdach über eine ausziehbare Treppe erreichbar das wären knapp 21m².
Das mit der Küche und dunklen Raum verstehe ich nicht, weil es ist doch die SüdWest Ausrichtung Richtung. Planoben ist NO.
Auch den Essen / Galerie Bereich fand ich nun nicht so klein, aber klar man muss mal den Tisch messen und dann schauen ob das mit der Tür nach draußen überhaupt passt. Uns war halt wichtig das wir den Tisch ausziehen können.
Elternschlafzimmer, gebe ich Euch Recht das es relativ groß ist und wenig Raum bietet. Ist halt die Frage wie man es alles anders anordnen soll.
Frage wie groß sollte ein Kinderzimmer mind. sein ? und wie groß ein Badezimmer (oben) ? Nach eurer Erfahrung heraus bzw. empfinden
Ähnliche Themen