ᐅ Grundriss Neubau Mehrfamilienhaus mit 3 Wohneinheiten, Wohnfläche ca. 350m²
Erstellt am: 29.08.24 13:40
N
nevzatc21N
nevzatc2129.08.24 13:40Hallo zusammen,
ich habe ein Grundstück erworben und würde gerne Eure Meinungen zum Entwurf hören.
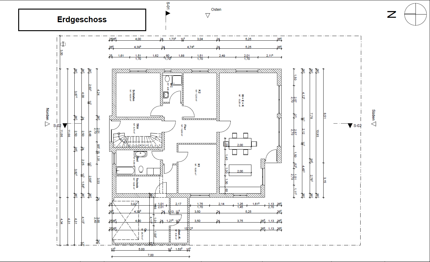
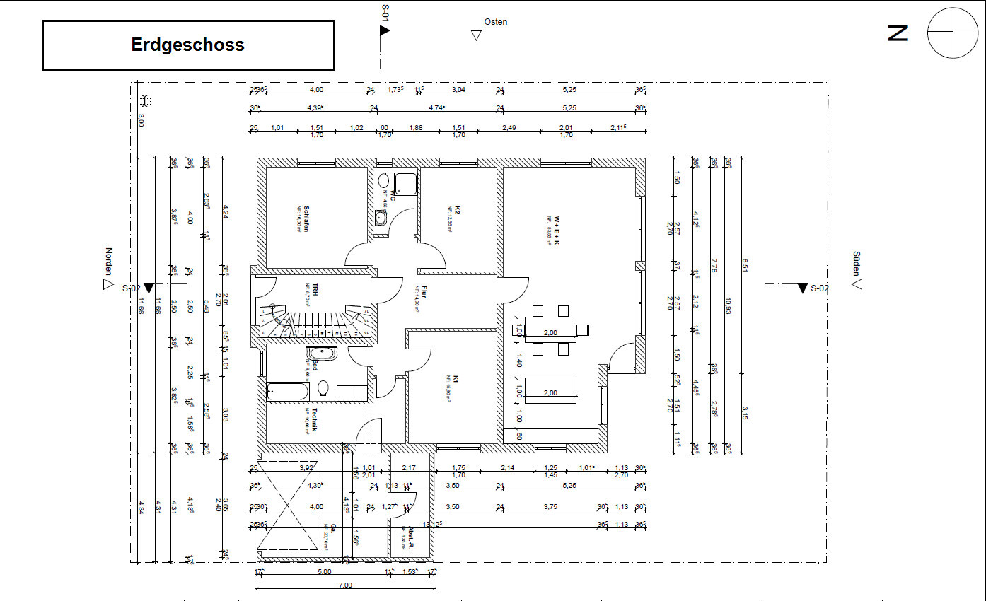
Geplant ist ein Mehrfamilienhaus mit 3 Wohneinheiten, je eine Wohnung pro Etage. Ggf. würden wir im EG-Treppenhausbereich einen Raum als Wasch-, Abstell- und Technikraum nutzen. Das Haus soll einen modernen und nützlichen Grundriss haben, idealerweise mit viel Licht und offenem Wohn-, Ess- und Kochbereich. Weiterhin ist mir sehr wichtig, dass jede Wohnung einen Balkon oder Terrasse hat auf der man gemütlich sitzen und Zeit verbringen kann.
Hier der Steckbrief:
Bebauungsplan/Einschränkungen
Größe des Grundstücks - 523m², 19m breit, 27,5 tief, rechteckig
Hang - nein
Grundflächenzahl - 0,4
Geschossflächenzahl - 0,8
Baufenster, Baulinie und -grenze - 5m von der Straße, 3m zum Nachbarn, keine Grenze zum garten
Randbebauung - "Auf jedem Baugrundstück ist entlang mindestens einer Grundstücksgrenze eine freiwachsende Hecke oder geschnittene Laubgehölzhecke anzulegen und zu unterhalten" mehr habe ich dazu nicht gefunden im Bebauungsplan.
Anzahl Stellplatz - 1,5 je Wohneinheit
Geschossigkeit - 2 Vollgeschosse
Dachform - alle Dachformen
Stilrichtung - keine vorgaben
Ausrichtung - Süd-Ausrichtung
Maximale Höhen/Begrenzungen FH max 11m, TH max 7m
weitere Vorgaben - keine wesentlichen die Einfluss auf die Planung nehmen.
Anforderungen der Bauherren
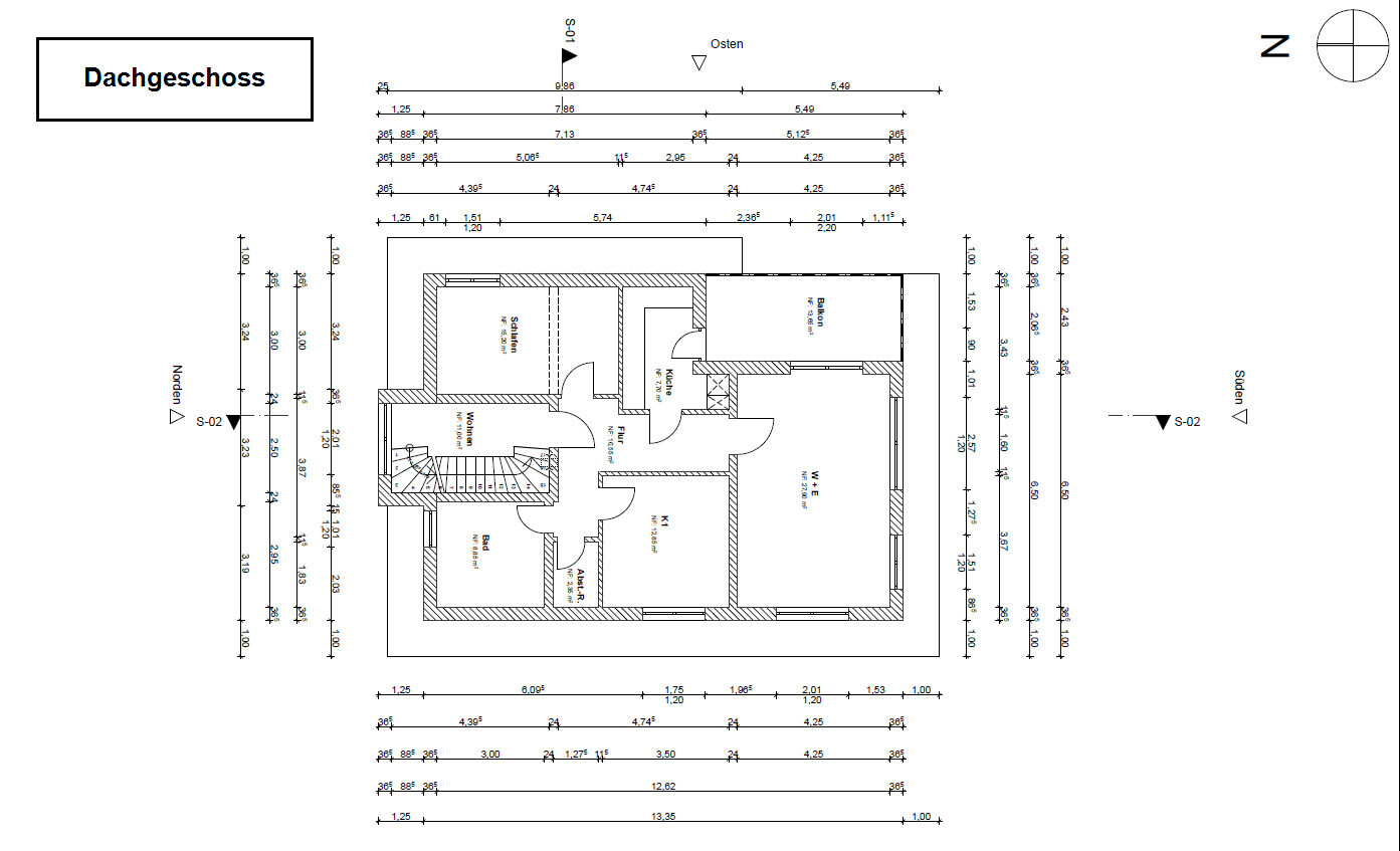
Stilrichtung, Dachform, Gebäudetyp- modernes Mehrfamilienhaus mit 2 Vollgeschossen und Staffelgeschoss mit Flachdach oder Pultdach.
Keller, Geschosse - kein Keller, 2 Vollgeschosse plus Staffelgeschoss
Anzahl der Personen, Alter - unbekannt, ca. 3-5 Personen je Wohneinheit
Raumbedarf im EG, OG - EG & OG ca. 130m², DG ca. 90m²
Büro: Familiennutzung oder Homeoffice? - Familiennutzung
Schlafgäste pro Jahr - wenig
offene oder geschlossene Architektur - keine Präferenz
konservativ oder moderne Bauweise - modern
offene Küche, Kochinsel - offene Küche ohne Kochinsel (wird zu teuer 😀)
Anzahl Essplätze - 1 je Wohneinheit
Kamin - nein
Musik/Stereowand - nein
Balkon, Dachterrasse - ja, Balkon ist mir sehr wichtig für die WHG im OG & DG
Garage, Carport - nein, Außenstellplätze
Nutzgarten, Treibhaus - nein,
weitere Wünsche/Besonderheiten/Tagesablauf, gern auch Begründungen, warum dieses oder das nicht sein soll - Mir ist es wichtig, dass wir die Wohnungen so gestalten, dass die Mieter dauerhaft dort leben wollen / können, Daher überlege ich auch einen Waschraum im EG einzuführen der auch als Technikraum und Abstellplatz genutzt werden kann. ansonsten sollte die Wohnungen über ausreichend Platz auf dem Balkon haben.
Hausentwurf
Von wem stammt die Planung - Mein Bruder ist Bauingenieur, der hat die Pläne entworfen.
Was gefällt besonders? Warum? - Großer Wohn, Ess- und Kochbereich im EG, Anzahl der Schlafzimmer und deren Größe.
Was gefällt nicht? Warum? - dass die Terrassen im EG in der West-Ecke den Ausgang hat und dass die Balkone im OG und DG in der OST ecke stehen.
Preisschätzung laut Architekt/Planer: 520.000 € inkl. MwSt., Ich vergebe die Gewerke selbst.
Persönliches Preislimit fürs Haus, inkl. Ausstattung: 520.000€
favorisierte Heiztechnik: Fernwärme ist von der Stadt mehr oder weniger vorgeschrieben.
Wenn Ihr verzichten müsst, auf welche Details/Ausbauten
-könnt Ihr verzichten: offene Küche. Gäste-WC
-könnt Ihr nicht verzichten: Balkon, Terrasse, Abstellraum
Warum ist der Entwurf so geworden, wie er jetzt ist? ZB
Standardentwurf vom Planer? - Es ist schon auf die Grundstücksgegebenheiten und unserer Vorstellung angepasst. Ich bin aber nicht sicher ob es das "richtige" für ein Mehrfamilienhaus ist. Vor allem das Thema Balkon, Waschraum/Abstellraum da bin ich nicht sicher ob das alles so passt.
Entsprechende/Welche Wünsche wurden vom Architekten umgesetzt? Eigentlich wurden alle wünsche umgesetzt, ich bin nicht sicher ob unsere Wünsche so "richtig" sind und was man ggf. besser machen kann.
Ein Gemisch aus vielen Beispielen aus div. Magazinen...
Was macht ihn in Euren Augen besonders gut oder schlecht?



Was haltet ihr von den Entwürfen? Wie findet ihr die Raumaufteilung, Was sagt ihr zum Thema Waschraum/Abstellraum im EG?
Was sagt ihr zu der Balkonsituation?
Danke für Euer Feedback!
Nevzat
ich habe ein Grundstück erworben und würde gerne Eure Meinungen zum Entwurf hören.
Geplant ist ein Mehrfamilienhaus mit 3 Wohneinheiten, je eine Wohnung pro Etage. Ggf. würden wir im EG-Treppenhausbereich einen Raum als Wasch-, Abstell- und Technikraum nutzen. Das Haus soll einen modernen und nützlichen Grundriss haben, idealerweise mit viel Licht und offenem Wohn-, Ess- und Kochbereich. Weiterhin ist mir sehr wichtig, dass jede Wohnung einen Balkon oder Terrasse hat auf der man gemütlich sitzen und Zeit verbringen kann.
Hier der Steckbrief:
Bebauungsplan/Einschränkungen
Größe des Grundstücks - 523m², 19m breit, 27,5 tief, rechteckig
Hang - nein
Grundflächenzahl - 0,4
Geschossflächenzahl - 0,8
Baufenster, Baulinie und -grenze - 5m von der Straße, 3m zum Nachbarn, keine Grenze zum garten
Randbebauung - "Auf jedem Baugrundstück ist entlang mindestens einer Grundstücksgrenze eine freiwachsende Hecke oder geschnittene Laubgehölzhecke anzulegen und zu unterhalten" mehr habe ich dazu nicht gefunden im Bebauungsplan.
Anzahl Stellplatz - 1,5 je Wohneinheit
Geschossigkeit - 2 Vollgeschosse
Dachform - alle Dachformen
Stilrichtung - keine vorgaben
Ausrichtung - Süd-Ausrichtung
Maximale Höhen/Begrenzungen FH max 11m, TH max 7m
weitere Vorgaben - keine wesentlichen die Einfluss auf die Planung nehmen.
Anforderungen der Bauherren
Stilrichtung, Dachform, Gebäudetyp- modernes Mehrfamilienhaus mit 2 Vollgeschossen und Staffelgeschoss mit Flachdach oder Pultdach.
Keller, Geschosse - kein Keller, 2 Vollgeschosse plus Staffelgeschoss
Anzahl der Personen, Alter - unbekannt, ca. 3-5 Personen je Wohneinheit
Raumbedarf im EG, OG - EG & OG ca. 130m², DG ca. 90m²
Büro: Familiennutzung oder Homeoffice? - Familiennutzung
Schlafgäste pro Jahr - wenig
offene oder geschlossene Architektur - keine Präferenz
konservativ oder moderne Bauweise - modern
offene Küche, Kochinsel - offene Küche ohne Kochinsel (wird zu teuer 😀)
Anzahl Essplätze - 1 je Wohneinheit
Kamin - nein
Musik/Stereowand - nein
Balkon, Dachterrasse - ja, Balkon ist mir sehr wichtig für die WHG im OG & DG
Garage, Carport - nein, Außenstellplätze
Nutzgarten, Treibhaus - nein,
weitere Wünsche/Besonderheiten/Tagesablauf, gern auch Begründungen, warum dieses oder das nicht sein soll - Mir ist es wichtig, dass wir die Wohnungen so gestalten, dass die Mieter dauerhaft dort leben wollen / können, Daher überlege ich auch einen Waschraum im EG einzuführen der auch als Technikraum und Abstellplatz genutzt werden kann. ansonsten sollte die Wohnungen über ausreichend Platz auf dem Balkon haben.
Hausentwurf
Von wem stammt die Planung - Mein Bruder ist Bauingenieur, der hat die Pläne entworfen.
Was gefällt besonders? Warum? - Großer Wohn, Ess- und Kochbereich im EG, Anzahl der Schlafzimmer und deren Größe.
Was gefällt nicht? Warum? - dass die Terrassen im EG in der West-Ecke den Ausgang hat und dass die Balkone im OG und DG in der OST ecke stehen.
Preisschätzung laut Architekt/Planer: 520.000 € inkl. MwSt., Ich vergebe die Gewerke selbst.
Persönliches Preislimit fürs Haus, inkl. Ausstattung: 520.000€
favorisierte Heiztechnik: Fernwärme ist von der Stadt mehr oder weniger vorgeschrieben.
Wenn Ihr verzichten müsst, auf welche Details/Ausbauten
-könnt Ihr verzichten: offene Küche. Gäste-WC
-könnt Ihr nicht verzichten: Balkon, Terrasse, Abstellraum
Warum ist der Entwurf so geworden, wie er jetzt ist? ZB
Standardentwurf vom Planer? - Es ist schon auf die Grundstücksgegebenheiten und unserer Vorstellung angepasst. Ich bin aber nicht sicher ob es das "richtige" für ein Mehrfamilienhaus ist. Vor allem das Thema Balkon, Waschraum/Abstellraum da bin ich nicht sicher ob das alles so passt.
Entsprechende/Welche Wünsche wurden vom Architekten umgesetzt? Eigentlich wurden alle wünsche umgesetzt, ich bin nicht sicher ob unsere Wünsche so "richtig" sind und was man ggf. besser machen kann.
Ein Gemisch aus vielen Beispielen aus div. Magazinen...
Was macht ihn in Euren Augen besonders gut oder schlecht?
Was haltet ihr von den Entwürfen? Wie findet ihr die Raumaufteilung, Was sagt ihr zum Thema Waschraum/Abstellraum im EG?
Was sagt ihr zu der Balkonsituation?
Danke für Euer Feedback!
Nevzat
N
nordanney29.08.24 13:54nevzatc21 schrieb:
Preisschätzung laut Architekt/Planer: 520.000 € inkl. MwSt., Ich vergebe die Gewerke selbst.nevzatc21 schrieb:
Raumbedarf im EG, OG - EG & OG ca. 130m², DG ca. 90m²Also das komplette Haus wird in EL und Schwarzarbeit gebaut?Bei 350qm Wohnfläche sind das 1.485€/qm. Oder sind die 520k jeweils pro Etage gedacht?
Mit dem Budget reicht es sonst nämlich nicht.
Ich habe gerade ein (wenn auch deutlich anspruchsvolleres Projekt mit hoher Qualität) auf dem Tisch, wo die reinen Baukosten bei 3,6k je qm/Wohnfläche liegen. Zuzüglich Planungskosten, Erdarbeiten, Außenanlagen usw.
N
nevzatc2129.08.24 14:02nordanney schrieb:
Also das komplette Haus wird in EL und Schwarzarbeit gebaut?
Bei 350qm Wohnfläche sind das 1.485€/qm. Oder sind die 520k jeweils pro Etage gedacht?
Mit dem Budget reicht es sonst nämlich nicht.
Ich habe gerade ein (wenn auch deutlich anspruchsvolleres Projekt mit hoher Qualität) auf dem Tisch, wo die reinen Baukosten bei 3,6k je qm/Wohnfläche liegen. Zuzüglich Planungskosten, Erdarbeiten, Außenanlagen usw.Puuh, direkt mit so einem Vorwurf ein Gespräch starten...
Ich kriege das zu diesem Preis mit in Deutschland registrierten Firmen und alles auf Rechnung hin. Natürlich werde ich hier und da was selbst machen (Parkett, Türen, Garten etc). Aber soweit ich weiß ist das nicht verboten.
Meine Fragen richteten sich - wie man aus dem Text entnehmen kann - nach der Grundrissgestaltung nicht nach den Kosten oder ähnliches.
Aber Danke trotzdem für Deinen wertvollen Beitrag.
N
nordanney29.08.24 14:08nevzatc21 schrieb:
Puuh, direkt mit so einem Vorwurf ein Gespräch starten...Kein Vorwurf. Nur ein deutlicher Hinweis, dass Du einen Preis kalkulierst, der irgendwo beim Materialpreis fürs Gesamtprojekt liegt. Hab die letzten Jahre niemanden gesehen, der für so einen Preis hat bauen können (wenn es Fachfirmen übernehmen und man nicht selbst baut). Und da ich selbst auch ein wenig für mein Portfolio werkel, kommt die Erfahrung von zwei Seiten - Job und Privat.Einige Projekte sind nach zig Seiten Grundrissdiskussion nämlich schon gestorben, weil sich am Ende - nicht überraschend - rausgestellt hat, dass das Budget nicht passt. Den Grundriss lass ich andere diskutieren. Ich werfe meine Erfahrung nur vom Bau, den Kosten und der Finanzierung rein.
nevzatc21 schrieb:
Meine Fragen richteten sich - wie man aus dem Text entnehmen kann - nach der Grundrissgestaltung nicht nach den Kosten oder ähnliches.Wie geschrieben, sind einige Diskussionen nutzlos, weil das Produkt nicht zum Budget passt.Muss meinen Vorrednern da zustimmen. Auch wenn du es nicht hören willst, aber die Kalkulation ist weit weg von der erreichbaren Realität.
Wenn man von den üblichen 3k pro qm ausgeht wäre man schon bei über 1 Mio, nur zu Veranschaulichung.
Eigenleistungen scheinen ja auch nicht enorm zu sein, Gewerke einzeln vergeben spart eventuell etwas ein, wenn man es richtig macht. Aber unter 2500€ pro qm kommt man realistisch nicht und selbst dann wäre man bei 875.000€. Und das ist schon wie gesagt schön gerechnet.
Liste doch mal die einzelnen Kostenkalkulationen zu den Gewerken auf, dann sieht man ziemlich wo falsch kalkuliert wurde oder ob manches sogar völlig fehlt.
Wenn man von den üblichen 3k pro qm ausgeht wäre man schon bei über 1 Mio, nur zu Veranschaulichung.
Eigenleistungen scheinen ja auch nicht enorm zu sein, Gewerke einzeln vergeben spart eventuell etwas ein, wenn man es richtig macht. Aber unter 2500€ pro qm kommt man realistisch nicht und selbst dann wäre man bei 875.000€. Und das ist schon wie gesagt schön gerechnet.
Liste doch mal die einzelnen Kostenkalkulationen zu den Gewerken auf, dann sieht man ziemlich wo falsch kalkuliert wurde oder ob manches sogar völlig fehlt.
nevzatc21 schrieb:
Größe des Grundstücks - 523m², 19m breit, 27,5 tief, rechteckigZeig es doch mal mit der Nachbarbebauung. Interessant wären ja die Stellplätze sowie die Nachbarschaft wegen der Balkonlage.Was nutzt ein Balkon in schöner SW-Lage, wenn dort ein hässlicher Ausblick ist?
Den Grundriss anzupassen, sollte hier nicht das Problem sein.
nevzatc21 schrieb:
Preisschätzung laut Architekt/Planer: 520.000 € inkl. MwSt., Ich vergebe die Gewerke selbst.Auch ich bin darüber gestolpert und habe nur an den Rohbau gedacht.Schon als wir gebaut haben, war der Qm-Preis im Mehrfamilienhaus-Sektor höher als für das Einfamilienhaus.
Gut, mag an dem Keller gelegen haben. .
Dennoch erklär mir, wie man im Günstighausbau im günstigen Bundesland für einen WohnQm so ca. 2700€ bezahlt, im Standardsektor schon die 3000€-Marke erreicht und wenn Balkon, Staffel und einige vergrößerte Fenster (größer als 80 x 125) verbaut werden, schon die 3500€/Qm erreicht?
Und dann kommen ja noch die Pflasterarbeiten, Außenanlagen und Anschlüsse wie Baunebenkosten dazu. Ich bin da schon nackt nur für das Haus bei ü 1 Mio.
Und da ist es auch egal, wer die Vergabe macht.
nevzatc21 schrieb:
Was gefällt nicht? Warum? - dass die Terrassen im EG in der West-Ecke den Ausgang hat und dass die Balkone im OG und DG in der OST ecke stehen.Zum Entwurf:Ich finde den Allraum schlecht zu zonieren bei ü5 Meter Breite und den Fensterlagen. Am besten ist da noch das EG, aber wenn die Zielgruppe 2 Erw. plus Kind, einmal Büronutzung ist, dann wäre ein besser zu zonierender L-Raum besser, wo eine schöne L-Form-Küche auch kaum Platz wegnimmt. In Wohnungen, die in der Größe unterm Penthaus-Niveau liegen und familiengeeignet sein sollen, hat man ja dann doch gern eine etwas separierte Küche.
Dafür ist für eine Wohnung der Flur recht üppig, zeigt die Wohnung beim Eintreten auch nicht von seiner schönen Seite.
Zu der Raum- und Balkonanordnung sehe ich durchweg Potential. So wirklich durchdacht ist er nicht. Es scheint, dass der Entwurf erst einmal nur dazu da ist, ob sich Wohnungen eignen und wieviel Qm man herausbekommt.
Auch hinsichtlich der Lüftungs/Fallrohr/Leitungswege, die sind ja hier sehr verteilt bzw überhaupt nicht eingezeichnet.
Spannend ist hier auch die Ab- und Zuführung des Staffelgeschosses.
Die ABs sind recht schmal. Hatte ich auch in meiner Wohnung als Kellerersatz. Mist war das zum Abstellen, weil der Gang freigehalten werden muss.
Die Garage wäre für das EG? Willst Du die selbst bewohnen?
Wo gedenkst Du, Fahrräder und Gartenpflegebedarf zu lagern?
Ähnliche Themen