S
Stadtvilla202310.08.22 13:23Hallo zusammen,
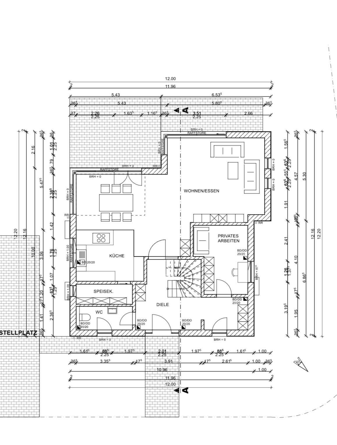
Ich bin mit unserem Grundriss nur mäßig zufrieden, da durch die Treppe (relativ quadratisch) die umliegenden Räume verwinkelt werden. Ich habe den Grundriss maßstabsgetreu in ein Programm übernommen und eine Alternative erstellt. Im wesentlichen ist der Grundriss in der Alternative offener und durch die Treppe, welche länglicher ist, werden die Räume weniger verschachtelt. Ich möchte den Architekten nicht noch viele weitere Änderungen, die dann nicht umgesetzt werden, zumuten. Deshalb bitte ich um Verständnis, dass ich keine Zeichnung des Architekten zur Verfügung stellen kann für die Alternative. Mit dem Konzept einer in den Wohnraum integrierten Treppe könnten wir uns durch aus anfreunden. Ich weiß, dass dies für viele nicht infrage kommt. Ich würde mich sehr über eure Meinungen hierzu freuen oder eventuell Änderungsvorschläge.
Bebauungsplan/Einschränkungen
Kein Bebauungsplan vorhanden
Größe des Grundstücks: 620
Hang
Grundflächenzahl
Geschossflächenzahl
Baufenster, Baulinie und -grenze
Randbebauung
Anzahl Stellplatz
Geschossigkeit:
Dachform: Walmdach
Stilrichtung: Stadtvilla
Ausrichtung: Süd/West
Maximale Höhen/Begrenzungen
weitere Vorgaben
Anforderungen der Bauherren
Stilrichtung, Dachform, Gebäudetyp: Einfamilienhaus Stadtvilla, Walmdach, verputzt
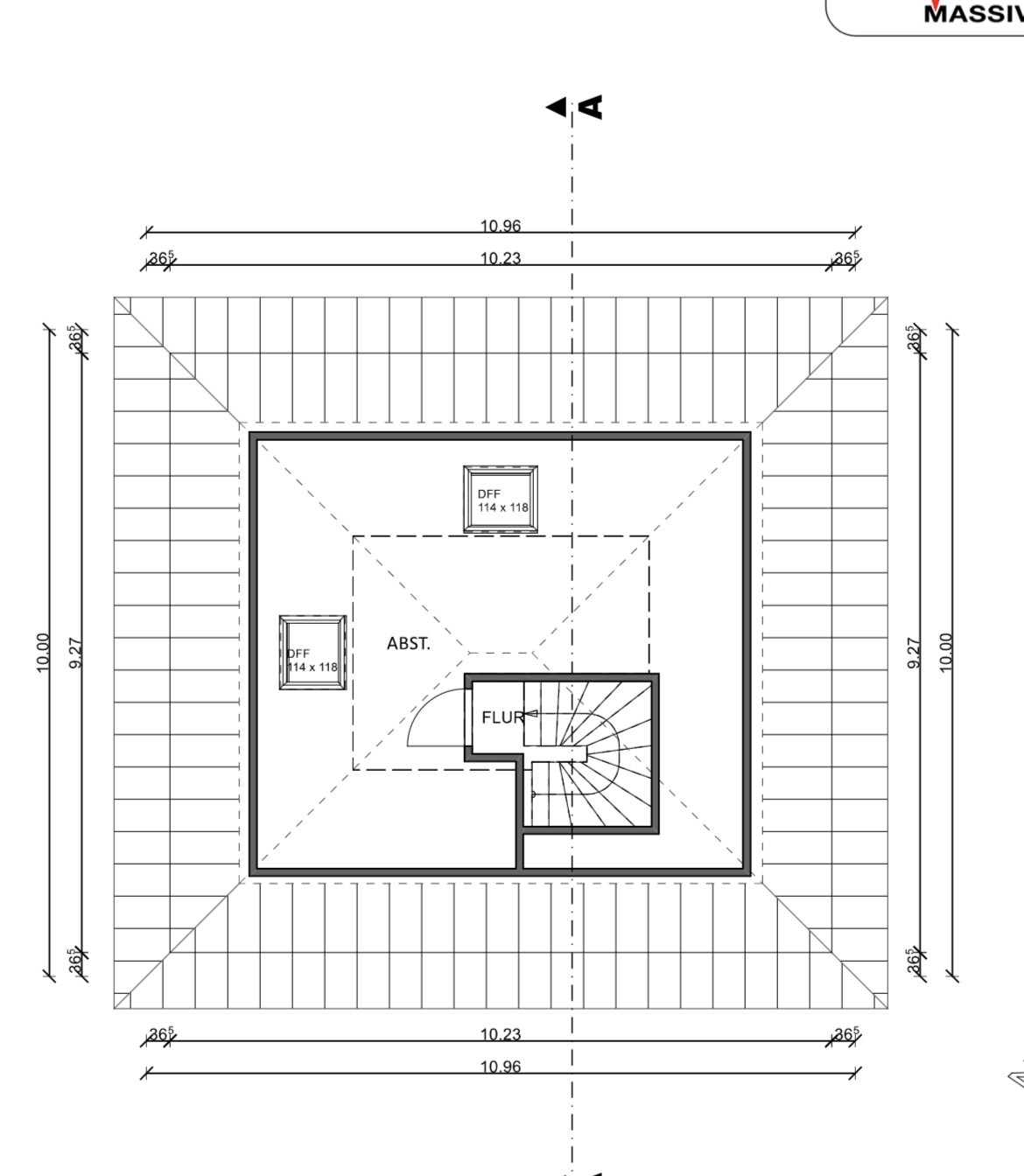
Keller, Geschosse: 2 Geschosse mit ausgebautem Dachboden und mit Keller
Anzahl der Personen, Alter: 2 Erwachsene, 2 Kinder
Raumbedarf im EG, OG
Büro: Familiennutzung oder Homeoffice?: 1x Homeoffice
Schlafgäste pro Jahr: 2 x Gäste
offene oder geschlossene Architektur: unsicher, eher geschlossen
konservativ oder moderne Bauweise: mix
offene Küche, Kochinsel: offen
Anzahl Essplätze: 6
Kamin: ja
Musik/Stereowand
Balkon, Dachterrasse: Balkon
Garage, Carport: Garage unklar ob angebaut oder mit Abstand
Nutzgarten, Treibhaus
weitere Wünsche/Besonderheiten/Tagesablauf, gern auch Begründungen, warum dieses oder das nicht sein soll:
Hausentwurf
Von wem stammt die Planung:
-Architekt: Standardentwurf, der von uns angepasst wurde
-Do-it-Yourself
Was gefällt besonders? Warum?: großer Wohnbereich mit großen Fensterfronten, großzügiger Elternschlafbereich mit Bad, Speisekammer
Was gefällt nicht? Warum?: Treppe - kein Highlight, Platzprobleme und dadurch zu verschachtelte Räume, längliches Gäste-WC und Speisekammer
Preisschätzung lt Architekt/Planer: 620.000
favorisierte Heiztechnik: Luft-Wärme-Pumpe
Wenn Ihr verzichten müsst, auf welche Details/Ausbauten
-könnt Ihr verzichten: Kamin
-könnt Ihr nicht verzichten: Kochinsel, Anzahl Räume, Luftraum
Warum ist der Entwurf so geworden, wie er jetzt ist? ZB
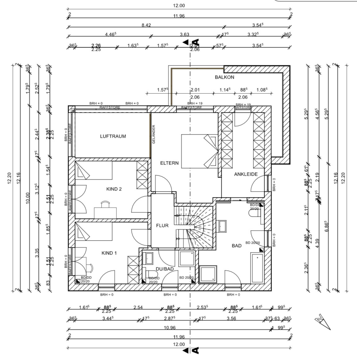
Wir haben den Standard Entwurf nach unseren Bedürfnissen angepasst. Im wesentlichen bei uns im Obergeschoss wichtig, dass die Zimmer möglichst groß werden und der Flurbereich klein. Deshalb mussten wir auf eine kleine Treppe umsteigen. Da unser Grundstück ein Eckgrundstück ist und relativ dicht umbaut ist, haben wir in der Ecke einen Luftraum geplant. Dieser ist sozusagen zu der Mitte der Gärten von dem Wohnblock ausgerichtet.
Was ist die wichtigste/grundlegende Frage zum Grundriss in 130 Zeichen zusammengefasst?
Im wesentlichen würde ich gerne wissen, was ihr von der Alternative haltet die ich angefertigt habe? Habt ihr eventuell noch eine andere Idee? Wir haben den Bauantrag bereits eingereicht, da dies in Köln ein zeitliches Problem ist. Wir müssen vermutlich eine Änderung hinterher schicken, da das Fenster im Büro größer werden soll und das Fenster in der Speisekammer weg fallen soll. Grundsätzlich wäre es auch möglich noch weitere Fenster zu verändern. Zur Straßenseite möchten wir gerne die Symmetrie.
Vielen Dank an jeden der uns hier behilflich ist
Corinna





Ich bin mit unserem Grundriss nur mäßig zufrieden, da durch die Treppe (relativ quadratisch) die umliegenden Räume verwinkelt werden. Ich habe den Grundriss maßstabsgetreu in ein Programm übernommen und eine Alternative erstellt. Im wesentlichen ist der Grundriss in der Alternative offener und durch die Treppe, welche länglicher ist, werden die Räume weniger verschachtelt. Ich möchte den Architekten nicht noch viele weitere Änderungen, die dann nicht umgesetzt werden, zumuten. Deshalb bitte ich um Verständnis, dass ich keine Zeichnung des Architekten zur Verfügung stellen kann für die Alternative. Mit dem Konzept einer in den Wohnraum integrierten Treppe könnten wir uns durch aus anfreunden. Ich weiß, dass dies für viele nicht infrage kommt. Ich würde mich sehr über eure Meinungen hierzu freuen oder eventuell Änderungsvorschläge.
Bebauungsplan/Einschränkungen
Kein Bebauungsplan vorhanden
Größe des Grundstücks: 620
Hang
Grundflächenzahl
Geschossflächenzahl
Baufenster, Baulinie und -grenze
Randbebauung
Anzahl Stellplatz
Geschossigkeit:
Dachform: Walmdach
Stilrichtung: Stadtvilla
Ausrichtung: Süd/West
Maximale Höhen/Begrenzungen
weitere Vorgaben
Anforderungen der Bauherren
Stilrichtung, Dachform, Gebäudetyp: Einfamilienhaus Stadtvilla, Walmdach, verputzt
Keller, Geschosse: 2 Geschosse mit ausgebautem Dachboden und mit Keller
Anzahl der Personen, Alter: 2 Erwachsene, 2 Kinder
Raumbedarf im EG, OG
Büro: Familiennutzung oder Homeoffice?: 1x Homeoffice
Schlafgäste pro Jahr: 2 x Gäste
offene oder geschlossene Architektur: unsicher, eher geschlossen
konservativ oder moderne Bauweise: mix
offene Küche, Kochinsel: offen
Anzahl Essplätze: 6
Kamin: ja
Musik/Stereowand
Balkon, Dachterrasse: Balkon
Garage, Carport: Garage unklar ob angebaut oder mit Abstand
Nutzgarten, Treibhaus
weitere Wünsche/Besonderheiten/Tagesablauf, gern auch Begründungen, warum dieses oder das nicht sein soll:
Hausentwurf
Von wem stammt die Planung:
-Architekt: Standardentwurf, der von uns angepasst wurde
-Do-it-Yourself
Was gefällt besonders? Warum?: großer Wohnbereich mit großen Fensterfronten, großzügiger Elternschlafbereich mit Bad, Speisekammer
Was gefällt nicht? Warum?: Treppe - kein Highlight, Platzprobleme und dadurch zu verschachtelte Räume, längliches Gäste-WC und Speisekammer
Preisschätzung lt Architekt/Planer: 620.000
favorisierte Heiztechnik: Luft-Wärme-Pumpe
Wenn Ihr verzichten müsst, auf welche Details/Ausbauten
-könnt Ihr verzichten: Kamin
-könnt Ihr nicht verzichten: Kochinsel, Anzahl Räume, Luftraum
Warum ist der Entwurf so geworden, wie er jetzt ist? ZB
Wir haben den Standard Entwurf nach unseren Bedürfnissen angepasst. Im wesentlichen bei uns im Obergeschoss wichtig, dass die Zimmer möglichst groß werden und der Flurbereich klein. Deshalb mussten wir auf eine kleine Treppe umsteigen. Da unser Grundstück ein Eckgrundstück ist und relativ dicht umbaut ist, haben wir in der Ecke einen Luftraum geplant. Dieser ist sozusagen zu der Mitte der Gärten von dem Wohnblock ausgerichtet.
Was ist die wichtigste/grundlegende Frage zum Grundriss in 130 Zeichen zusammengefasst?
Im wesentlichen würde ich gerne wissen, was ihr von der Alternative haltet die ich angefertigt habe? Habt ihr eventuell noch eine andere Idee? Wir haben den Bauantrag bereits eingereicht, da dies in Köln ein zeitliches Problem ist. Wir müssen vermutlich eine Änderung hinterher schicken, da das Fenster im Büro größer werden soll und das Fenster in der Speisekammer weg fallen soll. Grundsätzlich wäre es auch möglich noch weitere Fenster zu verändern. Zur Straßenseite möchten wir gerne die Symmetrie.
Vielen Dank an jeden der uns hier behilflich ist
Corinna
K
K a t j a10.08.22 14:30Offenbar steht Dein Architekt auf Winkel und unnütze Zusatzecken. Eine Verbesserung des Entwurfes sehe ich in Deiner Zeichnung aber nicht. Erstmal ist die Treppengröße fraglich. Welche Abmaße hat die Treppe denn genau und wie ist die Geschosshöhe dazu? Ab davon legt man den Teppenantritt nicht hinter eine aufschlagende Zimmertür. Da besteht Unfallgefahr. Zudem wird aus dem Eingangsbereich ein ungemütlicher und hässlicher Schlauch.
Im OG lässt sich sicher schnell einiges gerade ziehen - besonders die Ecken in den Bädern + Kind 1 finde ich überflüssig.
Frage: im Schlafzimmer ist nur ein Geländer zum Luftraum? Oder ist das eine Glaswand?
Das gleiche gilt für Tiefe von Speisekammern für ausreichend Stellfläche für Geräte oder Sinn bzw. Unsinn von Balkonen an Häusern mit Garten. Ich werde mich da nicht wiederholen - dazu gibt es die Suchfunktion.
Speziell in diesem Entwurf fällt die Unverhältnismäßigkeit der Zwergen-Kinderzimmer zum Rest des Hauses und insbesondere zum Elterntrakt auf. Die Kinder müssen mit den Standard 12qm auskommen, während sich die Eltern auf insgesamt über 40 qm breit machen, nur um zu Schlafen und zu Duschen. Absurd.
Im OG lässt sich sicher schnell einiges gerade ziehen - besonders die Ecken in den Bädern + Kind 1 finde ich überflüssig.
Frage: im Schlafzimmer ist nur ein Geländer zum Luftraum? Oder ist das eine Glaswand?
Stadtvilla2023 schrieb:Diese Logik erschließt sich mir leider nicht, aber egal. Einige Dinge wie Luftraum und integrierte Treppe mit Kindern wurden hier schon oft diskutiert.
Da unser Grundstück ein Eckgrundstück ist und relativ dicht umbaut ist, haben wir in der Ecke einen Luftraum geplant.
Das gleiche gilt für Tiefe von Speisekammern für ausreichend Stellfläche für Geräte oder Sinn bzw. Unsinn von Balkonen an Häusern mit Garten. Ich werde mich da nicht wiederholen - dazu gibt es die Suchfunktion.
Speziell in diesem Entwurf fällt die Unverhältnismäßigkeit der Zwergen-Kinderzimmer zum Rest des Hauses und insbesondere zum Elterntrakt auf. Die Kinder müssen mit den Standard 12qm auskommen, während sich die Eltern auf insgesamt über 40 qm breit machen, nur um zu Schlafen und zu Duschen. Absurd.
S
Stadtvilla202310.08.22 14:53Vielen dank für deine Meinung dazu. Die Geschosshöhe ist 302 cm.
Die Treppe habe ich mit den Maßen 301cm x 275 cm (vka) berücksichtigt. Das muss ich natürlich klären. Da gibt es eventuell noch Abweichungen. Vielen Dank für den Tipp mit der Tür. Da kann man dann höchstens über eine Schiebetür nachdenken. Der Eingangsbereich gefällt mir in der neuen Alternative auch nicht richtig. Eine Lösung sehe ich zur Zeit nicht.
Die anderen Dinge werde ich im Forum recherchieren.
Die Treppe habe ich mit den Maßen 301cm x 275 cm (vka) berücksichtigt. Das muss ich natürlich klären. Da gibt es eventuell noch Abweichungen. Vielen Dank für den Tipp mit der Tür. Da kann man dann höchstens über eine Schiebetür nachdenken. Der Eingangsbereich gefällt mir in der neuen Alternative auch nicht richtig. Eine Lösung sehe ich zur Zeit nicht.
Die anderen Dinge werde ich im Forum recherchieren.
S
Stadtvilla202310.08.22 14:58Noch eine Ergänzung: Das Geländer wird eventuell Glaswand oder normale Wand. Die Kinder bekommen das ausgebaute Dach als Spielfläche.
Stadtvilla2023 schrieb:
301cm x 275 cmWirklich? Sieht eher nach 301x175 ausUnd hier mal ein paar Muster, allerdings nur Geschosshöhe 280, also 22cm Steigung weniger
S
Stadtvilla202310.08.22 15:16kbt09 schrieb:
Wirklich? Sieht eher nach 301x175 aus
Und hier mal ein paar Muster, allerdings nur Geschosshöhe 280, also 22cm Steigung weniger

Entschuldigung. 301cm x 175cm ist korrekt. Vielen Dank für die Muster.Ähnliche Themen