derclaus schrieb:
Es mag Dir vielleicht ganz natürlich von der Hand gegangen sein...Danke für Deine netten Worte. Da ich kein Architekt bin, sondern nur verworrene Rätsel liebe, ist es mir zwar nicht leicht gefallen, war aber eine schöne Knobelaufgabe 😀Liebes Forum,
ein kurzes Update meinerseits: der Scheunenumbau schreitet voran - in großem Tempo. 😱
Gestern haben wir den alten Steinboden der Scheune verkauft und die Steine werden übermorgen ausgebaut. Foto folgen! Und als nächstes wird die Scheune geleert, denn am 01. April -kein Scherz 😉- werden wir mit dem Legen des Fundaments beginnen. U.a. hat das damit zu tun, dass wir ja die Außenwand nach innen versetzen und das zu renovierende Dach neu machen müssen. Das hatte ich ja erklärt zuvor. Das Setzen des Fundaments hat aber auch zur logischen Folge, dass wir die inneren Mauern absolut festlegen müssen und zwar zeitnah. Und da hat sich ein Problem eröffnet über das ich mir nun den Kopf zerbreche:
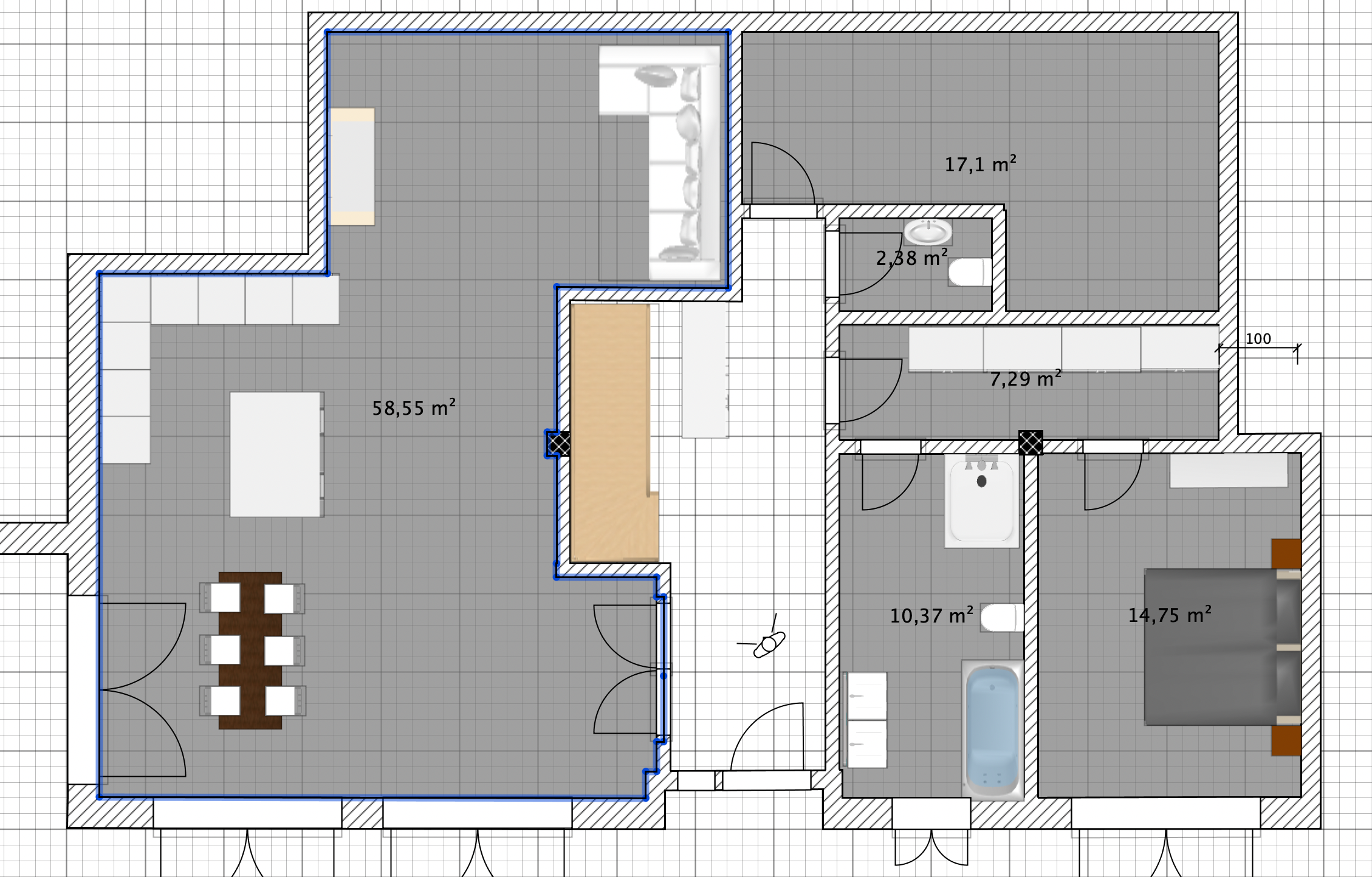
Leider können wir an der Südseite nicht ganz so in die Breite gehen wie gedacht. Durch den Bau einer Treppe im anderen Teil der Scheune hat sich der Grundriss verkleinert. Wir können an der Südseite nur 1m planrechts der Mauer (siehe Zeichnung). Beim bisheringe Entwurf liegen wir mit 1,80m somit gute 80cm drüber.
Nun stellt sich mir die Frage, ob man
(a) einfach jeden der Räume (Schlafzimmer, Bad, Diele, Allraum) einfach verkleinern und nach planlinks verschieben kann? Vielleicht muss dann die Badewanne raus? Oder
(b) wie meine Schwiegervater sag, die Gästetoilette von der Südseite doch ins Innere platziert werden muss und somit kein Fenster haben wird?
Ich würde die Gästetoilette gerne mit Fenster behalten, aber das ist nicht die oberste Priorität. Aber ich weiß aktuell gar nicht, welche Idee ich weiter verfolgen soll. Vielleicht hat jemand ein Bauchgefühl, was der richtige Weg sein könnte bzw. ob der Ansatz A überhaupt noch denkbar ist und nicht alles zu kleinteilig wird.
(A) Konzept "Alles kleiner - und ein wenig schmaler"

(B) Konzept "Toilette ohne Fenster"

Ich weiß, dass beider Ideen nicht die korrekte Treppe beinhalten und grundsätzlich ganz grob sind. Gerade Konzept B ist eines Positings hier regelrecht unwürdig, da ein erster Schritt. Und ich weiß, dass es nervig ist das Thema Grundriss überhaupt wieder anpacken zu müssen... aber vielleicht hat mir jemand einen Input dazu. Und versprach ja auch den Stand der Dinge mitzuteilen.
ein kurzes Update meinerseits: der Scheunenumbau schreitet voran - in großem Tempo. 😱
Gestern haben wir den alten Steinboden der Scheune verkauft und die Steine werden übermorgen ausgebaut. Foto folgen! Und als nächstes wird die Scheune geleert, denn am 01. April -kein Scherz 😉- werden wir mit dem Legen des Fundaments beginnen. U.a. hat das damit zu tun, dass wir ja die Außenwand nach innen versetzen und das zu renovierende Dach neu machen müssen. Das hatte ich ja erklärt zuvor. Das Setzen des Fundaments hat aber auch zur logischen Folge, dass wir die inneren Mauern absolut festlegen müssen und zwar zeitnah. Und da hat sich ein Problem eröffnet über das ich mir nun den Kopf zerbreche:
Leider können wir an der Südseite nicht ganz so in die Breite gehen wie gedacht. Durch den Bau einer Treppe im anderen Teil der Scheune hat sich der Grundriss verkleinert. Wir können an der Südseite nur 1m planrechts der Mauer (siehe Zeichnung). Beim bisheringe Entwurf liegen wir mit 1,80m somit gute 80cm drüber.
Nun stellt sich mir die Frage, ob man
(a) einfach jeden der Räume (Schlafzimmer, Bad, Diele, Allraum) einfach verkleinern und nach planlinks verschieben kann? Vielleicht muss dann die Badewanne raus? Oder
(b) wie meine Schwiegervater sag, die Gästetoilette von der Südseite doch ins Innere platziert werden muss und somit kein Fenster haben wird?
Ich würde die Gästetoilette gerne mit Fenster behalten, aber das ist nicht die oberste Priorität. Aber ich weiß aktuell gar nicht, welche Idee ich weiter verfolgen soll. Vielleicht hat jemand ein Bauchgefühl, was der richtige Weg sein könnte bzw. ob der Ansatz A überhaupt noch denkbar ist und nicht alles zu kleinteilig wird.
(A) Konzept "Alles kleiner - und ein wenig schmaler"
(B) Konzept "Toilette ohne Fenster"
Ich weiß, dass beider Ideen nicht die korrekte Treppe beinhalten und grundsätzlich ganz grob sind. Gerade Konzept B ist eines Positings hier regelrecht unwürdig, da ein erster Schritt. Und ich weiß, dass es nervig ist das Thema Grundriss überhaupt wieder anpacken zu müssen... aber vielleicht hat mir jemand einen Input dazu. Und versprach ja auch den Stand der Dinge mitzuteilen.
Das Schlafzimmer ist ja nun nur noch 2,7 m breit. das ist zu eng.
Mir wuerde Variante A besser gefallen. Dann aber das Bad 30 cm nach links. die Wand zum WZ auch 30 cm nach links. Das kleine Fenster neben der Tür dann auch nach links. Die Fenster im WZ nach Sueden Festverglasung.
Die Speisekammer von ypg kommt aber noch.
Ist der Kamin gestorben?
Mir wuerde Variante A besser gefallen. Dann aber das Bad 30 cm nach links. die Wand zum WZ auch 30 cm nach links. Das kleine Fenster neben der Tür dann auch nach links. Die Fenster im WZ nach Sueden Festverglasung.
Die Speisekammer von ypg kommt aber noch.
Ist der Kamin gestorben?
ypg schrieb:Das sehe ich auch so.
B ist eine Katastrophe!
Ähnliche Themen