Vielen Dank für die Antworten und Fragen. Ich werde mich heute so schnell wie möglich um die Antworten kümmern - die Arbeit etc. erlaubt das gerade nicht. Mit der Vermaßung brauche ich ein wenig, sollte bis heute Abend auch durch sein. Danke an alle für die rege Reaktion. Das freut mich sehr.
Danke nochmal an alle.
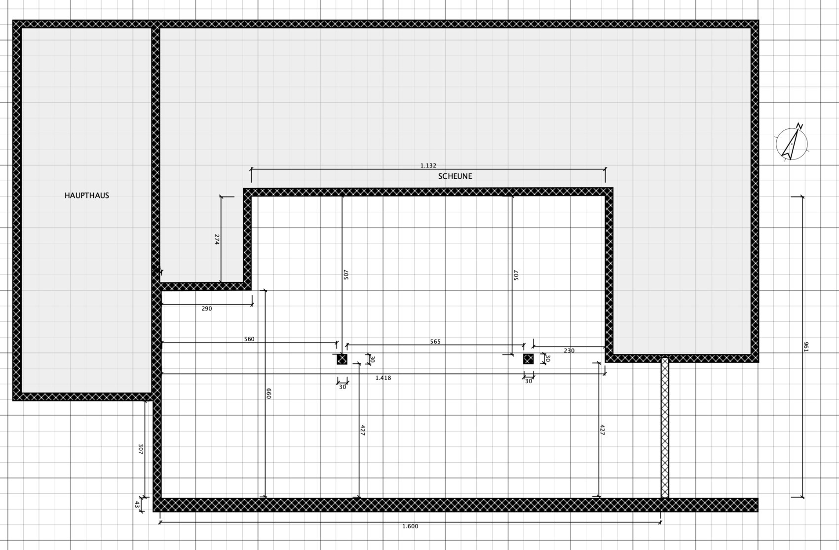
Zu der Bemaßung des Grundrisses bin ich gekommen. Leider kann ich nicht die typischen Farben verwenden, was die Wände betrifft und somit wie folgt:
- schwarz schraffiert sind die Wände, die bestehend sind und nicht verändert werden können
- die nahezu weißen Wände sind neu eingefärbt
In dem zur Verfüng stehenden Grundrisse habe ich nur eine weiße Wand im EG eingezeichnet. Das wäre die Wand, die die Größe des zur Verfügung stehenden Grundrisses nach Osten hin begrenzt. 16 m maximale in der Breite und gerne auch weniger werden gerne genommen - aber darauf kommt es nicht an. Das bekomme ich familiär "wegdiskutiert", 16 m sind aber das Maximum. 😉
Erdgeschoss

Obergeschoss

Wegen dieser Stütze im Obergeschoss noch einen Hinweis auf diesem Bild: dieses Bild wurde von Westen aus in die Scheune blickend aufgenommen. Man sieht darauf einen der beiden Pfeiler und die seitliche Stütze, die dann vom Boden des OGs bis an die Decke ragt. Ich selbst steht neben dem anderen Pfeiler ("Pfeiler01"). Würde man diese Stützen im OG einmauern und die Mauer von Pfeiler 3m entlang der Stütze ziehen, könnte man in diese auch eine Mauer eine Tür setzen. Aber so weit bin ich gedanklich noch nicht. Derzeit stören mich die Stützen viel mehr in Bezug auf die Treppe, denn ich bin mir nicht sicher wie diese zu setzen ist...

PS: die weißen Mauern auf dem Bild werden nach oben bis zur Decke des OGs gezogen. Diese sind 24,5 cm breit. Alle Dachstützen kommen raus und das Dach wird obendrein neu gemacht. Soviel dazu, dass es ein größeres Projekt werden wird...
Zu der Bemaßung des Grundrisses bin ich gekommen. Leider kann ich nicht die typischen Farben verwenden, was die Wände betrifft und somit wie folgt:
- schwarz schraffiert sind die Wände, die bestehend sind und nicht verändert werden können
- die nahezu weißen Wände sind neu eingefärbt
In dem zur Verfüng stehenden Grundrisse habe ich nur eine weiße Wand im EG eingezeichnet. Das wäre die Wand, die die Größe des zur Verfügung stehenden Grundrisses nach Osten hin begrenzt. 16 m maximale in der Breite und gerne auch weniger werden gerne genommen - aber darauf kommt es nicht an. Das bekomme ich familiär "wegdiskutiert", 16 m sind aber das Maximum. 😉
Erdgeschoss
Obergeschoss
Wegen dieser Stütze im Obergeschoss noch einen Hinweis auf diesem Bild: dieses Bild wurde von Westen aus in die Scheune blickend aufgenommen. Man sieht darauf einen der beiden Pfeiler und die seitliche Stütze, die dann vom Boden des OGs bis an die Decke ragt. Ich selbst steht neben dem anderen Pfeiler ("Pfeiler01"). Würde man diese Stützen im OG einmauern und die Mauer von Pfeiler 3m entlang der Stütze ziehen, könnte man in diese auch eine Mauer eine Tür setzen. Aber so weit bin ich gedanklich noch nicht. Derzeit stören mich die Stützen viel mehr in Bezug auf die Treppe, denn ich bin mir nicht sicher wie diese zu setzen ist...
PS: die weißen Mauern auf dem Bild werden nach oben bis zur Decke des OGs gezogen. Diese sind 24,5 cm breit. Alle Dachstützen kommen raus und das Dach wird obendrein neu gemacht. Soviel dazu, dass es ein größeres Projekt werden wird...
ypg schrieb:
Mit den zwei letzten Bildern kann ich absolut nichts anfangen. Wo ist Norden?Habe ich als Kompass in die Zeichnung eingetragen.
11ant schrieb:
Für unser Hineindenken wäre wohl hilfreich, Du zeichnetest das Vorhaben mal in den Kontext ein, d.h. läßt die Zeichnungen nicht an den Grenzen des Wohnausbaues enden, sondern stelltest auch die unberührt bleibenden Scheunenteile noch mit dar. Der Übersichtlichkeit dient auch, Darstellungen von Ist/Soll-Kombinationen mehrfarbig zu machen - üblich ist grau für bleibt, rot für neu und gelb für wird abgebrochen.
24,5 cm ordne ich keinem allgemeinen Ziegelformat zu, das muß ein regionales sein, vermutlich noch aus der vormetrischen Zeit tradiert.Ich hoffe, das ist ok so. 24,5 cm ist das Maß der innen liegenden Wände (die weißen Steine auf dem Bild); nicht die der Ziegel. Pardon, wenn das missverständlich war.
ypg schrieb:
Danke für Deinen unterhaltenden Beitrag.
Kannst Du den 21B-Entwurf vermaßen?
Und das Dach hat 50 Grad?
Das Foto von innen: was zeigt das?
und: habt Ihr genug Geld, zb für Gauben? Sind die erlaubt?Ich könnte den 21B-Entwurf vermaßen, falls der von mir erstellt Grundriss nicht ausreichend sein sollte. Gib mir gerne Bescheid.
Ein kleiner Input dazu: ich finde den Entwurf ganz gut, aber es sind mir Dinge unklar, ob das sinnvoll ist:
- das Wohnzimmer ist klein, um dahinter eine Gästetoilette und Kammer anzubringen. Irgendwie denke ich, dass das WZ größer sein sollte. Es muss ja nicht bis an die hintere Wand reichen, aber größer wäre schön. Auch ganz an die Wand wäre denkbar, vielleicht ein wenig dunkel... Vielleicht so weit, dass eine grade Treppe dahinter verläuft (wobei es dann auch fraglich ist, wie das mit den Stützen oben funktionier soll, wenn man die Räume erschließen möchte).
- darüber hinaus scheint mir das hinter dem Wohnzimmer zu verwinkelnd gebaut.
- das Badezimmer ist zu klein, Badewanne wäre toll - muss aber nicht. Was mir gefällt ist, dass ich vom Flur aus nach rechts zu den Eltern gehend nicht gleich im Schlafzimmer der Eltern lande. Aber solche Gänge kosten auch Platz.
Grundsätzlich bin ich geistig drauf und dran alles wieder zu verwerfen oder zumindest für Input ganz offen. Angefangen bei der Treppe, die m.E. schön aussehen kann, wenn sie vom Flur aus zu sehen ist. Ob es jedoch ein Treppe mit Platform, gewendelt oder grade ist, ist mir nicht wichtig. Kann ja alles toll aussehen...
South schrieb:
Guten Tag,
da haben wir ja zwei recht ähnliche Projekte und das auch noch in relativer geografischer Nähe 🙂. Allerdings sind wir hier nur zwei Haushalte auf insgesamt rund 420 m² Wohn- und Nutzfläche und unser OG war schon ausgebaut, wurde/wird von uns aber tlw. modernisiert. Beim EG sind wir derzeit bei der neuen Bodenplatte dran, leider herrscht wetterbedingt stillstand. Immerhin fehlen nur noch zwei Abschnitte - 1,5 Wochen Arbeit noch und dann ist der Teil endlich fertig.
Ich wünsch euch auf jeden Fall viel Erfolg und viel Durchhaltevermögen. Und keine bösen Überraschungen 😉
Um genauer was sagen zu können wären Maße und ein Nordpfeil nicht schlecht. Süden befindet sich nicht an der Giebelseite?
Bei uns ist es so, dass die Fensterstürze Richtung Süden und Norden aufgrund des tiefen Daches relativ niedrig sind. D.h. richtig entspannt raussehen kann man nur im Sitzen - oder man ist Kind. Wir könnten auch alle Fensterstürze erneuern und etwas höher setzen lassen, dann würde sich das Problem etwas verringern. Wir werden uns wohl aber dagegen entscheiden, da wir sowohl Essbereich, Küche und Wohnzimmer an die Giebelseite im Westen legen konnte. Hier gibt es zwei große Scheunentore die wir verglasen und die übrigen Fenster haben eine vernünftige Sturzhöhe. Im Bereich der niedrigen Fenster liegen Abstellraum, Eingangsbereich, ein Teil Essbereich und ein Teil Wohnzimmer. Ich spreche das nur an, weil das ggf. das Lichtkonzept über den Haufen rennen kann bzw. dann vllt. doch eine andere Aufteilung der Räume sinnvoll sein kann.
Was plant ihr für eure Sanierung für ein Budget ein wenn ich fragen darf?Danke für die aufmunternden Worte. Das wird sicherlich nötig sein. Euer Projekt hört sich toll an. Und es stimmt, das Lichtkonzept ist sehr wichtig, gerade weil wir nur im EG vom Süden (und ein wenig vom Westen) Licht herbekommen und im OG nur das Licht über Dachfenster kommen kann. Vom eventuell ganz dunklen Gang im OG zu schweigen, falls die Zimmer alle Dachflächen belegen...
Budget ist fraglich. Wir machen alles inhouse - mein Schwiegervater wird als Ingeneur und Elektroniker die Bauleitung übernehmen und berechnet das aktuell. Wir rechnen mit 300k+ aufgrund viel Eigenleistung + die Tatsache dass alles schon erschlossen ist (u.a. Heizung und Strom müssen wir uns "nur" anklemmen an das Haupthaus - da ist alles auf dem nahezu neuesten Stand).
Ähnliche Themen