@pagoni2020
euer Grundriss lässt mir keine Ruhe.
EG Schlafzimmer mit Schränken haben wir auch, funktioniert.
Tür neben die Treppe, nicht teils drunter, Beulen am Kopf.
OG da wo das schmale Bad ist einen Galeriegang zum Gast, davor nach Außen das Bad mit Extratür, evtl mit Gaube wegen Stehhöhe.
Das Bild von der langen Wand auf der Galerie Kante will mir nicht gefallen.
Das oberste Fenster im Haus zum Kippen machen mit Motor (bei uns die Dreiecksfenster) im Sommer Gold wert, unten nachts die kühle Luft aus dem Park und oben die Wärme raus.
euer Grundriss lässt mir keine Ruhe.
EG Schlafzimmer mit Schränken haben wir auch, funktioniert.
Tür neben die Treppe, nicht teils drunter, Beulen am Kopf.
OG da wo das schmale Bad ist einen Galeriegang zum Gast, davor nach Außen das Bad mit Extratür, evtl mit Gaube wegen Stehhöhe.
Das Bild von der langen Wand auf der Galerie Kante will mir nicht gefallen.
Das oberste Fenster im Haus zum Kippen machen mit Motor (bei uns die Dreiecksfenster) im Sommer Gold wert, unten nachts die kühle Luft aus dem Park und oben die Wärme raus.
Lese es gerade erst ... Umplanung gefällt mir grundsätzlich sehr gut .... nur die Kühlschrankposition muss ich immer noch bemängeln .
Wenn ich es recht sehe gibt es jetzt fast schon 3 Wohnbereiche? Unten ... sehr großzügig, oben und TV-Ecke oben?
Dafür ist der Gästebereich sehr eng geworden, insbesondere, da da noch ein Doppelstockbett geplant ist und das sehr schmale Bad. Ich denke, da muss man nochmal überlegen.
Wenn ich es recht sehe gibt es jetzt fast schon 3 Wohnbereiche? Unten ... sehr großzügig, oben und TV-Ecke oben?
Dafür ist der Gästebereich sehr eng geworden, insbesondere, da da noch ein Doppelstockbett geplant ist und das sehr schmale Bad. Ich denke, da muss man nochmal überlegen.
P
pagoni202012.07.20 22:38kbt09 schrieb:
Lese es gerade erst ... Umplanung gefällt mir grundsätzlich sehr gut .... nur die Kühlschrankposition muss ich immer noch bemängeln .
Wenn ich es recht sehe gibt es jetzt fast schon 3 Wohnbereiche? Unten ... sehr großzügig, oben und TV-Ecke oben?
Dafür ist der Gästebereich sehr eng geworden, insbesondere, da da noch ein Doppelstockbett geplant ist und das sehr schmale Bad. Ich denke, da muss man nochmal überlegen.Wir sind immer noch dabei, die eierlegende Wollmilchsau zu finden. Dabei drehen wir große Runden und gelangen wieder zu den Anfängen, diesmal aber mit Details, die wir teilweise hier mitgenommen haben. Daher bin ich immer dankbar für ehrlich direkten Input.Der aktuelle Grundriss wird nun auf den Bauantrag übertragen und ich sollte zeitnah das
P
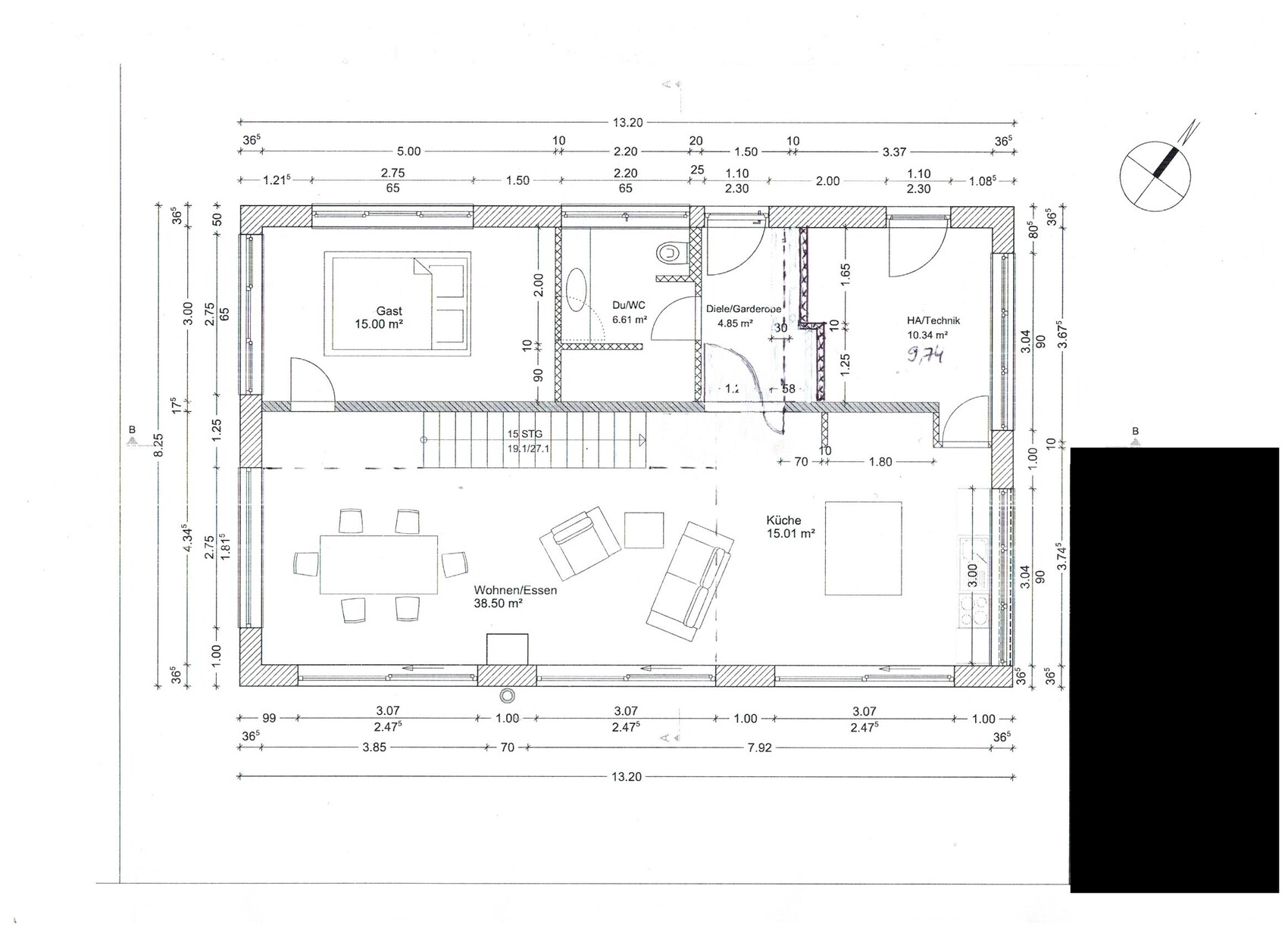
pagoni202023.07.20 07:20So - der (ziemlich) finale Entwurf. Nachdem zunächst der gesamte Entwurf auf den Kopf gestellt und neu aufgesetzt wurde mit komplettem Wohnbereich im EG haben wir uns dann doch wieder der Ursprungsversion genähert, jedoch mit einigen, für uns deutlich spürbaren Anpassungen.
Die individuelle Balance zwischen Wohnen, Gästebereich, TV-Ecke, Ruhebereich, Rückzugsmöglichkeit, Funktionalität und Gesamtoptik und all das passend zum Bebauungsplan sowie den Anforderungen des Grundstückes ist wohl immer ein weiter Weg.....
Was wurde geändert, auch wegen der verschiedenen, hier genannten Rüpeleien-
EG:
-Treppe ins OG gedreht, dadurch kein Vorbeilaufen mehr an Galeriebereich, somit ruhiger dort
-WZ ins OG verlegt, das hat Einiges freigelegt, WZ ohnehin eher seltener genutzt
-TV-Bereich jetzt im Gäste-/Alters-/Sonstwaszimmer (2. TV/Beamer im WZ-OG?)
-Gästezimmer 1m verlängert, jetzt 15qm, Treppe und Hauseingang mitgewandert
-HTR wird nach Technikbedarf abgepasst, evtl. noch geteilt (Speis/HTR)
-Kleines WZ bzw. Lümmelbereich/Relaxliege beim Kamin /Möbel (möblierung jedoch anders)
-Esszimmer dort wo ehemals WZ (kann man je nach Laune auch umgekehrt möblieren)
-Glasflächen verändert, zwei Mauerscheiben für Kamin/Holz sowie frei bzw. Kalksandstein
-Bad angepasst, sodass es für uns angenehme Maße hat (Größe Dusche etc.)
-Glasdach auf Terrasse vor Küchenbereich
OG:
-Wand Schlafzimmer/Bad wird noch etwas weiter i.R. Bad verschoben
-aktuelle WZ-Möbel passen exakt vor das nun große Fenster
- davor zur entstehenden Büroecke halbhohe Raumtrennern....
-Schlafzimmer Möblierung wird anders, Bett mittig, weg von Wand
-Dusche wird so oder evtl., auch 1x1m oder bisschen größer, dann jedoch mit Tür
Fenster am gesamten Haus angepasst/verändert, Süd- und Westseite mit Raffstore



Die individuelle Balance zwischen Wohnen, Gästebereich, TV-Ecke, Ruhebereich, Rückzugsmöglichkeit, Funktionalität und Gesamtoptik und all das passend zum Bebauungsplan sowie den Anforderungen des Grundstückes ist wohl immer ein weiter Weg.....
Was wurde geändert, auch wegen der verschiedenen, hier genannten Rüpeleien-
EG:
-Treppe ins OG gedreht, dadurch kein Vorbeilaufen mehr an Galeriebereich, somit ruhiger dort
-WZ ins OG verlegt, das hat Einiges freigelegt, WZ ohnehin eher seltener genutzt
-TV-Bereich jetzt im Gäste-/Alters-/Sonstwaszimmer (2. TV/Beamer im WZ-OG?)
-Gästezimmer 1m verlängert, jetzt 15qm, Treppe und Hauseingang mitgewandert
-HTR wird nach Technikbedarf abgepasst, evtl. noch geteilt (Speis/HTR)
-Kleines WZ bzw. Lümmelbereich/Relaxliege beim Kamin /Möbel (möblierung jedoch anders)
-Esszimmer dort wo ehemals WZ (kann man je nach Laune auch umgekehrt möblieren)
-Glasflächen verändert, zwei Mauerscheiben für Kamin/Holz sowie frei bzw. Kalksandstein
-Bad angepasst, sodass es für uns angenehme Maße hat (Größe Dusche etc.)
-Glasdach auf Terrasse vor Küchenbereich
OG:
-Wand Schlafzimmer/Bad wird noch etwas weiter i.R. Bad verschoben
-aktuelle WZ-Möbel passen exakt vor das nun große Fenster
- davor zur entstehenden Büroecke halbhohe Raumtrennern....
-Schlafzimmer Möblierung wird anders, Bett mittig, weg von Wand
-Dusche wird so oder evtl., auch 1x1m oder bisschen größer, dann jedoch mit Tür
Fenster am gesamten Haus angepasst/verändert, Süd- und Westseite mit Raffstore
P
pagoni202023.07.20 07:35Hab gerade gesehen, dass ich ein anderes Bild zum OG eingestellt habe. Möblierung Schlafzimmer soll aktuell also so werden wie auf dem Bild, Bad noch nicht final klar, ob begehbar ohne Tür (mein Favorit) oder ähnlich wie auf Bild, dann jedoch mit Glastür
Ähnliche Themen