ᐅ Grundriss Mehrgenerationenhaus Umbau alte Scheune
Erstellt am: 09.02.21 21:56
Hallo liebe Foren-Mitglieder,
nun lese ich schon einige Zeit leise mit & bin nun neugierig darauf, die ersten Entwürfe unseres Hausbau-Projektes zu posten - um zu sehen, was passiert. Ich kann mir fast nicht vorstellen, dass sich jemand extern in dieses Projekt überhaupt reindenken kann, aber ich werde mein Bestes geben, den Einstieg dazu so einfach und aussagekräftig wie möglich zu gestalten.
Zur Vorgeschichte:
Vor ca. zwei Jahren bin ich mit meiner Familie (Frau, 3 Kinder, 7+5+3 Jahre alt), meiner Schwägerin und meinen Schwiegereltern auf einen Gutshof in der Nähe von Oldenburg gezogen. Der Gutshof misst ca. 3,5 ha, inklusive Weideland für die Pferde von meiner Schwägerin. Die letzten Jahre waren wir nahezu täglich damit beschäftigt, den Gutshof zu restaurieren und die Umgebung und großen Flächen in Schuss zu bringen.
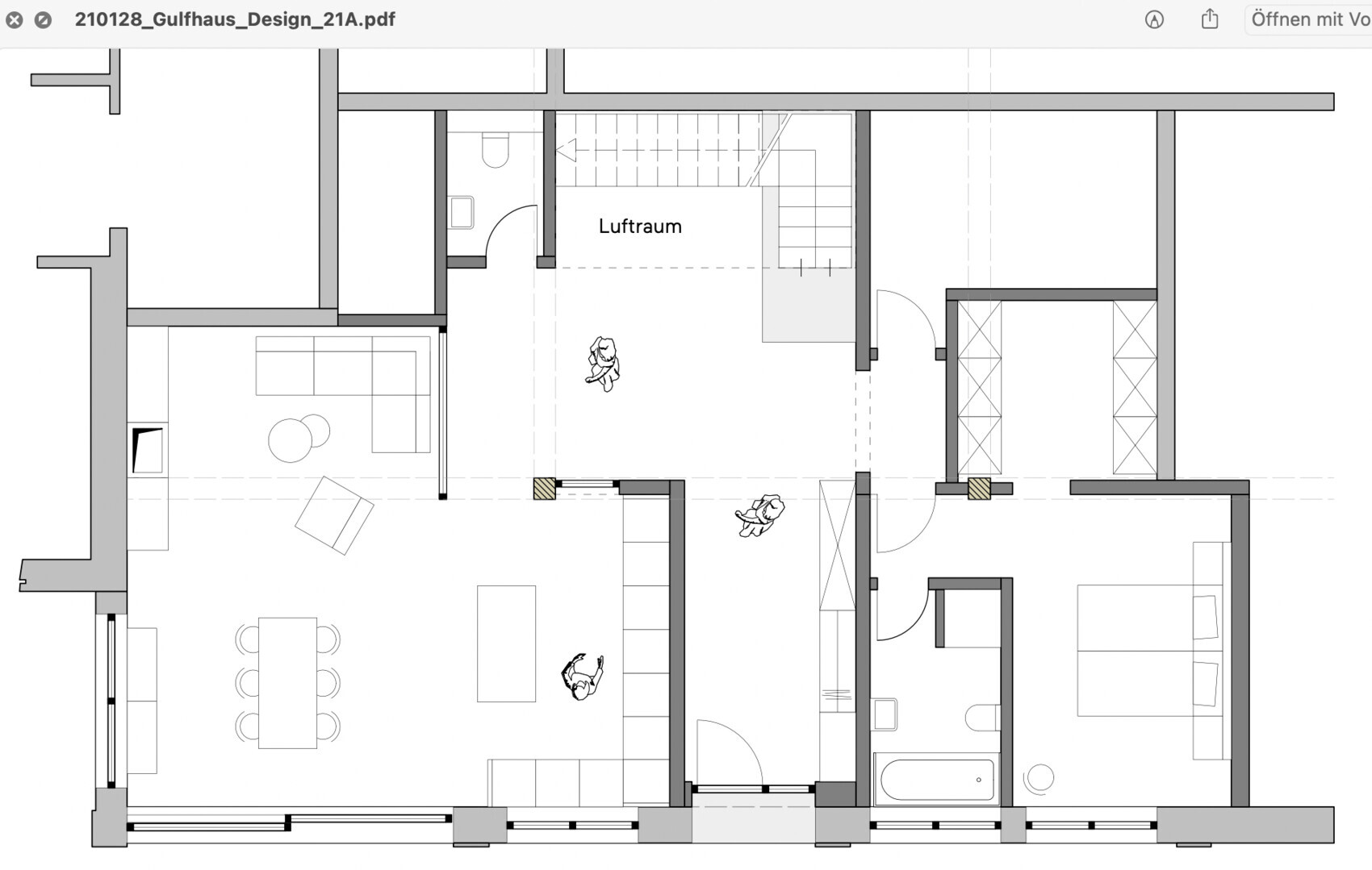
Stand der Dinge ERDGESCHOSS
Nun bin ich zusammen mit einem Freund (Zimmermann und Messebauer) den Plan angegangen, die zum Gutshof gehörende Scheune auszubauen, um meiner Familie eine Wohnung zu ermöglichen. Das meiste stammt jedoch aus meiner Hand bzw. mein Freund hat mir nur Starthilfe gegeben und ist am Projekt nicht weiter beteiligt. Die mögliche Grundfläche ist vorgegeben, da ein Teil der Scheune noch als Lagerraum für Gerätschaften etc. verwendet werden muss. Wir haben schon einige Entwürfe gemacht und die m.E. besten möchte ich anbei posten. Insgesamt sind wir ganz zufrieden mit dem Ansatz im Erdgeschoss, aber die Belichtungssituation macht uns insbesondere zu schaffen (da nur von einer Seite aus Fensterflächen generiert werden können, da nur die Südseite der Scheune ausgebaut werden kann). Unter bringen wollen wir hier eine Wohn-Essküche mit Kamin, Treppe, Hauswirtschaftsraum, Elternschlafzimmer mit begehbaren kleiderschrank und vollwertigem Bad; möglichst mit Badewanne.
Wichtig dazu vorzumerken ist: zwei Pfeiler (30x30cm) ziehen sich vom Boden bis ins Dach hinein. Diese können aus statischen Gründen nicht verändert werden und beinflussen auch das OG samt der Zimmeraufteilung und Treppeneinteilung. Die Südseite haben wir mit 14-15m Breite festgelegt, maximal 16m ist denkbar, aber auch keinen Fall mehr.
Stand der Dinge OBERGESCHOSS
Hier bin ich bisher nur grob tätig gewesen, da ich noch stets mit der Aufteilung im EG nicht zufrieden bin. Einen ganz groben Entwurf für die drei Kinderzimmer und dem Badezimmer habe ich angefügt.
Wichtig dabei ist: in diesem Geschoss gehen von den besagten Pfeilern noch jeweils eine Stütze schräg vom Boden bis zur Decke des OG nach Norden, die auch nicht entfernt werden können. Meines Erachtens sollten diese in die Wände eingemauert werden. Am äußersten Rand einer solchen Mauer könnte man eine Tür einbauen. Aber so weit sind wir noch gar nicht...
Angaben zur GRUNDRISSPLANUNG:
Soweit ich das Beurteilen kann, sind nicht alle Angaben (Grundflächenzahl, Geschossflächenzahl etc.) relevant für diesen Bau im Bestand. Ich werde diese soweit wie möglich nennen und bei Fragen aus der Community mein Bestes tun, diese zu beantworten.
Von meiner Seite aus ALLGEMEIN:
Ich freue mich über sämtliches, konstruktives Feedback und bin auch nicht enttäuscht, wenn es mich in meiner Ansicht (wie alles auszusehen hat) erschüttern mag. Zum jetztigen Zeitpunkt kann noch an allen Facetten und Wänden gerüttelt werden. Ich freue mich drüber.
==========================================================
Bebauungsplan/Einschränkungen
Größe des Grundstücks: 3,5 ha (inklusie 2ha Weideland)
Hang: nein
Geschossigkeit: 2
Dachform: Satteldach mit 50 Grad Neigung, Scheune ca. 12m hoch
Stilrichtung: Gutshof
Ausrichtung: Ausbau der Südseite
Maximale Höhen/Begrenzungen: k.A.
weitere Vorgaben: Entwürfe laut Aussage Baubehörde so ohne Probleme realisierbar.
Anforderungen der Bauherren
Stilrichtung, Dachform, Gebäudetyp: Einfamilienhaus in Gutshof (Bauen in Bestand)
Geschosse: EG+OG (2 Vollgeschosse) + Option auf Ausbau des Dachgeschosses
Anzahl der Personen, Alter: fünf Personen: 46, 37, 7, 5, 3
Raumbedarf im EG, OG: 200qm +
Büro: Familiennutzung oder Homeoffice?: Büro aktuell nicht angedacht, wenn möglich mit einem Arbeitsplatz
Schlafgäste pro Jahr: 10
offene oder geschlossene Architektur: offen, aber das WZ/EZ sollte nicht zu offen sein
konservativ oder moderne Bauweise: eher modern
offene Küche, Kochinsel: offene Küche, Kochinsel
Anzahl Essplätze: mind. 6
Kamin: ja, soll im Wohn-Esszimmer sein, gerne an der Außenwand
Musik/Stereowand: nein
Balkon, Dachterrasse: nein, nur Terrasse zum Garten hin - gerne mit Terrassentür
Garage, Carport: nein, Stellplätze vorhanden
Nutzgarten, Treibhaus: nein
Favorisierte Heiztechnik: Anschluss an die Heizung des Haupthaus, somit ist das nicht relevant
Hausentwurf
Von wem stammt die Planung: Eigenentwurf
Was gefällt besonders? Warum?:
- Das Erdgeschoss finden wir toll mit den großen Fensterfläche Richtung Süden, ist auch nötig, um in das Innere der Scheune bzw. in die hinteren Ecken des Wohnzimmers Licht zu bekommen
- Der Zugang zum Elterntrakt geht nicht direkt vom Flur aus. Auch wenn das ein Fläche kostet, gefällt mir das.
Was gefällt nicht? Warum?:
- Ich bin sehr unentschlossen im EG, wie man ein Bad unter bekommt.
- Die große Frage ist auch, ob das WZ bis an die hintere Mauer ragt. Ich bin der Meinung, dass da noch stets Licht ankommt, aber ich weiß den Raum nicht so ganz zu nutzen. Oder ob man eine Treppe dahinter legen soll.
- Zugang zum WZ ist mir nicht klar. Einerseits haben wir es gerne geschlossen, andererseits ist die Option, es offen zu halten auch spannend - eventuell durch eine Schiebetür.
- Wir finden es schön, wenn man vom Eingang aus die Treppe sieht (anstatt die Treppe in ein dunkles Ecke zu verbannen).
Wenn Ihr verzichten müsst, auf welche Details/Ausbauten
-könnt Ihr verzichten: Badewanne im Bad neben Elternschlafzimmer, Dusche reicht
-könnt Ihr nicht verzichten: Arbeitszimmer (könnte auch ins Dachgeschoss bzw. aktuell gibt es auch Alternativen im Haupthaus)
==========================================================
GUTSHOF - auf dem Bild ist die Scheune zu sehen, Maße insgesamt 30m lang, 20m breit - somit ist nur der Ausbau der Süd-West-Seite machbar.

VORENTWÜRFE - OFFENE GESTALTUNG Entwürfe 21A + 21B




nun lese ich schon einige Zeit leise mit & bin nun neugierig darauf, die ersten Entwürfe unseres Hausbau-Projektes zu posten - um zu sehen, was passiert. Ich kann mir fast nicht vorstellen, dass sich jemand extern in dieses Projekt überhaupt reindenken kann, aber ich werde mein Bestes geben, den Einstieg dazu so einfach und aussagekräftig wie möglich zu gestalten.
Zur Vorgeschichte:
Vor ca. zwei Jahren bin ich mit meiner Familie (Frau, 3 Kinder, 7+5+3 Jahre alt), meiner Schwägerin und meinen Schwiegereltern auf einen Gutshof in der Nähe von Oldenburg gezogen. Der Gutshof misst ca. 3,5 ha, inklusive Weideland für die Pferde von meiner Schwägerin. Die letzten Jahre waren wir nahezu täglich damit beschäftigt, den Gutshof zu restaurieren und die Umgebung und großen Flächen in Schuss zu bringen.
Stand der Dinge ERDGESCHOSS
Nun bin ich zusammen mit einem Freund (Zimmermann und Messebauer) den Plan angegangen, die zum Gutshof gehörende Scheune auszubauen, um meiner Familie eine Wohnung zu ermöglichen. Das meiste stammt jedoch aus meiner Hand bzw. mein Freund hat mir nur Starthilfe gegeben und ist am Projekt nicht weiter beteiligt. Die mögliche Grundfläche ist vorgegeben, da ein Teil der Scheune noch als Lagerraum für Gerätschaften etc. verwendet werden muss. Wir haben schon einige Entwürfe gemacht und die m.E. besten möchte ich anbei posten. Insgesamt sind wir ganz zufrieden mit dem Ansatz im Erdgeschoss, aber die Belichtungssituation macht uns insbesondere zu schaffen (da nur von einer Seite aus Fensterflächen generiert werden können, da nur die Südseite der Scheune ausgebaut werden kann). Unter bringen wollen wir hier eine Wohn-Essküche mit Kamin, Treppe, Hauswirtschaftsraum, Elternschlafzimmer mit begehbaren kleiderschrank und vollwertigem Bad; möglichst mit Badewanne.
Wichtig dazu vorzumerken ist: zwei Pfeiler (30x30cm) ziehen sich vom Boden bis ins Dach hinein. Diese können aus statischen Gründen nicht verändert werden und beinflussen auch das OG samt der Zimmeraufteilung und Treppeneinteilung. Die Südseite haben wir mit 14-15m Breite festgelegt, maximal 16m ist denkbar, aber auch keinen Fall mehr.
Stand der Dinge OBERGESCHOSS
Hier bin ich bisher nur grob tätig gewesen, da ich noch stets mit der Aufteilung im EG nicht zufrieden bin. Einen ganz groben Entwurf für die drei Kinderzimmer und dem Badezimmer habe ich angefügt.
Wichtig dabei ist: in diesem Geschoss gehen von den besagten Pfeilern noch jeweils eine Stütze schräg vom Boden bis zur Decke des OG nach Norden, die auch nicht entfernt werden können. Meines Erachtens sollten diese in die Wände eingemauert werden. Am äußersten Rand einer solchen Mauer könnte man eine Tür einbauen. Aber so weit sind wir noch gar nicht...
Angaben zur GRUNDRISSPLANUNG:
Soweit ich das Beurteilen kann, sind nicht alle Angaben (Grundflächenzahl, Geschossflächenzahl etc.) relevant für diesen Bau im Bestand. Ich werde diese soweit wie möglich nennen und bei Fragen aus der Community mein Bestes tun, diese zu beantworten.
Von meiner Seite aus ALLGEMEIN:
Ich freue mich über sämtliches, konstruktives Feedback und bin auch nicht enttäuscht, wenn es mich in meiner Ansicht (wie alles auszusehen hat) erschüttern mag. Zum jetztigen Zeitpunkt kann noch an allen Facetten und Wänden gerüttelt werden. Ich freue mich drüber.
==========================================================
Bebauungsplan/Einschränkungen
Größe des Grundstücks: 3,5 ha (inklusie 2ha Weideland)
Hang: nein
Geschossigkeit: 2
Dachform: Satteldach mit 50 Grad Neigung, Scheune ca. 12m hoch
Stilrichtung: Gutshof
Ausrichtung: Ausbau der Südseite
Maximale Höhen/Begrenzungen: k.A.
weitere Vorgaben: Entwürfe laut Aussage Baubehörde so ohne Probleme realisierbar.
Anforderungen der Bauherren
Stilrichtung, Dachform, Gebäudetyp: Einfamilienhaus in Gutshof (Bauen in Bestand)
Geschosse: EG+OG (2 Vollgeschosse) + Option auf Ausbau des Dachgeschosses
Anzahl der Personen, Alter: fünf Personen: 46, 37, 7, 5, 3
Raumbedarf im EG, OG: 200qm +
Büro: Familiennutzung oder Homeoffice?: Büro aktuell nicht angedacht, wenn möglich mit einem Arbeitsplatz
Schlafgäste pro Jahr: 10
offene oder geschlossene Architektur: offen, aber das WZ/EZ sollte nicht zu offen sein
konservativ oder moderne Bauweise: eher modern
offene Küche, Kochinsel: offene Küche, Kochinsel
Anzahl Essplätze: mind. 6
Kamin: ja, soll im Wohn-Esszimmer sein, gerne an der Außenwand
Musik/Stereowand: nein
Balkon, Dachterrasse: nein, nur Terrasse zum Garten hin - gerne mit Terrassentür
Garage, Carport: nein, Stellplätze vorhanden
Nutzgarten, Treibhaus: nein
Favorisierte Heiztechnik: Anschluss an die Heizung des Haupthaus, somit ist das nicht relevant
Hausentwurf
Von wem stammt die Planung: Eigenentwurf
Was gefällt besonders? Warum?:
- Das Erdgeschoss finden wir toll mit den großen Fensterfläche Richtung Süden, ist auch nötig, um in das Innere der Scheune bzw. in die hinteren Ecken des Wohnzimmers Licht zu bekommen
- Der Zugang zum Elterntrakt geht nicht direkt vom Flur aus. Auch wenn das ein Fläche kostet, gefällt mir das.
Was gefällt nicht? Warum?:
- Ich bin sehr unentschlossen im EG, wie man ein Bad unter bekommt.
- Die große Frage ist auch, ob das WZ bis an die hintere Mauer ragt. Ich bin der Meinung, dass da noch stets Licht ankommt, aber ich weiß den Raum nicht so ganz zu nutzen. Oder ob man eine Treppe dahinter legen soll.
- Zugang zum WZ ist mir nicht klar. Einerseits haben wir es gerne geschlossen, andererseits ist die Option, es offen zu halten auch spannend - eventuell durch eine Schiebetür.
- Wir finden es schön, wenn man vom Eingang aus die Treppe sieht (anstatt die Treppe in ein dunkles Ecke zu verbannen).
Wenn Ihr verzichten müsst, auf welche Details/Ausbauten
-könnt Ihr verzichten: Badewanne im Bad neben Elternschlafzimmer, Dusche reicht
-könnt Ihr nicht verzichten: Arbeitszimmer (könnte auch ins Dachgeschoss bzw. aktuell gibt es auch Alternativen im Haupthaus)
==========================================================
GUTSHOF - auf dem Bild ist die Scheune zu sehen, Maße insgesamt 30m lang, 20m breit - somit ist nur der Ausbau der Süd-West-Seite machbar.
VORENTWÜRFE - OFFENE GESTALTUNG Entwürfe 21A + 21B
Dazu ergänzen möchte ich noch (da es in den Vorentwürfen nicht direkt immer rauszulesen ist):
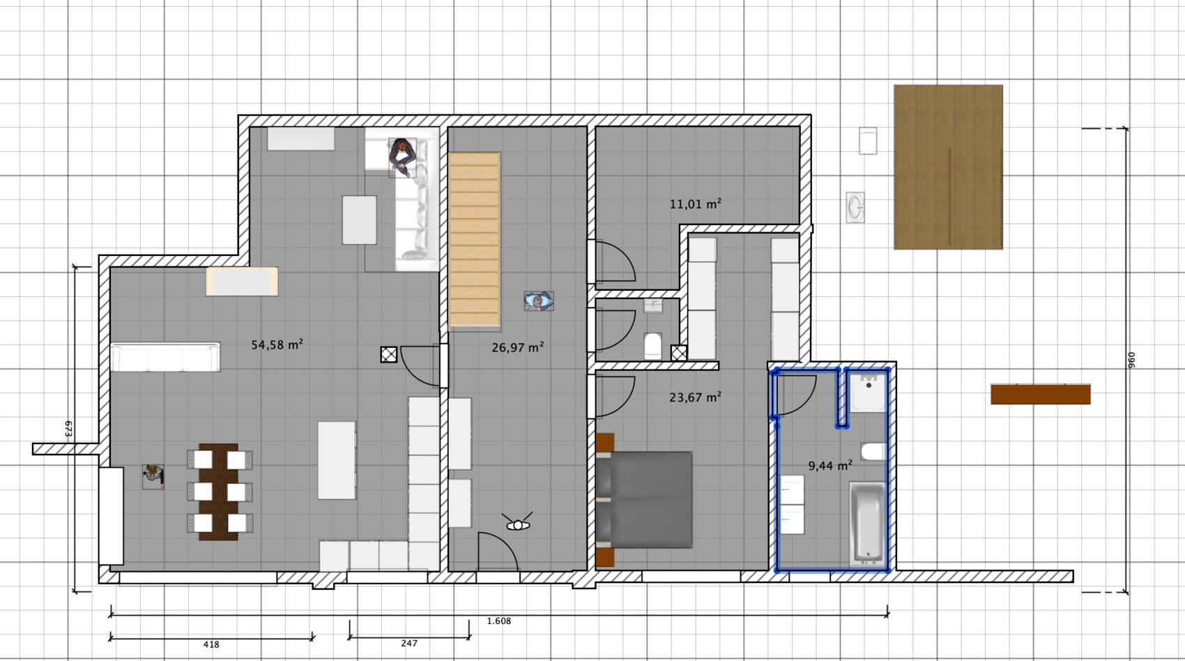
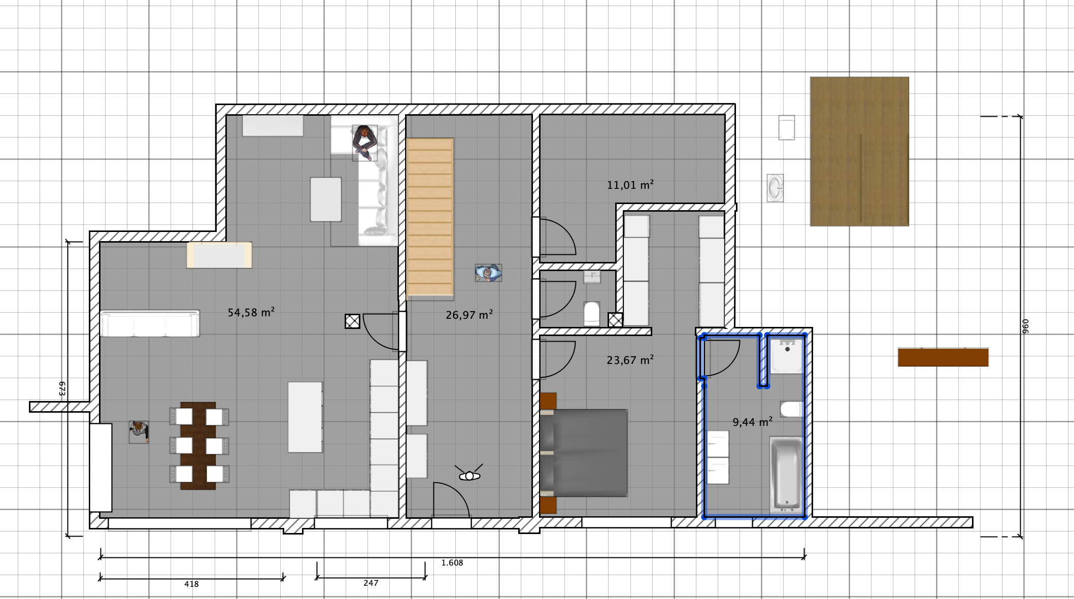
Die Länge der Südseite variiert in den Entwürfen zwischen 14,18m und 16,18m. Irgendwo dazwischen kann die Südseite festgelegt werden. Alle anderen Mauern, die das EG nach Westen, Norden und Osten begrenzen, sind nicht veränderbar, die gehören zum Bestand. Der Kniestock im OG beträgt aktuell 80 cm.
Anbei noch Screenshots der Mauern mit denen ich "arbeiten" muss (in dicken schwarz).
EG - fixe Mauern (24,5cm dick, Pfeiler 30x30cm)

DG - fixe Mauern (24,5cm dick, Pfeiler 30x30cm)

Die Länge der Südseite variiert in den Entwürfen zwischen 14,18m und 16,18m. Irgendwo dazwischen kann die Südseite festgelegt werden. Alle anderen Mauern, die das EG nach Westen, Norden und Osten begrenzen, sind nicht veränderbar, die gehören zum Bestand. Der Kniestock im OG beträgt aktuell 80 cm.
Anbei noch Screenshots der Mauern mit denen ich "arbeiten" muss (in dicken schwarz).
EG - fixe Mauern (24,5cm dick, Pfeiler 30x30cm)
DG - fixe Mauern (24,5cm dick, Pfeiler 30x30cm)
Für unser Hineindenken wäre wohl hilfreich, Du zeichnetest das Vorhaben mal in den Kontext ein, d.h. läßt die Zeichnungen nicht an den Grenzen des Wohnausbaues enden, sondern stelltest auch die unberührt bleibenden Scheunenteile noch mit dar. Der Übersichtlichkeit dient auch, Darstellungen von Ist/Soll-Kombinationen mehrfarbig zu machen - üblich ist grau für bleibt, rot für neu und gelb für wird abgebrochen.
24,5 cm ordne ich keinem allgemeinen Ziegelformat zu, das muß ein regionales sein, vermutlich noch aus der vormetrischen Zeit tradiert.
https://www.instagram.com/11antgmxde/
https://www.linkedin.com/company/bauen-jetzt/
24,5 cm ordne ich keinem allgemeinen Ziegelformat zu, das muß ein regionales sein, vermutlich noch aus der vormetrischen Zeit tradiert.
https://www.instagram.com/11antgmxde/
https://www.linkedin.com/company/bauen-jetzt/
Guten Tag,
da haben wir ja zwei recht ähnliche Projekte und das auch noch in relativer geografischer Nähe 🙂. Allerdings sind wir hier nur zwei Haushalte auf insgesamt rund 420 m² Wohn- und Nutzfläche und unser OG war schon ausgebaut, wurde/wird von uns aber tlw. modernisiert. Beim EG sind wir derzeit bei der neuen Bodenplatte dran, leider herrscht wetterbedingt stillstand. Immerhin fehlen nur noch zwei Abschnitte - 1,5 Wochen Arbeit noch und dann ist der Teil endlich fertig.
Ich wünsch euch auf jeden Fall viel Erfolg und viel Durchhaltevermögen. Und keine bösen Überraschungen 😉
Um genauer was sagen zu können wären Maße und ein Nordpfeil nicht schlecht. Süden befindet sich nicht an der Giebelseite?
Bei uns ist es so, dass die Fensterstürze Richtung Süden und Norden aufgrund des tiefen Daches relativ niedrig sind. D.h. richtig entspannt raussehen kann man nur im Sitzen - oder man ist Kind. Wir könnten auch alle Fensterstürze erneuern und etwas höher setzen lassen, dann würde sich das Problem etwas verringern. Wir werden uns wohl aber dagegen entscheiden, da wir sowohl Essbereich, Küche und Wohnzimmer an die Giebelseite im Westen legen konnte. Hier gibt es zwei große Scheunentore die wir verglasen und die übrigen Fenster haben eine vernünftige Sturzhöhe. Im Bereich der niedrigen Fenster liegen Abstellraum, Eingangsbereich, ein Teil Essbereich und ein Teil Wohnzimmer. Ich spreche das nur an, weil das ggf. das Lichtkonzept über den Haufen rennen kann bzw. dann vllt. doch eine andere Aufteilung der Räume sinnvoll sein kann.
Was plant ihr für eure Sanierung für ein Budget ein wenn ich fragen darf?
da haben wir ja zwei recht ähnliche Projekte und das auch noch in relativer geografischer Nähe 🙂. Allerdings sind wir hier nur zwei Haushalte auf insgesamt rund 420 m² Wohn- und Nutzfläche und unser OG war schon ausgebaut, wurde/wird von uns aber tlw. modernisiert. Beim EG sind wir derzeit bei der neuen Bodenplatte dran, leider herrscht wetterbedingt stillstand. Immerhin fehlen nur noch zwei Abschnitte - 1,5 Wochen Arbeit noch und dann ist der Teil endlich fertig.
Ich wünsch euch auf jeden Fall viel Erfolg und viel Durchhaltevermögen. Und keine bösen Überraschungen 😉
Um genauer was sagen zu können wären Maße und ein Nordpfeil nicht schlecht. Süden befindet sich nicht an der Giebelseite?
Bei uns ist es so, dass die Fensterstürze Richtung Süden und Norden aufgrund des tiefen Daches relativ niedrig sind. D.h. richtig entspannt raussehen kann man nur im Sitzen - oder man ist Kind. Wir könnten auch alle Fensterstürze erneuern und etwas höher setzen lassen, dann würde sich das Problem etwas verringern. Wir werden uns wohl aber dagegen entscheiden, da wir sowohl Essbereich, Küche und Wohnzimmer an die Giebelseite im Westen legen konnte. Hier gibt es zwei große Scheunentore die wir verglasen und die übrigen Fenster haben eine vernünftige Sturzhöhe. Im Bereich der niedrigen Fenster liegen Abstellraum, Eingangsbereich, ein Teil Essbereich und ein Teil Wohnzimmer. Ich spreche das nur an, weil das ggf. das Lichtkonzept über den Haufen rennen kann bzw. dann vllt. doch eine andere Aufteilung der Räume sinnvoll sein kann.
Was plant ihr für eure Sanierung für ein Budget ein wenn ich fragen darf?
Ähnliche Themen