Grundriss-Ideen, 2,5-geschossig

4,70 Stern(e) 3 Votes
Zuletzt aktualisiert 20.11.2025
Sie befinden sich auf der Seite 4 der Diskussion zum Thema: Grundriss-Ideen, 2,5-geschossig
>> Zum 1. Beitrag <<

G

Grym

Ich bin überhaupt nicht beratungsresistent, wir können jetzt gerne weiter über den Grundriss diskutieren oder du begibst dich eben auf dieses Flame-Niveau herab, welches ich sonst aus dem grünen Forum kenne. Zu 95 Prozent sind dort die Beiträge der Architekten schlichtweg nutzlos und von den dortigen Laien kamen teilweise deutlich bessere Vorschläge und Ideen als von denen, welche sich Architekt schimpfen.

Ein Architekt wird im Grunde ja auch nur dort gebraucht, wo komplexere aber langweilige und gesichtslose Großbauten hingebaut werden. Großraumbüros mit hundert gleichartigen Büros in einer Reihe; riesige Wohnhäuser mit 10qm Kinderzimmern in Schlauchform, Neubau-Wohnungen mit abartig schlechten Grundrissen - alles das Werk von Architekten und dafür sind die auch geeignet.

Wie unsere Städte heute verunstaltet werden - Architekten. Ich weiß nicht was die Leute im Studium lernen - Grundrisse, Wohnungen und lebenswerten Wohnraum entwerfen lernen die jedenfalls nicht. Vermutlich lernen die eher, wie man in so einem Großraumbüro die Leitungen und Schächte verlegt oder wie man kostensparend eine gesichtslose Großwohnanlage mit Mindeststandards hinrotzt.

Wo wir gerade bei der Inkompetenz von Architekten sind - unser Bürobau wurde auch von einem Architekten entworfen und dieser hat die Bauleitung gemacht. Es gibt haufenweise Putzrisse, er hat die Netzwerkinstallation großflächig vergessen (in einem Büro! nicht mal Leerrohre, nichts...), so dass diese aufwendig nachher Auf-Putz verlegt wurde, es ist alles in allem einfach schlecht gemacht (Heizkörper teilweise unterdimensioniert; tlw. schlechte natürliche Belichtungssituation; Raffstoren ohne Windwarner; viel, viele Details) - ein weiteres Werk eines Architekten (2000er Jahre). Bei einer unserer Produktionshallen wurde die Dachlast falsch ausgelegt für die Sprinkleranlage. Also anders gesagt, der Architekt hat vergessen die Sprinkleranlage mit einzuplanen und der Statiker hat sie dann natürlich nicht einberechnet.

Für den Hausbau braucht es einen Bauvorlageberechtigen und das kann statt eines Architekten auch ein Bau.-Ing. sein bzw. ein Statiker/Bau.-Ing. - notfalls reicht auch ein Stempel-August. Angesichts der hohen Arbeitslosen-Rate und den geringen Gehältern ist vermutlich fast jeder Architekt auch froh darüber, Stempelaugust spielen zu dürfen.

Sinnlose Diskussion über Architekten beendet. Meine Haus-Planung werde ich später jemandem anvertrauen, der wirklich Ahnung von der Materie hat - einem Bau-Ingenieur. Aber der Grundriss sollte vorher fertig sein.

Hier ist also der Grundriss, darüber kann man diskutieren. Ich lasse mich gerne beraten, nehme alle Tipps an, gleich ob von Bauherren, interessierten Laien oder Architekten. Bisher gab es die meisten sinnvollen Kommentare aber von Bauherren und interessierten Laien und kaum was sinnvolles von Architekten. Das überzeugt mich ganz und gar nicht, dafür auch noch einen Pfifferling zu zahlen.

EG

Grundriss einer Wohnung: Wohnzimmer mit Sofa, Essbereich, Küche, Bad, Türen und Maße.


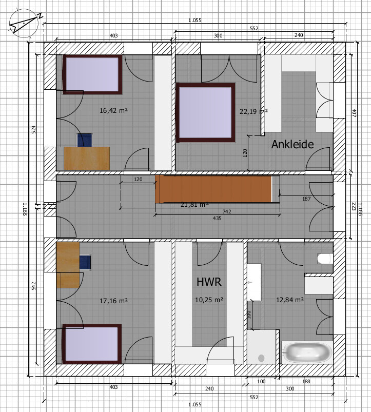
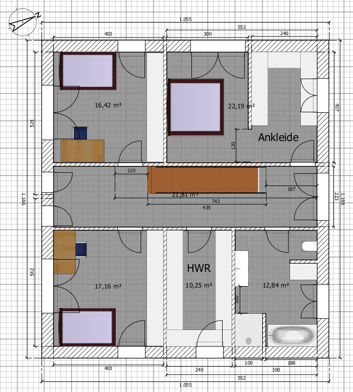
OG Version a)

Grundriss einer Wohnung mit mehreren Zimmern, Betten, Tisch, Bad und Türen; Maßangaben in m².



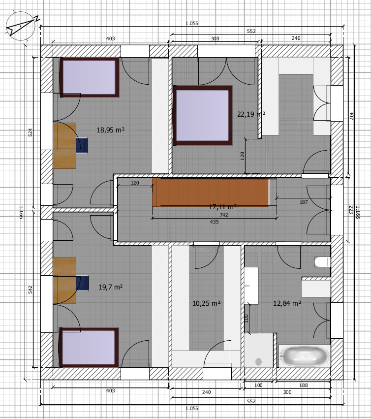
OG Version b)

Grundriss eines Hauses mit Zimmern, Türen, Ankleide, HWR und Bad; Flächen in m2.

(Fenster werden noch mittig angeordnet usw.)

DG noch nicht fertig

Raum-Grundriss: vier Bereiche; oben 17,17; links 30,72; rechts 30,67; unten 22,76; brauner Tisch.
 
Zuletzt bearbeitet von einem Moderator:
L

Legurit

Ich mag die Version B lieber - aber mit mittigem Fensterelement - vielleicht auch nicht bodentief, davor dann eine Couch. Die Nase in den Kinderzimmern kann man eh nicht wirklich nutzen und man hat das Gefühl, dass man gegen eine Wand läuft (könnt ich mir vorstellen).
Ansonsten finde ich es von den Grundrissen gut.

Von außen wärs nicht meins - aber gut, wäre mir trotzdem egal glaub ich - in einem Neubaugebiet mit vielen dieser Kästen wirkt es sogar vielleicht okay.

Der Küchenplaner war heut zum Aufmaß da und meinte "wow das ist aber groß, von außen wirkt es kleiner" (bei leicht offenem Mund) - also denke ich mal, dass wir da auch nicht den Jackpot getroffen haben
 
tomtom79

tomtom79

@Grym ich habe oft über deine Ideen lächeln müssen, aber wo du auf jeden Fall recht hast sind die Architekten mir ihrer gefressen Weisheit.
 
wrobel

wrobel

Moin Moin

Schön das das mit den Architekten so schon erklärt wurde. Klasse.
Ich vermute aber das es bei den Dipl. Kaufleuten u. MB Technikern, was machen die denn überhaupt, auch ähnlich ist.
Bei Installateuren bin ich da ganz sicher.
Solche Pauschalaussagen sind pauschal mal ganz großer Mist !

Der Ton im grünen Forum ist schon recht deutlich.
Das was von Grym und anderen eingestellt wird ist / war aber auch nicht mal im Ansatz brauchbar.
Die Architekten starten dann neu und die Laien versuchen dann mit "wändeschieben" zu guten Ergebnissen zu kommen.

Der eingestellte Grundriss ist dann, wie ich finde, doch gut.
An der Außenwirkung ist aber noch kräftig zu arbeiten.


Olli
 
B

Bauexperte

Hallo,

.... und von den dortigen Laien kamen teilweise deutlich bessere Vorschläge und Ideen als von denen, welche sich Architekt schimpfen.
Ist Dir schon einmal die Idee gekommen, daß diese User auch Deine Erwartungshaltung bedienen? Laien können - wenn sie nicht eine künstlerische Ader haben, wie bpsw. Fotografen, kaum Raumkonzepte entwickeln, welche über das praktische Maß hinausgehen sollen.

Wo wir gerade bei der Inkompetenz von Architekten sind ...
Ich möchte Dich auffordern, diese Allgemeinplätze zu unterlassen; das ist - abseits schlechtem Stil, hier nun wirklich nicht gewünscht und passt keineswegs zum Forenton.

Wrobel war schneller, trifft aber den Kopf auf den Nagel. Es gibt in jedem Berufszweig gute, wie weniger gute Köpfe. Du hast für Dich entschieden, Dein Bauvorhaben mit einem Bau-Ing. zu schultern; das ist imho auch die beste Entscheidung für Dich. Zumal Bau-Ings. wenig bis gar nichts mit kreativen Gestaltungen am Hut haben (wollen) und gerne "nur" das Thema Antrag und Vergabe begleiten. Insofern passen Du, mit Deinem Wunsch, Deinen Grundriss selbst zu entwickeln und ein nüchterner Bau-Ing. gut zusammen. Lass es dabei und freue Dich, daß Du diesen Part der Suche abhakten kannst.

Grüße, Bauexperte
 
M

marv45

Um von dem unqualifizierten Gejammer über angeblich unfähige Architekten mal wieder wegzukommen, muß ich mich in diesem Fall Yvonne anschließen. Mir gefällt der Grundriss auch nicht. Das Haus noch weniger. Es ist ein großer unpersönlicher Klotz, dessen Fenster aussehen, wie bei einem Lego-Kinderhaus. Wenn tatsächlich ein Budget zur Verfügung steht, um ein Haus dieser Größe zu bauen, dann rate ich dringend jemanden zu engagieren, der so etwas auch zeichnen kann.
Unser Haus ist ähnlich groß, hat aber meiner Meinung nach so etwas wie eine "Seele"; dies vermisse ich hier.
Es wird nur darauf geschaut, ob auch alle notwendigen Quadratmeter irgendwie untergebracht worden sind. Der Vergleich mit anderen, nicht gerade sympathischen Häusern, macht es nicht besser.
Und ob ich übrigens überall bodentiefe Fenster haben möchte (schwer in Mode z.Z.), würde ich auch noch mal überdenken. Wenn dann da eine Waschmaschine oder ähnliches davorsteht, sieht das von außen nicht mehr so toll aus.
 
Zuletzt aktualisiert 20.11.2025
Im Forum Grundrissplanung / Grundstücksplanung gibt es 2535 Themen mit insgesamt 87978 Beiträgen


Ähnliche Themen zu Grundriss-Ideen, 2,5-geschossig
Nr.ErgebnisBeiträge
1Grundriss Neubau Einfamilienhaus: Fenster/Türen/Innenwände Größe/Anordnung ok? 20
2Grundriss, 3D Bilder Stadtvilla 160m². Bitte um Feedback:) - Seite 351
3Vorplanung mit dem Architekten - eigener Grundriss sinnvoll? 18
4Grundriss Einfamilienhaus geplant, Fenster gefallen uns 43
5Bungalow 135qm: Grundriss + Fenster - Seite 7104
6Grundriss die IV! :-) - Seite 318
7Meinung zum Grundriss eines geplanten Bauhauses 23
8Grundriss Einfamilienhaus mit Wohnkeller am Hang ? - Seite 538
9Meinungen zu Grundriss Einfamilienhaus, ca. 160qm, Friesenhaus - Seite 325
10Grundriss gesucht für Hanghaus - Seite 212
11Grundriss Einfamilienhaus mit Satteldach, 1,5 Geschossig - Verbesserungen? - Seite 9124
12Grundriss Stadtvilla 150 m2- Eure Meinung ist gefragt :-) 45
13Änderungsideen an unserem Grundriss 20
14Einfamilienhaus 130-140 m² Grundriss Planung - Seite 11173
15Grundriss-Planung Einfamilienhaus 230-235 m² auf zwei Vollgeschossen - Seite 283
16Grundriss-Planung Neubau Einfamilienhaus 2-Geschosser ca. 135qm - Seite 442
17Grundriss Doppelhaushälfte 7x16m auf 390qm in einer Siedlung 125
18Wunschliste für den Architekten 32
19Grundriss-Bewertung für Einfamilienhaus ca. 200 qm 51
20Grundriss 175qm Satteldach ohne Keller - Seite 6136

Oben