ᐅ Grundriss Haus mit Einliegerwohnung - Verbesserungsvorschläge?
Erstellt am: 31.08.22 12:31
Hallo zusammen,
wir möchten auf ein 472m2 großes Grundstück ein Haus mit 2 Wohneinheiten bauen (WE1 143.39 m2 / WE2 69.57 m2).
Die 2. Wohneinheit ist für meine Eltern bestimmt und Hauptwohneinheit für meine Familie mit einem Ehemann und 3 Kindern (7/13/17 Jahre).
Da unsere Grundstück relativ klein ist, möchte wir ein kompaktes Haus bauen, damit wir möglich viel Gartenfläche haben.
Wir sind gerade in der finalen Planungsphase und hätte gerne Feedback von Euch zu unserem Bauvorhaben.
Wir haben das unsicher Gefühl, dass wir vielleicht etwas Wesentliche vergessen haben bzw. nicht genug beachtet haben, da wir eher auf die Kompaktheit des Hauses bei der Planung fokussiert waren.
Bebauungsplan/Einschränkungen
Größe des Grundstücks: 472m2
Hang: nein
Grundflächenzahl: 0,4
Geschossflächenzahl: 0,6
Baufenster, Baulinie und -grenze
Randbebauung: Süden und Osten
Anzahl Stellplatz: 2
Geschossigkeit: 2
Dachform: Walmdach
Stilrichtung:
Ausrichtung: Süd/West
Maximale Höhen/Begrenzungen: 10m
weitere Vorgaben
Anforderungen der Bauherren
Stilrichtung, Dachform, Gebäudetyp: Stadtvilla
Keller, Geschosse: nein
Anzahl der Personen, Alter: 1. Wohneinheit 5 (43,38,17, 13, 7). 2. Wohneinheit (beide ü. 60)
Raumbedarf im EG, OG:
Büro: Familiennutzung oder Homeoffice? -
Schlafgäste pro Jahr: 2-3 mal im Jahr
offene oder geschlossene Architektur: offene
konservativ oder moderne Bauweise: moderne
offene Küche, Kochinsel; offene Küche, keine Kochinsel
Anzahl Essplätze: 5
Kamin: nein
Musik/Stereowand: nein
Balkon, Dachterrasse: nein
Garage, Carport: Garage
Nutzgarten, Treibhaus: nein
weitere Wünsche/Besonderheiten/Tagesablauf, gern auch Begründungen, warum dieses oder das nicht sein soll
Das Haus soll kompakt sein, aber trotzdem geräumig wirken.
Hausentwurf
Von wem stammt die Planung:
-Planer eines Bauunternehmens
-Architekt: Vom Architekten
-Do-it-Yourself
Was gefällt besonders? Warum? Es ist ein relative kleines Haus mit 2 Wohneinheiten.
Was gefällt nicht? Warum? Vielleicht sind die Räume (Kinderzimmer und die Räume in der Einliegerwohnung zu klein?)
Preisschätzung lt Architekt/Planer: Ca. 600.000€
Persönliches Preislimit fürs Haus, inkl Ausstattung: 650.000€
favorisierte Heiztechnik: Nahwärme
Wenn Ihr verzichten müsst, auf welche Details/Ausbauten
-könnt Ihr verzichten: eigentlich nichts - wir haben schon alles aufs Minimale reduziert.
-könnt Ihr nicht verzichten: Auf die Anzahl der geplanten Zimmer
Warum ist der Entwurf so geworden, wie er jetzt ist? ZB
Standardentwurf vom Planer?
Entsprechende/Welche Wünsche wurden vom Architekten umgesetzt? Ja
Ein Gemisch aus vielen Beispielen aus div. Magazinen...
Was macht ihn in Euren Augen besonders gut oder schlecht?
Was ist die wichtigste/grundlegende Frage zum Grundriss in 130 Zeichen zusammengefasst?
Wir wollten, dass das Haus möglichst kompakt ist. Vielleicht haben wir zu viel Wert auf die Kompaktheit gelegt und dabei andere wesentliche Dinge vernachlässigt.
Was gefällt Euch gut am Haus, was nicht so gut und was geht gar nicht?






wir möchten auf ein 472m2 großes Grundstück ein Haus mit 2 Wohneinheiten bauen (WE1 143.39 m2 / WE2 69.57 m2).
Die 2. Wohneinheit ist für meine Eltern bestimmt und Hauptwohneinheit für meine Familie mit einem Ehemann und 3 Kindern (7/13/17 Jahre).
Da unsere Grundstück relativ klein ist, möchte wir ein kompaktes Haus bauen, damit wir möglich viel Gartenfläche haben.
Wir sind gerade in der finalen Planungsphase und hätte gerne Feedback von Euch zu unserem Bauvorhaben.
Wir haben das unsicher Gefühl, dass wir vielleicht etwas Wesentliche vergessen haben bzw. nicht genug beachtet haben, da wir eher auf die Kompaktheit des Hauses bei der Planung fokussiert waren.
Bebauungsplan/Einschränkungen
Größe des Grundstücks: 472m2
Hang: nein
Grundflächenzahl: 0,4
Geschossflächenzahl: 0,6
Baufenster, Baulinie und -grenze
Randbebauung: Süden und Osten
Anzahl Stellplatz: 2
Geschossigkeit: 2
Dachform: Walmdach
Stilrichtung:
Ausrichtung: Süd/West
Maximale Höhen/Begrenzungen: 10m
weitere Vorgaben
Anforderungen der Bauherren
Stilrichtung, Dachform, Gebäudetyp: Stadtvilla
Keller, Geschosse: nein
Anzahl der Personen, Alter: 1. Wohneinheit 5 (43,38,17, 13, 7). 2. Wohneinheit (beide ü. 60)
Raumbedarf im EG, OG:
Büro: Familiennutzung oder Homeoffice? -
Schlafgäste pro Jahr: 2-3 mal im Jahr
offene oder geschlossene Architektur: offene
konservativ oder moderne Bauweise: moderne
offene Küche, Kochinsel; offene Küche, keine Kochinsel
Anzahl Essplätze: 5
Kamin: nein
Musik/Stereowand: nein
Balkon, Dachterrasse: nein
Garage, Carport: Garage
Nutzgarten, Treibhaus: nein
weitere Wünsche/Besonderheiten/Tagesablauf, gern auch Begründungen, warum dieses oder das nicht sein soll
Das Haus soll kompakt sein, aber trotzdem geräumig wirken.
Hausentwurf
Von wem stammt die Planung:
-Planer eines Bauunternehmens
-Architekt: Vom Architekten
-Do-it-Yourself
Was gefällt besonders? Warum? Es ist ein relative kleines Haus mit 2 Wohneinheiten.
Was gefällt nicht? Warum? Vielleicht sind die Räume (Kinderzimmer und die Räume in der Einliegerwohnung zu klein?)
Preisschätzung lt Architekt/Planer: Ca. 600.000€
Persönliches Preislimit fürs Haus, inkl Ausstattung: 650.000€
favorisierte Heiztechnik: Nahwärme
Wenn Ihr verzichten müsst, auf welche Details/Ausbauten
-könnt Ihr verzichten: eigentlich nichts - wir haben schon alles aufs Minimale reduziert.
-könnt Ihr nicht verzichten: Auf die Anzahl der geplanten Zimmer
Warum ist der Entwurf so geworden, wie er jetzt ist? ZB
Standardentwurf vom Planer?
Entsprechende/Welche Wünsche wurden vom Architekten umgesetzt? Ja
Ein Gemisch aus vielen Beispielen aus div. Magazinen...
Was macht ihn in Euren Augen besonders gut oder schlecht?
Was ist die wichtigste/grundlegende Frage zum Grundriss in 130 Zeichen zusammengefasst?
Wir wollten, dass das Haus möglichst kompakt ist. Vielleicht haben wir zu viel Wert auf die Kompaktheit gelegt und dabei andere wesentliche Dinge vernachlässigt.
Was gefällt Euch gut am Haus, was nicht so gut und was geht gar nicht?
K
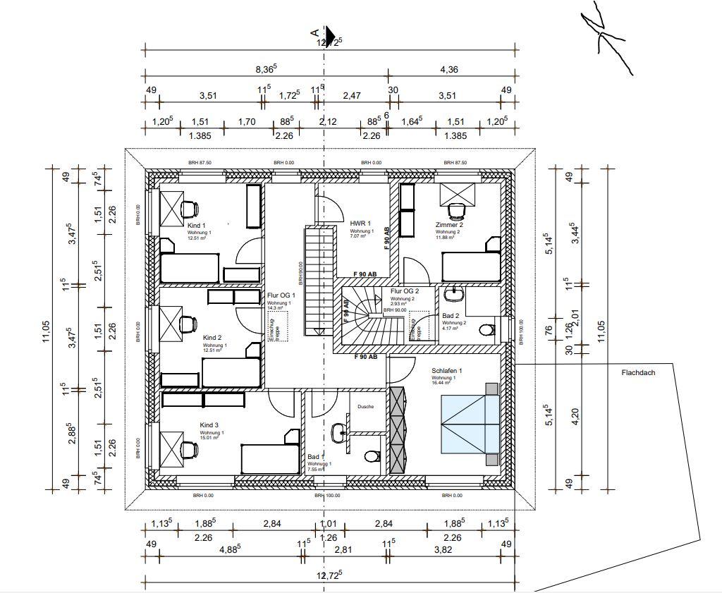
K a t j a31.08.22 12:54Auf die Schnelle: die 2 Treppen scheinen mir eine zu viel. Die Einliegerwohnung muss sich imho auf's EG beschränken. Wie ist die Raumanforderung hier? Braucht es da tatsächlich 2 Schlafzimmer und 2 Bäder?
Außerdem: Ist es klug, die Terrassen direkt neben einander zu haben? Muss die Zufahrt an die Stelle, wo sie jetzt ist? Garage im Nordwesten vermutlich nicht erlaubt?
Außerdem: Ist es klug, die Terrassen direkt neben einander zu haben? Muss die Zufahrt an die Stelle, wo sie jetzt ist? Garage im Nordwesten vermutlich nicht erlaubt?
Sind die Stellplätze für 2 Wohneinheiten ausreichend?
ich sehe es wie Kaja die 2. Treppe ist irgendwie zu viel.
Zeichnet mal bitte in jede Wohneinheit einen richtigen Tisch mit Bewegungsfläche ein.
Ich würde die Wohneinheit der Eltern auf eine Ebene bringen, und eurer Wohneinheit das Wohnzimmer in das 1. OG evlt. mit kleinem Balkon.
Könnte mir mit Teenagern bzw. jungen Erwachsenen zwei Aufenthaltsräume als recht charmant vorstellen.
Evlt. 1 oder 2 Kinderzimmer unter das Dach
Sonderlich barrierefrei ist die Einliegerwohnung nicht. Da müssen sich die Eltern und ihr mal Gedanken machen wie es in Zukunft aussehen soll.
ich sehe es wie Kaja die 2. Treppe ist irgendwie zu viel.
Zeichnet mal bitte in jede Wohneinheit einen richtigen Tisch mit Bewegungsfläche ein.
Ich würde die Wohneinheit der Eltern auf eine Ebene bringen, und eurer Wohneinheit das Wohnzimmer in das 1. OG evlt. mit kleinem Balkon.
Könnte mir mit Teenagern bzw. jungen Erwachsenen zwei Aufenthaltsräume als recht charmant vorstellen.
Evlt. 1 oder 2 Kinderzimmer unter das Dach
Sonderlich barrierefrei ist die Einliegerwohnung nicht. Da müssen sich die Eltern und ihr mal Gedanken machen wie es in Zukunft aussehen soll.
K a t j a schrieb:
Auf die Schnelle: die 2 Treppen scheinen mir eine zu viel. Die Einliegerwohnung muss sich imho auf's EG beschränken. Wie ist die Raumanforderung hier? Braucht es da tatsächlich 2 Schlafzimmer und 2 Bäder?
Außerdem: Ist es klug, die Terrassen direkt neben einander zu haben? Muss die Zufahrt an die Stelle, wo sie jetzt ist? Garage im Nordwesten vermutlich nicht erlaubt?Meine Eltern werden sich schon überwiegend im EG aufhalten. Die Treppe und das Zimmer im OG in Einliegerwohnung haben als Gästezimmer geplant, da meine Eltern relativ häufig besuchen bekommen.
Unsere Terrasse wird im Westen sein, die Terrassen nebeneinander hat der Architekt nur wegen des Bauantrags gezeichnet (er wollte es sich einfach machen).
Garage im Nordwesten; sehr guter Gedanke: Das ist leider nicht möglich, da hier die Einfahrt zu der Spielstraße ist. Die Garage im Nordwesten hätte uns auch besser gefallen, dann hätte wir mehr Fläche für den Garten im Süden und Osten.
haydee schrieb:
Sind die Stellplätze für 2 Wohneinheiten ausreichend?
ich sehe es wie Kaja die 2. Treppe ist irgendwie zu viel.
Zeichnet mal bitte in jede Wohneinheit einen richtigen Tisch mit Bewegungsfläche ein.
Ich würde die Wohneinheit der Eltern auf eine Ebene bringen, und eurer Wohneinheit das Wohnzimmer in das 1. OG evlt. mit kleinem Balkon.
Könnte mir mit Teenagern bzw. jungen Erwachsenen zwei Aufenthaltsräume als recht charmant vorstellen.
Evlt. 1 oder 2 Kinderzimmer unter das Dach
Sonderlich barrierefrei ist die Einliegerwohnung nicht. Da müssen sich die Eltern und ihr mal Gedanken machen wie es in Zukunft aussehen soll.2 Stellplätze werden wahrscheinlich nicht ausreichend sein. Wir können aber weitere PKWs am Haus im Norden abstellen. Der Architekt hat diese nicht eingezeichnet, weil das Bauamt sonst Einwände dagegen haben könnte.
Das Wohnzimmer von unserer Wohneinheit haben wir bewusst im EG geplant, weil wir im Sommer viel Zeit mit den Kindern im Garten verbringen möchten. Wir müssten sonst ständig die Treppe hoch ins 1. OG um Sachen nach unten und wieder hoch zu bringen. Das könnte auf Dauer sehr nervig werden.
K
K a t j a31.08.22 13:48MarlenP schrieb:
Meine Eltern werden sich schon überwiegend im EG aufhalten. Die Treppe und das Zimmer im OG in Einliegerwohnung haben als Gästezimmer geplant, da meine Eltern relativ häufig besuchen bekommen.Und der Besuch braucht ein eigenes Bad? Das ist für eine Einliegerwohnung too much!MarlenP schrieb:
Unsere Terrasse wird im Westen sein, die Terrassen nebeneinander hat der Architekt nur wegen des Bauantrags gezeichnet (er wollte es sich einfach machen).MarlenP schrieb:
2 Stellplätze werden wahrscheinlich nicht ausreichend sein. Wir können aber weitere PKWs am Haus im Norden abstellen. Der Architekt hat diese nicht eingezeichnet, weil das Bauamt sonst Einwände dagegen haben könnte.Ich fände es besser, der Architekt zeichnet mal alles so ein, wie es am Ende werden darf und wird. Mit solchem Gefruckel würde ich nicht anfangen -. das geht immer schief.Ähnliche Themen