ᐅ Hausbau schlüsselfertig, aber mit eigener Raumverteilung?
Erstellt am: 02.03.15 21:41
Hallo Leute,
bin zurzeit Single und Beamter, verdiene ca. 2000€ Netto. Habe zusätzlich noch Ersparnisse von 20.000€ und schuldenfrei.
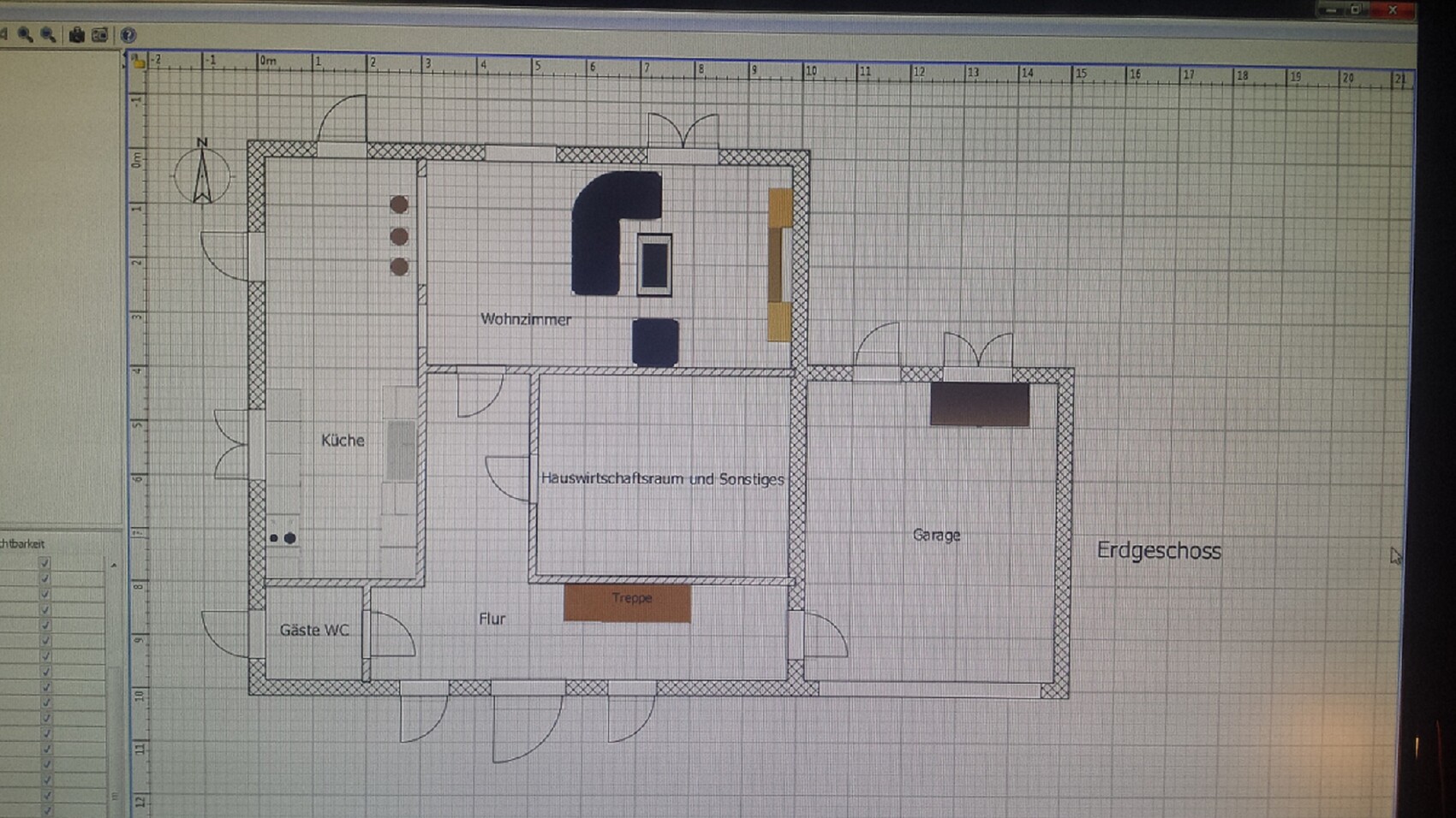
Ich habe mir fest vorgenommen ein Haus Schlüsselfertig bauen zu lassen. Hab mir das Programm Sweet Home 3D runtergeladen und ein wenig damit rumgespielt (Fotos mit dabei).
Meine Vorstellung war es die Bilder dem Architekten zu vorzulegen damit er sie ungefähr so umsetzen kann und das Haus dann schlüsselfertig bauen zu lassen. Kein Keller und ein Zeltdach für eine Solaranlage auf dem Dach.
Meine Frage ist jetzt:
1. Was sagt ihr zur der Konstruktion? Verbesserungsvorschläge oder gehen einige Sachen erst gar nicht?
2. Wie hoch wären die Kosten insgesamt mit allem drum und dran, wenn ich einen Architekten damit beauftragen würde, Grundstück und Innenausstattung, sowie Malerarbeiten mal außen vor.
3. Wenn ich mal mehr Platz brauchen würde, wollte ich über der Garage bauen, ist das eine gute Idee?
4. Wie groß sollte das Grundstück sein für das Haus? (Ich hasse Gartenarbeit, daher brauche ich nicht viel Platz)
5. Wie viel Kredit könnte ich bekommen? Falls relevant, mir ist die Lage egal, wodurch ich an Grundstückskosten etwas sparen könnte.
Danke.


bin zurzeit Single und Beamter, verdiene ca. 2000€ Netto. Habe zusätzlich noch Ersparnisse von 20.000€ und schuldenfrei.
Ich habe mir fest vorgenommen ein Haus Schlüsselfertig bauen zu lassen. Hab mir das Programm Sweet Home 3D runtergeladen und ein wenig damit rumgespielt (Fotos mit dabei).
Meine Vorstellung war es die Bilder dem Architekten zu vorzulegen damit er sie ungefähr so umsetzen kann und das Haus dann schlüsselfertig bauen zu lassen. Kein Keller und ein Zeltdach für eine Solaranlage auf dem Dach.
Meine Frage ist jetzt:
1. Was sagt ihr zur der Konstruktion? Verbesserungsvorschläge oder gehen einige Sachen erst gar nicht?
2. Wie hoch wären die Kosten insgesamt mit allem drum und dran, wenn ich einen Architekten damit beauftragen würde, Grundstück und Innenausstattung, sowie Malerarbeiten mal außen vor.
3. Wenn ich mal mehr Platz brauchen würde, wollte ich über der Garage bauen, ist das eine gute Idee?
4. Wie groß sollte das Grundstück sein für das Haus? (Ich hasse Gartenarbeit, daher brauche ich nicht viel Platz)
5. Wie viel Kredit könnte ich bekommen? Falls relevant, mir ist die Lage egal, wodurch ich an Grundstückskosten etwas sparen könnte.
Danke.
Viel Flur, schmale Räume, was passiert in der Küche mit den 3 schwarzen Punkten? Treppe wird so nicht passen, Maße fehlen, unklar, ob du mit 2000 € Netto das stemmen kannst.
Lies dir viel viel an und zeichne noch 20 mal neu - oder geh direkt zum Architekten (wenn du keine Zeit hast)
Lies dir viel viel an und zeichne noch 20 mal neu - oder geh direkt zum Architekten (wenn du keine Zeit hast)
D
derstefanm02.03.15 21:50Wie viele Vollgeschosse hat dein Plan? Wenn keine zwei Vollgeschosse geplant sind klappt das mit der Treppe gar nicht. Und was mir auffällt alle Fenster außen öffnen zur falschen Seite sowie die Zimmertüren auch. Das muss bei der Planung berücksichtigt werden.
D
derstefanm02.03.15 21:53So kann jetzt auch das EG sehen und muss sagen finde den Plan nicht gelungen. Die Proportionen passen nicht. Die Küche so schmal und lang. Beauftrage einen Architekten der plant einen Grundriss nach deinen Bedürfnissen und Möglichkeiten. Als Orientierung mit 2000 netto kann man ca 220/230 tsd. bedienen.
Ich geh mal rückwärts 🙂
Wahrscheinlich weniger, als es ausreicht, ein Grundstück plus einem Einfamilienhaus zu bauen und mit dem monatlichen Rest ein gutes Leben zu führen. Du bist zwar Beamter, sicherst aber ein Darlehen nur allein ab.
Genau kann Dir das eine Bank oder ein Finanzberater sagen.
Es gibt Mindestmaße an Baugrundgrössen. Das kommt auf die Lage an (ländlich, städtisch)
Wenn Du Gartenarbeit hasst, warum dann ein Haus? Eine Wohnung bietet Dir mehr Lebenskomfort, als Single, der keinen Garten mag und ist auch eher finanzierbar.
Mehr als Fertiggarage seh ich zur Zeit nicht (finanziell)
Ein Architekt baut nicht schlüsselfertig. Das machen Hausbauunternehmen. Bitte mal etwas Zeit im Forum verbringen 😉
Ich denke, die Frage muss ich nicht beantworten, da die Antworten der Punkte 2-5 nicht auf einen Hausbau, wie Du es Dir vorstellst, hinweisen.
Gruss Yvonne
Slade schrieb:
bin zurzeit Single und Beamter, verdiene ca. 2000€ Netto. Habe zusätzlich noch Ersparnisse von 20.000€ und schuldenfrei.
Slade schrieb:
5. Wie viel Kredit könnte ich bekommen? Falls relevant, mir ist die Lage egal, wodurch ich an Grundstückskosten etwas sparen könnte.
Wahrscheinlich weniger, als es ausreicht, ein Grundstück plus einem Einfamilienhaus zu bauen und mit dem monatlichen Rest ein gutes Leben zu führen. Du bist zwar Beamter, sicherst aber ein Darlehen nur allein ab.
Genau kann Dir das eine Bank oder ein Finanzberater sagen.
Slade schrieb:
4. Wie groß sollte das Grundstück sein für das Haus? (Ich hasse Gartenarbeit, daher brauche ich nicht viel Platz)
Es gibt Mindestmaße an Baugrundgrössen. Das kommt auf die Lage an (ländlich, städtisch)
Wenn Du Gartenarbeit hasst, warum dann ein Haus? Eine Wohnung bietet Dir mehr Lebenskomfort, als Single, der keinen Garten mag und ist auch eher finanzierbar.
Slade schrieb:
3. Wenn ich mal mehr Platz brauchen würde, wollte ich über der Garage bauen, ist das eine gute Idee?
Mehr als Fertiggarage seh ich zur Zeit nicht (finanziell)
Slade schrieb:
2. Wie hoch wären die Kosten insgesamt mit allem drum und dran, wenn ich einen Architekten damit beauftragen würde, Grundstück und Innenausstattung, sowie Malerarbeiten mal außen vor.
Ein Architekt baut nicht schlüsselfertig. Das machen Hausbauunternehmen. Bitte mal etwas Zeit im Forum verbringen 😉
Slade schrieb:
1. Was sagt ihr zur der Konstruktion? Verbesserungsvorschläge oder gehen einige Sachen erst gar nicht?
Ich denke, die Frage muss ich nicht beantworten, da die Antworten der Punkte 2-5 nicht auf einen Hausbau, wie Du es Dir vorstellst, hinweisen.
Gruss Yvonne
Das sieht noch alles sehr laienhaft aus. Die Treppe passt nicht, Schlafzimmer viel zu klein für ein normales Doppelbett mit Schrank, langer nicht sinnvoller Flur zum Wohnzimmer. Küche nur übers Wohnzimmer zu betreten und zu schlauchig
Warum willst du bauen? Soll es nur für dich sein, oder auch mal für eine zukünftige Frau/Freundin.
Ich persönlich halte nichts davon zu bauen, in der Hoffnung, dass IRGENDWANN mal ein Partner mit einzieht. Oft gefällt nämlich das, was dir gefällt, einer Frau nicht, die Ansprüche sind zwischen Mann und Frau oft sehr unterschiedlich. Und dann wird das Haus komplett umgebaut oder verkauft und neu gebaut.
Zu bedenken ist auch, dass die Garage bei einer Grenzbebauung oft nicht mit Wohnraum überbaut werden darf - höchstens als Lagerraum von der Garage aus zugänglich sein darf.
Außerdem sehe ich auch schwarz bei deiner finanzieller Situation. Zu wenig Eigenkapital, zu geringer Verdienst von dem sicherlich noch mehr abgeht als nur die Rate für ein Haus. Außerdem kommt noch hinzu, dass du evtl. mal mit deinem Einkommen eine Familie versorgen musst - zumindest mal über einen gewissen Zeitraum, sofern du nicht planst kinderlos zu bleiben.
Warum willst du bauen? Soll es nur für dich sein, oder auch mal für eine zukünftige Frau/Freundin.
Ich persönlich halte nichts davon zu bauen, in der Hoffnung, dass IRGENDWANN mal ein Partner mit einzieht. Oft gefällt nämlich das, was dir gefällt, einer Frau nicht, die Ansprüche sind zwischen Mann und Frau oft sehr unterschiedlich. Und dann wird das Haus komplett umgebaut oder verkauft und neu gebaut.
Zu bedenken ist auch, dass die Garage bei einer Grenzbebauung oft nicht mit Wohnraum überbaut werden darf - höchstens als Lagerraum von der Garage aus zugänglich sein darf.
Außerdem sehe ich auch schwarz bei deiner finanzieller Situation. Zu wenig Eigenkapital, zu geringer Verdienst von dem sicherlich noch mehr abgeht als nur die Rate für ein Haus. Außerdem kommt noch hinzu, dass du evtl. mal mit deinem Einkommen eine Familie versorgen musst - zumindest mal über einen gewissen Zeitraum, sofern du nicht planst kinderlos zu bleiben.
Ähnliche Themen