Grundriss-Grundstück Einfamilienhaus, leichte Hanglage ca. 175m²

4,90 Stern(e) 8 Votes
Zuletzt aktualisiert 07.10.2025
Sie befinden sich auf der Seite 11 der Diskussion zum Thema: Grundriss-Grundstück Einfamilienhaus, leichte Hanglage ca. 175m²
>> Zum 1. Beitrag <<

K a t j a

K a t j a

Wozu hättest du, @K a t j a , uns denn geraten, wenn wir noch "frei" wären?
Nun, wie schon geschrieben ist das für mich wirklich ein Splitlevel-Grundstück. Der Grund ist für mich vor allem die geringe Größe. Die Treppe mit Eingangspodest wäre für mich die 2. Option.
Die Skizze von Dietmar sieht vielleicht ganz nett aus, zeigt aber nicht die Realität. Er soll doch mal bitte die Straße dazu zeichnen! Dann wird schnell klar, dass das ganze Grundstück straßenseitig abgefangen werden müsste. Ab davon, dass das sehr teuer ist, entsteht dadurch auch mehr oder weniger eine Art "Beton-Gruft".

Warum Split? Auf größeren Grundstücken kann man auch bei halb-geschössigen Höhenunterschied im Baufenster mittels Geländemodellierung oft noch sanft ausgleichen und abböschen. Wenn aber nur 3m bis zur Grenze sind, ist nix mit sanft. Dann muss ne Mauer hin. Vielleicht hat aber noch jemand eine bessere Idee. Die Profis bei Bien-Zenker sollen Dich mal beraten! Wenn die schon extra eine "Hangabteilung" haben - perfekt! Sollen die doch mal zeigen, was geht.

Zwei Sachen, die imho dazu allgemein noch zu sagen wären:
1. Wer sich ein Hanggrundstück kauft (und das ist eines), darf nicht erwarten, ohne Treppen auszukommen. Das wäre ziemlich realitätsfern. Die Frage bleibt auch noch, wie stark das Gefälle im Baufenster am Ende wirklich ist. Wir schätzen hier ja nur anhand Deiner Höhenlinien.
2. malt Euch die Seitenansicht Eures Grundstück mal auf Millimeterpapier mit dem Gefälle. Dann nehmt ein Rechteck mit den Grundmaßen Eures Hauses und legt es drauf. Ihr solltet unbedingt ein Gefühl für Euer Land bekommen. Insbesondere die Lage der Terrasse muss am Ende feststehen, möglichst ohne, dass sich dort später das Wasser sammelt oder Ihr aus 1m Höhe aus Euren Terrassentüren nach unten springen müsst (alles schon da gewesen).
 
K a t j a

K a t j a

Zum Carport: dürfte der wirklich direkt an der Straße stehen? Das ist recht selten, dass sowas erlaubt ist. Bitte nochmal genau lesen, was im Bebauungsplan dazu steht.
 
U

Unnerfranggn

Wie alt sind die Kinder?
5 und 6

Zum Carport: dürfte der wirklich direkt an der Straße stehen? Das ist recht selten, dass sowas erlaubt ist. Bitte nochmal genau lesen, was im Bebauungsplan dazu steht.
So steht es da:

Textdokument mit Überschriften zu Nebengebaeuden, Garagen und Carports.

Darf der Carport dann an die Straße?

Ich werd dann mal schauen müssen, in welcher Instanz die "Hangabteilung" dann ins Spiel kommen wird. Immerhin kriegen wir von euch schonmal ein bisschen Einblick. Und wenn der Grund irgendwann vermessen werden kann und wir offiziell wissen, wo der Bezugspunkt für die Gebäudehöhe ist, wird die Planung ja erst so richtig konkret.

Die Wahl aufs Hanggrundstück fiel jetzt nicht unbedingt mit Absicht - war eher nach jahrelanger Suche erstmals überhaupt was, was wir bekommen haben... wundern tun wir uns natürlich nicht über die Begebenheiten - aber versuchen, unsere Wünsche irgendwie mit dem Grundstück zusammenzubringen, können wir ja schon ;-)
Die Idee mit dem MillimeterPapier und ner Schablone steht schon auf der Agenda!
 
Y

ypg

aber versuchen, unsere Wünsche irgendwie mit dem Grundstück zusammenzubringen,
Dann achtet darauf, dass Ihr Euch nicht zu sehr verknotet, wenn Ihr einen Wunsch, zb ebenerdig ins Haus zu gelangen, vehement verteidigt und durchsetzt, was dann zu wahrscheinlich mehreren negativen Punkten führt. Dann lieber einen Wermutstropfen in Kauf nehmen und dafür den Rest in Schick.
Ein Hangrundstück ist schon eine schicke Sache: man kommt drum herum, eine langweilige Stadtvilla zu bauen.
Entscheidest Du Dich für Splitlevel, wirst Du definitiv MIT dem Grundstück bauen und das Beste herausholen.
 
K a t j a

K a t j a

Hier nochmal eine andere Aufteilung mit Außentreppe, die vielleicht etwas gefälliger ist. :


Zweistöckiges Modellhaus mit Carport, Holzzaun, grasgrüne Umgebung, Wolkenhimmel


Zweistöckiges Haus mit grauer Fassade, dunklem Dach und umzäuntem Garten.


Zweistöckiges graues Haus mit dunklem Satteldach, umzäunten Garten und Carport.


Graues zweistöckiges Haus mit dunklem Satteldach, Carport und Holzzaun im Grünen


Grundriss eines Hauses: großes Quadrat, umlaufende Terrasse, Treppen rechts, Grundstücksrand.


Haus gedreht und auf 1,5 Geschosser geschrumpft - wegen Geldbeutel und auch optisch imho leidlicher. Carport auf Straßenniveau direkt davor. Die Dachform müsste dann wohl auch Satteldach werden. Das hab ich hier jetzt noch nicht drin. Vielleicht schiebt man die Kiste aber insgesamt noch mehr Richtung Süden, damit man beim Einparken die Kurve besser kriegt. Ich komme hier auf knapp 11m Breite. Da kann Bien-Zenker bestimmt was aus der Schublade ziehen, was dem etwa entspricht.
 
Zuletzt bearbeitet von einem Moderator:
K a t j a

K a t j a

Hier das könnte gut passen: CONCEPT-M 152 Musterhaus Pfullingen - einmal gespiegelt.
Sieht doch chic aus mit etwas höherem Kniestock:



Modernes weißes Haus mit zwei Stockwerken, großen Fenstern und Dachfenstern.



Grundriss eines Hauses: offener Wohn-/Essbereich, Küche, Büro, Technik, WC, Flure, Treppe.



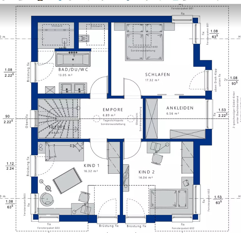
Grundriss eines Obergeschosses mit Schlafzimmer, Bad, Ankleide, Empore und zwei Kinderräumen
 
Zuletzt aktualisiert 07.10.2025
Im Forum Grundrissplanung / Grundstücksplanung gibt es 2511 Themen mit insgesamt 87191 Beiträgen


Ähnliche Themen zu Grundriss-Grundstück Einfamilienhaus, leichte Hanglage ca. 175m²
Nr.ErgebnisBeiträge
1Hanggrundstück gestalten - Erdarbeiten / Stützmauer kostenoptionen 26
2Garage im Haus oder Carport daneben 10
3Carport der kein Carport sein darf 22
4Platzierung Stellplätze / Carport auf dem Grundstück 42
5Grundriss ca. 170 m² Einfamilienhaus, ohne Keller mit Carport - Seite 489
6Einfamilienhaus 180-190qm auf 10x20m Baufenster, erster Entwurf GU - Seite 1278
7Haus mit Bodenplatte bei Gefälle 52
8Hanggrundstück für Bodenplatte aufschütten? - Seite 969
9Grenzbebauung Doppelgarage/Carport 6x9m Niedersachsen - Seite 329
10Carport aus Aluminium - Seite 229
11Carport mit Terrassendach gleich kombinieren - Rechtlich - Seite 213
12Garage genehmigt, aber Carport gebaut - Seite 323
13Carport Abweichung vom Bauantrag 21
14Kosten für Punkt-Fundamente und Carport-Entwässerung - Seite 225
15Haus, Garage / Carport auf dem Grundstück platzieren - Seite 493
16Carport/Garage Breite - Reichen 2.50m oder ist das eher zu schmal 29
17Zufahrt zum Carport wie steil? 14
18Carport mit großer Spannweite ohne extra Mittelfpfosten - Seite 215
19Carport Entwässerung, Wassermenge berechnen - Seite 213
20Carport Untersicht verputzen 26

Oben