Hallo,
wir jonglieren schon seit einigen Tagen hin und her und würden uns jetzt über frische Ideen von außen freuen.
Das Grundstück ist bereits vorhanden, das Haus bei einem großen GU gekauft (134 qm).
Den Bebauungsplan reizen wir weitestgehend aus, d.h. wir können weder größer noch höher werden.
Neben einer Optimierung des Grundriss grübeln wir noch über die Einordnung des Hauses.
Es handelt sich um ein Hammergrundstück mit 3 m breiter Zuwegung, dadurch müssen wir zu allen Seiten nur 3 m Abstand halten.
Zwei Stellplätze nebeneinander wären ideal, ich möchte aber ungerne das Risiko eingehen am Ende 3 cm zu nah am Nachbarn dran zu sein.
Alternativ können wir voreinander stehen oder den "Vorgarten" vergrößern und zu Stellfläche umfunktionieren.
Das Haus könnte man drehen, falls das hilft.
Bebauungsplan/Einschränkungen
Größe des Grundstücks: 500 qm
Hang: nein, fast perfekt eben
Grundflächenzahl: 0,2
Geschossflächenzahl: 0,4
Baufenster, Baulinie und -grenze: 3 m Abstand zu allen Seiten
Randbebauung: nicht vorhanden
Anzahl Stellplatz: 2
Geschossigkeit: 1.5
Dachform: Satteldach
Stilrichtung: klassisch
Ausrichtung: N/O
Maximale Höhen/Begrenzungen: FH 8,8 m, TH 4,3
Anforderungen der Bauherren
Stilrichtung, Dachform, Gebäudetyp: Einfamilienhaus
kein Keller
Anzahl der Personen: 2 Erwachsene + 2 Kinder
Raumbedarf im EG 70 qm, OG 60 qm
Familiennutzung mit kleinem Büro/Gästecouch
Schlafgäste pro Jahr: 5
konservative Bauweise
offene Küche, Kochinsel: ja
Anzahl Essplätze: 6
Kamin: nein
Musik/Stereowand: vorhanden
Carport
Gäste-WC mit Dusche
Kleine Ankleide im Schlafzimmer
Kleine Speis
"Offene" Walk-in Dusche im OG ohne Tür zwischen 3 Wänden, WC etwas versteckt, breites Waschbecken/Spiegel (3 Frauen zu Hause...)
Hausentwurf
Von wem stammt die Planung: angepasstes Kataloghaus
Was gefällt besonders? Warum? Alle gewünschten Räume vorhanden, Allraum als Lebensmittelpunkt im EG, gleich große Kinderzimmer
Was gefällt nicht? Warum? Wie alles sinnvoll verteilen? Kleine Ankleide durch Dachschräge
Preisschätzung lt Architekt/Planer: entfällt, da bereits gekauft.
favorisierte Heiztechnik: Luft-Wasser-Wärmepumpe
Wenn Ihr verzichten müsst, auf welche Details/Ausbauten
-könnt Ihr verzichten: Speis, Kammer im OG
-könnt Ihr nicht verzichten: (gleich) große Kinderzimmer, offene Küche, Arbeitszimmer, Gäste-WC mit Dusche
Warum ist der Entwurf so geworden, wie er jetzt ist? ZB
Standardentwurf vom GU
Was ist die wichtigste/grundlegende Frage zum Grundriss in 130 Zeichen zusammengefasst?
Wie können wir die Raumaufteilung optimieren (Wände verschieben, Fenster/Türen anpassen)?
Vielen Dank für eure Anregungen!
Grüße,
Ruska



wir jonglieren schon seit einigen Tagen hin und her und würden uns jetzt über frische Ideen von außen freuen.
Das Grundstück ist bereits vorhanden, das Haus bei einem großen GU gekauft (134 qm).
Den Bebauungsplan reizen wir weitestgehend aus, d.h. wir können weder größer noch höher werden.
Neben einer Optimierung des Grundriss grübeln wir noch über die Einordnung des Hauses.
Es handelt sich um ein Hammergrundstück mit 3 m breiter Zuwegung, dadurch müssen wir zu allen Seiten nur 3 m Abstand halten.
Zwei Stellplätze nebeneinander wären ideal, ich möchte aber ungerne das Risiko eingehen am Ende 3 cm zu nah am Nachbarn dran zu sein.
Alternativ können wir voreinander stehen oder den "Vorgarten" vergrößern und zu Stellfläche umfunktionieren.
Das Haus könnte man drehen, falls das hilft.
Bebauungsplan/Einschränkungen
Größe des Grundstücks: 500 qm
Hang: nein, fast perfekt eben
Grundflächenzahl: 0,2
Geschossflächenzahl: 0,4
Baufenster, Baulinie und -grenze: 3 m Abstand zu allen Seiten
Randbebauung: nicht vorhanden
Anzahl Stellplatz: 2
Geschossigkeit: 1.5
Dachform: Satteldach
Stilrichtung: klassisch
Ausrichtung: N/O
Maximale Höhen/Begrenzungen: FH 8,8 m, TH 4,3
Anforderungen der Bauherren
Stilrichtung, Dachform, Gebäudetyp: Einfamilienhaus
kein Keller
Anzahl der Personen: 2 Erwachsene + 2 Kinder
Raumbedarf im EG 70 qm, OG 60 qm
Familiennutzung mit kleinem Büro/Gästecouch
Schlafgäste pro Jahr: 5
konservative Bauweise
offene Küche, Kochinsel: ja
Anzahl Essplätze: 6
Kamin: nein
Musik/Stereowand: vorhanden
Carport
Gäste-WC mit Dusche
Kleine Ankleide im Schlafzimmer
Kleine Speis
"Offene" Walk-in Dusche im OG ohne Tür zwischen 3 Wänden, WC etwas versteckt, breites Waschbecken/Spiegel (3 Frauen zu Hause...)
Hausentwurf
Von wem stammt die Planung: angepasstes Kataloghaus
Was gefällt besonders? Warum? Alle gewünschten Räume vorhanden, Allraum als Lebensmittelpunkt im EG, gleich große Kinderzimmer
Was gefällt nicht? Warum? Wie alles sinnvoll verteilen? Kleine Ankleide durch Dachschräge
Preisschätzung lt Architekt/Planer: entfällt, da bereits gekauft.
favorisierte Heiztechnik: Luft-Wasser-Wärmepumpe
Wenn Ihr verzichten müsst, auf welche Details/Ausbauten
-könnt Ihr verzichten: Speis, Kammer im OG
-könnt Ihr nicht verzichten: (gleich) große Kinderzimmer, offene Küche, Arbeitszimmer, Gäste-WC mit Dusche
Warum ist der Entwurf so geworden, wie er jetzt ist? ZB
Standardentwurf vom GU
Was ist die wichtigste/grundlegende Frage zum Grundriss in 130 Zeichen zusammengefasst?
Wie können wir die Raumaufteilung optimieren (Wände verschieben, Fenster/Türen anpassen)?
Vielen Dank für eure Anregungen!
Grüße,
Ruska
wo ist Norden?
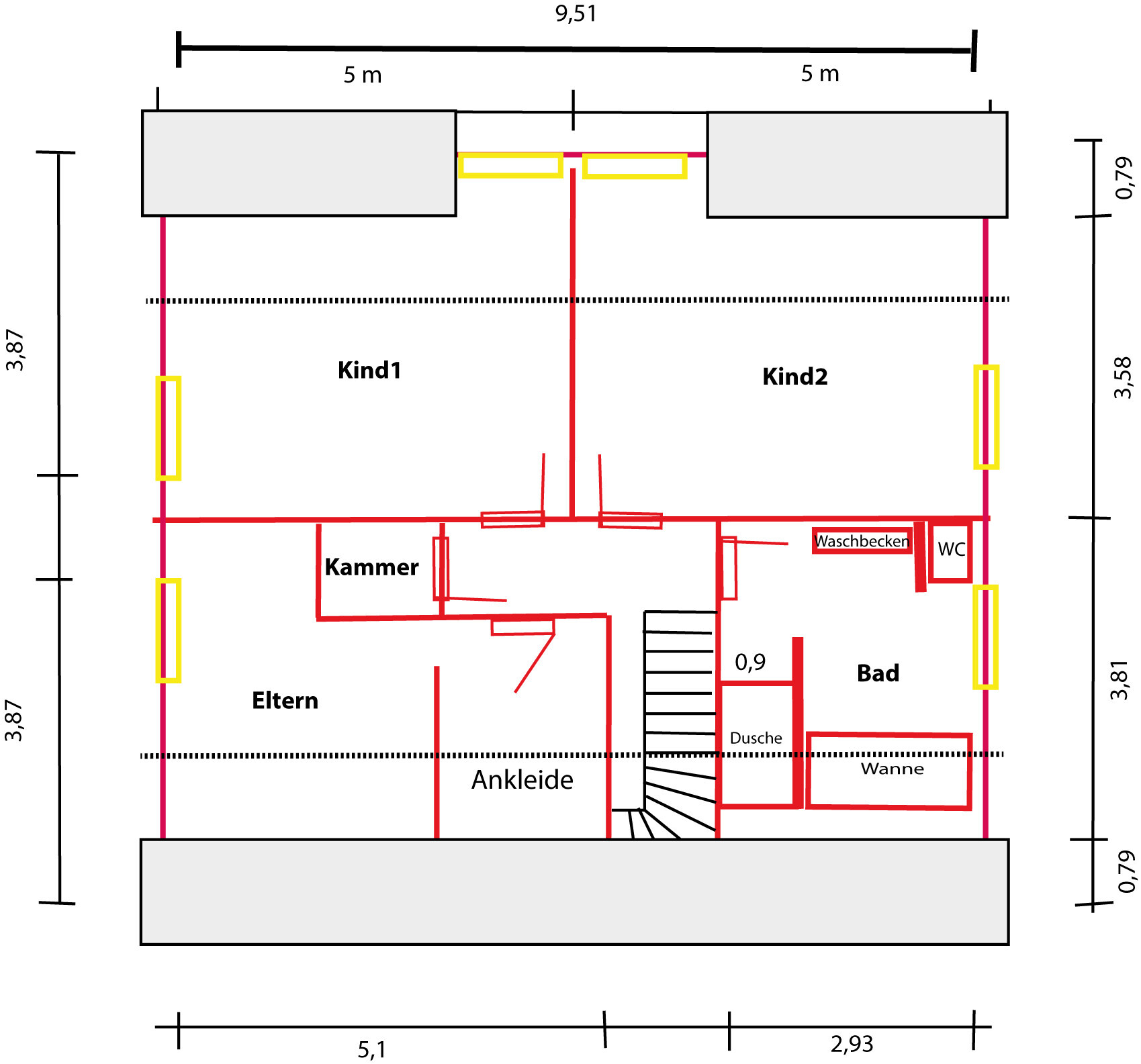
Bitte Bad vermaßen.
Auf Speis lieber verzichten, als einen Slalom-Labyrinth-Gang dort hin zu laufen.
Ruska schrieb:Ist nicht erlaubt, kein vollwertiger Stellplatz nach vielen/allen? LBOs.
Alternativ können wir voreinander stehen
Bitte Bad vermaßen.
Auf Speis lieber verzichten, als einen Slalom-Labyrinth-Gang dort hin zu laufen.
H
hanghaus200001.05.21 12:50Sellplaetze nebeneinander ist zwar knapp sollte aber gehen.
Danke für die schnellen Antworten!
Die Speis ist mehr als begehbarer Einbauschrank zu verstehen. Für größere Sachen steht der Hauswirtschaftsraum zur Verfügung.
Momentan nervt mich das unheimlich Konserven und Vorräte in den Küchenschränken zu verstauen.
Wie groß sollte die "Wendezone" vor dem Haus sein, wenn beide nebeneinander parken?


Nida35a schrieb:Habe den Nordpfeil nachgezeichnet. Rechts ist nur Garten, links das Haus ist ergänzt.
wo ist Norden,
wo stehen die Nachbarhäuser rechts und links ?
ypg schrieb:Wir haben aktuell auch zwei Plätze hintereinander im gleichen Ort, scheint zu gehen.
wo ist Norden?
Ist nicht erlaubt, kein vollwertiger Stellplatz nach vielen/allen? LBOs.
Bitte Bad vermaßen.
Auf Speis lieber verzichten, als einen Slalom-Labyrinth-Gang dort hin zu laufen.
Die Speis ist mehr als begehbarer Einbauschrank zu verstehen. Für größere Sachen steht der Hauswirtschaftsraum zur Verfügung.
Momentan nervt mich das unheimlich Konserven und Vorräte in den Küchenschränken zu verstauen.
hanghaus2000 schrieb:Würde man dabei noch einen (Doppel)Carport hinbekommen? Habe 6m Breite als Richtwert gefunden, das ist nicht vorhanden.
Sellplaetze nebeneinander ist zwar knapp sollte aber gehen.
Wie groß sollte die "Wendezone" vor dem Haus sein, wenn beide nebeneinander parken?
Ruska schrieb:
Momentan nervt mich das unheimlich Konserven und Vorräte in den Küchenschränken zu verstauen.Küchenplanung machen,in einen Vorratsschrank geht doppelt so viel rein, wie in einen Apothekerschrank,
nur Auszüge planen, 90-100cm breit,
da geht sehr viel rein und du hast den Überblick, keine Eckschränke.
Ich würde das Haus noch 2m nach Norden schieben, wegen Terrasse und Abendsonne,
oder wenn ihr Sonne den ganzen Tag mögt, ganz nach Norden und die Stellplätze als Sichtschutz an die Straße
Ähnliche Themen