D
Dutchi69519.05.25 18:47Hallo zusammen,
dies ist mein erster Beitrag, drum bitte ich im Voraus um Entschuldigung, falls ich nicht alle notwendigen Informationen bereitgestellt habe - es wurde nach besten Wissen und Gewissen erstellt :-)
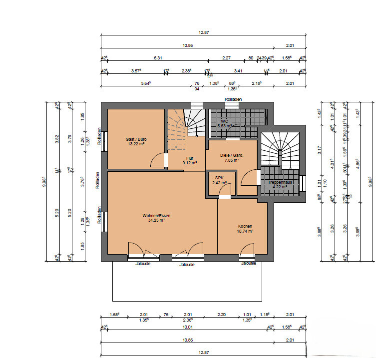
Wir sind momentan in der Planung eines Mehrgenerationenhauses und haben bereits einige Pläne vom Bauunternehmen erhalten. Dies ist nun der aktuelle Plan.
Geplant werden soll dieses auf einem Grundstück mit ca. 475qm.
Aufgrund des kleinen Grundstücks ist es so angedacht, dass die Schwiegereltern im EG wohnen und wir (2x Erwachsene + 2 Kleinkinder) im OG + DG. Wir hatten uns bereits auch die Variante mit einem asymmetrischen Doppelhaus planen lassen, aber das war zu teuer und auch zu groß für das Grundstück. Der Wunsch ist, dass noch ausreichend Garten zur Verfügung stehen soll.
Im Keller sind die Vorbereitungen für eine Einliegerwohnung angedacht, die zu einem späteren ggf. ausgebaut werden kann. Zu Beginn soll dieser als reiner Nutzkeller genutzt werden.
Aufgrund der Photovoltaikpflicht in BW und den Anforderungen an entsprechende Fördermittel wurde das Haus in KFW40 + QNG als Massivhaus geplant. Im Standard sind überall elektrische Rollladen bzw. Raffstores in Wohnzimmer + Küche.
Bebauungsplan/Einschränkungen
Größe des Grundstücks: ca. 475qm
Hang: nein
Grundflächenzahl: 0,3
Geschossflächenzahl: unbekannt
Baufenster, Baulinie und -grenze: offene Bauweise
Randbebauung: 1 Nachbarhaus zur linken Seite
Anzahl Stellplatz: 2 pro Wohneinheit
Geschossigkeit: 2,5 + Keller
Dachform: Satteldach
Stilrichtung
Ausrichtung
Maximale Höhen/Begrenzungen: GH: 9,50m, WH: 6,50m
weitere Vorgaben
Anforderungen der Bauherren
Stilrichtung, Dachform, Gebäudetyp
Keller, Geschosse: Keller, Erdgeschoss, Obergeschoss und Dachgeschoss
Anzahl der Personen, Alter: 2x Schwiegereltern + 2 Erwachsene + 2 Kinder (1,5 Jahre, 1 Monat)
Raumbedarf im EG, OG
Büro: Familiennutzung oder Homeoffice?: Im EG + OB wurde jeweils 1 Büro für Homeoffice eingeplant. Parallel soll dies als Gästezimmer dienen
Schlafgäste pro Jahr: wenig
offene oder geschlossene Architektur
konservativ oder moderne Bauweise
offene Küche, Kochinsel: Küche in L-Form + Kochinsel
Anzahl Essplätze: EG + OG: mindestens 6 Personen
Kamin: nein
Musik/Stereowand: nein
Balkon, Dachterrasse: Im OG ist zusätzlich ein Balkon eingeplant
Garage, Carport: Doppelgarage
Nutzgarten, Treibhaus
weitere Wünsche/Besonderheiten/Tagesablauf, gern auch Begründungen, warum dieses oder das nicht sein soll
Hausentwurf
Von wem stammt die Planung: Bauunternehmen
-Planer eines Bauunternehmens
-Architekt
-Do-it-Yourself
Was gefällt besonders? Warum?
Was gefällt nicht? Warum? Die Kinderzimmer im DG sind meiner Meinung nach zu klein eingeplant. Jetzt im Kleinkindesalter mag das passen, aber als Jugendzimmer finde ich dies zu klein. Angedacht war, die Abstellkammer im DG zu streichen und dem Elternschlafzimmer zuzuordnen, so dass die Kinderzimmer größer werden könnten. Oder sehen wir dies falsch? Als Ersatz für die Abstellkammer hatten wir evtl. eine zusätzliche Staumöglichkeit unter der Treppe angedacht.
Ich habe noch nie unter Dachschrägen gewohnt, aber leider lässt sich dies anders nicht durchführen (siehe oben). Aber sie verkleinern die Räume schon deutlich.
Preisschätzung laut Architekt/Planer: Das Haus soll ohne Baunebenkosten und Grundstück ca. 800.000 schlüsselfertig kosten. Wir werden jedoch einiges an Eigenleistung erbringen müssen, um den Preis nach unten zu drücken.
Persönliches Preislimit fürs Haus, inkl. Ausstattung: als maximales Budget hatten wir uns für alles 950.000€ gesetzt. Ob dies realistisch ist, wird sich zeigen ;-)
favorisierte Heiztechnik: geplant ist eine Luft-Wasser-Wärmepumpe + Fußbodenheizung
Wenn Ihr verzichten müsst, auf welche Details/Ausbauten
-könnt Ihr verzichten:
-könnt Ihr nicht verzichten: Keller
Warum ist der Entwurf so geworden, wie er jetzt ist? ZB
Vom Bauunternehmen wurden die Entwürfe bereits angepasst, da die anderen Entwürfe zu teuer waren. So wurde die Grundfläche von anfangs 100qm auf 90qm verkleinert. Durch die Teilintegrierung des Treppenhauses sind wir nun bei einer Grundfläche von etwas mehr als 80qm.
Standardentwurf vom Planer?
Entsprechende/Welche Wünsche wurden vom Architekten umgesetzt?
Ein Gemisch aus vielen Beispielen aus div. Magazinen...
Was macht ihn in Euren Augen besonders gut oder schlecht?
Gibt es aus Eurer Sicht noch Optimierungen hinsichtlich der Grundrisse?




dies ist mein erster Beitrag, drum bitte ich im Voraus um Entschuldigung, falls ich nicht alle notwendigen Informationen bereitgestellt habe - es wurde nach besten Wissen und Gewissen erstellt :-)
Wir sind momentan in der Planung eines Mehrgenerationenhauses und haben bereits einige Pläne vom Bauunternehmen erhalten. Dies ist nun der aktuelle Plan.
Geplant werden soll dieses auf einem Grundstück mit ca. 475qm.
Aufgrund des kleinen Grundstücks ist es so angedacht, dass die Schwiegereltern im EG wohnen und wir (2x Erwachsene + 2 Kleinkinder) im OG + DG. Wir hatten uns bereits auch die Variante mit einem asymmetrischen Doppelhaus planen lassen, aber das war zu teuer und auch zu groß für das Grundstück. Der Wunsch ist, dass noch ausreichend Garten zur Verfügung stehen soll.
Im Keller sind die Vorbereitungen für eine Einliegerwohnung angedacht, die zu einem späteren ggf. ausgebaut werden kann. Zu Beginn soll dieser als reiner Nutzkeller genutzt werden.
Aufgrund der Photovoltaikpflicht in BW und den Anforderungen an entsprechende Fördermittel wurde das Haus in KFW40 + QNG als Massivhaus geplant. Im Standard sind überall elektrische Rollladen bzw. Raffstores in Wohnzimmer + Küche.
Bebauungsplan/Einschränkungen
Größe des Grundstücks: ca. 475qm
Hang: nein
Grundflächenzahl: 0,3
Geschossflächenzahl: unbekannt
Baufenster, Baulinie und -grenze: offene Bauweise
Randbebauung: 1 Nachbarhaus zur linken Seite
Anzahl Stellplatz: 2 pro Wohneinheit
Geschossigkeit: 2,5 + Keller
Dachform: Satteldach
Stilrichtung
Ausrichtung
Maximale Höhen/Begrenzungen: GH: 9,50m, WH: 6,50m
weitere Vorgaben
Anforderungen der Bauherren
Stilrichtung, Dachform, Gebäudetyp
Keller, Geschosse: Keller, Erdgeschoss, Obergeschoss und Dachgeschoss
Anzahl der Personen, Alter: 2x Schwiegereltern + 2 Erwachsene + 2 Kinder (1,5 Jahre, 1 Monat)
Raumbedarf im EG, OG
Büro: Familiennutzung oder Homeoffice?: Im EG + OB wurde jeweils 1 Büro für Homeoffice eingeplant. Parallel soll dies als Gästezimmer dienen
Schlafgäste pro Jahr: wenig
offene oder geschlossene Architektur
konservativ oder moderne Bauweise
offene Küche, Kochinsel: Küche in L-Form + Kochinsel
Anzahl Essplätze: EG + OG: mindestens 6 Personen
Kamin: nein
Musik/Stereowand: nein
Balkon, Dachterrasse: Im OG ist zusätzlich ein Balkon eingeplant
Garage, Carport: Doppelgarage
Nutzgarten, Treibhaus
weitere Wünsche/Besonderheiten/Tagesablauf, gern auch Begründungen, warum dieses oder das nicht sein soll
Hausentwurf
Von wem stammt die Planung: Bauunternehmen
-Planer eines Bauunternehmens
-Architekt
-Do-it-Yourself
Was gefällt besonders? Warum?
Was gefällt nicht? Warum? Die Kinderzimmer im DG sind meiner Meinung nach zu klein eingeplant. Jetzt im Kleinkindesalter mag das passen, aber als Jugendzimmer finde ich dies zu klein. Angedacht war, die Abstellkammer im DG zu streichen und dem Elternschlafzimmer zuzuordnen, so dass die Kinderzimmer größer werden könnten. Oder sehen wir dies falsch? Als Ersatz für die Abstellkammer hatten wir evtl. eine zusätzliche Staumöglichkeit unter der Treppe angedacht.
Ich habe noch nie unter Dachschrägen gewohnt, aber leider lässt sich dies anders nicht durchführen (siehe oben). Aber sie verkleinern die Räume schon deutlich.
Preisschätzung laut Architekt/Planer: Das Haus soll ohne Baunebenkosten und Grundstück ca. 800.000 schlüsselfertig kosten. Wir werden jedoch einiges an Eigenleistung erbringen müssen, um den Preis nach unten zu drücken.
Persönliches Preislimit fürs Haus, inkl. Ausstattung: als maximales Budget hatten wir uns für alles 950.000€ gesetzt. Ob dies realistisch ist, wird sich zeigen ;-)
favorisierte Heiztechnik: geplant ist eine Luft-Wasser-Wärmepumpe + Fußbodenheizung
Wenn Ihr verzichten müsst, auf welche Details/Ausbauten
-könnt Ihr verzichten:
-könnt Ihr nicht verzichten: Keller
Warum ist der Entwurf so geworden, wie er jetzt ist? ZB
Vom Bauunternehmen wurden die Entwürfe bereits angepasst, da die anderen Entwürfe zu teuer waren. So wurde die Grundfläche von anfangs 100qm auf 90qm verkleinert. Durch die Teilintegrierung des Treppenhauses sind wir nun bei einer Grundfläche von etwas mehr als 80qm.
Standardentwurf vom Planer?
Entsprechende/Welche Wünsche wurden vom Architekten umgesetzt?
Ein Gemisch aus vielen Beispielen aus div. Magazinen...
Was macht ihn in Euren Augen besonders gut oder schlecht?
Gibt es aus Eurer Sicht noch Optimierungen hinsichtlich der Grundrisse?
Hallo,
magst Du nochmal den Lageplan (Grundstück) nachreichen? Außerdem die Ausrichtung des Haus (Nord/Süd) sowie das Alter der Senioren?
Habt Ihr spezielle Hobbys? was mögt Ihr an dem Haus?
Plant Ihr keinen Balkon oder ähnliches für die obere Einheit?
Ein Tipp vorab: es bietet sich an, die Entwurfsplanungen selbst mit maßstabsgerechten Möbeln zu möblieren, damit man sieht, wo die Mankos oder auch Potentiale sind (Essbereich-Größe, TV-Abstand, Stellfläche in den Kinderzimmer.) das solltest Ihr auf jeden Fall noch erarbeiten.
Schablonen eignen sich dafür zum Hin- und Herschieben.
magst Du nochmal den Lageplan (Grundstück) nachreichen? Außerdem die Ausrichtung des Haus (Nord/Süd) sowie das Alter der Senioren?
Habt Ihr spezielle Hobbys? was mögt Ihr an dem Haus?
Plant Ihr keinen Balkon oder ähnliches für die obere Einheit?
Dutchi695 schrieb:Was ist denn das zum Beispiel?
Ein Gemisch aus vielen Beispielen aus div. Magazinen...
Ein Tipp vorab: es bietet sich an, die Entwurfsplanungen selbst mit maßstabsgerechten Möbeln zu möblieren, damit man sieht, wo die Mankos oder auch Potentiale sind (Essbereich-Größe, TV-Abstand, Stellfläche in den Kinderzimmer.) das solltest Ihr auf jeden Fall noch erarbeiten.
Schablonen eignen sich dafür zum Hin- und Herschieben.
Gütige Göttin. So wird das nichts. Die Packdichte der Wünsche in diesem Entwurf ist zu hoch. Das ist kein Mehrgenerationenhaus, sondern ein Zweifamilienpluseinliegerhaus in maximal vermurkster Form. Geht zu einem freien Architekten, statt ein Bauunternehmen irgendetwas zusammenpfuschen und dann auch noch verkleinern zu lassen. Und streicht den Einlieger, durch dessen Integration das Zugroßwerden des dann verkleinerungsnotwendigen Entwurfes wohl überhaupt erst entstanden ist. Baut mit ganz normal nur einem Treppenhaus und einer Wendeltreppe im OG/DG Maisonette.
https://www.instagram.com/11antgmxde/
https://www.linkedin.com/company/bauen-jetzt/
https://www.instagram.com/11antgmxde/
https://www.linkedin.com/company/bauen-jetzt/
ypg schrieb:
Ein Tipp vorab: es bietet sich an, die Entwurfsplanungen selbst mit maßstabsgerechten Möbeln zu möblieren,Dringende Empfehlung meinerseits .. z. B. für die Möblierung des Schlafzimmers im EG.ypg schrieb:
magst Du nochmal den Lageplan (Grundstück) nachreichen?Würde mich auch interessieren, denn es müssen ja mind. 4 Autostellplätze mit der Option für 2 weitere Stellplätze sein.kbt09 schrieb:
Würde mich auch interessieren, denn es müssen ja mind. 4 Autostellplätze mit der Option für 2 weitere Stellplätze sein.Das wird ein Problem bei nicht einmal 500qm.Ich gehe mal davon aus, dass Süden auch unten ist, wo er hingehört und die Einliegerwohnung nur dazu da ist, das Überangebot des Kellers zu kompensieren. Da fällt mir spontan auch keine schnelle Lösung ein.
Beim bestehendem EG würde ich den Flur etwas verlängern, an deren Stirnseite einen Einbauschrank als Garderobe einplanen und die Funktion Schlafzimmer mit Büro tauschen (Größen anpassen), damit das Bad am Schlafzimmer ist. Tür zum Büro dann zur Möblierung WZ anpassen. Der verlängerte Flur tut dem Essbereich auch gut, weil er für Struktur sorgt.
Die Kinderzimmer sind nicht zu klein. Ihr solltet allerdings darauf achten, dass hinter die Fenster auch tiefe Schränke stehen können, bedeutet: Fenster auseinander rücken. Auf bodentiefe würde ich auch verzichten, weil sie die Intimsphäre beeinträchtigen. Schließlich kann da der Nachbar dann unter die Gürtellinie schauen. Schenkt den Kids unter der Schräge am Drempel niedrige Einbauschränke Oder stellt dort einen umgedrehten Kallax vor, dann ist der niedrige Drempel gut ausgenutzt.
Allerdings ist mit den Tipps das Stellplatzproblem nicht gelöst.
ypg schrieb:
Allerdings ist mit den Tipps das Stellplatzproblem nicht gelöst.Dutchi695 schrieb:
könnt Ihr nicht verzichten: KellerAllerdings frage ich mich, warum der Keller gesetzt ist, wenn doch nur jeder seine 9qm Abstellfläche bekommt plus dem Technikraum. Für Wäsche habt Ihr die Badnischen. Für Fahrräder kommt dann doch sicherlich noch ein Gartenhaus und für den Rasenmäher ein zweites hin?!Insofern könnte man ja doch 25/30qm Anbau nach hinten im EG für die Nebenräume bauen, spart sich den Keller und die Platzhalter-Einliegerwohnung und gönnt sich lieber mit dem gesparten Geld einiges an netten Gimmicks: größere Fenster, offener Giebel, besserer Balkon mit Gartentreppe Und Überdachung.
Perfekt wäre es natürlich, den TK-Anbau gleich dafür zu nutzen. Dann müsste nochmal neu geplant werden.
Ansonsten funktioniert er ja so, wie er ist.
Ähnliche Themen