ᐅ Grundriss für 170 qm Einfamilienhaus/Bauhaus auf 520 qm Grundstück in NRW
Erstellt am: 10.11.20 13:28
T
thedenschT
thedensch10.11.20 13:28Hallo liebe Leute,
ich habe hier eine Grundrissidee von meiner Partnerin und mir, welche ich euch gerne einmal zeigen möchte. Wir haben bereits mehrere Runden mit einer Architektin eines GU gedreht und sind jetzt an einem Punkt,
wo ich gerne die Schwarmintelligenz dieses Forums nutzen möchte, um evtl. Fehler/Verbesserungen an dem Grundriss zu besprechen.
Ich möchte vorab gerne loswerden, dass ich unfassbar dankbar bin, dass es diese Community gibt. Ich habe viele Stunden/Tage hier verbracht um mich in gewisse Dinge einzulesen. Macht weiter so!!
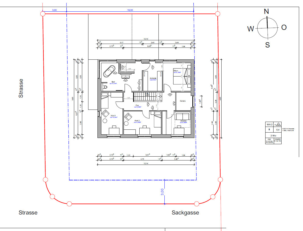
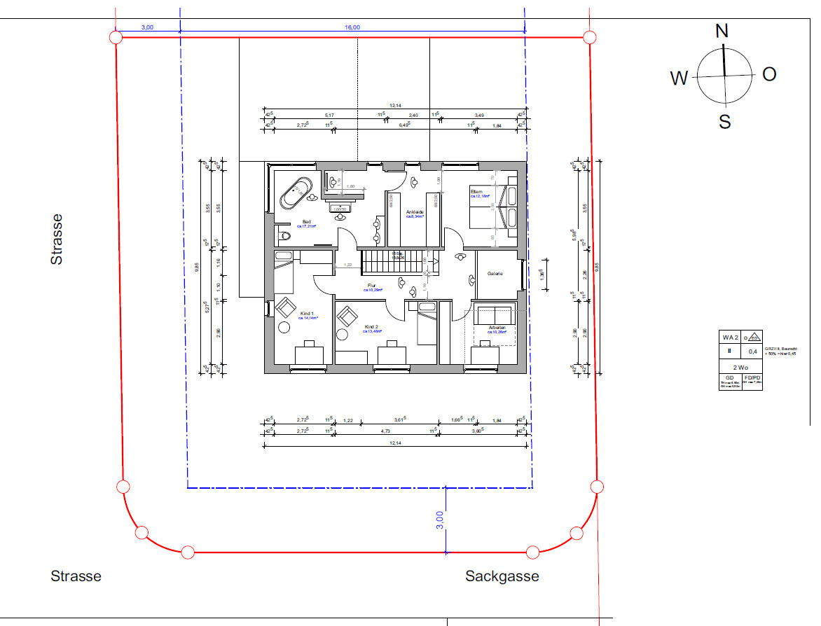
Unser Grundstück ist im Foto "Bebauungsplan" mit einem Stern gekennzeichnet. In dem Foto zum EG sieht man die Dimensionen. Hoffe ich habe nichts vergessen (...aber ihr werdet mich schon drauf aufmerksam machen)!
Hier die Daten zu unserem Bauvorhaben:
Bebauungsplan/Einschränkungen
Größe des Grundstücks – 520 m²
Hang – nein
Grundflächenzahl – 0,4
Geschossflächenzahl –
Baufenster, Baulinie und -grenze
Randbebauung – 3m
Anzahl Stellplatz - 2
Geschossigkeit - 2
Dachform – FD, PD, GD/SD
Stilrichtung – n/a
Ausrichtung – n/a
Maximale Höhen/Begrenzungen – GD = TH 6,5m, GH 9,5m + FD/PD = GH 7,0m
weitere Vorgaben
Anforderungen der Bauherren
Stilrichtung, Dachform, Gebäudetyp – Bauhaus, FD, Einfamilienhaus
Keller, Geschosse – 2 Vollgeschosse ohne Keller
Anzahl der Personen, Alter – 3, 33 M + 30 W + 6M Kind
Raumbedarf im EG, OG – 170 qm
Büro: Familiennutzung oder Homeoffice? – Home-Office
Schlafgäste pro Jahr – 10-15
offene oder geschlossene Architektur - Offen
konservativ oder moderne Bauweise - modern
offene Küche, Kochinsel – ja bzw. wie gezeichnet zu einer Seite offen.
Anzahl Essplätze - 8
Kamin - nein
Musik/Stereowand
Balkon, Dachterrasse - nein
Garage, Carport - Carport
Nutzgarten, Treibhaus - nein
weitere Wünsche/Besonderheiten/Tagesablauf, gern auch Begründungen, warum dieses oder das nicht sein soll
Hausentwurf
Von wem stammt die Planung:
-Planer eines Bauunternehmens - ja
-Architekt
-Do-it-Yourself – Ideen kamen von uns
Was gefällt besonders? Warum? – verwinkelter Wohn-/Essbereich, Treppe im Wohnraum, Galerie, Elternbereich inkl. Bad
Was gefällt nicht? Warum? Küche, weil evtl. zu wenig Platz, Fenster im Wohn/-Essbereich noch nicht final passend, Freisitz mit Überdach da noch nicht stimmig, Außenansicht zu sehr "Kasten"
Preisschätzung lt Architekt/Planer: 400k
Persönliches Preislimit fürs Haus, inkl Ausstattung: 380k
favorisierte Heiztechnik: Luft-Wasser-Wärmepumpe
Wenn Ihr verzichten müsst
-könnt Ihr verzichten:
-könnt Ihr nicht verzichten: Büro, 2 Kinderzimmer, große Fensterfronten
Warum ist der Entwurf so geworden, wie er jetzt ist?
Wir lieben den großzügigen, offenen (jedoch verwinkelten) Wohn-/Essbereich mit der offenen Treppe integriert.
Was ist die wichtigste/grundlegende Frage zum Grundriss in 130 Zeichen zusammengefasst? – seht ihr irgendwo gravierende Mängel in der Planung? Habt ihr noch Ideen oder Anregungen, worauf sollten wir achten?





ich habe hier eine Grundrissidee von meiner Partnerin und mir, welche ich euch gerne einmal zeigen möchte. Wir haben bereits mehrere Runden mit einer Architektin eines GU gedreht und sind jetzt an einem Punkt,
wo ich gerne die Schwarmintelligenz dieses Forums nutzen möchte, um evtl. Fehler/Verbesserungen an dem Grundriss zu besprechen.
Ich möchte vorab gerne loswerden, dass ich unfassbar dankbar bin, dass es diese Community gibt. Ich habe viele Stunden/Tage hier verbracht um mich in gewisse Dinge einzulesen. Macht weiter so!!
Unser Grundstück ist im Foto "Bebauungsplan" mit einem Stern gekennzeichnet. In dem Foto zum EG sieht man die Dimensionen. Hoffe ich habe nichts vergessen (...aber ihr werdet mich schon drauf aufmerksam machen)!
Hier die Daten zu unserem Bauvorhaben:
Bebauungsplan/Einschränkungen
Größe des Grundstücks – 520 m²
Hang – nein
Grundflächenzahl – 0,4
Geschossflächenzahl –
Baufenster, Baulinie und -grenze
Randbebauung – 3m
Anzahl Stellplatz - 2
Geschossigkeit - 2
Dachform – FD, PD, GD/SD
Stilrichtung – n/a
Ausrichtung – n/a
Maximale Höhen/Begrenzungen – GD = TH 6,5m, GH 9,5m + FD/PD = GH 7,0m
weitere Vorgaben
Anforderungen der Bauherren
Stilrichtung, Dachform, Gebäudetyp – Bauhaus, FD, Einfamilienhaus
Keller, Geschosse – 2 Vollgeschosse ohne Keller
Anzahl der Personen, Alter – 3, 33 M + 30 W + 6M Kind
Raumbedarf im EG, OG – 170 qm
Büro: Familiennutzung oder Homeoffice? – Home-Office
Schlafgäste pro Jahr – 10-15
offene oder geschlossene Architektur - Offen
konservativ oder moderne Bauweise - modern
offene Küche, Kochinsel – ja bzw. wie gezeichnet zu einer Seite offen.
Anzahl Essplätze - 8
Kamin - nein
Musik/Stereowand
Balkon, Dachterrasse - nein
Garage, Carport - Carport
Nutzgarten, Treibhaus - nein
weitere Wünsche/Besonderheiten/Tagesablauf, gern auch Begründungen, warum dieses oder das nicht sein soll
Hausentwurf
Von wem stammt die Planung:
-Planer eines Bauunternehmens - ja
-Architekt
-Do-it-Yourself – Ideen kamen von uns
Was gefällt besonders? Warum? – verwinkelter Wohn-/Essbereich, Treppe im Wohnraum, Galerie, Elternbereich inkl. Bad
Was gefällt nicht? Warum? Küche, weil evtl. zu wenig Platz, Fenster im Wohn/-Essbereich noch nicht final passend, Freisitz mit Überdach da noch nicht stimmig, Außenansicht zu sehr "Kasten"
Preisschätzung lt Architekt/Planer: 400k
Persönliches Preislimit fürs Haus, inkl Ausstattung: 380k
favorisierte Heiztechnik: Luft-Wasser-Wärmepumpe
Wenn Ihr verzichten müsst
-könnt Ihr verzichten:
-könnt Ihr nicht verzichten: Büro, 2 Kinderzimmer, große Fensterfronten
Warum ist der Entwurf so geworden, wie er jetzt ist?
Wir lieben den großzügigen, offenen (jedoch verwinkelten) Wohn-/Essbereich mit der offenen Treppe integriert.
Was ist die wichtigste/grundlegende Frage zum Grundriss in 130 Zeichen zusammengefasst? – seht ihr irgendwo gravierende Mängel in der Planung? Habt ihr noch Ideen oder Anregungen, worauf sollten wir achten?
P
Pinky030110.11.20 13:54Hallo,
auf den ersten Blick gefällt mir der Grundriss gut!
Im OG-Bad würde ich noch ein zweites Waschbecken planen, wenn das Bad von 4 Personen genutzt werden soll. Außerdem würde ich auf die freistehende Wanne verzichten und sie einmauern, denn wer soll hinter die Wanne kriechen und da putzen?
Die Tür gegenüber der Dusche ist etwas gewöhnungsbedürftig 😉 Da könnte ich mir vorstellen, dass die Kinder sie absperren und später vergessen, sie wieder zu öffnen.
In der Küche würde ich das Kochfeld nicht auf der Insel anordnen. Diese Fläche sollte frei bleiben, da sie schön von allen Seiten "bearbeitet" werden kann z.B. um mit Kindern Plätzchen zu backen.
Was ich vielleicht anders machen würde: Auf den Luftraum verzichten, dafür 2 Bäder ins OG. Dusche im EG streichen und Garderobe vergrößern.
auf den ersten Blick gefällt mir der Grundriss gut!
Im OG-Bad würde ich noch ein zweites Waschbecken planen, wenn das Bad von 4 Personen genutzt werden soll. Außerdem würde ich auf die freistehende Wanne verzichten und sie einmauern, denn wer soll hinter die Wanne kriechen und da putzen?
Die Tür gegenüber der Dusche ist etwas gewöhnungsbedürftig 😉 Da könnte ich mir vorstellen, dass die Kinder sie absperren und später vergessen, sie wieder zu öffnen.
In der Küche würde ich das Kochfeld nicht auf der Insel anordnen. Diese Fläche sollte frei bleiben, da sie schön von allen Seiten "bearbeitet" werden kann z.B. um mit Kindern Plätzchen zu backen.
Was ich vielleicht anders machen würde: Auf den Luftraum verzichten, dafür 2 Bäder ins OG. Dusche im EG streichen und Garderobe vergrößern.
A
Alessandro10.11.20 14:43die Tür vom Carport in ins Haus kannst du dir sparen. Der Weg zum Eingang ist überdacht und du kannst Geld sparen und hast im Hauswirtschaftsraum mehr Stellfläche. Mach da lieber ein Fenster in den Hauswirtschaftsraum, wenn du mal Wäsche aufhängst zum Lüften.
Anderer Vorschlag: Ein eigener Garderobenraum. So wie der Platz im Hauswirtschaftsraum jetzt ist, kannst du den eh nicht nutzen...

Anderer Vorschlag: Ein eigener Garderobenraum. So wie der Platz im Hauswirtschaftsraum jetzt ist, kannst du den eh nicht nutzen...
A
Alessandro10.11.20 14:55warum quetscht ihr euch mit der Terrasse in den Osten nahe der Grenze wo zukünftig eine Doppelhaushälfte gebaut wird?
S
Sparfuchs7710.11.20 15:09thedensch schrieb:
Preisschätzung lt Architekt/Planer: 400k
Persönliches Preislimit fürs Haus, inkl Ausstattung: 380kDa solltet ihr nochmal genau hinschauen. Die Schätzungen der Architekten driften meist nach unten ab... anders rum hab ichs bisher noch nicht erlebt. Den Entwurf find ich schick 🙂 Bei der Küchenplanung solltet ihr auf den Durchgang aufpassen das ihr vielleicht auf 120cm kommt. Sonst blockiert ihr euch am Eingang.
T
thedensch10.11.20 15:26Pinky0301 schrieb:
Hallo,
auf den ersten Blick gefällt mir der Grundriss gut!
Im OG-Bad würde ich noch ein zweites Waschbecken planen, wenn das Bad von 4 Personen genutzt werden soll. Außerdem würde ich auf die freistehende Wanne verzichten und sie einmauern, denn wer soll hinter die Wanne kriechen und da putzen?
Die Tür gegenüber der Dusche ist etwas gewöhnungsbedürftig 😉 Da könnte ich mir vorstellen, dass die Kinder sie absperren und später vergessen, sie wieder zu öffnen.
In der Küche würde ich das Kochfeld nicht auf der Insel anordnen. Diese Fläche sollte frei bleiben, da sie schön von allen Seiten "bearbeitet" werden kann z.B. um mit Kindern Plätzchen zu backen.
Was ich vielleicht anders machen würde: Auf den Luftraum verzichten, dafür 2 Bäder ins OG. Dusche im EG streichen und Garderobe vergrößern.Vielen Dank! Das zweite Waschbecken nehme ich mit auf. 🙂 Die Wanne spreche ich mal bei meiner besseren Hälfte an. Ich sehe keine andere Lösung, das Badezimmer vom Schlafbereich abzutrennen als mit der Tür. "In den Raum kochen" ist ausdrücklich erwünscht. Daher ist das eine vertretbare Lösung, wenn keine Insel realisiert werden kann.
Luftraum und Dusche im EG soll so bleiben. Garderobe ist nur für Gäste, da wir mit großer Wahrscheinlichkeit im Hauswirtschaftsraum ablegen werden.
Alessandro schrieb:
die Tür vom Carport in ins Haus kannst du dir sparen. Der Weg zum Eingang ist überdacht und du kannst Geld sparen und hast im Hauswirtschaftsraum mehr Stellfläche. Mach da lieber ein Fenster in den Hauswirtschaftsraum, wenn du mal Wäsche aufhängst zum Lüften.
Anderer Vorschlag: Ein eigener Garderobenraum. So wie der Platz im Hauswirtschaftsraum jetzt ist, kannst du den eh nicht nutzen...

Alessandro schrieb:
warum quetscht ihr euch mit der Terrasse in den Osten nahe der Grenze wo zukünftig eine Doppelhaushälfte gebaut wird?Auch dir vielen Dank. Wir wollen den Hauswirtschaftsraum als "Dreckschleuse" nutzen um den Eingangsbereich bestmöglich sauber zu halten.
Mit der Terrasse hast du Recht. Das ist tatsächlich noch ein Punkt auf unserer "Änderungsliste". Wir sind damit auch noch nicht zufrieden. Hast du eine andere Idee?
Ähnliche Themen