ᐅ Bewertung Grundriss ca. 160 qm Einfamilienhaus EG/OG ca. 800 qm Grundstück
Erstellt am: 17.10.21 12:12
H
hausverliebtH
hausverliebt17.10.21 12:12Hallo liebes Hausbau-Forum,
wir befinden uns kurz vor der abschließenden Planung mit der Architektin und würden uns über Verbesserungsvorschläge und Tipps zu unserem Grundriss einholen.
Vielen Dank vorab!
Bebauungsplan/Einschränkungen
Größe des Grundstücks: ca. 800 qm
Hang: Das Haus steht auf ebener Fläche, im Garten beginnt ein Hang, der terrassenförmig als Garten gestaltet werden soll
Grundflächenzahl 0,25
Geschossflächenzahl 0,25
Baufenster, Baulinie und -grenze: Vorgabe vom Bauamt: min. 8m Abstand zur Straße
Randbebauung: Nein
Anzahl Stellplatz: 2 (Carport)
Geschossigkeit: 1,5
Dachform: Satteldach
Stilrichtung: Einfamilienhaus in Holzständerbauweise
Ausrichtung: Eingang straßenseitig im Norden, Terrasse und Garten im Süden
Maximale Höhen/Begrenzungen: Reines Wohngebiet, 1 Vollgeschoss
Anforderungen der Bauherren
Stilrichtung, Dachform, Gebäudetyp: siehe oben, Holzständerbauweise, KfW40
Keller, Geschosse: ohne Keller: 1,5 Geschosse mit 1,30 m Kniestock
Anzahl der Personen, Alter: aktuell 2 Erwachsene (27, 34)
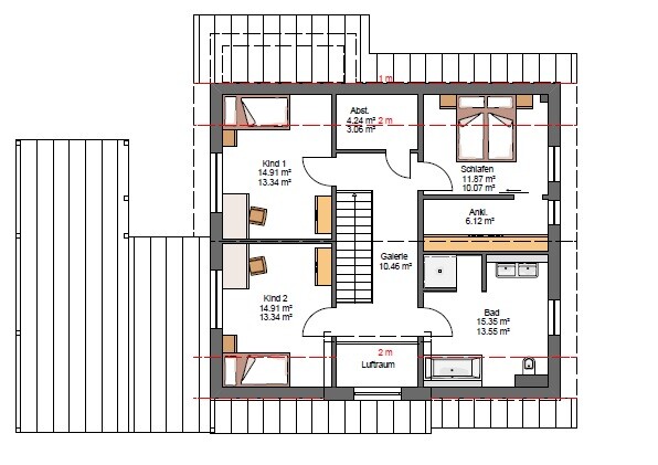
Raumbedarf im EG, OG: offener Wohn-Essbereich mit Küche ums Eck, geschlossene Treppe mit Abstellraum, Büro, HW-/Technikraum, Duschbad, Bad, Elternschlafzimmer, Ankleide, 2 Kinderzimmer, Abstellraum
Büro: Familiennutzung oder Homeoffice?: Homeoffice evtl. möglich
Schlafgäste pro Jahr: wenig
offene oder geschlossene Architektur: Wohn-Essbereich offen, Luftraum im Eingangsbereich
konservativ oder moderne Bauweise: eher konservativ
offene Küche, Kochinsel: Ja
Anzahl Essplätze: 6-8
Kamin: Nein
Musik/Stereowand: Nein
Balkon, Dachterrasse: Nein
Garage, Carport: Ja, Doppelcarport mit Abstellraum
Nutzgarten, Treibhaus: Nein
Hausentwurf
Von wem stammt die Planung: Eigene Pläne + Planer eines Bauunternehmens / Architektin
Was gefällt besonders? Warum?: möglichst effektive Platznutzung ohne verschenkte qm, Zugang im EG vom Flur in jeden Raum, Wohn-Essbereich mit Küche über Eck (kein direkter Blick vom Sofa in die Küche), Zugang von der Küche in den Abstellraum, Esstisch im "Wintergarten"
Was gefällt nicht? Warum? Wir überlegen, ob wir die beiden bodentiefen Fenster im EG (HW-/Technikraum und Duschbad [GRÜN markiert]) als "normale" Fenster ausführen lassen. Uns gefallen bodentiefe Fenster zwar optisch besser, aber aufgrund der Nutzbarkeit des Raumes wären Fenster in normaler Größe evtl. sinnvoller.
Das Fenster im Wohnbereich beim Sofa [ROT markiert], werden wir wahrscheinlich auch wieder aus der Planung streichen, da wir es für überflüssig halten.
Des Weiteren stellen wir uns die Frage ob die Ankleide etwas größer ausfallen sollte und dafür das Bad im OG etwas schrumpft. In die Ankleide soll eine große Schrankwand und gegenüberliegend Kommoden passen. Zudem haben wir Zweifel ob die Größe des HW-/Technikraums ausreicht.
favorisierte Heiztechnik: Luft-Wasser-Wärmepumpe i.V.m Photovoltaikanlage, Fußbodenheizung
Zu Beginn der Planungen haben wir, aufgrund unserer Angaben über die Wünsche und Anzahl der Räume, einen Entwurf vom Planer bekommen. Nach einigen Veränderungen ist daraus nun dieser Grundriss entstanden. Wir sind grundsätzlich sehr zufrieden mit dem Ergebnis, d.h. uns stört auf den ersten Blick nichts Elementares. Vielleicht gibt es jedoch noch weitere Anregungen oder Hinweise zu unserem Grundriss.







wir befinden uns kurz vor der abschließenden Planung mit der Architektin und würden uns über Verbesserungsvorschläge und Tipps zu unserem Grundriss einholen.
Vielen Dank vorab!
Bebauungsplan/Einschränkungen
Größe des Grundstücks: ca. 800 qm
Hang: Das Haus steht auf ebener Fläche, im Garten beginnt ein Hang, der terrassenförmig als Garten gestaltet werden soll
Grundflächenzahl 0,25
Geschossflächenzahl 0,25
Baufenster, Baulinie und -grenze: Vorgabe vom Bauamt: min. 8m Abstand zur Straße
Randbebauung: Nein
Anzahl Stellplatz: 2 (Carport)
Geschossigkeit: 1,5
Dachform: Satteldach
Stilrichtung: Einfamilienhaus in Holzständerbauweise
Ausrichtung: Eingang straßenseitig im Norden, Terrasse und Garten im Süden
Maximale Höhen/Begrenzungen: Reines Wohngebiet, 1 Vollgeschoss
Anforderungen der Bauherren
Stilrichtung, Dachform, Gebäudetyp: siehe oben, Holzständerbauweise, KfW40
Keller, Geschosse: ohne Keller: 1,5 Geschosse mit 1,30 m Kniestock
Anzahl der Personen, Alter: aktuell 2 Erwachsene (27, 34)
Raumbedarf im EG, OG: offener Wohn-Essbereich mit Küche ums Eck, geschlossene Treppe mit Abstellraum, Büro, HW-/Technikraum, Duschbad, Bad, Elternschlafzimmer, Ankleide, 2 Kinderzimmer, Abstellraum
Büro: Familiennutzung oder Homeoffice?: Homeoffice evtl. möglich
Schlafgäste pro Jahr: wenig
offene oder geschlossene Architektur: Wohn-Essbereich offen, Luftraum im Eingangsbereich
konservativ oder moderne Bauweise: eher konservativ
offene Küche, Kochinsel: Ja
Anzahl Essplätze: 6-8
Kamin: Nein
Musik/Stereowand: Nein
Balkon, Dachterrasse: Nein
Garage, Carport: Ja, Doppelcarport mit Abstellraum
Nutzgarten, Treibhaus: Nein
Hausentwurf
Von wem stammt die Planung: Eigene Pläne + Planer eines Bauunternehmens / Architektin
Was gefällt besonders? Warum?: möglichst effektive Platznutzung ohne verschenkte qm, Zugang im EG vom Flur in jeden Raum, Wohn-Essbereich mit Küche über Eck (kein direkter Blick vom Sofa in die Küche), Zugang von der Küche in den Abstellraum, Esstisch im "Wintergarten"
Was gefällt nicht? Warum? Wir überlegen, ob wir die beiden bodentiefen Fenster im EG (HW-/Technikraum und Duschbad [GRÜN markiert]) als "normale" Fenster ausführen lassen. Uns gefallen bodentiefe Fenster zwar optisch besser, aber aufgrund der Nutzbarkeit des Raumes wären Fenster in normaler Größe evtl. sinnvoller.
Das Fenster im Wohnbereich beim Sofa [ROT markiert], werden wir wahrscheinlich auch wieder aus der Planung streichen, da wir es für überflüssig halten.
Des Weiteren stellen wir uns die Frage ob die Ankleide etwas größer ausfallen sollte und dafür das Bad im OG etwas schrumpft. In die Ankleide soll eine große Schrankwand und gegenüberliegend Kommoden passen. Zudem haben wir Zweifel ob die Größe des HW-/Technikraums ausreicht.
favorisierte Heiztechnik: Luft-Wasser-Wärmepumpe i.V.m Photovoltaikanlage, Fußbodenheizung
Zu Beginn der Planungen haben wir, aufgrund unserer Angaben über die Wünsche und Anzahl der Räume, einen Entwurf vom Planer bekommen. Nach einigen Veränderungen ist daraus nun dieser Grundriss entstanden. Wir sind grundsätzlich sehr zufrieden mit dem Ergebnis, d.h. uns stört auf den ersten Blick nichts Elementares. Vielleicht gibt es jedoch noch weitere Anregungen oder Hinweise zu unserem Grundriss.
hausverliebt schrieb:
Hang: Das Haus steht auf ebener Fläche, im Garten beginnt ein Hang, der terrassenförmig als Garten gestaltet werden soll
[...] Baufenster, Baulinie und -grenze: Vorgabe vom Bauamt: min. 8m Abstand zur StraßeDas ist ungewöhnlich, ergänze doch ´mal Bilder (auch Luftbild, und der Katasterausschnitt dürfte auch gerne weiter aufziehen).Ein genau unter der noch nicht ganz fixen Grundfläche des Hauses flunderplattes Grundstück aber mit Hang kann ich mir außer im Märchen schwer vorstellen.
https://www.instagram.com/11antgmxde/
https://www.linkedin.com/company/bauen-jetzt/
Schlafzimmer im Süden, und damit es nicht warm wird, ohne Südfenster ?
Kind 2 wäre mein Schlafzimmer.
Die Ankleidewand würde ich weglassen,
Schrank kann auch an der Wand stehen,
und davor eine Yogafläche und eine Krambank, für saubere und geht nochmal Klamotten.
Essen im Wintergarten, du kannst gar nicht so schnell essen, wie dir die Butter wegschmilzt, bei 25-35 Grad Raumtemperatur ab März
Kind 2 wäre mein Schlafzimmer.
Die Ankleidewand würde ich weglassen,
Schrank kann auch an der Wand stehen,
und davor eine Yogafläche und eine Krambank, für saubere und geht nochmal Klamotten.
Essen im Wintergarten, du kannst gar nicht so schnell essen, wie dir die Butter wegschmilzt, bei 25-35 Grad Raumtemperatur ab März
H
hausverliebt17.10.21 12:57Ja, das ist ungewöhnlich, aber die Gegebenheiten des Grundstücks sind tatsächlich so wie beschrieben. Der Hang beginnt erst im letzten Viertel des Grundstücks in südlicher Richtung. Wir haben allerdings noch keine Daten vom Vermesser.
Ich würde auf jeden Fall die grün markierten Fenster nicht bodentief machen. Zum einen wegen der nutzbarkeit des Hauswirtschaftsraum. Und ich persönlich würde kein bodentiefes Fenster direkt neben die Toilette machen. Ich denke dieses würde dann mit Milchglas sein? Aber die Umrisse von den Leuten sieht man vermutlich von außen trotzdem. Spätestens wenn innen das Licht brennt und der Rollladen nicht zu ist. Das würde mich stören, wenn man dann von außen sieht dass jemand auf der Toilette sitzt.
Wenn du eh schon zweifel hast ob der Hauswirtschaftsraum groß genug ist. Braucht ihr zwingend die Türe zum Carport raus. Die nimmt halt auch Platz weg im Hauswirtschaftsraum.
Wenn du eh schon zweifel hast ob der Hauswirtschaftsraum groß genug ist. Braucht ihr zwingend die Türe zum Carport raus. Die nimmt halt auch Platz weg im Hauswirtschaftsraum.
Ähnliche Themen