Liebe Community!
Wir wollen gerne nächstes Jahr mit dem Hausbau beginnen u. haben einen Grundriss, der uns selbst eigentlich ganz gut gefällt. Wir wollen jedoch noch so viel wie möglich Feedback einholen, um auch andere Ideen oder Meinungen noch hinsichtlich unseres Vorhabens einzubeziehen u. eventuell noch mehr herauszuholen.
Thema Bebauung(splan):
Größe des Grundstücks - 1.500 m^2
Hang - Nord(ost)hang, Straße oberhalb im Süden
Bauklasse - Bauklasse 2, dadurch max. Höhe 8 Meter
Thema Wünsche Bauherren:
Stilrichtung, Dachform, Gebäudetyp - Pultdach (nicht zwingend)
Keller, Geschosse - Keller aufgr. Hang kosten-nutzen technisch ohnehin sinnvoll, aber auch gewünscht
Anzahl der Personen, Alter - 2 Personen (~30) u. 1 Kind (~ 1)
Raumbedarf im EG, OG
Büro: ev. Selbstständigkeit der Lebensgefährtin
Balkon, Dachterrasse - aufgr. von Kosten u. auch aufgr. der Tatsache, dass dieser nicht allzu oft wahrs. genutzt werden würde nicht gewünscht
Garage, Carport - aufgr. der Kosten ein Carport
Von wem stammt die Planung: Planer eines Bauunternehmens
Persönliches Preislimit fürs Haus, inkl Ausstattung:
Wir werden unser Haus (außer Küche, Bad) ohnehin zu Beginn provisorisch mit alten Möbeln, die wir bereits besitzen ausrichten u. dann sukzessive einrichten, aber ich würde sagen inkl. Keller ~ 400.000 - 450.000 €
favorisierte Heiztechnik: Luft-Wasser Wärmepumpe
Wunsch Aufteilung Geschosse:
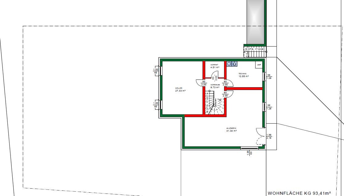
Kellergeschoss - ev. später Sauna, Partyraum oder auch kühler Aufenthaltsraum im Sommer, Abstellraum - ebenerdig begehbar in Garten im Norden/Nordosten
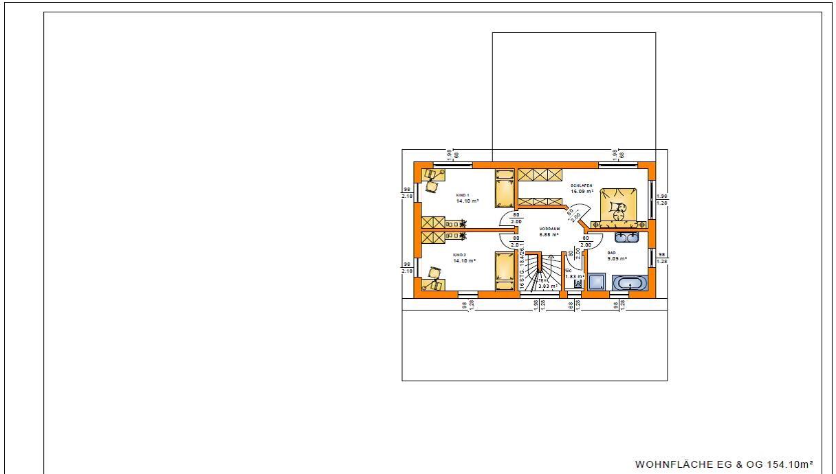
Erdgeschoss - Küche/Essbereich, Wohnzimmer (durch Schiebetür abtrennbar vom Essbereich), Büro (teils größere Kindergruppen 3-5 Kinder anwesend), WC (mit Duschvorsehung), Garderobe, Stiege in OG/KG nicht im Wohnbereich, Abstellraum
Obergeschoss - Schlafzimmer Eltern, 2x Schlafzimmer Kind, Bad, WC
Vorschlag Grundriss Baufirma nach 2-3 Gesprächen:
EG:

OG:

KG:

Beim Grundriss des EG habe ich die Himmelsrichtung eingezeichnet, denn diese ist für die Beurteilung des Grundrisses auf diesem doch schwierigen Grundstück nicht unwesentlich. Wir sind für jegliches Feedback sehr dankbar. Sollte ich irgendetwas wichtiges vergessen haben zu posten, dann bitte ich um Nachsicht.
Vielen Dank.
lg,
Christian
Wir wollen gerne nächstes Jahr mit dem Hausbau beginnen u. haben einen Grundriss, der uns selbst eigentlich ganz gut gefällt. Wir wollen jedoch noch so viel wie möglich Feedback einholen, um auch andere Ideen oder Meinungen noch hinsichtlich unseres Vorhabens einzubeziehen u. eventuell noch mehr herauszuholen.
Thema Bebauung(splan):
Größe des Grundstücks - 1.500 m^2
Hang - Nord(ost)hang, Straße oberhalb im Süden
Bauklasse - Bauklasse 2, dadurch max. Höhe 8 Meter
Thema Wünsche Bauherren:
Stilrichtung, Dachform, Gebäudetyp - Pultdach (nicht zwingend)
Keller, Geschosse - Keller aufgr. Hang kosten-nutzen technisch ohnehin sinnvoll, aber auch gewünscht
Anzahl der Personen, Alter - 2 Personen (~30) u. 1 Kind (~ 1)
Raumbedarf im EG, OG
Büro: ev. Selbstständigkeit der Lebensgefährtin
Balkon, Dachterrasse - aufgr. von Kosten u. auch aufgr. der Tatsache, dass dieser nicht allzu oft wahrs. genutzt werden würde nicht gewünscht
Garage, Carport - aufgr. der Kosten ein Carport
Von wem stammt die Planung: Planer eines Bauunternehmens
Persönliches Preislimit fürs Haus, inkl Ausstattung:
Wir werden unser Haus (außer Küche, Bad) ohnehin zu Beginn provisorisch mit alten Möbeln, die wir bereits besitzen ausrichten u. dann sukzessive einrichten, aber ich würde sagen inkl. Keller ~ 400.000 - 450.000 €
favorisierte Heiztechnik: Luft-Wasser Wärmepumpe
Wunsch Aufteilung Geschosse:
Kellergeschoss - ev. später Sauna, Partyraum oder auch kühler Aufenthaltsraum im Sommer, Abstellraum - ebenerdig begehbar in Garten im Norden/Nordosten
Erdgeschoss - Küche/Essbereich, Wohnzimmer (durch Schiebetür abtrennbar vom Essbereich), Büro (teils größere Kindergruppen 3-5 Kinder anwesend), WC (mit Duschvorsehung), Garderobe, Stiege in OG/KG nicht im Wohnbereich, Abstellraum
Obergeschoss - Schlafzimmer Eltern, 2x Schlafzimmer Kind, Bad, WC
Vorschlag Grundriss Baufirma nach 2-3 Gesprächen:
EG:
OG:
KG:
Beim Grundriss des EG habe ich die Himmelsrichtung eingezeichnet, denn diese ist für die Beurteilung des Grundrisses auf diesem doch schwierigen Grundstück nicht unwesentlich. Wir sind für jegliches Feedback sehr dankbar. Sollte ich irgendetwas wichtiges vergessen haben zu posten, dann bitte ich um Nachsicht.
Vielen Dank.
lg,
Christian
Ein paar Maße wären wichtig, auch die Abstände zu den Grundstücksgrenzen. Und Ansichten wären auch nicht schlecht.
Worauf bezieht sich
Bauklasse - Bauklasse 2, dadurch max. Höhe 8 Meter
Lageplan-Bild ... wo hast du das her? Darf das benutzt werden? Sonst am besten einen der Moderatoren zum Rausnehmen anschreiben.
--------------------
Was mir so auffällt:
Worauf bezieht sich
Bauklasse - Bauklasse 2, dadurch max. Höhe 8 Meter
Lageplan-Bild ... wo hast du das her? Darf das benutzt werden? Sonst am besten einen der Moderatoren zum Rausnehmen anschreiben.
--------------------
Was mir so auffällt:
- Treppe sieht relativ eng aus
- Küche ... versuche die mal zu möblieren, z. B. Hochschränke für Backofen und Kühlschrank. Frage da, muss die Speisekammer sein. Ihr habt einen Keller.
- Warum Abstellraum im EG?
- Carport direkt vor der Hauseingangstür sieht alles recht eng aus. Warum den Carport nicht weiter Richtung Straße? Dann braucht man auch nicht so eine lange Einfahrt (pflastern, Schneeschieben etc.).
- Geräteraum hinter Carport sollte vielleicht sinnvoller von Gartenseite benutzbar sein. Da dürfte dann aber erstmal Hang kommen - oder? An welche Geräte habt ihr denn gedacht? Was ist mit Fahrrädern?
- OG - Schlafzimmer finde ich noch nicht so wirklich gelungen, Kinderzimmer sind ok.
wie kommt das Doppelbett und die Schränke in die Schlaf-Etage? = Treppe sieht zu schmal zu eng & zu steil aus. Lichte breite sollte nicht unter 100cm sein - bei geraden Treppen, gewendelte auch gerne mehr - dann kommt man mit den Möbeln, Wäschekörben etc auch besser um die Ecke.
Mit der Kammer ist die Küche kaum möblierbar - die muss weg und die braucht es auch nicht wirklich, dann Klappt es auch mit der Möblierung.
80er Türen? zum Wohnbereich sollten es schon mindestens 90iger sein - Haustüre auch gerne 100cm
Mit der Kammer ist die Küche kaum möblierbar - die muss weg und die braucht es auch nicht wirklich, dann Klappt es auch mit der Möblierung.
80er Türen? zum Wohnbereich sollten es schon mindestens 90iger sein - Haustüre auch gerne 100cm
ypg schrieb:
Da hinsichtlich der Frage der Urheberrechte der Luftbildaufnahmen keine Resonanz kommt, werde ich diese löschen.Das Luftbild stammte vom "Nö Atlas" - ist von jedermann frei zugänglich, daher gehe ich auch nicht davon aus, dass dies rechtlich ein Problem sein sollte.
Danke für das viele Feedback vorab - je mehr Rückmeldungen, desto mehr kann man sich Gedanken machen u. ev. auftretende spätere Probleme vermeiden. Danke!
lg,
Christian
Ähnliche Themen