Jüngst kam hier in einer Diskussion die Idee auf, einmal speziell solche Hausentwürfe - meist betrifft es speziell Grundrisse - zu sammeln, die Sackgassen waren.
Daher möchte ich hier dazu aufrufen, diejenigen Grundrisse (oder auch Fassadenansichten) einzustellen, wo dem Bastler selbst die Erkenntnis gereift ist, die seien wohl im Papierkorb am besten aufgehoben.
Den meisten Wert können solche Beispiele m.E. entfalten, wenn man nicht nur die Zeichnung einstellt, sondern auch die Begründung für das Verwerfen. Hinzugefügt werden darf gerne auch ein "Nachher"-Bild, zu welchem besseren Nachfolger-(oder endgültigen) Entwurf diese Erkenntnis dann geführt hat.
In memoriam des "das war Spitze !" Luftsprunges von Hans Rosenthal fiel mir die Überschrift "das war Grütze !" dafür ein
Zwei Bitten hätte ich dabei noch: Erstens nicht alle dem Finalentwurf vorausgegangenen Ausrutscher 1 bis 257 einzustellen, sondern nur denjenigen Entwurf, bei dem "ein Knoten geplatzt" ist; und zweitens, nur solche Entwürfe einzustellen, die man danach verändert (also nicht "nur" gespiegelt oder gedreht) hat.
https://www.instagram.com/11antgmxde/
https://www.linkedin.com/company/bauen-jetzt/
Daher möchte ich hier dazu aufrufen, diejenigen Grundrisse (oder auch Fassadenansichten) einzustellen, wo dem Bastler selbst die Erkenntnis gereift ist, die seien wohl im Papierkorb am besten aufgehoben.
Den meisten Wert können solche Beispiele m.E. entfalten, wenn man nicht nur die Zeichnung einstellt, sondern auch die Begründung für das Verwerfen. Hinzugefügt werden darf gerne auch ein "Nachher"-Bild, zu welchem besseren Nachfolger-(oder endgültigen) Entwurf diese Erkenntnis dann geführt hat.
In memoriam des "das war Spitze !" Luftsprunges von Hans Rosenthal fiel mir die Überschrift "das war Grütze !" dafür ein
Zwei Bitten hätte ich dabei noch: Erstens nicht alle dem Finalentwurf vorausgegangenen Ausrutscher 1 bis 257 einzustellen, sondern nur denjenigen Entwurf, bei dem "ein Knoten geplatzt" ist; und zweitens, nur solche Entwürfe einzustellen, die man danach verändert (also nicht "nur" gespiegelt oder gedreht) hat.
https://www.instagram.com/11antgmxde/
https://www.linkedin.com/company/bauen-jetzt/
Oh super, dass du diesen Thread tatsächlich erstellt hast! Ich kann leider kein Bild beifügen, weil es Zeichnungen per Hand waren und ich kein Foto davon habe aber ursprünglich wollte mein Mann uuuunbedingt ne Galerie. Ich hab mich also an entsprechenden Grundrissen versucht, obwohl ich skeptisch zwecks Budget bei dann nötiger Hausgröße war...eine befreundete Architektin hat meinen Mann schließlich mit überzeugt, dass meine Grundrisse nicht schlecht sind. Zwar noch optimierbar aber von der Gesamtgröße eben kaum noch reduzierbar ohne Verlust an Wohnqualität. Das hat ihn letztlich überzeugt darauf zu verzichten.
Dann mach ich mal den Anfang
Wir haben ein Grundstück mit einem West/Ost Gefälle, Auf 35m ca. 3m Höhenunterschied.
Aufgrund der guten Lage, wollte ich anfänglich unbedingt eine Einliegerwohnung, welche dann an Studenten/Referendare vermietet werden sollte...
Außerdem war für uns klar, dass wir ohne Treppensteigen vom Auto zur Küche kommen wollten.
Eine Dachterrasse wollten wir auch noch, um einen Rückzugsort im Freien zu haben, da wir neben meinen Eltern hin bauten. Außerdem versprachen wir uns damit einen Tollen Blick über ein Flusstal.
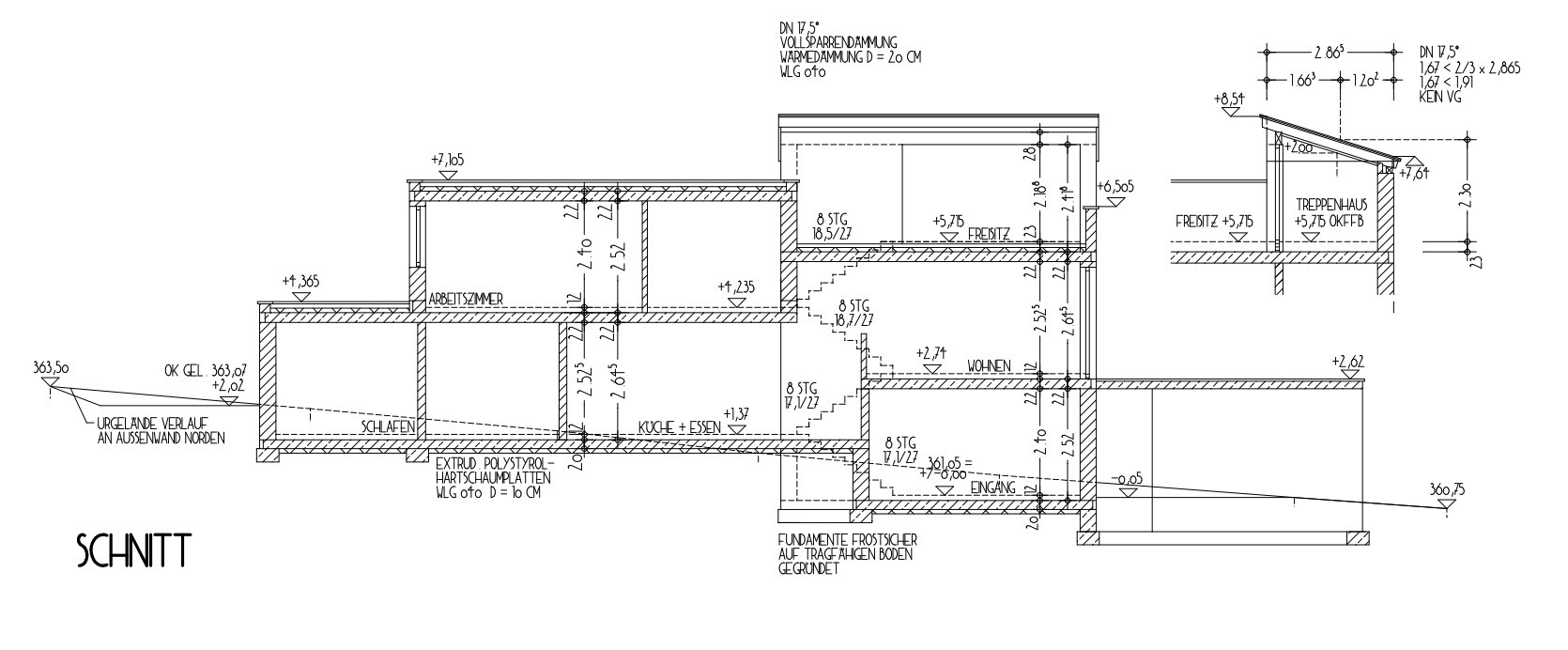
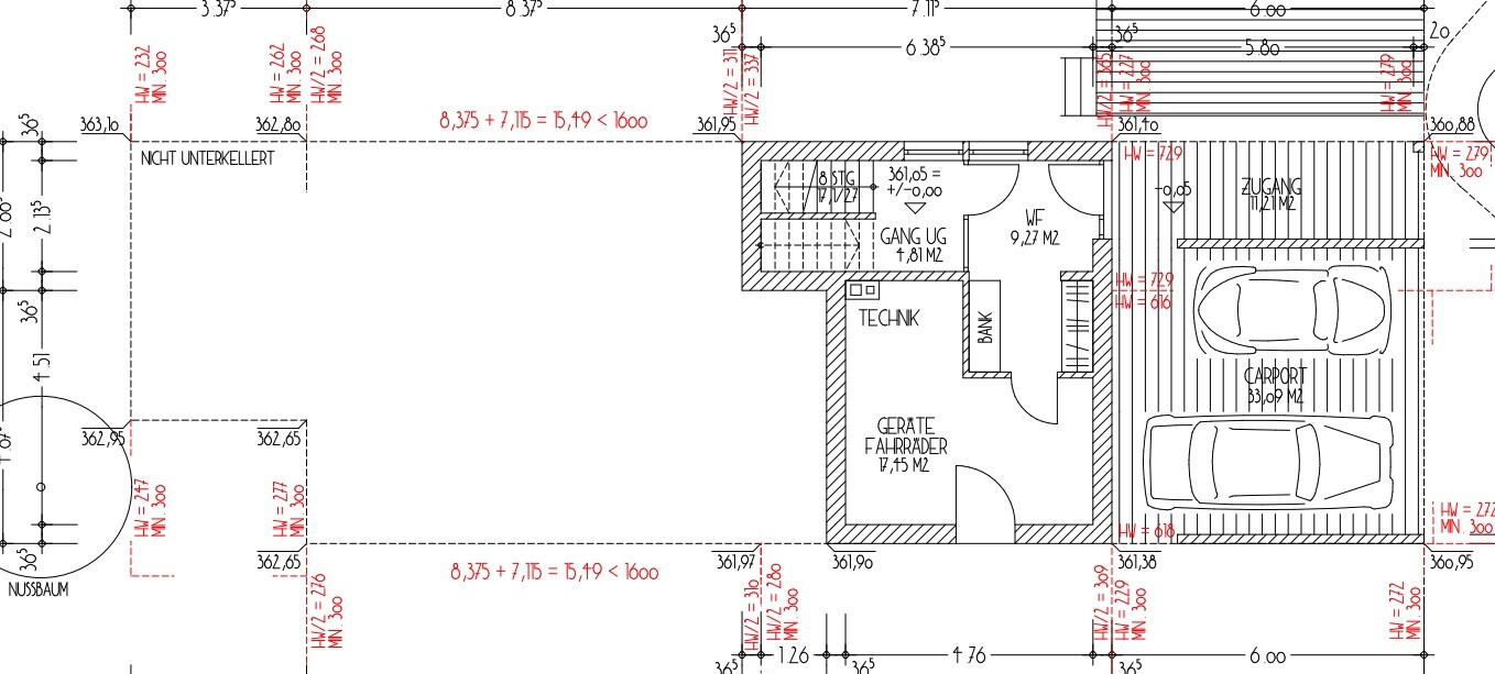
Dass dies alle aber nicht wirklich mit den geographischen Gegebenheiten zusammenpasst, mussten wir leider schmerzlich erfahren, als wir erste Pläne vom Architekten bekommen haben, die uns so gar nicht zusagten.
Exemplarisch dafür steht der folgende Entwurf:
Wir hätten eine ~25m Lange zufahrt mit 10-15% Steigung gehabt, nur damit wir mit dem Auto bei der Küche aussteigen können. Wendemögichkeit hätte es nicht gegeben, somit hätte man die Einfahrt immer Rückwärts rein oder raus müssen.
Auf andere Knackpunkte des Entwurfs geh ich gar nicht mehr ein
Nach X Planungsrunden haben wir erst mal gefrustet alles hingeworfen und iwann auch die Einliegerwohnung gestrichen (Ich bin heute so unendlich froh darüber, keinen Mieter im Haus zu haben)
Nach einigen Gesprächen kam mir erstmals auch die Idee, das Haus als Split-Level auszuführen.
Der Architekt war auch begeistert, hatte auch schon einige Häuser so ausgeführt und bei dem Grundstück drängte sich die Lösung nahezu auf.
Einzig mit unserem Wunsch, keine Treppen zwischen Auto und Küche zu haben, sollte es schierig werden. Aber lieber ne Treppe im Trockenen als draußen, wenn es auch noch schneit und glatt ist.
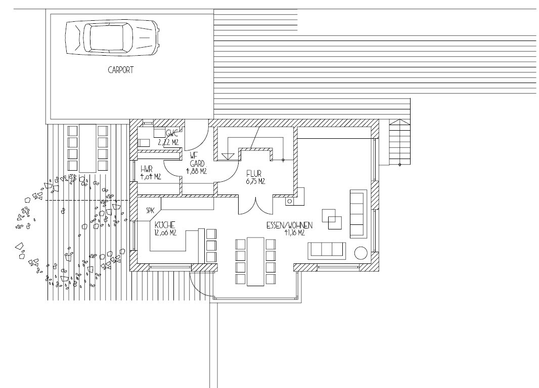
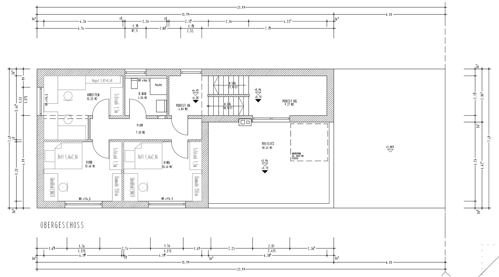
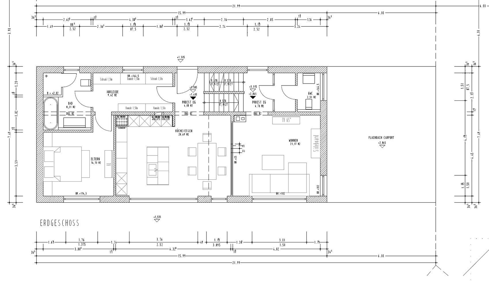
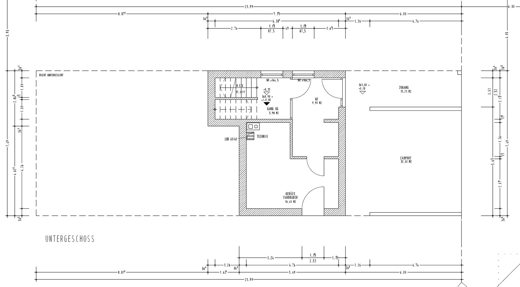
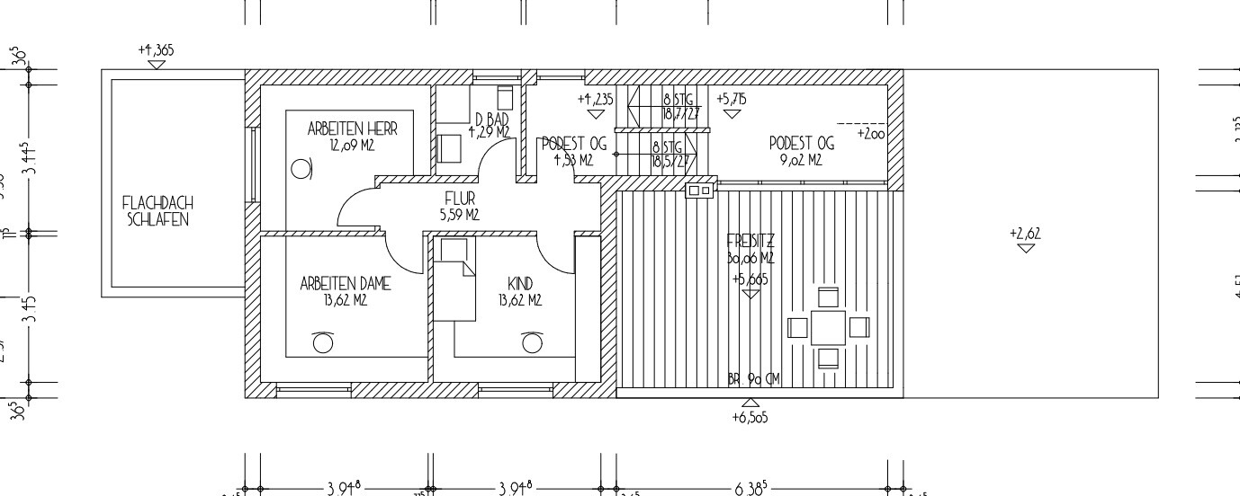
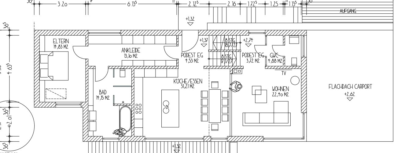
So kamen wir nach einigen Zwischenentwürfen zum finalen Stand für die Baugenehmigung:

Da uns die Kosten aber bei der Ausschreibung aus dem Ruder Liefen, entschieden wir uns, das Haus noch zu verkleinern. Der Hauptkörper wurde 25cm schmaler, dafür nen halben Meter länger, und der Kubus mit dem Schlafzimmer fiel komplett weg.
Heraus gekommen ist dann auch unser finaler Stand, den wir auch gebaut haben.
Bilder vom Endstand folgen im 2. Post, weil ich nur 10 Bilder pro Post anhängen kann.
Zurückblickend sind wir enorm froh, wie es letztlich geworden ist. Wir sind auch nach über einem Jahr noch sehr zufrieden mit unserer Grundrissplanung, Einzig bisschen mehr Fläche im Hauswirtschaftsraum-Raum wäre schön. Aber das war halt nicht möglich.
Wen der ganze Werdegang interessiert, kann sich ja mal hier durchkämpfen...
Wir haben ein Grundstück mit einem West/Ost Gefälle, Auf 35m ca. 3m Höhenunterschied.
Aufgrund der guten Lage, wollte ich anfänglich unbedingt eine Einliegerwohnung, welche dann an Studenten/Referendare vermietet werden sollte...
Außerdem war für uns klar, dass wir ohne Treppensteigen vom Auto zur Küche kommen wollten.
Eine Dachterrasse wollten wir auch noch, um einen Rückzugsort im Freien zu haben, da wir neben meinen Eltern hin bauten. Außerdem versprachen wir uns damit einen Tollen Blick über ein Flusstal.
Dass dies alle aber nicht wirklich mit den geographischen Gegebenheiten zusammenpasst, mussten wir leider schmerzlich erfahren, als wir erste Pläne vom Architekten bekommen haben, die uns so gar nicht zusagten.
Exemplarisch dafür steht der folgende Entwurf:
Wir hätten eine ~25m Lange zufahrt mit 10-15% Steigung gehabt, nur damit wir mit dem Auto bei der Küche aussteigen können. Wendemögichkeit hätte es nicht gegeben, somit hätte man die Einfahrt immer Rückwärts rein oder raus müssen.
Auf andere Knackpunkte des Entwurfs geh ich gar nicht mehr ein
Nach X Planungsrunden haben wir erst mal gefrustet alles hingeworfen und iwann auch die Einliegerwohnung gestrichen (Ich bin heute so unendlich froh darüber, keinen Mieter im Haus zu haben)
Nach einigen Gesprächen kam mir erstmals auch die Idee, das Haus als Split-Level auszuführen.
Der Architekt war auch begeistert, hatte auch schon einige Häuser so ausgeführt und bei dem Grundstück drängte sich die Lösung nahezu auf.
Einzig mit unserem Wunsch, keine Treppen zwischen Auto und Küche zu haben, sollte es schierig werden. Aber lieber ne Treppe im Trockenen als draußen, wenn es auch noch schneit und glatt ist.
So kamen wir nach einigen Zwischenentwürfen zum finalen Stand für die Baugenehmigung:
Da uns die Kosten aber bei der Ausschreibung aus dem Ruder Liefen, entschieden wir uns, das Haus noch zu verkleinern. Der Hauptkörper wurde 25cm schmaler, dafür nen halben Meter länger, und der Kubus mit dem Schlafzimmer fiel komplett weg.
Heraus gekommen ist dann auch unser finaler Stand, den wir auch gebaut haben.
Bilder vom Endstand folgen im 2. Post, weil ich nur 10 Bilder pro Post anhängen kann.
Zurückblickend sind wir enorm froh, wie es letztlich geworden ist. Wir sind auch nach über einem Jahr noch sehr zufrieden mit unserer Grundrissplanung, Einzig bisschen mehr Fläche im Hauswirtschaftsraum-Raum wäre schön. Aber das war halt nicht möglich.
Wen der ganze Werdegang interessiert, kann sich ja mal hier durchkämpfen...
Ähnliche Themen