ᐅ Grundriss: Doppelhaushälfte 8x12m Meinungen und kreative Ideen erwünscht :-)
Erstellt am: 28.04.20 13:37
J
JucruzloHallo Ihr lieben
auch ich hab mich ein bisschen an Grundrissen für unser Grundstück versucht.
Zum Hintergrund: Momentan sind wir in Kontakt mit einem GU und einem Fertighausbauer. Es wird wohl auf eine Kombi aus freiem Architekt und GU rauslaufen (Danke für den Tipp an @ant11).
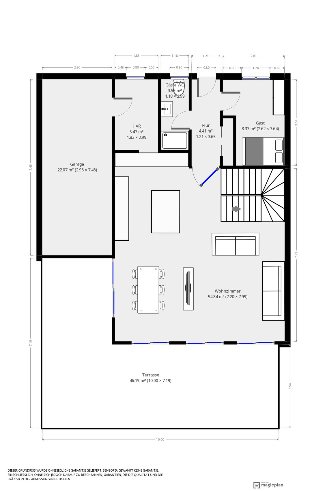
Es ist jedoch super schwer zurzeit einen Architekten zu finden - aber natürlich kann ich nicht still halten und musste selbst schonmmal ein bisschen ausprobieren. Gearbeitet habe ich mit der App MagicPlan. Vom Fertighausbauer haben wir zwar auch bereits einen Grundriss erhalten, aber der sagte uns wirklich absolut nicht zu Also dann mal los - danke im Voraus für jeden der sich das ansieht :-*
Gerne nehm ich auch Tipps an wie man einen Architekten findet der nicht erst ab 1Mio Aufträgshöhe arbeitet :-P
Noch kurz ne Info Zur Ausrichtung: Balkon im OG und Wohnzimmer zeigen Richtung Südwest. Muss auch so sein Hintenraus ist komplett Feldrand.
Bebauungsplan/Einschränkungen
Größe des Grundstücks: 410m2
Hang: nein
Baufenster: 5m zur Straße, 12m Hauslänge und 8(,1)m Breite fürs Haus und 3m Breite für Garage. Grundstück 11,1m*37m
Anzahl Stellplatz: -
Geschossigkeit: Max. 2 Vollgeschosse, kein Kniestock zulässig
Dachform: Satteldach 25-45grad
Stilrichtung: beliebig
Ausrichtung: Süd-West
Maximale Höhen/Begrenzungen: Firsthöhe 9m Wandhöhe Max. 4,70m
Anforderungen der Bauherren
Stilrichtung, Dachform, Gebäudetyp: schön :-P
Keller, Geschosse: kein Keller, fast 2 Vollgeschosse (leichte Schrägen ab 1,80m durch vorgeschriebene Wandhöhe)
Anzahl der Personen, Alter: 3 Personen, davon 1 Kleinkind (2j)- weiteres Kind in Planung
Raumbedarf im EG, OG: 140-160m2
Büro: Gästezimmer im EG als Büro genutzt
Schlafgäste pro Jahr: momentan selten - im Alter aber Platz für Eltern/Schwiegereltern erwünscht
offene oder geschlossene Architektur: offenes Raumkonzept
Balkon, Dachterrasse: Balkon für Wäsche
Garage, Carport: Garage - aber Carport wäre auch ok wenn die Vorteile überwiegen
Hausentwurf
Von wem stammt die Planung: von mir (ausgebildete Architektin durch diverse Apps :-P - Späßle)
Was gefällt besonders? Warum?
Was gefällt nicht? Warum?
Warum ist der Entwurf so geworden, wie er jetzt ist?
Wir wollten ein offenes Raumkonzept, da wir viel Besuch haben und ich es derzeit immer schade finde wenn ich in der Küche verschwinde während alles im Wohnbereich stattfindet. Wichtig war uns auch ein abgetrennter Elternbereich für komplette Privatsphäre und ein Balkon zum Wäsche aufhängen im Sommer. Dusche im EG für Gäste und Wichtig ist mir auch, im OG zu Waschen (da wo die Wäsche anfällt).
Was ist die wichtigste/grundlegende Frage zum Grundriss in 130 Zeichen zusammengefasst?
Hinweis:
Fenster sind frei Schnauze. Weiß auch leider nicht wie ich die Außenansicht ansehen kann - natürlich setze wir Fenster dementsprechend.


auch ich hab mich ein bisschen an Grundrissen für unser Grundstück versucht.
Zum Hintergrund: Momentan sind wir in Kontakt mit einem GU und einem Fertighausbauer. Es wird wohl auf eine Kombi aus freiem Architekt und GU rauslaufen (Danke für den Tipp an @ant11).
Es ist jedoch super schwer zurzeit einen Architekten zu finden - aber natürlich kann ich nicht still halten und musste selbst schonmmal ein bisschen ausprobieren. Gearbeitet habe ich mit der App MagicPlan. Vom Fertighausbauer haben wir zwar auch bereits einen Grundriss erhalten, aber der sagte uns wirklich absolut nicht zu Also dann mal los - danke im Voraus für jeden der sich das ansieht :-*
Gerne nehm ich auch Tipps an wie man einen Architekten findet der nicht erst ab 1Mio Aufträgshöhe arbeitet :-P
Noch kurz ne Info Zur Ausrichtung: Balkon im OG und Wohnzimmer zeigen Richtung Südwest. Muss auch so sein Hintenraus ist komplett Feldrand.
Bebauungsplan/Einschränkungen
Größe des Grundstücks: 410m2
Hang: nein
Baufenster: 5m zur Straße, 12m Hauslänge und 8(,1)m Breite fürs Haus und 3m Breite für Garage. Grundstück 11,1m*37m
Anzahl Stellplatz: -
Geschossigkeit: Max. 2 Vollgeschosse, kein Kniestock zulässig
Dachform: Satteldach 25-45grad
Stilrichtung: beliebig
Ausrichtung: Süd-West
Maximale Höhen/Begrenzungen: Firsthöhe 9m Wandhöhe Max. 4,70m
Anforderungen der Bauherren
Stilrichtung, Dachform, Gebäudetyp: schön :-P
Keller, Geschosse: kein Keller, fast 2 Vollgeschosse (leichte Schrägen ab 1,80m durch vorgeschriebene Wandhöhe)
Anzahl der Personen, Alter: 3 Personen, davon 1 Kleinkind (2j)- weiteres Kind in Planung
Raumbedarf im EG, OG: 140-160m2
Büro: Gästezimmer im EG als Büro genutzt
Schlafgäste pro Jahr: momentan selten - im Alter aber Platz für Eltern/Schwiegereltern erwünscht
offene oder geschlossene Architektur: offenes Raumkonzept
Balkon, Dachterrasse: Balkon für Wäsche
Garage, Carport: Garage - aber Carport wäre auch ok wenn die Vorteile überwiegen
Hausentwurf
Von wem stammt die Planung: von mir (ausgebildete Architektin durch diverse Apps :-P - Späßle)
Was gefällt besonders? Warum?
- Zugang Garage in Haustechnik
- wenig Flurbereiche und trotzdem Garderobe
- offenes Wohnkonzept und gerade Treppe (Podesttreppe war nicht abbildbar)
- eigenes Bad für Kids
- Großzügige WIC
- Waschraum im OG
- Durchgang Schlafzimmer/Bad Kleiderschrank
Was gefällt nicht? Warum?
- fehlende Speisekammer im EG
- Kinder Nordseite
- Das man zuerst in den Eltern Kleiderschrank kommt - hätte lieber 2 Wandschränke wie die Häuser In Amerika
- Diele im OG sehr eng und der Zugang zum Kinderzimmer 1 kaum realisierbar - andererseits mag ich keinen verschenkten Platz und den Flur zu vergrößern würde die Kinderzimmer verkleinern. Lösung?
- Ich find die Garage durchaus praktisch, nehme mir dadurch aber Fensterflächen weg - wird das EG zu dunkel und sollten wir lieber auf einen Carport setzen?
Warum ist der Entwurf so geworden, wie er jetzt ist?
Wir wollten ein offenes Raumkonzept, da wir viel Besuch haben und ich es derzeit immer schade finde wenn ich in der Küche verschwinde während alles im Wohnbereich stattfindet. Wichtig war uns auch ein abgetrennter Elternbereich für komplette Privatsphäre und ein Balkon zum Wäsche aufhängen im Sommer. Dusche im EG für Gäste und Wichtig ist mir auch, im OG zu Waschen (da wo die Wäsche anfällt).
Was ist die wichtigste/grundlegende Frage zum Grundriss in 130 Zeichen zusammengefasst?
- allgemeine Meinung zum Grundriss
- Siehe „was gefällt nicht“ Optimierungsideen erwünscht
Hinweis:
Fenster sind frei Schnauze. Weiß auch leider nicht wie ich die Außenansicht ansehen kann - natürlich setze wir Fenster dementsprechend.
S
saralina8728.04.20 14:42Eine kleine Speis hätte theoretisch unter der Treppe Platz, wird jetzt bei uns so gemacht. Wir bauen mit ähnlichen Maßen.
Seid ihr sicher dass der Platz für den Hausanschlussraum reicht?
Womit du rechnen musst: Innerhalb kürzester Zeit werden hier viele Leute nach Stauraum brüllen - hast du darüber schon nachgedacht?
Seid ihr sicher dass der Platz für den Hausanschlussraum reicht?
Womit du rechnen musst: Innerhalb kürzester Zeit werden hier viele Leute nach Stauraum brüllen - hast du darüber schon nachgedacht?
Curly schrieb:
wie soll das denn im Wohnzimmer mit den Kabeln für Fernseher, Spielekonsolen, DVD-Player usw. funktionieren und wie sieht das vom Esstisch gesehen aus?
LG
Sabine Danke für deine Frage
Da dachten wir uns eine Deckenhöhe Wand in etwa 1,80m breite die einen Kamin und den Fernseher beinhaltet. Eine Art Raum„teiler“
Ist aber kein Muss - könnten den Fernseher auch an die ggü. liegende Wand im Notfall machen uns gefällt es jedoch ganz gut wenn man so ne kleine Trennung der Bereiche erzielt die aber trotzdem offen wirkt.
saralina87 schrieb:
Eine kleine Speis hätte theoretisch unter der Treppe Platz, wird jetzt bei uns so gemacht. Wir bauen mit ähnlichen Maßen.
Seid ihr sicher dass der Platz für den Hausanschlussraum reicht?
Womit du rechnen musst: Innerhalb kürzester Zeit werden hier viele Leute nach Stauraum brüllen - hast du darüber schon nachgedacht?Ja unter der Treppe soll auch ein Abstellraum hin vergessen zu erwähnen. Hätte aber gern zusätzlich noch was nur für Vorräte
Hast du euren Grundriss drin?
Wobei der uns wahrscheinlich nicht wirklich weiter bringt da sich bei uns eher das Doppelhaushälfte Thema schwierig erweist. Wenn wir ein Einfamilienhaus bauen würden hätten wir den Eingang wohl seitlich gewählt
Würde mich aber trotzdem interessieren Vielleicht kann ich mir was abschauen
Und ja da hast du auf jeden Fall recht - deshalb würde ich auch die Garage präferieren - einzig und allein für zusätzlichen Stauraum.
Zur Technik: ja sollte reichen, da soll auch wirklich nur die Technik rein und kein abstel, Waschplatz etc.
Ähnliche Themen