Ich hatte mal für Goalkeeper auch einen Entwurf mit seitlichem Eingang, 7,13x10 m .. allerdings OG als Vollgeschoss. Diesen Grundriss könnte ich mir auch etwas länger vorstellen (käme dem getrennten Wohnzimmer zu gute) und die Frage ist ja, ob generell 2 Vollgeschosse erlaubt wären.
Bei 10 m breiten Grundstücken finde ich es immer nicht so gelungen, wenn der 3m-Streifen dann mit Garage zugestellt ist. Wie kommt man dann z. B. mit neuen Pflanzen geschickt in den Garten? Wo stellt man Fahrräder ab? Die passen in einer 3 m-Garage nämlich nicht am Auto vorbei usw.
Goalkeeper hat allerdings den Norden planrechts. Er hat es nicht so realisiert. Aber, mal als Anregung.






Bei 10 m breiten Grundstücken finde ich es immer nicht so gelungen, wenn der 3m-Streifen dann mit Garage zugestellt ist. Wie kommt man dann z. B. mit neuen Pflanzen geschickt in den Garten? Wo stellt man Fahrräder ab? Die passen in einer 3 m-Garage nämlich nicht am Auto vorbei usw.
Goalkeeper hat allerdings den Norden planrechts. Er hat es nicht so realisiert. Aber, mal als Anregung.
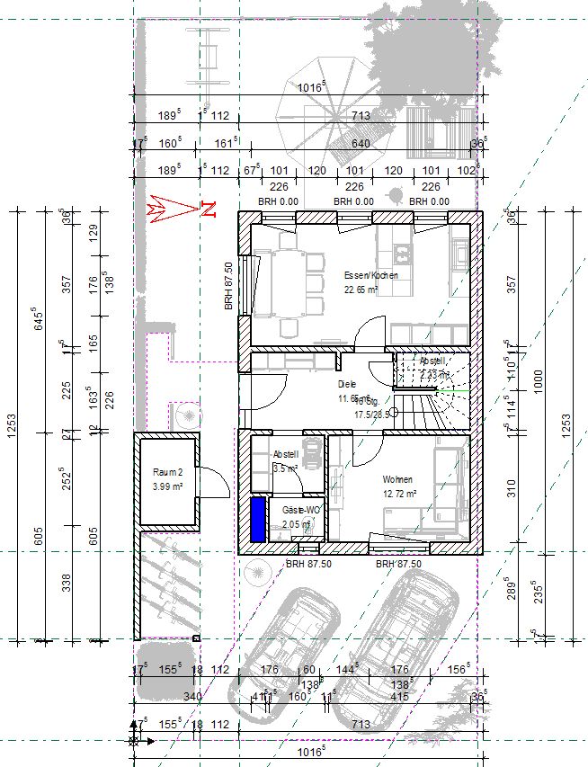
kbt09 schrieb:
Ich hatte mal für Goalkeeper auch einen Entwurf mit seitlichem Eingang, 7,13x10 m .. allerdings OG als Vollgeschoss. Diesen Grundriss könnte ich mir auch etwas länger vorstellen (käme dem getrennten Wohnzimmer zu gute) und die Frage ist ja, ob generell 2 Vollgeschosse erlaubt wären.
Bei 10 m breiten Grundstücken finde ich es immer nicht so gelungen, wenn der 3m-Streifen dann mit Garage zugestellt ist. Wie kommt man dann z. B. mit neuen Pflanzen geschickt in den Garten? Wo stellt man Fahrräder ab? Die passen in einer 3 m-Garage nämlich nicht am Auto vorbei usw.
Goalkeeper hat allerdings den Norden planrechts. Er hat es nicht so realisiert. Aber, mal als Anregung.vielen Dank für den Grundriss. Wir dürfen leider nur 1 Vollgeschoss haben. Im OG liegt der Kniestock bei 50cm. Eine Garage werden wir nicht haben. Später eventuell ein Carport. Die 6,50breite die wir fürs Wohnzimmer haben finde ich eigentlich optimal. Aber ich werde es trotzdem nochmal mit dem Seiteneingang versuchen da ja viele denvorschlagen. Vielleicht findet sich eine Lösung.
Marc1990 schrieb:
Aber ich werde es trotzdem nochmal mit dem Seiteneingang versuchen da ja viele denvorschlagen.Du sollst es auch nicht versuchen, sondern Deinen Architekt das planen lassen.Du sollst nur notieren, was dir/euch wichtig ist - er macht das schon.
Weshalb lese ich permanent „evtl. später Carport“?
Plan das Teil gleich mit ein, bei dieser Grundstücksbreite gibt’s dafür kein Spielraum. Gerade das Thema „Helligkeit im EG“ gilt es zu berücksichtigen.
Bei 112 qm geplanter Grundfläche kann ein fähiger Architekt auf alle Fälle was ordentliches abliefern!
Ich habe den Thread gefunden
https://www.hausbau-forum.de/threads/grundriss-efh-110m-eg-og-erster-entwurf-einteilung-raeume.41131/page-14
Die TE hat sich für die Variante entschieden, die in dem Thread im Post #116 zu sehen ist. Bitte selbst mal schauen, da ich keinen Datenklau machen möchte.
https://www.hausbau-forum.de/threads/grundriss-efh-110m-eg-og-erster-entwurf-einteilung-raeume.41131/page-14
Die TE hat sich für die Variante entschieden, die in dem Thread im Post #116 zu sehen ist. Bitte selbst mal schauen, da ich keinen Datenklau machen möchte.
Beitrag 116 .. ja, der Grundriss hat mir auch gefallen. Blöd sind halt die 50 cm Kniestock beim TE im OG.
B
barfly66610.10.21 21:49Ich finde Dein Projekt ja ganz spannend, da sich das ein wenig mit meinem "nicht gewordenen Projekt" gleicht.
Bei der Planung sollte man doch ein längerfristiges Nutzungskonzept berücksichtigen. Du sagst ja selbst, irgendwann willst du ins Dachgeschoss umsiedeln. Naja, da hätte ich lieber das Schlafzimmer im EG mit Bad on suite. Ich vergleichs mal mit meinem "nicht geworden Projekt": such mal google Bildersuche nach "Zweifamilienhaus Xanten", da ist dann ein identisches Haus (leider kein Grundriss zu sehen, den ich dir per Mail senden kann (Gutachten) falls gewünscht) "zur Fertigstellung". Ist zwar freistehend, die hatten aber auch eine Seite ohne Fenster geplant. Wie der Name schon sagt, war es als Zweifamilienhaus geplant, unten eine Wohnung und oben halt. Ich finde das kannst Du auch auf dein Projekt umsetzen, als Zweifamilienhaus bauen, oben das offene Wohnzimmer als Spielfläche für die Kids, oben natürlich keine Küche rein, eigenes Bad für die Kids, usw. hätte jetzt den Vorteil, dass das Haus noch über die Jahre der Nutzung "passt", sprich die Kids werden größer und haben dann andere Bedürfnisse usw. Sind die Kids mal raus aus dem Haus, könnte man oben vermieten und unten verbleiben die Eltern, um zurück zu kommen auf das unten liegende Schlafzimmer.
Dein Grundstück ist sehr schmal (das nicht geworden Projekt hatte ein deutlich größeres Grundstück). Steht das Nachbarhaus schon oder kann da noch mitgeplant werden? Bei so einem schmalen Grundstück wäre es m.E. sinnvoll das Haus weiter zurück zu setzen, um dann vorne 2 Stellplätze (oder Carport/Garage) zu platzieren. Falls das nicht mehr geht: oder Du legst die Garage/Carport/Stellplatz weiter hinter das Haus. Hätte zwar den Nachteil das Du die Zufahrt machen musst, so hättest Du aber genug Raum für den Seiteneingang. Ans Haus ne garage oder Carport dranklatschen würde ich nicht, da fehlt dir dann wieder die Fenster ....
Dein Wunsch nach großen offenen Wohn/Eß/Koch-Bereich ist m.E. etwas überdimensioniert. Hier sind wir wieder beim Schlafzimmer im EG. Dadurch würde der Bereich an Fläche einbüssen, was ihm gut tun würde. Schau Dir mal das angehangene Bild an. Das ist der Blick in den Wohn-/Eß/Koch-Bereich mit richtig viel Licht. Durch den vorgestellten Essbereich konnten die noch mehr Fenster (Licht) einsetzen. Fand ich eigentlich das Beste an dem Bau. Ich hatte nicht das Gefühl, dass es da zu klein war. Wenn ich mir den Bau, den ich ja real besichtigt habe mit deinem Grundriss vorstelle (ich blicke elendig lang vom Eingang bis hinten durch zur Fensterfront des Wohnzimmers, da würden die Fenster von der Optik her immer kleiner werden und die Decke sehr dominant drückend wirken. Fazit wäre: Eingang auf die Seite, anders geht es nicht ....

Marc1990 schrieb:Naja mir würden da schon ganz viele Gründe neben dem "das würde u.a. das schlauchige entzerren" einfallen. Dein Grundstück ist schon sehr schmal, was an den Grundriss schon hohe Anforderungen stellt. Gleichzeitig versuchst Du alle Wünsche, Vorstellungen, derzeitige Modeerscheinung usw. in Dein Grundriss reinzuquetschen, die m.E. eher in einem quadratischen Haus passen würden.
wieso sollte ich denn das Schlafzimmer im EG haben wenn ich oben ausreichend Platz habe?
Bei der Planung sollte man doch ein längerfristiges Nutzungskonzept berücksichtigen. Du sagst ja selbst, irgendwann willst du ins Dachgeschoss umsiedeln. Naja, da hätte ich lieber das Schlafzimmer im EG mit Bad on suite. Ich vergleichs mal mit meinem "nicht geworden Projekt": such mal google Bildersuche nach "Zweifamilienhaus Xanten", da ist dann ein identisches Haus (leider kein Grundriss zu sehen, den ich dir per Mail senden kann (Gutachten) falls gewünscht) "zur Fertigstellung". Ist zwar freistehend, die hatten aber auch eine Seite ohne Fenster geplant. Wie der Name schon sagt, war es als Zweifamilienhaus geplant, unten eine Wohnung und oben halt. Ich finde das kannst Du auch auf dein Projekt umsetzen, als Zweifamilienhaus bauen, oben das offene Wohnzimmer als Spielfläche für die Kids, oben natürlich keine Küche rein, eigenes Bad für die Kids, usw. hätte jetzt den Vorteil, dass das Haus noch über die Jahre der Nutzung "passt", sprich die Kids werden größer und haben dann andere Bedürfnisse usw. Sind die Kids mal raus aus dem Haus, könnte man oben vermieten und unten verbleiben die Eltern, um zurück zu kommen auf das unten liegende Schlafzimmer.
Dein Grundstück ist sehr schmal (das nicht geworden Projekt hatte ein deutlich größeres Grundstück). Steht das Nachbarhaus schon oder kann da noch mitgeplant werden? Bei so einem schmalen Grundstück wäre es m.E. sinnvoll das Haus weiter zurück zu setzen, um dann vorne 2 Stellplätze (oder Carport/Garage) zu platzieren. Falls das nicht mehr geht: oder Du legst die Garage/Carport/Stellplatz weiter hinter das Haus. Hätte zwar den Nachteil das Du die Zufahrt machen musst, so hättest Du aber genug Raum für den Seiteneingang. Ans Haus ne garage oder Carport dranklatschen würde ich nicht, da fehlt dir dann wieder die Fenster ....
Dein Wunsch nach großen offenen Wohn/Eß/Koch-Bereich ist m.E. etwas überdimensioniert. Hier sind wir wieder beim Schlafzimmer im EG. Dadurch würde der Bereich an Fläche einbüssen, was ihm gut tun würde. Schau Dir mal das angehangene Bild an. Das ist der Blick in den Wohn-/Eß/Koch-Bereich mit richtig viel Licht. Durch den vorgestellten Essbereich konnten die noch mehr Fenster (Licht) einsetzen. Fand ich eigentlich das Beste an dem Bau. Ich hatte nicht das Gefühl, dass es da zu klein war. Wenn ich mir den Bau, den ich ja real besichtigt habe mit deinem Grundriss vorstelle (ich blicke elendig lang vom Eingang bis hinten durch zur Fensterfront des Wohnzimmers, da würden die Fenster von der Optik her immer kleiner werden und die Decke sehr dominant drückend wirken. Fazit wäre: Eingang auf die Seite, anders geht es nicht ....
Ähnliche Themen