Hallo,
nachdem unser Grundriss nun endlich
ausgereift ist und wir inzwischen vor lauter Bäumen den Wald nicht mehr sehen möchten wir nun auch mal die Meinung anderer hören.
Wir finden den Grundriss eigentlich gut, was haltet ihr davon?
Grundstücksgröße: 4,2 ar
Anzahl Stellplatz: Garage,2 Stellplätze
Dachform; Flachdach
Stilrichtung: modern
Schlafgaste pro Jahr: keine
offene Bauweise
Kochinsel:ja
Kamin:ja
Kinder: 2 Studenten nur noch am Wochenende zu Hause
die Planung stammt von unserem Architekten.
Wir sind schon etwas älter. ..45 und 47 Jahre und sind dankbar über jede konstruktive Kritik..

nachdem unser Grundriss nun endlich
ausgereift ist und wir inzwischen vor lauter Bäumen den Wald nicht mehr sehen möchten wir nun auch mal die Meinung anderer hören.
Wir finden den Grundriss eigentlich gut, was haltet ihr davon?
Grundstücksgröße: 4,2 ar
Anzahl Stellplatz: Garage,2 Stellplätze
Dachform; Flachdach
Stilrichtung: modern
Schlafgaste pro Jahr: keine
offene Bauweise
Kochinsel:ja
Kamin:ja
Kinder: 2 Studenten nur noch am Wochenende zu Hause
die Planung stammt von unserem Architekten.
Wir sind schon etwas älter. ..45 und 47 Jahre und sind dankbar über jede konstruktive Kritik..
Hmm, wir sind im ähnlichen Alter... Und haben etwas auf Alterstauglichkeit geachtet: keine unnötigen Räume, ein variables Zimmer im EG und eine Dusche im EG. Nur mal so erwähnt, wenn ich lese, dass Keller ein Muss ist (wer bestimmt das? Der Markt?) und die Tage der Kinder im Haus gezählt bzw nur am Wochenende da sind.
Edit: da die Kinder auch keine Betreuung brauchen, wäre zu überlegen, ob man nicht eine Gastzone im Keller einrichtet und das OG nur für sich plant?
Edit: da die Kinder auch keine Betreuung brauchen, wäre zu überlegen, ob man nicht eine Gastzone im Keller einrichtet und das OG nur für sich plant?
Ich habe die weitere Diskussion im grünen Forum verfolgt. Nur da veröffentliche ich nicht gerne eigene Anregungen. Daher hier 😉
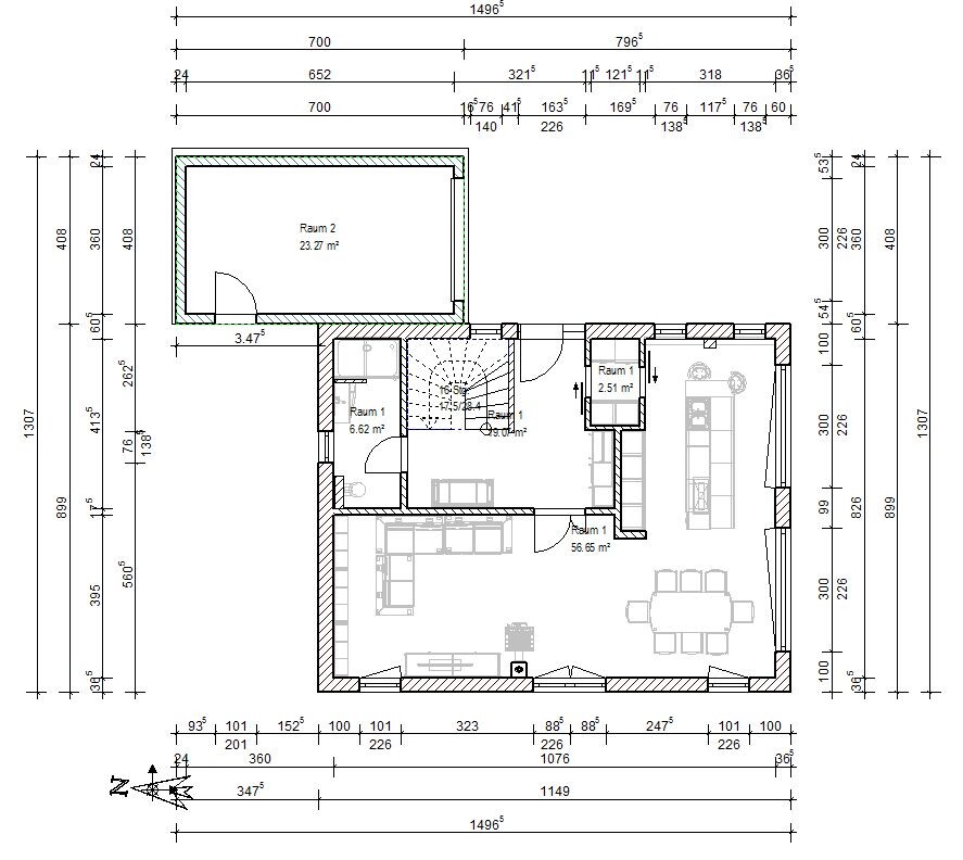
Küche jetzt auch mit Ost-Fenster ... sehr schön am sonnigen Sommermorgen wie gerade aktuell.
Speise/Abstellkammer als Durchgangsraum mit 2x120 cm Stellfläche. Rest kann dann im Keller verschwinden.
Küche mit sonnigem Ost-Sitzplatz und schönem Blick in den Süden.
Kamin jetzt an der Außenwand.
Flur mit Nische für die Garderobe, Bad so, dass die Dusche auch Platz hat. Identisches Bad übrigens im OG.
Trennwand im Wohnraum für einen möglichen Schlafbereich könnte analog dem OG nach 360 cm erfolgen. Dann kann ein Kamin zumindest weitergenutzt werden. Wohnbereich schrumpft dann eher auf 2 Bequemsessel.
Im OG auch das Elternschlafzimmer auf die Westseite genommen. Dadurch lassen sich Bad und Ankleide (wirklich Ankleide) mit 600 cm Schrank besser positionieren.
Vielleicht sind ja ein paar Ideen für euch dabei.
Ach, übrigens, das Haus habe ich wg. Treppenhausfenstern ca. 50 cm weiter Richtung Süden gesetzt 😳

P.S: Programm spinnt gerade mal .. hat alles als Raum 1 bezeichnet 😉
Küche jetzt auch mit Ost-Fenster ... sehr schön am sonnigen Sommermorgen wie gerade aktuell.
Speise/Abstellkammer als Durchgangsraum mit 2x120 cm Stellfläche. Rest kann dann im Keller verschwinden.
Küche mit sonnigem Ost-Sitzplatz und schönem Blick in den Süden.
Kamin jetzt an der Außenwand.
Flur mit Nische für die Garderobe, Bad so, dass die Dusche auch Platz hat. Identisches Bad übrigens im OG.
Trennwand im Wohnraum für einen möglichen Schlafbereich könnte analog dem OG nach 360 cm erfolgen. Dann kann ein Kamin zumindest weitergenutzt werden. Wohnbereich schrumpft dann eher auf 2 Bequemsessel.
Im OG auch das Elternschlafzimmer auf die Westseite genommen. Dadurch lassen sich Bad und Ankleide (wirklich Ankleide) mit 600 cm Schrank besser positionieren.
Vielleicht sind ja ein paar Ideen für euch dabei.
Ach, übrigens, das Haus habe ich wg. Treppenhausfenstern ca. 50 cm weiter Richtung Süden gesetzt 😳
P.S: Programm spinnt gerade mal .. hat alles als Raum 1 bezeichnet 😉
O
olivenbaum06.08.15 22:41liebe kbt09
ich bin im Moment noch ganz gerührt ..
ich danke Dir sehr für die Mühe, die du Dir gemacht hast, dass habe ich im grünen Forum nicht erlebt, im Gegenteil habe ich dort nur Schelte bekommen, die teilweise sogar unter die Gürtellinie ging.
Natürlich ist man Laie und man baut das erste Mal und ist sehr, sehr unsicher.
Aber ich denke keiner hat das Recht dich als"dummen Jungen" darzustellen .
Ich danke dir und werde mir den Grundriss genau ansehen und deine Kritikpunkte zu Herzen nehmen.
ich bin im Moment noch ganz gerührt ..
ich danke Dir sehr für die Mühe, die du Dir gemacht hast, dass habe ich im grünen Forum nicht erlebt, im Gegenteil habe ich dort nur Schelte bekommen, die teilweise sogar unter die Gürtellinie ging.
Natürlich ist man Laie und man baut das erste Mal und ist sehr, sehr unsicher.
Aber ich denke keiner hat das Recht dich als"dummen Jungen" darzustellen .
Ich danke dir und werde mir den Grundriss genau ansehen und deine Kritikpunkte zu Herzen nehmen.
olivenbaum schrieb:
liebe kbt09
ich bin im Moment noch ganz gerührt ..
ich danke Dir sehr für die Mühe, die du Dir gemacht hast, dass habe ich im grünen Forum nicht erlebt, im Gegenteil habe ich dort nur Schelte bekommen, die teilweise sogar unter die Gürtellinie ging.
Natürlich ist man Laie und man baut das erste Mal und ist sehr, sehr unsicher.
Aber ich denke keiner hat das Recht dich als"dummen Jungen" darzustellen .
Ich danke dir und werde mir den Grundriss genau ansehen und deine Kritikpunkte zu Herzen nehmen.Ja, die Grünen sind nicht sehr nett - man sollte sich schon etwas Erfahrung bezüglich des Tons dort anlesen, bevor man dort etwas postet.
Dennoch: man sollte sich deren Schelte zu Herzen nehmen bezüglich des Hauses und deren Kritik. Oft haben sie recht, nur gehen diese Ratschläge im Ton unter.
Ich meine speziell die Diskussion über diesen Entwurf. Habe gerade drüben noch mal quer gelesen - unter der Gürtellinie liegt wenig. Es geht hauptsächlich um die Thematik Speis, welche im Verlauf doch zur Abstellkammer wird (trotz Keller), die unpraktische Küche, die zwar cool aussehen wird, aber keine Ablagefläche hat, Schlafzimmer/Badsituation und das Thema Altersgerechtigkeit. Fenster und Ansichten auch noch. Diese Kritiken wurde hier auch erwähnt. Ich sehe jetzt nur nicht, ob die Kritik auch angekommen ist.
Meist empfindet man auch nur diesen Tiefschlag so massiv, weil Kritik an sich nicht schön ist, wenn man selbst überzeugt davon oder ahnt, dass man sich von seinem Kopfkino verabschieden muss, wenn man die Kritik auch umsetzt.
Meist empfindet man auch nur diesen Tiefschlag so massiv, weil Kritik an sich nicht schön ist, wenn man selbst überzeugt davon oder ahnt, dass man sich von seinem Kopfkino verabschieden muss, wenn man die Kritik auch umsetzt.
Ähnliche Themen