ᐅ Grundrissplanung: Badezimmer Dusche
Erstellt am: 26.08.19 21:53
Hallo liebe Forum-Gemeinde,
wir sind mit unserem Projekt fast am Ende der Planung, haben hier aber noch eine Sache die uns von Anfang an beschäftigt, die wir aber aufgrund der derzeitigen Grundrissplanung nicht in den Griff bekommen.
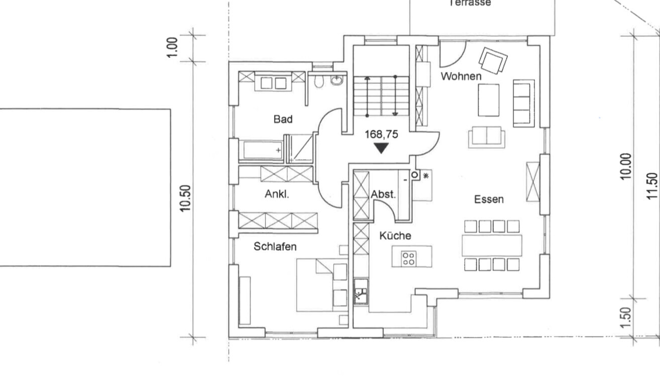
Ich versuche mich kurz zu fassen: Wir möchten im Badezimmer EG auf jeden Fall eine gemauerte Dusche ohne Tür (muss nicht bis ganz oben gemauert sein, darf auch halb-offen sein mit z.B. Glas zusätzlich zur Decke hoch). Da wir aufgrund strenger Bauvorschriften oder anders gesagt: für unser Vorhaben nicht vorteilhafte Vorschriften im Dachgeschoss wenig Wohnfläche erhalten, mussten wir uns bereits davon verabschieden, dass das Schlafzimmer im DG sein wird. Somit ist Schlafzimmer / Ankleide / Elternbadezimmer im EG. Aufgrund der dadurch etwas beschränkten Quadratmeterzahl bekommen wir die Dusche nicht so in das Badezimmer wie wir es gerne hätten. Habt ihr vielleicht noch einen Tipp / eine Idee, wie wir hier in diesem Grundriss die Dusche etwas größer / länger einplanen könnten, sodass wir hierfür keine Tür zur Dusche brauchen werden? Hatte den Hinweis bekommen, dass es ohne Tür erst ab 1,60m sinnvoll wäre.
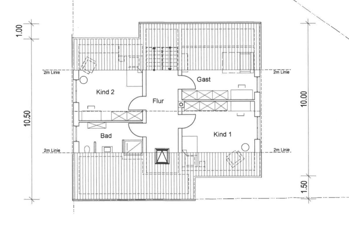
Ich verzichte hier bewusst auf weitere ausführliche Angaben zum Projekt, zum Grundstück etc, da es ja nur um das Badezimmer geht. Das Badezimmer hat in diesem Grundriss eine Größe von 12,66 m2.
Die Ankleide 9,09 m2 und Elternzimmer 15,31 m2.
Zur Vollständigkeit dennoch alle drei Stockwerke.
Danke vorab für alle hilfreichen Tipps.



wir sind mit unserem Projekt fast am Ende der Planung, haben hier aber noch eine Sache die uns von Anfang an beschäftigt, die wir aber aufgrund der derzeitigen Grundrissplanung nicht in den Griff bekommen.
Ich versuche mich kurz zu fassen: Wir möchten im Badezimmer EG auf jeden Fall eine gemauerte Dusche ohne Tür (muss nicht bis ganz oben gemauert sein, darf auch halb-offen sein mit z.B. Glas zusätzlich zur Decke hoch). Da wir aufgrund strenger Bauvorschriften oder anders gesagt: für unser Vorhaben nicht vorteilhafte Vorschriften im Dachgeschoss wenig Wohnfläche erhalten, mussten wir uns bereits davon verabschieden, dass das Schlafzimmer im DG sein wird. Somit ist Schlafzimmer / Ankleide / Elternbadezimmer im EG. Aufgrund der dadurch etwas beschränkten Quadratmeterzahl bekommen wir die Dusche nicht so in das Badezimmer wie wir es gerne hätten. Habt ihr vielleicht noch einen Tipp / eine Idee, wie wir hier in diesem Grundriss die Dusche etwas größer / länger einplanen könnten, sodass wir hierfür keine Tür zur Dusche brauchen werden? Hatte den Hinweis bekommen, dass es ohne Tür erst ab 1,60m sinnvoll wäre.
Ich verzichte hier bewusst auf weitere ausführliche Angaben zum Projekt, zum Grundstück etc, da es ja nur um das Badezimmer geht. Das Badezimmer hat in diesem Grundriss eine Größe von 12,66 m2.
Die Ankleide 9,09 m2 und Elternzimmer 15,31 m2.
Zur Vollständigkeit dennoch alle drei Stockwerke.
Danke vorab für alle hilfreichen Tipps.
Klar Fenster können noch verändert werden, kein Problem.
Küche wird nicht so wie auf dem Plan sein. Die Insel kommt weg, dafür unten rechts vom Fenster weiter noch oben (wie ein U, wobei der rechte Schenkel kürzer ist, logisch).
Ich habe leider gerade keine Wandmaße zu bieten.
Das neben dem WC ist ein Waschbecken, da wir hier etwas räumlich trennen wollten für Gäste. Wir waren uns aber mittlerweile einig, dass das zusätzliche Waschbecken gestrichen werden kann.
Küche wird nicht so wie auf dem Plan sein. Die Insel kommt weg, dafür unten rechts vom Fenster weiter noch oben (wie ein U, wobei der rechte Schenkel kürzer ist, logisch).
Ich habe leider gerade keine Wandmaße zu bieten.
Das neben dem WC ist ein Waschbecken, da wir hier etwas räumlich trennen wollten für Gäste. Wir waren uns aber mittlerweile einig, dass das zusätzliche Waschbecken gestrichen werden kann.
Ähnliche Themen