Hausbau - Ratgeber
Bauherrenhilfe
- Bauherrenhilfe vor Vertragsabschluss
-- Warum einen unabhängigen Baubetreuer?
-- Vertragsgrundlagen
-- Bausumme
-- Zahlungsplan zur Kostenkontrolle
-- Pflichten des Bauherren vor Vertragsabschluss
-- Unterlagen beim Hausbau vor Vertragsabschluss
- Bauherrenhilfe nach Vertragsabschluss
-- Bauantrag bei Behörden
-- Bau-Genehmigungsverfahren bei Baubehörden
-- Bauspezifische Versicherungen
-- Bauzeitenplan
-- Baubeginn - die Letzten Pflichten der Bauherrschaft
- Bauherrenhilfe während der Bauzeit
- Gewährleistungsansprüche
- Bauabnahme
Baufinanzierung
- Baufinanzierung - Allgemeine Fragen
- Kreditarten
- Kredit-Konditionen
- Bausparen
- Staatliche Förderungen
- Verkehrswert
- Haushaltsrechnung und Bonität
Hausbau Planung
- Haustypen
- Hausbau Vorbereitungsarbeiten
- Das Baugrundstück
- Baugrund beim Hausbau
- Baurecht
- Gebäudeschutz
- Erdarbeiten und Wasserhaltung
- Stützmauern
- Einfriedung
- Untergeschoss
- Kanalisation
- Tragende Elemente
- Nichttragende Innenwände
- Fundation / Fundament
- Deckenkonstruktionen
- Dächer
- Kaminanlagen
- Treppen Rampen Leitern
- Dachbeläge und Spengler
- Fenster
- Sonnen und Wetterschutz
- Aussenputze
- Einbauten, Küchen, Türen
- Bodenbeläge und Unterlagsböden
- Parkett
- Gips, Wand, Decke
Haustechnik und Energie
- Heiztechnik
- Lüftung und Klimatechnik
- Sanitärtechnik
- Elektrotechnik
- Erneuerbare Energie
Whirlpools / Jacuzzi
Hausbau Magazin
- Baufinanzierung trotz Krise?
- Das Blockhaus
- Moderne Dämmstoffe im Vergleich
- Erker Vor- und Nachteile
- Glasflächen beim Hausbau
- Günstig ein Haus Bauen
- Mediterraner Hausbaustil
- Mehrgenerationenhaus
- Moderne Architektur
- Gartengestaltung leicht gemacht
- Traditioneller Ziegelbau
- Villa als höchster Traum
- Im Eigenheim Ruhestand geniessen
- Altbau sanieren
- Kauf einer Holzgarage
- Immobilienmakler
- Arbeitshandschuhe für den Winter
- Zuhause verschönern
- Outdoor-Plissees
- Schlafzimmer planen
- Terrassenüberdachung
- Wohngebäudeversicherung
- Zaunarten und Eigenschaften
- Hauseingang gestalten
- Der perfekte Grundriss
- Sparsamer heizen im Altbau
- Einfamilienhaus smart finanzieren
- Planung einer PV-Anlage
- Neues Haus
- Immobilienfinanzierung
- Installation einer Photovoltaikanlage
- Asbest erkennen und entfernen
- Gartenpflege im Frühling – worauf achten
- Sauna im Fokus - Wellness zuhause
- Erfolgreich vermieten
- Die perfekte Winterbekleidung
- Das Niedrigenergiehaus
- Der April und seine Stürme
- Architektonische Vielfalt
- Ökologisch und nachhaltig bauen
- Das perfekte Schlafzimmer
- Nachhaltige Energieversorgung
- Zukunftsorientiert bauen
- Nachhaltigkeit beim Hausbau
- Tiny Houses
- Wärmepumpen als nachhaltige Heizvariante
- Maßgeschneiderten Kleiderschrank
- Der richtige Baukredit
- Ratgeber für erfolgreichen Hausbau
- Haus als Altersvorsorge
Do-it-yourself Anleitungen
- Verlegeanleitung für Bodenbeläge und Parkett
- Bodenbeläge und Parkett reinigen und pflegen
- Malerarbeiten am Haus
- Garten Tipps
- Umzug und Reinigung

ᐅ Grundriss Einfamilienhaus mit Keller, 150qm, nur eingeschossig erlaubt

Erstellt am: 24.11.24 13:20
G
GeraldG
K a t j a30.11.24 11:54
Man könnte noch überlegen, den Gast auf der Süd-Ostseite in den Keller zu legen mit einer Außentreppe als "Lichtschacht". Diese könnte m.W. innerhalb des 3m Grenzabstandes sein. Dann würde das Zimmer für das Büro frei und bräuchte auch nicht so groß sein.
roteweste30.11.24 12:59
K a t j a schrieb:

Hab hier noch einen mit 1/4 Wendelung der Treppe und Haustür im Erker. Finde ich persönlich nicht so elegant, weil dadurch immer diese langen Gänge entstehen, die ein Haus ungemütlich machen. Aber wenn die Frau drauf besteht.
Ich würde anmerken, dass das wirklich Geschmackssache ist. Beide deiner Vorschläge finde ich gut. Beim ersten Vorschlag blickt man beim Betreten zunächst direkt auf eine Wand, aber nach dem Abbiegen entfaltet sich die Schönheit des Raums. Beide Varianten haben ihre Berechtigung und werden in vielen Fertighäusern ähnlich umgesetzt. Ich empfehle, einen Fertighauspark zu besuchen und sich dort gezielt verschiedene Eingangssituationen anzuschauen.
G
GeraldG
30.11.24 15:17
K a t j a schrieb:

Aber wenn die Frau drauf besteht.
Ich habe sie etwas bearbeitet, wenn es handfeste Vorteile bietet würde sie auch seitlich hinein gehen (mit seitlich meine ich von rechts und nicht von der Straßenseite). Neben dem Erker fand sie zunächst ungewöhnlich, ist aber in Ordnung für sie.
K a t j a schrieb:

Das Baufenster ist der rötliche Rahmen - 18 x 16 hab ich erahnt. Ist das korrekt? Wenn Du Dein Häuslein da bis ganz hinter schiebst, wegen der Autos, dann passt die Terrasse m.E. schon nicht mehr ins Baufenster. Manchmal sind die Bauämter da großzügig aber manchmal eben auch nicht. Deswegen solltest Du den Außenbereich unbedingt mit planen (lassen).
Ja, 18m breit und 16m tief. Terrasse ist außerhalb kein Problem bei uns. Auch Garagen dürfen außerhalb des Baufensters errichtet werden.
ypg schrieb:

Wohnflächenberechnung hinsichtlich des Kellers überprüfen.
Wegen der geringen Fensterfläche ist der Keller auf keinen Fall Wohnraum.
ypg schrieb:

Da kam jetzt auch gar nichts mehr von Dir, @GeraldG?
Wegen dem Wohnraum im Keller? Wie gesagt, der zählt nicht dazu.

Bei den aktuellen Vorschlägen finden wir tatsächlich die Anordnung mit dem Wohnzimmer recht ungeschickt. Das Fenster senkrecht zum Fernseher sorgt dafür, dass man ständig die Reflektion im TV sieht. Meine Frau stört, dass seitlich kein Fenster ist. Sie findet weiterhin, dass dort die Küche hin sollte.
K a t j a30.11.24 16:06
GeraldG schrieb:

Bei den aktuellen Vorschlägen finden wir tatsächlich die Anordnung mit dem Wohnzimmer recht ungeschickt. Das Fenster senkrecht zum Fernseher sorgt dafür, dass man ständig die Reflektion im TV sieht. Meine Frau stört, dass seitlich kein Fenster ist. Sie findet weiterhin, dass dort die Küche hin sollte.
Tja, Du kannst ja das Sofa wieder umdrehen und in den Garten schauen.
Nein, ernsthaft, Du wirst in einem modernem Wohnzimmer mit großen Fenstern vermutlich nie keine Reflexionen auf dem TV haben. Ich versteh zwar nicht genau, welches Fenster Du meinst, aber ist der Entwurf nicht spiegelgenau gleich zur Anordnung in #1 bis auf das von der Seite kein Fenster da ist? Also wäre es sogar freier von Reflexionen. Ab davon, ein Rollladen zur Verdunklung - Problem gelöst.
Weshalb sich für uns diese Anordnung als die Bessere darstellt, ist die Küche. Hier will man maximales Licht zum Arbeiten. Deswegen nimmt man dafür gern die Südseite. Wenn es sich für Euch aber falsch anfühlt, dann ist das auch ein wichtiger Grund. Der Bauch darf auch mitreden.
A
Arauki11
30.11.24 16:10
GeraldG schrieb:

Bei den aktuellen Vorschlägen finden wir tatsächlich die Anordnung mit dem Wohnzimmer recht ungeschickt. Das Fenster senkrecht zum Fernseher sorgt dafür, dass man ständig die Reflektion im TV sieht. Meine Frau stört, dass seitlich kein Fenster ist. Sie findet weiterhin, dass dort die Küche hin sollte.
Warum genau möchte Deine Frau die Küche unbedingt dort haben, was konkret ist am Wohnzimmer ungeschickt? Nicht, dass ich es besser wüsste aber die Hintergründe dessen muss man kennen, um es zu verstehen.
Ebenso beim Wunsch eines weiteren Fensters im Wohnzimmer. Warum genau fehlt ihr/Euch das?
Ungeachtet dessen stellt sich ohnehin die Frage welche Bedeutung/Macht man dem TV gibt. Sitzt man wirklich tagsüber als Familie vorm TV? Abends ist es ja egal, wo das Fenster ist.
Muss sich die Sitzposition tatsächlich am TV ausrichten oder eher der jeweils anwesenden Menschengruppe. Vlt. könnte man den TV auch auslagern und ein reines "Wohn"-Zimmer daraus machen bzw. es als solches nutzen. Ich glaube nämlich, dass sich das mit dem Fernsehprocedere oftmals so verkrustet hat in der Vorstellung, die Realität sich aber meist völlig anders zeigt.
Ein Wohnzimmer kann, je nach Aus-/Einblick und Lage auch ein Raum sein, ohne die ganz großen Fenster. Ich war z.B. auch in versch. Musterhäusern, wo im WZ ein querliegendes Fensterband verbaut war über dem Sofa und das WZ eher "dunkler" also beruhigter wirkte, quasi als Rückzugsraum für die Familie. Ich selbst habe es so zwar nicht gebaut, hätte aber eben auch mein Wohnzimmer nicht nach dem TV gerichtet, obwohl ich auch sehr gerne meine Dokus etc. schaue.
Ich würde mich alleine mit einem evtl. bestehenden Grundgefühl nach dem Motto "das gehört dorthin" oder "das ist besser so" nicht zufriedengeben, weil es oftmals aus dem bislang Bekannten herrührt oder wie es Andere haben, sondern genau klären, warum das für uns unbedingt genauso sein sollte, um mir dadurch nicht andere, gute Grundrissoptionen zu verbauen.
G
GeraldG
30.11.24 16:17
K a t j a schrieb:

Weshalb sich für uns diese Anordnung als die Bessere darstellt, ist die Küche. Hier will man maximales Licht zum Arbeiten. Deswegen nimmt man dafür gern die Südseite. Wenn es sich für Euch aber falsch anfühlt, dann ist das auch ein wichtiger Grund. Der Bauch darf auch mitreden.
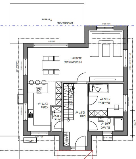
Jetzt muss ich doch mal den allerersten Vorschlag hochladen, der eben nach unseren Wünschen/Verbesserungsvorschlägen "verstümmelt" wurde (Ich drehe ihn Mal so wie du das Haus hast):

Grundriss eines Hauses mit Küche, Essbereich, Wohnzimmer, Treppe, Bad und Schlafzimmer.
Arauki11 schrieb:

Ich würde mich alleine mit einem evtl. bestehenden Grundgefühl nach dem Motto "das gehört dorthin" oder "das ist besser so" nicht zufriedengeben, weil es oftmals aus dem bislang Bekannten herrührt odr wie es Andere haben, sondern genau klären, warum das für uns unebdingt genauso sein sollte, um mir dadurch nicht andere, gute Grundrissoptionen zu verbauen.
Das ist tasächlich der zweite von zwei großen Streitpunkten gewesen. Der erste war Ausrichtung des Hauses und ob der Eingang von der Seite sein darf, und der zweite war die genaue Vorstellung wo die Küche und das Wohnzimmer sein soll. Ich habe versucht das sachlich mit ihr herauszuarbeiten und habe das hier dann auch geschrieben (Nachbar auf der einen Seite, Wiese auf der anderen) aber die allererste Aussage, die ich bekommen habe, warum das so sein soll, war "sie fühlt es dort". Das fand ich auch nicht gut und ich habe dann so lange nachgebohrt bis ich eine Antwort bekommen habe, die ich als Mann verarbeiten konnte.
wohnzimmerfensterküchekellerwohnraumsofa