ᐅ Grundriss Einfamilienhaus mit Keller, 150qm, nur eingeschossig erlaubt
Erstellt am: 24.11.24 13:20
G
GeraldGAlso ... da wären meine Verbesserungsvorschläge:

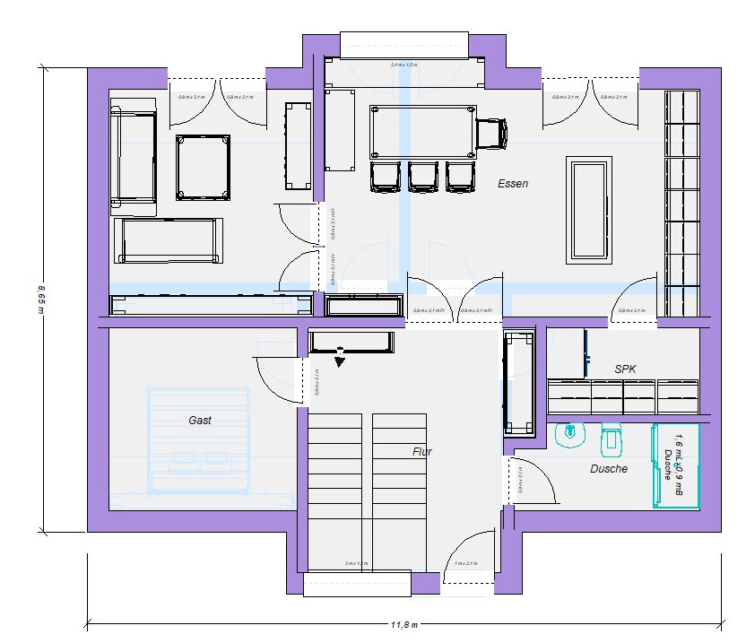
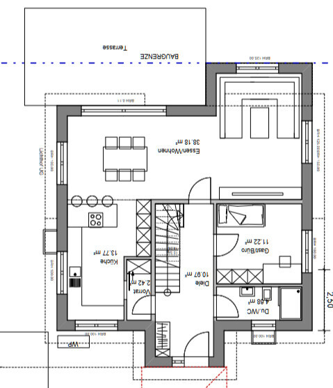
- Vorratskammer raus, das sind 2,42 qm für 100 cm Regal.
- Danach dann Wohnen und Kochen tauschen .. dann kann man eine wundervolle Küche planen, die an sich genug Stauraum hat (100 cm Regal können prima durch einen Hochschrank mit der Spacetower-Einrichtung ersetzt werden). Ansonsten habt ihr ja noch den Keller für größere Vorräte etc.
Wie oben ja erwähnt wurde darf der Bauch schon auch mitdenken dürfen aber ich würde selbst meinen Bacuzh immer nochmals genau hinterfragen, da ich ungern zu spät merken würde, dass mich da irgendein altes Gefühl getriggert hatte.
Es wird an jedem Grundriss etwas zu mäkeln geben, an unserem hier genauso oder sogar noch viel mehr, da man so viele Eventuelitäten bedenken möchte, die man oft noch nicht mal kennt.
Für den einzelnen Raum mag das dann auch so stimmern, das der dort oder hier am schönsten wäre aber ich denke, dass die Gesamtbetrachtung und -bewertung nicht aus den Augen gelassen werden darf. Die Konsequenz auf andere Räume ist eben manchmal erheblich, wenn die Treppe hier oder dort ist bzw. jene Form hat und das muss man am Ende eben für sich bewerten, welche Priorität man einräumt. Wichtig ist um Grunde jeder Raum und daher möchte auch jeder den besten Platz dafür.
Das ist wie im Reisebus, wo alle Gäste immer in der 1. Reihe sitzen wollen.
Es wird an jedem Grundriss etwas zu mäkeln geben, an unserem hier genauso oder sogar noch viel mehr, da man so viele Eventuelitäten bedenken möchte, die man oft noch nicht mal kennt.
Für den einzelnen Raum mag das dann auch so stimmern, das der dort oder hier am schönsten wäre aber ich denke, dass die Gesamtbetrachtung und -bewertung nicht aus den Augen gelassen werden darf. Die Konsequenz auf andere Räume ist eben manchmal erheblich, wenn die Treppe hier oder dort ist bzw. jene Form hat und das muss man am Ende eben für sich bewerten, welche Priorität man einräumt. Wichtig ist um Grunde jeder Raum und daher möchte auch jeder den besten Platz dafür.
Das ist wie im Reisebus, wo alle Gäste immer in der 1. Reihe sitzen wollen.
GeraldG schrieb:
Wegen der geringen Fensterfläche ist der Keller auf keinen Fall Wohnraum.Dann ist aber auch das Büro als Aufenthaltsraum nicht möglich, ich erwähnte es schon.Bezüglich des Sofas im Erker möchte ich ergänzen: Bitte rücke das arme Ding nicht komplett in die Ecke. Ein U-förmiges Sofa ist sicher eine tolle Sache, wenn man im Wohnzimmer Platz für ein halbes Tennisfeld hat. Ansonsten wirkt das Ganze doch sehr gedrungen (wir haben uns damals schweren Herzens von der Vorstellung verabschiedet), insbesondere wenn es von drei Seiten umbaut ist.
GeraldG schrieb:
Das ist tasächlich der zweite von zwei großen Streitpunkten gewesen. Der erste war Ausrichtung des Hauses und ob der Eingang von der Seite sein darf, und der zweite war die genaue Vorstellung wo die Küche und das Wohnzimmer sein soll. Ich habe versucht das sachlich mit ihr herauszuarbeiten und habe das hier dann auch geschrieben (Nachbar auf der einen Seite, Wiese auf der anderen) aber die allererste Aussage, die ich bekommen habe, warum das so sein soll, war "sie fühlt es dort". Das fand ich auch nicht gut und ich habe dann so lange nachgebohrt bis ich eine Antwort bekommen habe, die ich als Mann verarbeiten konnte.Was Du hier "sachlich" nennst, ist eben nicht objektiv sachlich, sondern nur "sachlich (nach männlicher Lesart)" - deshalb ja auch mein Vorschlag, daß Du beim Gespräch zwischen Bauherrin und Architektin "nicht dazwischenfunkst".https://www.instagram.com/11antgmxde/
https://www.linkedin.com/company/bauen-jetzt/
Ähnliche Themen