ᐅ Wohnzimmer: Wie Sofa, TV und Schränke stellen?
Erstellt am: 30.07.16 16:00
B
bluminger30.07.16 16:00Hallo.
Nachdem wir uns nun auf eine offene Küche einigen konnten, bereitet mir und meiner Frau die Wohnzimmergestaltung doch ziemliche Kopfschmerzen seit einiger Zeit.
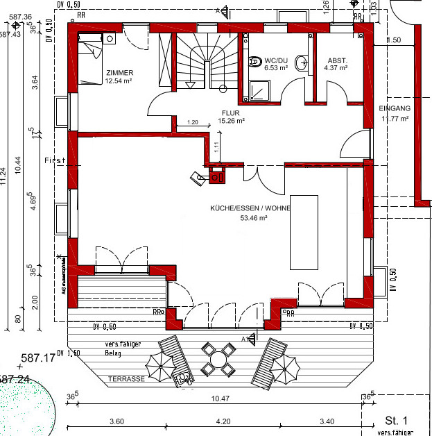
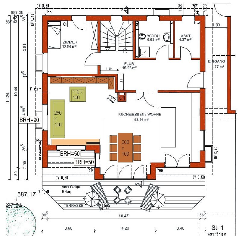
Unser Grundriss im EG:

Rechts (Osten) ist der Küchenbereich, mittig im Erker der Esstisch und links (Westen) soll das Wohnzimmer sein. Auf dem Plan ist das ungefähre Aussehen der Küche eingezeichnet sowie ein Kamin mit Schwedenofen.
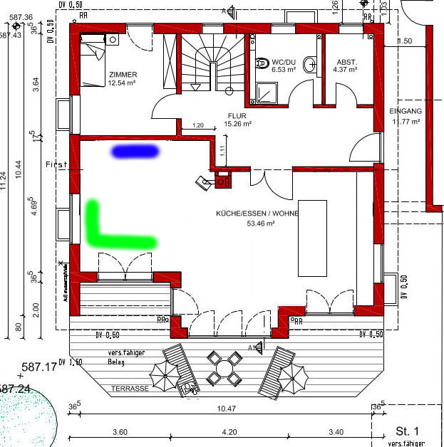
In unseren Ideen unten habe ich sofa(*) grün und TV blau gemalt.
Meine Vorstellung war zunächst Sofa Süd-ost und TV und Schränke an der Nordwand des Wohnzimmers:

Mir gefällt hier, dass der Raum auf diese Art offen ist und unsere beiden kleinen Kinder Platz zum Spielen haben. Schränke hätte ich links und rechts vom TV aufgestellt.
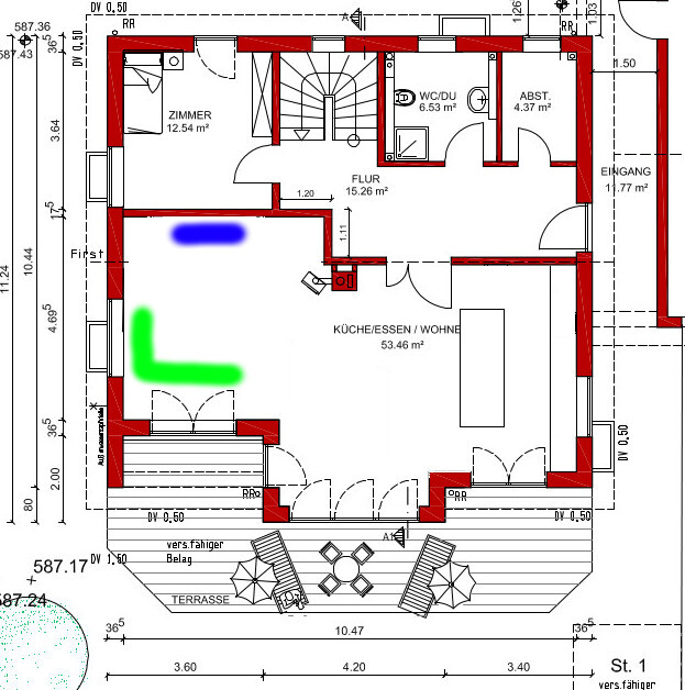
Meiner Frau gefällt das ganze leider überhaupt nicht, sie möchte unbedingt nach Süden zum Fenster hinaus schauen, ihr Vorschlag sieht so aus:

Hinter dem TV würde sie gerne eine halbhohe Trockenwand erstellen. Für mich ist es hier etwas schade, dass der Raum dadurch geteilt und meiner Meinung nach (?) schwer zugänglich. Außerdem frage ich mich, wie der ganze Kabelsalat zum TV kommen soll (Loch im Boden finde ich fragwürdig, falls die Trockenwand später weg soll). Schränke wären auch hier an der Nordwand.
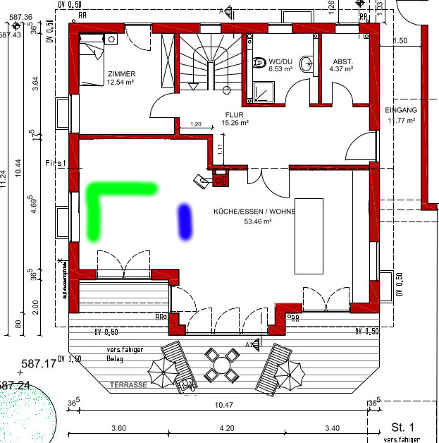
Eine weitere Idee ist ähnlich der zweiten, aber mit dem TV an der Westwand, hier wäre zumindest die Kabelführung einfacher, allerdings finde ich auch hier den Raum nicht mehr schön offen:

Wäre toll, wenn Ihr noch eine Idee hättet, wie wir das besser lösen können, momentan ist das grade eine der größten Unklarheiten beim Projekt.
Nachdem wir uns nun auf eine offene Küche einigen konnten, bereitet mir und meiner Frau die Wohnzimmergestaltung doch ziemliche Kopfschmerzen seit einiger Zeit.
Unser Grundriss im EG:
Rechts (Osten) ist der Küchenbereich, mittig im Erker der Esstisch und links (Westen) soll das Wohnzimmer sein. Auf dem Plan ist das ungefähre Aussehen der Küche eingezeichnet sowie ein Kamin mit Schwedenofen.
In unseren Ideen unten habe ich sofa(*) grün und TV blau gemalt.
Meine Vorstellung war zunächst Sofa Süd-ost und TV und Schränke an der Nordwand des Wohnzimmers:
Mir gefällt hier, dass der Raum auf diese Art offen ist und unsere beiden kleinen Kinder Platz zum Spielen haben. Schränke hätte ich links und rechts vom TV aufgestellt.
Meiner Frau gefällt das ganze leider überhaupt nicht, sie möchte unbedingt nach Süden zum Fenster hinaus schauen, ihr Vorschlag sieht so aus:
Hinter dem TV würde sie gerne eine halbhohe Trockenwand erstellen. Für mich ist es hier etwas schade, dass der Raum dadurch geteilt und meiner Meinung nach (?) schwer zugänglich. Außerdem frage ich mich, wie der ganze Kabelsalat zum TV kommen soll (Loch im Boden finde ich fragwürdig, falls die Trockenwand später weg soll). Schränke wären auch hier an der Nordwand.
Eine weitere Idee ist ähnlich der zweiten, aber mit dem TV an der Westwand, hier wäre zumindest die Kabelführung einfacher, allerdings finde ich auch hier den Raum nicht mehr schön offen:
Wäre toll, wenn Ihr noch eine Idee hättet, wie wir das besser lösen können, momentan ist das grade eine der größten Unklarheiten beim Projekt.
Ich würde die letzte Variante machen... auch wenn das eher ungewohnt ist - dann kann man aber zumindest mal in den Garten schauen. Wir haben bei uns festgestellt dass wir gern lesen und dann es schön finden in die Ferne schauen zu können.
Kommt glaub ich etwas auf den Stellenwert des TVs an.
Kommt glaub ich etwas auf den Stellenwert des TVs an.
B
bluminger30.07.16 16:32Süden ist Richtung Erker.
Das Fenster links ist noch nicht fest, da wir ja nicht wissen, wie wir das Wohnzimmer machen sollen. Wenn wir hier Klarheit haben, wird das Fenster passend gemacht. Vorschläge willkommen.
Planunten sind bodentiefe Fenster/Terrassentüren geplant.
Es muss nicht unbedingt ein L-Sofa sein (ohne jetzt die bessere Hälfte gefragt zu haben).
Das Fenster links ist noch nicht fest, da wir ja nicht wissen, wie wir das Wohnzimmer machen sollen. Wenn wir hier Klarheit haben, wird das Fenster passend gemacht. Vorschläge willkommen.
Planunten sind bodentiefe Fenster/Terrassentüren geplant.
Es muss nicht unbedingt ein L-Sofa sein (ohne jetzt die bessere Hälfte gefragt zu haben).
Dann würde ich es so machen und auch Richtung Süden überlegen, die beiden Fenster in die geschützte Ecke nur so mit Brüstungshöhe = 50 zu setzen. Dann kann im Wohnbereich ein Flachboard gestellt werden .. neben dem Sofa gleich Abstellfläche.
Und TV dann an das 100 cm breite Stück Wand.
Wohnwand wie gedacht planoben, aber eben einen schneller beweglichen Sessel davor.
Esstisch auch mal angezeichnet. Hauptausgang zur Terrasse wird an der Küche sein.
Sofaecke und Tisch sind so auch jeweils weit genug vom Kamin entfernt, so dass sich keiner den Popo ankokelt

Und TV dann an das 100 cm breite Stück Wand.
Wohnwand wie gedacht planoben, aber eben einen schneller beweglichen Sessel davor.
Esstisch auch mal angezeichnet. Hauptausgang zur Terrasse wird an der Küche sein.
Sofaecke und Tisch sind so auch jeweils weit genug vom Kamin entfernt, so dass sich keiner den Popo ankokelt
Ähnliche Themen