ᐅ Grundriss Einfamilienhaus mit Keller, 150qm, nur eingeschossig erlaubt
Erstellt am: 24.11.24 13:20
G
GeraldGHallo zusammen,
wir nähern uns dem Ende der Grundrissplanung und dachten vielleicht könnte da noch jemand drüber schauen und Hinweise geben.
Was wir wollten:
Das Haus soll so 150-160qm sein. Außerdem darf das DG (nach altem Bebauungsplan, also 2/3 Regelung in BW) kein Vollgeschoss sein.
Uns gefallen eigentlich diese nordischen Häuser mit einem mittigen Giebel und auch geklinkert, wobei wir das verklinkerte leider aufgegeben haben, da das bei uns anscheinend niemand macht und wenn, dann ist es unglaublich teuer.
Richtung Garten hat er uns vom mittigen Erker abgeraten da sonst die eine Seite der Terrasse quasi im Norden liegt.
Ansonsten wollten wir quasi klassisch folgendes:
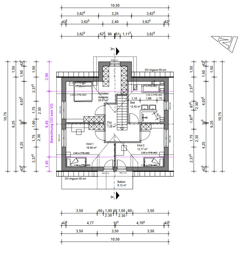
Offener Wohn/Küchen/Essbereich, außerdem ein Dusch-WC sowie ein Büro im EG. DG soll aus zwei Kinderzimmern und einem Elternschlafzimmer bestehen. Wenn Platz ist noch ein begehbarer Kleiderschrank, sowie ein großes Bad. Ich wollte außerdme dass der Kniestock so hoch wie möglich kommt.
In der aktuellen Runde kamen die angehängten Grundrisse heraus. Wir würdne hier nur noch Kleinigkeiten ändern, weshalb ich dachte dass jetzt ein giter Zeitpunkt ist andere mal drüber schauen zu lassen.
WA sind mehrere Vorschläge für den Wäscheabwurf.
Ich würde mich über Rückmeldungen freuen.
Grundstück:

EG:

OG:

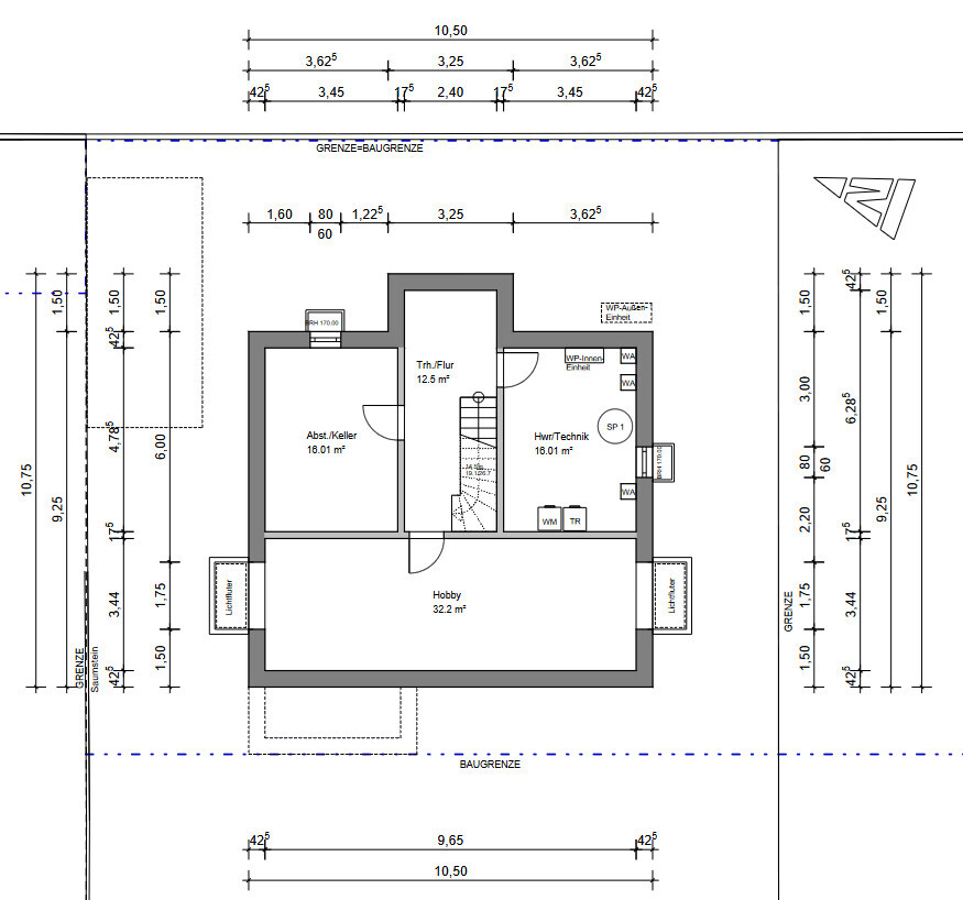
Keller:

3D:

wir nähern uns dem Ende der Grundrissplanung und dachten vielleicht könnte da noch jemand drüber schauen und Hinweise geben.
Was wir wollten:
Das Haus soll so 150-160qm sein. Außerdem darf das DG (nach altem Bebauungsplan, also 2/3 Regelung in BW) kein Vollgeschoss sein.
Uns gefallen eigentlich diese nordischen Häuser mit einem mittigen Giebel und auch geklinkert, wobei wir das verklinkerte leider aufgegeben haben, da das bei uns anscheinend niemand macht und wenn, dann ist es unglaublich teuer.
Richtung Garten hat er uns vom mittigen Erker abgeraten da sonst die eine Seite der Terrasse quasi im Norden liegt.
Ansonsten wollten wir quasi klassisch folgendes:
Offener Wohn/Küchen/Essbereich, außerdem ein Dusch-WC sowie ein Büro im EG. DG soll aus zwei Kinderzimmern und einem Elternschlafzimmer bestehen. Wenn Platz ist noch ein begehbarer Kleiderschrank, sowie ein großes Bad. Ich wollte außerdme dass der Kniestock so hoch wie möglich kommt.
In der aktuellen Runde kamen die angehängten Grundrisse heraus. Wir würdne hier nur noch Kleinigkeiten ändern, weshalb ich dachte dass jetzt ein giter Zeitpunkt ist andere mal drüber schauen zu lassen.
WA sind mehrere Vorschläge für den Wäscheabwurf.
Ich würde mich über Rückmeldungen freuen.
Grundstück:
EG:
OG:
Keller:
3D:
Wenn ihr nur noch kleine Änderungen umsetzen wollt, dann lest diesen Thread nicht weiter...
Ich fange mal an:
- 70er Tür Speisekammer wäre mir zu schmal, wir haben aber auch extra breite Altbautüren, vielleicht Gewöhnungssache
- Speisekammer ist zu schmal, wenig Nutzfläche aufgrund sehr schmaler Schränke
- Tür zum Gäste-WC ist schwierig zu nutzen. Wo soll man hin, um nach dem Händewaschen die Tür zu öffnen? In die Dusche? Wenn ich mit meinem kleinen Kind schnell auf Klo muss, klappt das auch nicht, da wir erst Tür auf, in die Dusche, Tür zu und dann den Kurzen auf Klo setzen können. Aus meiner Sicht ist die Tür eine Fehlplanung.
- Zugang zur Dusche im OG hat 62.5cm Breite. Muss man mögen, bei einem Neubau würde ich sowas niemals einplanen.
- 3 Wäscheabwurfachschächte, aber nicht beieinander. Bedeutet, dass ich mich nicht davor setzen und sortieren kann. Ich muss zwei Wäschearten bei der Badewanne einwerfen, die dritte aber bei der Dusche. Das ist unpraktisch.
- Die Kinderzimmer sind sehr ungleich, das sorgt (berechtigterweise) für Streit
- Das Schlafzimmer ist zwar groß, hat aberviele Ecken und ist für 20qm schlecht nutz- und möblierbar. Stichwort Ankleide...
- Da gibt es ein bodentiefes Fenster in der Ankleide, das direkt zur Straße raus geht. Muss man mögen, aber man kommt sicher mit der Nachbarschaft ins Gespräch...
- Der Flur oben ist eine Dunkelkammer
- Der Balkon oben wird nie genutzt werden, da ein Garten vorhanden ist
Ich fange mal an:
- 70er Tür Speisekammer wäre mir zu schmal, wir haben aber auch extra breite Altbautüren, vielleicht Gewöhnungssache
- Speisekammer ist zu schmal, wenig Nutzfläche aufgrund sehr schmaler Schränke
- Tür zum Gäste-WC ist schwierig zu nutzen. Wo soll man hin, um nach dem Händewaschen die Tür zu öffnen? In die Dusche? Wenn ich mit meinem kleinen Kind schnell auf Klo muss, klappt das auch nicht, da wir erst Tür auf, in die Dusche, Tür zu und dann den Kurzen auf Klo setzen können. Aus meiner Sicht ist die Tür eine Fehlplanung.
- Zugang zur Dusche im OG hat 62.5cm Breite. Muss man mögen, bei einem Neubau würde ich sowas niemals einplanen.
- 3 Wäscheabwurfachschächte, aber nicht beieinander. Bedeutet, dass ich mich nicht davor setzen und sortieren kann. Ich muss zwei Wäschearten bei der Badewanne einwerfen, die dritte aber bei der Dusche. Das ist unpraktisch.
- Die Kinderzimmer sind sehr ungleich, das sorgt (berechtigterweise) für Streit
- Das Schlafzimmer ist zwar groß, hat aberviele Ecken und ist für 20qm schlecht nutz- und möblierbar. Stichwort Ankleide...
- Da gibt es ein bodentiefes Fenster in der Ankleide, das direkt zur Straße raus geht. Muss man mögen, aber man kommt sicher mit der Nachbarschaft ins Gespräch...
- Der Flur oben ist eine Dunkelkammer
- Der Balkon oben wird nie genutzt werden, da ein Garten vorhanden ist
Ja, wie beschrieben, wir hätten da jetzt wenig geändert, was nicht heißt, dass wir nach entsprechend Input nicht nochmal ran gehen würden.
Gäste-WC würde ich noch von der Ausrichtung her überdenken, und damit auch wie die Tür sitzt. Ich habe auch wenig Bauchschmerzen damit ,wenn sich diese Richtung Gang öffnet, auch wenn das irgendwie nie gemacht wird (wir haben momentan auch ein kleines WC weshalb die Tür zum Flur aufgeht, das hat uns nie gestört und der Raum kann viel besser genutzt werden).
Balkon hat sich einfach durch den Erker ergeben. Durch die verlängerte Bodenplatte wird das zu einem vollen Balkon.
Wäscheabwurfschächte sind nur mögliche Positionen. Später wird nur einer realisiert. Die 3 Positionen ergeben sich einfach je nachdem auf welchem Stockwerk es praktisch sein soll. Der bei der Dusche ist definitiv raus, sollte dann ein 70cm Zugang sein, wobei ich leider nicht weiß wie 70cm wirken.
Das Schlafzimmer ist uns eigentlich sogar zu groß, allerdings ist ohne diese Winkel die Ankleide nicht begehbar (Dachschräge), außer wenn man eine schräge Tür einbaut. Das haben wir schon angeschaut und sind da quasi alternativlos. Außer man geht durch eine Tür vom Flur in die Ankleide. Dann spart man sich die Winkel, mehr Stellraum hat man aber trotzdem nicht.
Kinderzimmer ungleich groß ist nicht gut, allerdings finden wir keine Möglichkeit das zu ändern ohne ganz komische Zimmer zu bekommen. Liegt natürlich an der Treppenposition und dass man einmal dran vorbei laufen muss um ins Bad zu kommen.
Dass der Flur oben kein Tageslicht hat ist mein größter Kritikpunkt, aber auch hier fällt mir nichts ein. Momentan ist ein Lichtband zum Bad geplant, alles andere geht ja nicht, ohne dass Licht in die Schlafzimmer kommt wenn das Licht im Flur angemacht wird. Ursprünglich war anstatt der Ankleide einfach Flur geplant, das fand ic hdann aber zu Schade. Wenn ich auf irgendwelchen Grundrissen solche Sitzecken sehe, denke ich imemr dass es sich da der Architekt etwas einfach gemacht hat. Genutzt wird das (zumindest bei uns) nie.
Danke für den Input 🙂
Gäste-WC würde ich noch von der Ausrichtung her überdenken, und damit auch wie die Tür sitzt. Ich habe auch wenig Bauchschmerzen damit ,wenn sich diese Richtung Gang öffnet, auch wenn das irgendwie nie gemacht wird (wir haben momentan auch ein kleines WC weshalb die Tür zum Flur aufgeht, das hat uns nie gestört und der Raum kann viel besser genutzt werden).
Balkon hat sich einfach durch den Erker ergeben. Durch die verlängerte Bodenplatte wird das zu einem vollen Balkon.
Wäscheabwurfschächte sind nur mögliche Positionen. Später wird nur einer realisiert. Die 3 Positionen ergeben sich einfach je nachdem auf welchem Stockwerk es praktisch sein soll. Der bei der Dusche ist definitiv raus, sollte dann ein 70cm Zugang sein, wobei ich leider nicht weiß wie 70cm wirken.
Das Schlafzimmer ist uns eigentlich sogar zu groß, allerdings ist ohne diese Winkel die Ankleide nicht begehbar (Dachschräge), außer wenn man eine schräge Tür einbaut. Das haben wir schon angeschaut und sind da quasi alternativlos. Außer man geht durch eine Tür vom Flur in die Ankleide. Dann spart man sich die Winkel, mehr Stellraum hat man aber trotzdem nicht.
Kinderzimmer ungleich groß ist nicht gut, allerdings finden wir keine Möglichkeit das zu ändern ohne ganz komische Zimmer zu bekommen. Liegt natürlich an der Treppenposition und dass man einmal dran vorbei laufen muss um ins Bad zu kommen.
Dass der Flur oben kein Tageslicht hat ist mein größter Kritikpunkt, aber auch hier fällt mir nichts ein. Momentan ist ein Lichtband zum Bad geplant, alles andere geht ja nicht, ohne dass Licht in die Schlafzimmer kommt wenn das Licht im Flur angemacht wird. Ursprünglich war anstatt der Ankleide einfach Flur geplant, das fand ic hdann aber zu Schade. Wenn ich auf irgendwelchen Grundrissen solche Sitzecken sehe, denke ich imemr dass es sich da der Architekt etwas einfach gemacht hat. Genutzt wird das (zumindest bei uns) nie.
Danke für den Input 🙂
Fair enough:
Bebauungsplan/Einschränkungen
Größe des Grundstücks: 521qm
Hang: 20cm von der einen zur anderen Seite, also quasi nein
Grundflächenzahl 0,4
Geschossflächenzahl 0,5
Baufenster, Baulinie und -grenze: eingezeichnet
Randbebauung: nein
Anzahl Stellplatz: 2
Geschossigkeit: 1,5
Dachform: 25-35°
Stilrichtung: nein
Ausrichtung: Siehe Plan
Maximale Höhen/Begrenzungen: Traufhöhe 4,5m
weitere Vorgaben: nein
Anforderungen der Bauherren
Stilrichtung, Dachform, Gebäudetyp: nordisch?
Keller, Geschosse: ja, 1,5
Anzahl der Personen, Alter: 2 Erwachsene (36 und 38), 2 Kinder (1 und 4)
Raumbedarf im EG, OG
Büro: Familiennutzung oder Homeoffice? Homeoffice, eventuell auch im Keller möglich
Schlafgäste pro Jahr: nein
offene oder geschlossene Architektur: offen
konservativ oder moderne Bauweise: konsdervativ
offene Küche, Kochinsel: ja, Kochinsel möglich, nicht nötig
Anzahl Essplätze: 8
Kamin: nein
Musik/Stereowand: nein
Balkon, Dachterrasse: Nicht zwingend
Garage, Carport: 1 Carport
Nutzgarten, Treibhaus: nein
weitere Wünsche/Besonderheiten/Tagesablauf, gern auch Begründungen, warum dieses oder das nicht sein soll
Hausentwurf
Von wem stammt die Planung:
-Planer eines Bauunternehmens
Was gefällt besonders? Warum? Eigentlich alle Punkte erfüllt.
Was gefällt nicht? Warum? Dunkler Flur oben.
Preisschätzung laut Architekt/Planer: 620000€
Persönliches Preislimit fürs Haus, inkl. Ausstattung: 700.000€
favorisierte Heiztechnik: Sole Wärmepumpe
Wenn Ihr verzichten müsst, auf welche Details/Ausbauten
-könnt Ihr verzichten: Ankleide im OG
-könnt Ihr nicht verzichten:
Warum ist der Entwurf so geworden, wie er jetzt ist? ZB
Standardentwurf vom Planer? Vorgaben von uns und Sonenverlauf. Eigentlich wäre zum Garten mittig ein Erker geplant gewesen, der wurde an den Rand geschoben wegen der Sonne. Die Dachgaube ist weiterhin mittig geplant.
Entsprechende/Welche Wünsche wurden vom Architekten umgesetzt?
Bebauungsplan/Einschränkungen
Größe des Grundstücks: 521qm
Hang: 20cm von der einen zur anderen Seite, also quasi nein
Grundflächenzahl 0,4
Geschossflächenzahl 0,5
Baufenster, Baulinie und -grenze: eingezeichnet
Randbebauung: nein
Anzahl Stellplatz: 2
Geschossigkeit: 1,5
Dachform: 25-35°
Stilrichtung: nein
Ausrichtung: Siehe Plan
Maximale Höhen/Begrenzungen: Traufhöhe 4,5m
weitere Vorgaben: nein
Anforderungen der Bauherren
Stilrichtung, Dachform, Gebäudetyp: nordisch?
Keller, Geschosse: ja, 1,5
Anzahl der Personen, Alter: 2 Erwachsene (36 und 38), 2 Kinder (1 und 4)
Raumbedarf im EG, OG
Büro: Familiennutzung oder Homeoffice? Homeoffice, eventuell auch im Keller möglich
Schlafgäste pro Jahr: nein
offene oder geschlossene Architektur: offen
konservativ oder moderne Bauweise: konsdervativ
offene Küche, Kochinsel: ja, Kochinsel möglich, nicht nötig
Anzahl Essplätze: 8
Kamin: nein
Musik/Stereowand: nein
Balkon, Dachterrasse: Nicht zwingend
Garage, Carport: 1 Carport
Nutzgarten, Treibhaus: nein
weitere Wünsche/Besonderheiten/Tagesablauf, gern auch Begründungen, warum dieses oder das nicht sein soll
Hausentwurf
Von wem stammt die Planung:
-Planer eines Bauunternehmens
Was gefällt besonders? Warum? Eigentlich alle Punkte erfüllt.
Was gefällt nicht? Warum? Dunkler Flur oben.
Preisschätzung laut Architekt/Planer: 620000€
Persönliches Preislimit fürs Haus, inkl. Ausstattung: 700.000€
favorisierte Heiztechnik: Sole Wärmepumpe
Wenn Ihr verzichten müsst, auf welche Details/Ausbauten
-könnt Ihr verzichten: Ankleide im OG
-könnt Ihr nicht verzichten:
Warum ist der Entwurf so geworden, wie er jetzt ist? ZB
Standardentwurf vom Planer? Vorgaben von uns und Sonenverlauf. Eigentlich wäre zum Garten mittig ein Erker geplant gewesen, der wurde an den Rand geschoben wegen der Sonne. Die Dachgaube ist weiterhin mittig geplant.
Entsprechende/Welche Wünsche wurden vom Architekten umgesetzt?
GeraldG schrieb:
Balkon hat sich einfach durch den Erker ergeben. Durch die verlängerte Bodenplatte wird das zu einem vollen Balkon.Die Brüstungshöhe von 0,00 an den beiden Türen zum Balkon bezweifle ich. Die Dämmung auf deinem Erker wird um einiges dicker als dein Fußbodenaufbau im OG. Meist entsteht eine Stufe von 10 - 15 cm.
Ich würd den Balkon direkt streichen, weil ich darin keinen Nutzen sehe. Das Geld kann man an anderen Stellen sinnvoller einsetzten.
Ähnliche Themen