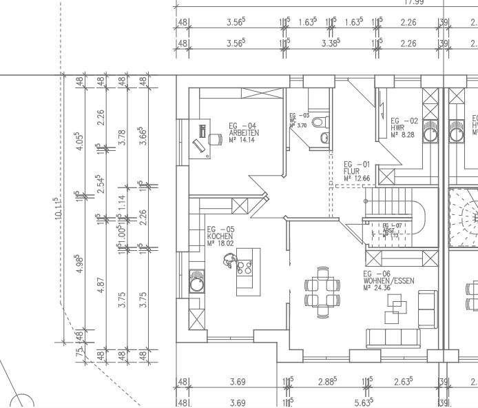
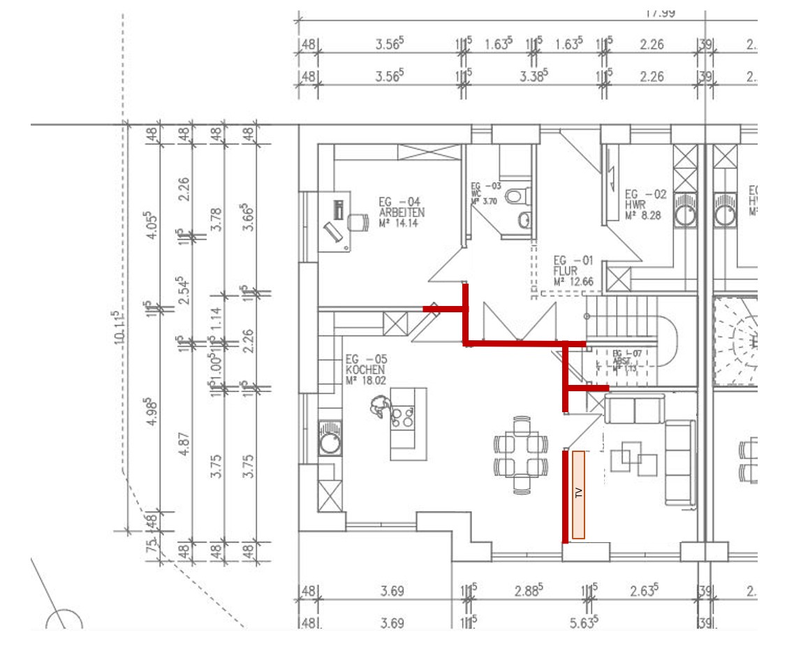
Wir haben den ersten Entwurf für unsere Doppelhaushälfte erhalten. Der Architekt hat sich viel Mühe gegeben (Symmetrie mit der anderen Hausseite etc.) und an sich unsere Wünsche sehr gut umgesetzt, aber wir hatten eigentlich von einer Wohnküche und einem getrennten Wohnzimmer geträumt, nicht anders herum. Jetzt spielen wir mit dem Gedanken die Räume zu tauschen. In die Ecke wo gerade die Couch eingezeichnet ist käme dann eine Küchenzeile (3,75m) und eine Insel (1,80m mit Kochfeld), rechts und links der Insel wären 1,20 und 75cm Durchgang. Die Insel dürfte höchstens 90cm tief sein. Eine Speisekammer findet unter der Treppe Platz (ggf. mit maßgefertiger Tür sogar direkt aus der Küche erreichbar. Den Esstisch könnte man dann an die Insel oder so wie aktuell eingezeichnet stellen. Die Fenster sollten zu einer großen Fensterfront werden.
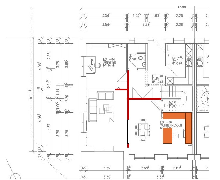
Im Wohnzimmer würden wir die hintere Wand nutzen um ein Terrarium etwas versteckter aufzustellen (200x60cm). Nur wo der Fernseher dann hin kann (1m breit) ist noch unklar.
Ich bin hin- und hergerissen, denn auch der Architektenentwurf macht für mich Sinn. Symmetrie der Fenster (auch wenn ich bodentief vor der Couch eigentlich nicht mag), mehr Raum hinter den Stühlen des Esstisches und eine schön große Küche mit jeder Menge Stauraum. Insgesamt wirkt es vielleicht etwas "klassischer" so und aufgeräumter?
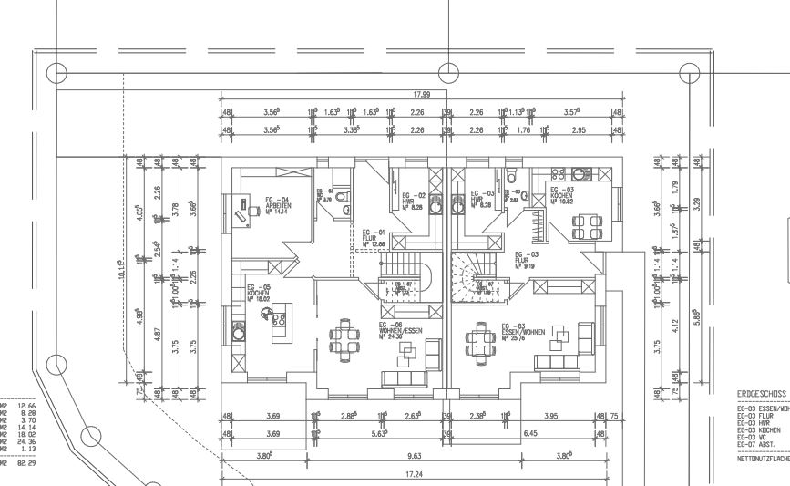
Ich hänge an: Den aktuellen Entwurf des Erdgeschossen und zur Einordnung auch des gesamten Hauses. Außerdem ein Bild davon wie ich mir ungefähr unsere Küche erträumt hatte. Über Rat bin ich sehr dankbar.




Im Wohnzimmer würden wir die hintere Wand nutzen um ein Terrarium etwas versteckter aufzustellen (200x60cm). Nur wo der Fernseher dann hin kann (1m breit) ist noch unklar.
Ich bin hin- und hergerissen, denn auch der Architektenentwurf macht für mich Sinn. Symmetrie der Fenster (auch wenn ich bodentief vor der Couch eigentlich nicht mag), mehr Raum hinter den Stühlen des Esstisches und eine schön große Küche mit jeder Menge Stauraum. Insgesamt wirkt es vielleicht etwas "klassischer" so und aufgeräumter?
Ich hänge an: Den aktuellen Entwurf des Erdgeschossen und zur Einordnung auch des gesamten Hauses. Außerdem ein Bild davon wie ich mir ungefähr unsere Küche erträumt hatte. Über Rat bin ich sehr dankbar.
N
nordanney19.03.26 11:33jolovyn schrieb:
aber wir hatten eigentlich von einer WohnkücheDas ist was genau für Dich? Eine Küche mit Sofa?
Dank der Schiebetür ist es doch m.E. genau das, was Du möchtest.
jolovyn schrieb:
und einem getrennten Wohnzimmer geträumtDas war eine Aufgabe des Architekten, es so zu planen? Oder nur ein unausgesprochener Traum? Schiebetür zu und das Wohnzimmer ist getrennt.
Okay, vielleicht habe ich mich nicht deutlich genug ausgedrückt. Ich möchte eine Küche mit großem Esstisch direkt darin und ein Wohnzimmer mit Sofa. Da mein Mann und ich häufig getrennt voneinander Besuch bekommen (und mein Mann den großen Esstisch für Brettspiele nutzt), möchte ich gleichzeitig und mit geschlossener Türe im Wohnzimmer sitzen können. Wir haben dem Architekten einen handgezeichneten Plan mitgegeben, in dem die Räume vertauscht waren und der Esstisch im größeren Raum mit der Küche stand, aufgrund der begrenzten Zeit und den zahlreichen zu besprechenden Themen haben wir über die Küche speziell nicht weiter gesprochen.
N
nordanney19.03.26 14:56RomeoZwo schrieb:
was man da ins Sofa-Zimmer an "echten" Möbeln rein bringt.Für gemütlich gar nichts.
nordanney schrieb:
Für gemütlich gar nichts.Hast recht, so rum wirds besser.
Muss man oben beim Duschbad schauen, ob man irgendwie die Wand in gerader Linie hinbekommt.
Vielleicht auch das mittlere Fenster an der Küche etwas kleiner, um da 65cm Tiefe für eine durchgehende Arbeitsfläche zu haben. Dann gerne oben auf das Kücheneck verzichten.
Die 45° Türen des Architekten sind aber schon bisle 90er, oder ist das wieder Retro-modern?
Ähnliche Themen