ᐅ Grundriss Einfamilienhaus mit Keller, 150qm, nur eingeschossig erlaubt
Erstellt am: 24.11.24 13:20
G
GeraldGHallo Katja,
ich finde deine Vorschläge sehr schön. Das OG sieht so sauber aufgeräumt aus, dass man sieht fragt, wie und warum man denn überhaupt etwas anders machen sollte.
Tatsächlich war die Drehung des Hauses und ein seitlicher Eingang schon sehr früh Thema bei uns und ein richtiges Streitthema.
Ich habe eigentlich nur mehrere Vorteile gesehen. Meine Frau wollt das absolut nicht haben. Für sie war es ganz klar, die Traufseite muss zur Straße, Erker zeigen nicht zu den Nachbarn und ein Eingang an der Seite findet sie wenig einladend.
Da ich das nachvollziehen kann und mir die Richtung nicht so wichtig ist, auch wenn ich darin Vorteile sehe, haben wir uns darauf geeinigt, dass wir es so machen wie sie es will (In den Worten von 11ant auszudrücken, hier stand mein "Nicetohave" gegen ihr "Nogo").
Um deine Frage zu beantworten, wir haben zwei Autos. Durch unsere größere Familie in der Nähe wären mindestens zwei weitere Abstellmöglichkeiten im Hof nett (Nicetohave). Momentan haben wir einen Carport, und das ist in Ordnung für uns.
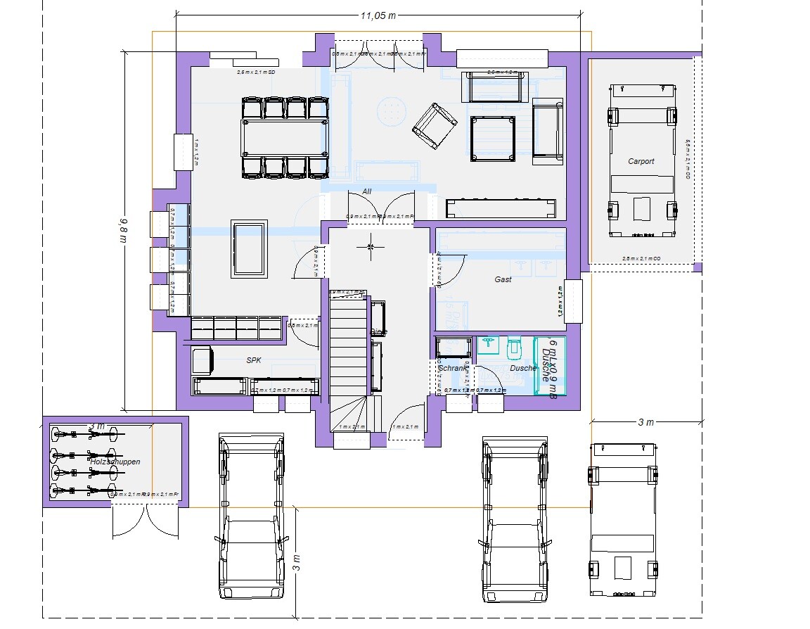
Ich habe heute mit unserem Planer gesprochen. Er meldet sich nächste Woche mit einem neuen Vorschlag. Er würde die Treppe in eine "doppelt geknickte" umändern und das Haus breiter ziehen. Das wird dann zu Teilen ähnlich zu deinem ersten Vorschlag und viele Negativpunkte werden so ausgeräumt. Der Erker vorne will er breiter ziehen, die Tür in die Mitte und rechts und links Garderobe.
Ich bin gespannt und melde mich sobald ich mehr weiß.
Ich habe übrigens noch einmal unseren ersten Vorschlag des Planers angesehen, der hatte viele Schwächen unseres letzten Plans nicht. Die kamen tasächlich oft erst durch unsere Wünsche (Wohnzimmer nach links, Küche nach rechts, zu viel ungenutzer Platz etc.). Dann wurde eben auf Basis des ersten Vorschlöags geändert anstatt nochmal neu zu denken. Fand ich eine interessante Erkenntnis.
ich finde deine Vorschläge sehr schön. Das OG sieht so sauber aufgeräumt aus, dass man sieht fragt, wie und warum man denn überhaupt etwas anders machen sollte.
Tatsächlich war die Drehung des Hauses und ein seitlicher Eingang schon sehr früh Thema bei uns und ein richtiges Streitthema.
Ich habe eigentlich nur mehrere Vorteile gesehen. Meine Frau wollt das absolut nicht haben. Für sie war es ganz klar, die Traufseite muss zur Straße, Erker zeigen nicht zu den Nachbarn und ein Eingang an der Seite findet sie wenig einladend.
Da ich das nachvollziehen kann und mir die Richtung nicht so wichtig ist, auch wenn ich darin Vorteile sehe, haben wir uns darauf geeinigt, dass wir es so machen wie sie es will (In den Worten von 11ant auszudrücken, hier stand mein "Nicetohave" gegen ihr "Nogo").
Um deine Frage zu beantworten, wir haben zwei Autos. Durch unsere größere Familie in der Nähe wären mindestens zwei weitere Abstellmöglichkeiten im Hof nett (Nicetohave). Momentan haben wir einen Carport, und das ist in Ordnung für uns.
Ich habe heute mit unserem Planer gesprochen. Er meldet sich nächste Woche mit einem neuen Vorschlag. Er würde die Treppe in eine "doppelt geknickte" umändern und das Haus breiter ziehen. Das wird dann zu Teilen ähnlich zu deinem ersten Vorschlag und viele Negativpunkte werden so ausgeräumt. Der Erker vorne will er breiter ziehen, die Tür in die Mitte und rechts und links Garderobe.
Ich bin gespannt und melde mich sobald ich mehr weiß.
Ich habe übrigens noch einmal unseren ersten Vorschlag des Planers angesehen, der hatte viele Schwächen unseres letzten Plans nicht. Die kamen tasächlich oft erst durch unsere Wünsche (Wohnzimmer nach links, Küche nach rechts, zu viel ungenutzer Platz etc.). Dann wurde eben auf Basis des ersten Vorschlöags geändert anstatt nochmal neu zu denken. Fand ich eine interessante Erkenntnis.
Ich hätte dafür einfach das Haus soweit wie möglich nach hinten geschoben. Wenn das jetzt 10m tief wird, sind zwischen Bordstein und Haus ja 6m Platz. Ich hätte einfach keinen Vorgarten o.ä. vorgesehen und einfach einen "Hof" dafür gemacht. Ein Auto neben das Haus in den Carport oder Garage, 3 vors Haus.
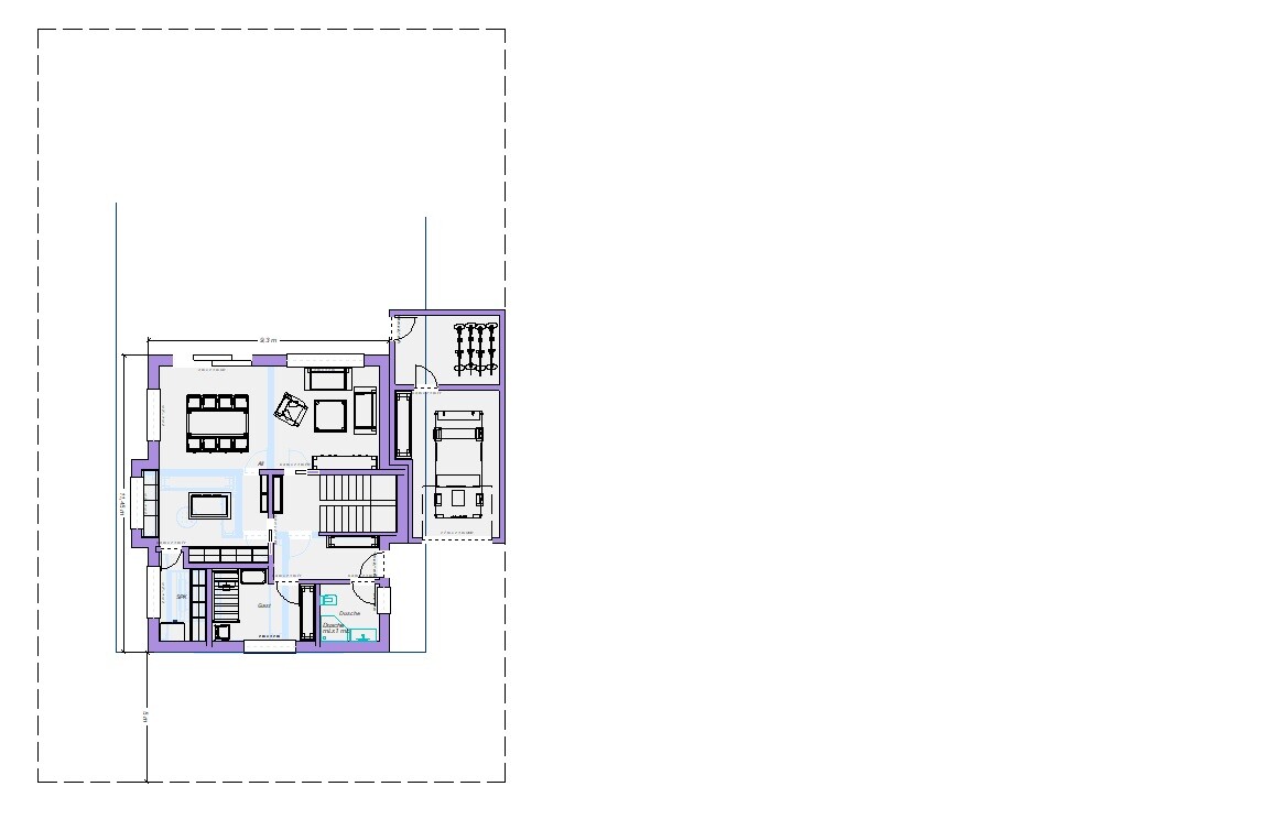
Hab hier noch einen mit 1/4 Wendelung der Treppe und Haustür im Erker. Finde ich persönlich nicht so elegant, weil dadurch immer diese langen Gänge entstehen, die ein Haus ungemütlich machen. Aber wenn die Frau drauf besteht.
Außerdem liegt der Treppenantritt dann im Eingangsbereich - man könnt sie aber alternativ noch drehen. Dürfte insgesamt auch ein wenig größer sein.



Das Baufenster ist der rötliche Rahmen - 18 x 16 hab ich erahnt. Ist das korrekt? Wenn Du Dein Häuslein da bis ganz hinter schiebst, wegen der Autos, dann passt die Terrasse m.E. schon nicht mehr ins Baufenster. Manchmal sind die Bauämter da großzügig aber manchmal eben auch nicht. Deswegen solltest Du den Außenbereich unbedingt mit planen (lassen).
Außerdem liegt der Treppenantritt dann im Eingangsbereich - man könnt sie aber alternativ noch drehen. Dürfte insgesamt auch ein wenig größer sein.
Das Baufenster ist der rötliche Rahmen - 18 x 16 hab ich erahnt. Ist das korrekt? Wenn Du Dein Häuslein da bis ganz hinter schiebst, wegen der Autos, dann passt die Terrasse m.E. schon nicht mehr ins Baufenster. Manchmal sind die Bauämter da großzügig aber manchmal eben auch nicht. Deswegen solltest Du den Außenbereich unbedingt mit planen (lassen).
K a t j a schrieb:
Hab hier noch einen mit 1/4 Wendelung der Treppe und Haustür im Erker. Finde ich persönlich nicht so elegant, weil dadurch immer diese langen Gänge entstehen, die ein Haus ungemütlich machen.Das kann man auf ca. 4,50 Flurlänge machen. Das ist immerhin 2 Meter kürzer als der von #1K a t j a schrieb:
Außerdem liegt der Treppenantritt dann im Eingangsbereich - man könnt sie aber alternativ noch drehen. Dürfte insgesamt auch ein wenig größer sein.Und dann macht der dritte Giebel auch gleich wieder Sinn. Ich denke, dass ist ein guter Ansatz und Vorlage zur Optimierung.Weniger Erker wären gut, Küche und Essbereich im Süden. Garage kann ggf weiter nach vorn gezogen werden, Erkerfrage überdenken und Wohnflächenberechnung hinsichtlich des Kellers überprüfen.
Da kam jetzt auch gar nichts mehr von Dir, @GeraldG?
Es zeigt sich, dass man mit weniger Ecken sehr viel Mehr herausbekommt (OG)
Ähnliche Themen