Hausbau - Ratgeber
Bauherrenhilfe
- Bauherrenhilfe vor Vertragsabschluss
-- Warum einen unabhängigen Baubetreuer?
-- Vertragsgrundlagen
-- Bausumme
-- Zahlungsplan zur Kostenkontrolle
-- Pflichten des Bauherren vor Vertragsabschluss
-- Unterlagen beim Hausbau vor Vertragsabschluss
- Bauherrenhilfe nach Vertragsabschluss
-- Bauantrag bei Behörden
-- Bau-Genehmigungsverfahren bei Baubehörden
-- Bauspezifische Versicherungen
-- Bauzeitenplan
-- Baubeginn - die Letzten Pflichten der Bauherrschaft
- Bauherrenhilfe während der Bauzeit
- Gewährleistungsansprüche
- Bauabnahme
Baufinanzierung
- Baufinanzierung - Allgemeine Fragen
- Kreditarten
- Kredit-Konditionen
- Bausparen
- Staatliche Förderungen
- Verkehrswert
- Haushaltsrechnung und Bonität
Hausbau Planung
- Haustypen
- Hausbau Vorbereitungsarbeiten
- Das Baugrundstück
- Baugrund beim Hausbau
- Baurecht
- Gebäudeschutz
- Erdarbeiten und Wasserhaltung
- Stützmauern
- Einfriedung
- Untergeschoss
- Kanalisation
- Tragende Elemente
- Nichttragende Innenwände
- Fundation / Fundament
- Deckenkonstruktionen
- Dächer
- Kaminanlagen
- Treppen Rampen Leitern
- Dachbeläge und Spengler
- Fenster
- Sonnen und Wetterschutz
- Aussenputze
- Einbauten, Küchen, Türen
- Bodenbeläge und Unterlagsböden
- Parkett
- Gips, Wand, Decke
Haustechnik und Energie
- Heiztechnik
- Lüftung und Klimatechnik
- Sanitärtechnik
- Elektrotechnik
- Erneuerbare Energie
Whirlpools / Jacuzzi
Hausbau Magazin
- Baufinanzierung trotz Krise?
- Das Blockhaus
- Moderne Dämmstoffe im Vergleich
- Erker Vor- und Nachteile
- Glasflächen beim Hausbau
- Günstig ein Haus Bauen
- Mediterraner Hausbaustil
- Mehrgenerationenhaus
- Moderne Architektur
- Gartengestaltung leicht gemacht
- Traditioneller Ziegelbau
- Villa als höchster Traum
- Im Eigenheim Ruhestand geniessen
- Altbau sanieren
- Kauf einer Holzgarage
- Immobilienmakler
- Arbeitshandschuhe für den Winter
- Zuhause verschönern
- Outdoor-Plissees
- Schlafzimmer planen
- Terrassenüberdachung
- Wohngebäudeversicherung
- Zaunarten und Eigenschaften
- Hauseingang gestalten
- Der perfekte Grundriss
- Sparsamer heizen im Altbau
- Einfamilienhaus smart finanzieren
- Planung einer PV-Anlage
- Neues Haus
- Immobilienfinanzierung
- Installation einer Photovoltaikanlage
- Asbest erkennen und entfernen
- Gartenpflege im Frühling – worauf achten
- Sauna im Fokus - Wellness zuhause
- Erfolgreich vermieten
- Die perfekte Winterbekleidung
- Das Niedrigenergiehaus
- Der April und seine Stürme
- Architektonische Vielfalt
- Ökologisch und nachhaltig bauen
- Das perfekte Schlafzimmer
- Nachhaltige Energieversorgung
- Zukunftsorientiert bauen
- Nachhaltigkeit beim Hausbau
- Tiny Houses
- Wärmepumpen als nachhaltige Heizvariante
- Maßgeschneiderten Kleiderschrank
- Der richtige Baukredit
- Ratgeber für erfolgreichen Hausbau
- Haus als Altersvorsorge
Do-it-yourself Anleitungen
- Verlegeanleitung für Bodenbeläge und Parkett
- Bodenbeläge und Parkett reinigen und pflegen
- Malerarbeiten am Haus
- Garten Tipps
- Umzug und Reinigung

ᐅ Grundriss Einfamilienhaus mit ca 150 qm auf Hinterliegergrundstück

Erstellt am: 27.02.23 08:24
H
Hausbaurer
H
Hausbaurer
27.02.23 08:24
Hallo Hausbau-Foristen,

ich lese gerne in diesem Forum und möchte unsere Planung zur Diskussion stellen. Unser Grundstück ist die Flurnummer 173/6.

Bebauungsplan/Einschränkungen
Größe des Grundstücks: 498 m² (Zufahrt ca 60 m²)
Hang: Nein
Grundflächenzahl: Kein Bebauungsplan (§34 Baugesetzbuch)
Geschossflächenzahl: Kein Bebauungsplan (§34 Baugesetzbuch)
Baufenster, Baulinie und -grenze: 3 m zur Grundstücksgrenze gem. Bayrischer Bauordnung
Randbebauung: keine
Anzahl Stellplatz: 1
Geschossigkeit: 1,5
Dachform: Satteldach 40-45° Dachneigung
Stilrichtung: Einfamilienhaus
Ausrichtung: Firstlinie Ost/West
Platzierung auf dem Grundstück: Nordwesten
Maximale Höhen/Begrenzungen: ca. 9m (§34 Baugesetzbuch)
Direkte Nachbarschaft: Nachbar Nord 1,5-geschossig mit Satteldach. Nachbar Süd 1-geschossig mit Walmdach. Nachbar West 1,5-geschossig mit Satteldach.
Übernächster Nachbar Süd 1,5-2-geschossig mit Satteldach und Kniestock >1,2 m.

Anforderungen der Bauherren
Stilrichtung, Dachform, Gebäudetyp: Satteldach, Kniestock 1,4 m, Einfamilienhaus
Keller, Geschosse: Nutzkeller (Beton), EG, OG
Anzahl der Personen, Alter: 4 (2 Erwachsene + 2 Kleinkinder)
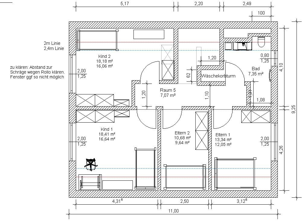
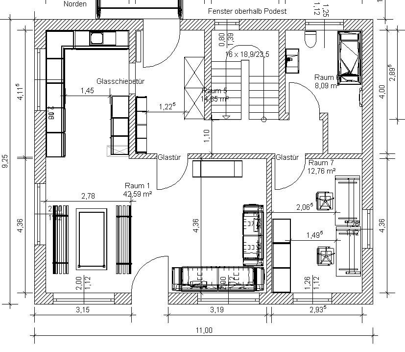
Raumbedarf im EG, OG: EG (Küche, Wohnen, Duschbad, Garderobe, Arbeitszimmer), OG (2 Schlafzimmer, 2 Kinderzimmer, Bad)
Büro: Homeoffice
Schlafgäste pro Jahr: 0
offene oder geschlossene Architektur: Tendenziell eher geschlossen.
konservativ oder moderne Bauweise: Modern
offene Küche, Kochinsel: Ja, Kochinsel nein.
Anzahl Essplätze 6-8
Kamin: Nein
Musik/Stereowand: Nein
Balkon, Dachterrasse: Nein
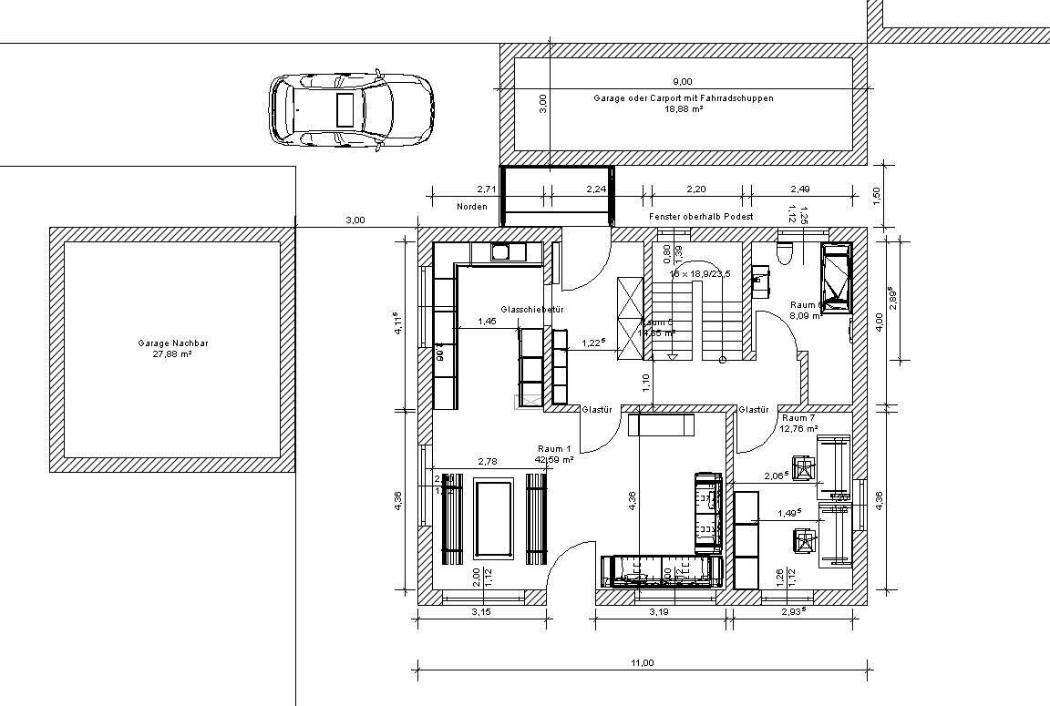
Garage, Carport: Garage oder Carport
Nutzgarten, Treibhaus: Nein
weitere Wünsche/Besonderheiten/Tagesablauf, gern auch Begründungen, warum dieses oder das nicht sein soll:

Hausentwurf
Von wem stammt die Planung:
-Do-it-Yourself
Was gefällt besonders? Warum?: Duschnischen in den Bädern, große Kinderzimmer nach Westen, L-förmiger Wohn-Essbereich anstelle Schlauch
Was gefällt nicht? Warum?: OG Bad, Arbeitszimmer im Südosten anstelle Nordwest.
Preisschätzung lt Architekt/Planer: 580000 EUR
Persönliches Preislimit fürs Haus, inkl. Ausstattung:
favorisierte Heiztechnik: Luft-Wasser-Wärmepumpe mit Fußbodenheizung.

Wenn Ihr verzichten müsst, auf welche Details/Ausbauten
-könnt Ihr verzichten:
Arbeitszimmer im EG (Sofern Ersatz im KG)
-könnt Ihr nicht verzichten:
4 Schlafzimmer

Warum ist der Entwurf so geworden, wie er jetzt ist?
Anforderungen und viele Versuche mit unseren Möbeln. Möglichst viel Garten im Süden und Osten.

Was ist die wichtigste/grundlegende Frage zum Grundriss in 130 Zeichen zusammengefasst?
Wieviel Abstand sollte man im Norden zur Garage oder zum Carport einplanen? Durchgang sollte Platz für Menschen und Fahrräder bieten (Fahrradschuppen hinter Garage/Carport geplant. Ist der Entwurf insgesamt verwendbar oder haben wir etwas übersehen?

Viele Grüße,
Hausbaurer
Lageplan der Parzellen mit Grundstücksnummern und grauen Gebäuden auf rosafarbenem Grundriss

Grundriss eines Wohnhauses mit Garage, Carport, Treppe, Küche und Wohnräume.

Grundriss eines Wohnhauses mit mehreren Räumen, Türen, Treppen, Möbeln und Maßangaben.

Grundriss eines Hauses mit 4 Schlafzimmern (Kind 1, Kind 2, Eltern 1, Eltern 2), Bad, Waschküche.
1
11ant
27.02.23 18:04
Hausbaurer schrieb:

Ist der Entwurf insgesamt verwendbar [...]
Ja, schau mal da: https://www.hausbau-forum.de/threads/eigener-grundrissentwurf-stadtvilla-180qm-mit-doppelgarage-feedback.44736/page-8#post-620055 Entwurf Nr. 2 - das hast Du quasi ein bißchen sparsamer und auf "Anderthalbgeschösser" übersetzt.
Hausbaurer schrieb:

[...] oder haben wir etwas übersehen?
Selbst wenn nicht: ich würde stets mit Architekt bauen (und vor der Planung möglichst wenig bildhaft selber werkeln). Dennoch ist auch ein Kataloghaus als Grundlage hier nicht ausgeschlossen (vom Grundstück höhenmäßig und vom Keller zeigst Du leider nichts).
https://www.instagram.com/11antgmxde/
https://www.linkedin.com/company/bauen-jetzt/
H
Hausbaurer
28.02.23 08:37
11ant schrieb:

Selbst wenn nicht: ich würde stets mit Architekt bauen (und vor der Planung möglichst wenig bildhaft selber werkeln). Dennoch ist auch ein Kataloghaus als Grundlage hier nicht ausgeschlossen (vom Grundstück höhenmäßig und vom Keller zeigst Du leider nichts).
Es scheint gar nicht so einfach Architekten zu finden, die sich mit der Planung eines Einfamilienhaus abgeben. So hab ich in der Region Nürnberg-Erlangen-Fürth viele Absagen erhalten. Unsere bisherige Idee ist mit dem Planer eines Generalunternehmers zu arbeiten um den Hausbau zu verwirklichen.
Die Höhenlage des Grundstücks ist unspektakulär, fast ebene Fläche. Auf dem Flurstück 173/5 wird gerade gebaut und bei der Errichtung dessen Rohbaus gab es keine Auffälligkeiten.
Der Keller selber soll ein Nutzkeller werden. Für die Aufteilung der Räume gibt es noch keine Festlegung. Wir können uns vorstellen hier drei oder vier Räume einzurichten. Einer der Räume wird für die Technik verwendet.
H
hanghaus2023
28.02.23 09:01
Der Lageplan zeigt mir kein unbebautes Grundstück und eine große Grenzgarage des Nachbarn auch nicht. Welches Grundstück ist es denn?
H
Hausbaurer
28.02.23 10:28
hanghaus2023 schrieb:

Der Lageplan zeigt mir kein unbebautes Grundstück und eine große Grenzgarage des Nachbarn auch nicht. Welches Grundstück ist es denn?
Unser Grundstück ist die Flurnummer 173/6. Der Nachbar auf der Flurnummer 190/25 plant eine Doppelgarage als Grenzbebauung auf seiner östlichen Grenze. Diese geplante Garage findet sich auf dem Grundriss EG mit Umgebung wieder an unserer westlichen Grenze.
Die auf dem Lageplan bei 173/6 und 190/25 eingezeichneten Garagen wurden bereits abgerissen.
H
hanghaus2023
28.02.23 18:34
Warum stellst Du einen Plan ein, wo Dein Grundstück nur teilweise enthalten ist?
grundstücksatteldachnutzkellergaragecarportflurnummerbebauungsplanbaugesetzbucheinfamilienhausarbeitszimmer