J
Jens 198510.09.21 15:07Liebes Hausbau-Forum,
nach langen hin und her, haben wir uns entschieden das Projekt Hausbau in der Region Hannover anzugehen. Nach für uns ernüchternden Gesprächen mit einigen Bauträgern/GUs, haben wir versucht unsere Wunschvorstellungen auf Papier zu bringen.
Bebauungsplan/Einschränkungen
Größe des Grundstücks: circa. 1.800 m² nicht teilbar oder der gleichen
Hang: nein, eben
Es liegt kein Bebauungsplan vor, nach Vorabstimmung mit der Genehmigungsbehörde kommt §34 zu tragen. Aufgrund der umliegenden Bebauung wurde die Genehmigungsfähigkeit von 2 Vollgeschossen in Aussicht gestellt. Die Bebauung muss sich jedoch im vorderen Bereich an der Straße orientieren.
Randbebauung: Mehrfamilienhaus
Anzahl Stellplatz: 2 + Anhängerplatz
Geschossigkeit: 2 Vollgeschosse plus Option späterer Ausbau Dachgeschoss
Dachform: Satteldach
Stilrichtung: Modern
Ausrichtung: Nordausrichtung
Anforderungen der Bauherren
Stilrichtung, Dachform, Gebäudetyp: schlicht, zeitlos, modernes Satteldachhaus
Keller, Geschosse: Kein Keller aufgrund Kosten, 2 Vollgeschosse
Anzahl der Personen, Alter: 2 Erwachsene, 2 Kinder
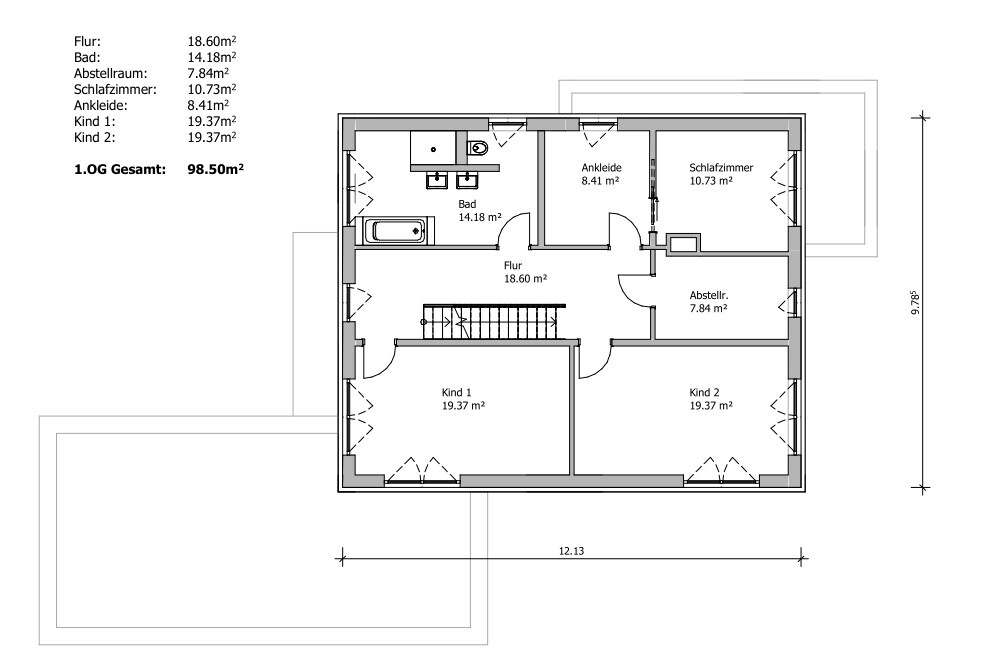
Raumbedarf 180 m² - 200 m²
Büro: Homeoffice selten + Familiennutzung als Gästezimmer
Schlafgäste pro Jahr: mindestens 10 - 15 Nächte
offene oder geschlossene Architektur: ?
konservativ oder moderne Bauweise: modern
offene Küche, Kochinsel: geschlossene Küche bevorzugt aber mit Schiebetür und kleiner Kochinsel
Anzahl Essplätze: 6 Essplätze
Kamin: vielleicht, Ja, als Raumteiler zum Essbereich
Musik/Stereowand: nein
Balkon, Dachterrasse: Nein
Garage, Carport: Garage entgegen dem Entwurf auch als Fertiggarage oder Carport, Realisierung in Hinblick Einsparung im späteren möglich
Nutzgarten, Treibhaus: Nutzgarten für die Familie, eher Problem im späteren die Pflege aufgrund der Größe
Hausentwurf
Von wem stammt die Planung:
Do-it-Yourself
Was gefällt besonders? Warum?
Großer HAR Raum, direkter Zugang zur Garage, L-Form im Bereich Wohn- Essbereich, 2 große Kinderzimmer, gerader Treppenlauf
Was gefällt nicht? Warum?
Viel verlorene Bewegungsfläche EG, Wunsch Optimierung Gesamtfläche auf circa. 180 m²
Preisschätzung lt Bauträger: 470 TEUR ohne Garage, Maler und Bodenbeläge
Persönliches Preislimit fürs Haus, inkl Ausstattung: ca. 500 TEUR ohne Garage inkl. Baunebenkosten , Grundstück vorhanden!
favorisierte Heiztechnik: Luft-Wärme Pumpe
Wenn Ihr verzichten müsst, auf welche Details/Ausbauten
könnt Ihr verzichten:
kleinerer Wohn-Essbereich, Treppenform, Verkleinerung Kinderzimmer auf 16 m²
könnt Ihr nicht verzichten:
großer HAR Raum, großer Wohn, Essbereich inkl. geschlossener Küche, Teil-Klinker
Warum ist der Entwurf so geworden, wie er jetzt ist?
Anordnung, Ausrichtung Haus basieren auf vorhandener Grundstückseinfahrt, Punkte welche uns in unserem Mietshaus (Stadtvilla 155 m²) nicht gefallen
Was macht ihn in Euren Augen besonders gut oder schlecht?
Er erfüllt unsere Wünsche auf dem Papier, allerdings fehlt die Erfahrung ob dieses Haus wirtschaftlich zu errichten ist, ggf. bessere Ideen Anordnung HAR inkl. Garderobe und Garage
Was ist die wichtigste/grundlegende Frage zum Grundriss in 130 Zeichen zusammengefasst?
Wie schaffe ich es den Wohnfläche bestmöglich in Hinblick Kostenersparnis zu optimieren, ist die Grundrissplanung mit unserem preislichen Limit in Einklang zu bringen. Wie geht es weiter, auf zum Architekten oder Bauträger/GU.
Ich hoffe die Informationen sind ausreichend, gerne fragt mich nach weiteren Details.
Vielen Dank für Eure Unterstützung und ehrliches konstruktives Feedback. Und keine Angst immer gerade heraus.



nach langen hin und her, haben wir uns entschieden das Projekt Hausbau in der Region Hannover anzugehen. Nach für uns ernüchternden Gesprächen mit einigen Bauträgern/GUs, haben wir versucht unsere Wunschvorstellungen auf Papier zu bringen.
Bebauungsplan/Einschränkungen
Größe des Grundstücks: circa. 1.800 m² nicht teilbar oder der gleichen
Hang: nein, eben
Es liegt kein Bebauungsplan vor, nach Vorabstimmung mit der Genehmigungsbehörde kommt §34 zu tragen. Aufgrund der umliegenden Bebauung wurde die Genehmigungsfähigkeit von 2 Vollgeschossen in Aussicht gestellt. Die Bebauung muss sich jedoch im vorderen Bereich an der Straße orientieren.
Randbebauung: Mehrfamilienhaus
Anzahl Stellplatz: 2 + Anhängerplatz
Geschossigkeit: 2 Vollgeschosse plus Option späterer Ausbau Dachgeschoss
Dachform: Satteldach
Stilrichtung: Modern
Ausrichtung: Nordausrichtung
Anforderungen der Bauherren
Stilrichtung, Dachform, Gebäudetyp: schlicht, zeitlos, modernes Satteldachhaus
Keller, Geschosse: Kein Keller aufgrund Kosten, 2 Vollgeschosse
Anzahl der Personen, Alter: 2 Erwachsene, 2 Kinder
Raumbedarf 180 m² - 200 m²
Büro: Homeoffice selten + Familiennutzung als Gästezimmer
Schlafgäste pro Jahr: mindestens 10 - 15 Nächte
offene oder geschlossene Architektur: ?
konservativ oder moderne Bauweise: modern
offene Küche, Kochinsel: geschlossene Küche bevorzugt aber mit Schiebetür und kleiner Kochinsel
Anzahl Essplätze: 6 Essplätze
Kamin: vielleicht, Ja, als Raumteiler zum Essbereich
Musik/Stereowand: nein
Balkon, Dachterrasse: Nein
Garage, Carport: Garage entgegen dem Entwurf auch als Fertiggarage oder Carport, Realisierung in Hinblick Einsparung im späteren möglich
Nutzgarten, Treibhaus: Nutzgarten für die Familie, eher Problem im späteren die Pflege aufgrund der Größe
Hausentwurf
Von wem stammt die Planung:
Do-it-Yourself
Was gefällt besonders? Warum?
Großer HAR Raum, direkter Zugang zur Garage, L-Form im Bereich Wohn- Essbereich, 2 große Kinderzimmer, gerader Treppenlauf
Was gefällt nicht? Warum?
Viel verlorene Bewegungsfläche EG, Wunsch Optimierung Gesamtfläche auf circa. 180 m²
Preisschätzung lt Bauträger: 470 TEUR ohne Garage, Maler und Bodenbeläge
Persönliches Preislimit fürs Haus, inkl Ausstattung: ca. 500 TEUR ohne Garage inkl. Baunebenkosten , Grundstück vorhanden!
favorisierte Heiztechnik: Luft-Wärme Pumpe
Wenn Ihr verzichten müsst, auf welche Details/Ausbauten
könnt Ihr verzichten:
kleinerer Wohn-Essbereich, Treppenform, Verkleinerung Kinderzimmer auf 16 m²
könnt Ihr nicht verzichten:
großer HAR Raum, großer Wohn, Essbereich inkl. geschlossener Küche, Teil-Klinker
Warum ist der Entwurf so geworden, wie er jetzt ist?
Anordnung, Ausrichtung Haus basieren auf vorhandener Grundstückseinfahrt, Punkte welche uns in unserem Mietshaus (Stadtvilla 155 m²) nicht gefallen
Was macht ihn in Euren Augen besonders gut oder schlecht?
Er erfüllt unsere Wünsche auf dem Papier, allerdings fehlt die Erfahrung ob dieses Haus wirtschaftlich zu errichten ist, ggf. bessere Ideen Anordnung HAR inkl. Garderobe und Garage
Was ist die wichtigste/grundlegende Frage zum Grundriss in 130 Zeichen zusammengefasst?
Wie schaffe ich es den Wohnfläche bestmöglich in Hinblick Kostenersparnis zu optimieren, ist die Grundrissplanung mit unserem preislichen Limit in Einklang zu bringen. Wie geht es weiter, auf zum Architekten oder Bauträger/GU.
Ich hoffe die Informationen sind ausreichend, gerne fragt mich nach weiteren Details.
Vielen Dank für Eure Unterstützung und ehrliches konstruktives Feedback. Und keine Angst immer gerade heraus.
Der Lageplan fehlt noch. Bitte um Einstellung. Auch die Ausrichtung fehlt mir… wo ist Norden, wohin zeigen die Fensterflächen?
Was sollen denn im DG noch für Räume hin?
470000 ist auch in Niedersachsen ein Kampfpreis, wenn noch Teilklinker und ein ausbaufähiger Dachstuhl bedacht werden müssen. Außerdem sind keine Baunebenkosten mit drin.
Euer Limit sprengt ihr mit dieser Planung! Seht ihr ja selbst.
Zum Grundriss: alles etwas größer mag zwar Engpässe ausmerzen, muss man sich aber leisten können.
Garderobe sehe ich nicht.
Um ins WZ oder Küche zu kommen, muss man erst zum Ende des Hauses gehen, um dann wieder einzubiegen. Praktisch ist das nicht.
Diskutieren kann man, wenn Ihr budgetiert 40qm kleiner baut. Dann kommen die Engpässe, die die Funktion des Hauses einschränken.
Jens 1985 schrieb:Aber gezeichnet sind gute 225qm mit der Option zum Dachgeschossausbau?
Raumbedarf 180 m² - 200 m²
Was sollen denn im DG noch für Räume hin?
Jens 1985 schrieb:
Geschossigkeit: 2 Vollgeschosse plus Option späterer Ausbau Dachgeschoss
Jens 1985 schrieb:Nein, ich denke nicht.
ist die Grundrissplanung mit unserem preislichen Limit in Einklang zu bringen.
Jens 1985 schrieb:Kleiner bauen. Effektiver bauen.
Wie schaffe ich es den Wohnfläche bestmöglich in Hinblick Kostenersparnis zu optimieren,
Jens 1985 schrieb:Die Frage, die sich stellt: weiß der GU von Eurem Konstrukt? Hat er die ganzen Finessen mit in der Kalku drin oder hat er Euch nur eine Hochrechnung der Qm mitgeteilt?
Preisschätzung lt Bauträger: 470 TEUR ohne Garage, Maler und Bodenbeläge
Persönliches Preislimit fürs Haus, inkl Ausstattung: ca. 500 TEUR ohne Garage inkl. Baunebenkosten , Grundstück vorhanden!
470000 ist auch in Niedersachsen ein Kampfpreis, wenn noch Teilklinker und ein ausbaufähiger Dachstuhl bedacht werden müssen. Außerdem sind keine Baunebenkosten mit drin.
Euer Limit sprengt ihr mit dieser Planung! Seht ihr ja selbst.
Zum Grundriss: alles etwas größer mag zwar Engpässe ausmerzen, muss man sich aber leisten können.
Garderobe sehe ich nicht.
Um ins WZ oder Küche zu kommen, muss man erst zum Ende des Hauses gehen, um dann wieder einzubiegen. Praktisch ist das nicht.
Diskutieren kann man, wenn Ihr budgetiert 40qm kleiner baut. Dann kommen die Engpässe, die die Funktion des Hauses einschränken.
P
pagoni202010.09.21 18:25Wie betreits egschrieben wird die Kalkulation nicht passen. Von daher müsste es kleimer werden; dabei kann man aber nicht einfach Alles etwas schrumpfen lassen, sondern man muss quasi "neu" beginnen. Das macht ja aber Nichts, es soll sich ja auch in Ruhe entwickeln.
Aktuell sehe ich viel Flurfläche sowie "unnützer Raum zwischen Küche/Wohnen, eine Diele ohne Garderobe, üppigen Wohnraum, im OG ein rel. großes Bad, ein sehr kleines Elternschlafzimmer und dagegen riesige Kinderzimmer sowie erneut riesige Flurfläche.
Wie gesagt groß bauen macht die Raumplanung einfcher aber eben teuer. Vlt. nehmt ihr hier dann ein paar Ideen auf uns zeichnet neu oder anders, das wird schon.....oder morgen ist Samstag und Samstag ist Lotto-Tag 😀
Aktuell sehe ich viel Flurfläche sowie "unnützer Raum zwischen Küche/Wohnen, eine Diele ohne Garderobe, üppigen Wohnraum, im OG ein rel. großes Bad, ein sehr kleines Elternschlafzimmer und dagegen riesige Kinderzimmer sowie erneut riesige Flurfläche.
Wie gesagt groß bauen macht die Raumplanung einfcher aber eben teuer. Vlt. nehmt ihr hier dann ein paar Ideen auf uns zeichnet neu oder anders, das wird schon.....oder morgen ist Samstag und Samstag ist Lotto-Tag 😀
Jens 1985 schrieb:
470 TEUR ohne Garage,Wo im Plan wird denn in diesem Sinne die Grenze zwischen Haus und Garage gesehen ?https://www.instagram.com/11antgmxde/
https://www.linkedin.com/company/bauen-jetzt/
J
Jens 198510.09.21 23:23Ich sage erstmal danke für die schnellen Antworten.
@pagoni 2020 Samstagslotto war schon vorher fest eingeplant , die Frage an dich/ euch wäre wie man am effektivsten die Flurfläche verkleinert. Klar kann man wieder von Anfang anfangen, aber gerne würde wir anhand von Ideen unseren vorhandenen Grundriss anpassen.
@pagoni 2020 Samstagslotto war schon vorher fest eingeplant , die Frage an dich/ euch wäre wie man am effektivsten die Flurfläche verkleinert. Klar kann man wieder von Anfang anfangen, aber gerne würde wir anhand von Ideen unseren vorhandenen Grundriss anpassen.
J
Jens 198510.09.21 23:44@ypg
Danke für dein ausführliches Feedback.
Den Lageplan habe ich soeben schell vom Handy hochgeladen. Ich hoffe du erkennst etwas. Zu deinen Fragen gerne meine Antworten.
Aber gezeichnet sind gute 225qm mit der Option zum Dachgeschossausbau?
Was sollen denn im DG noch für Räume hin?
225 gilt es zu optimieren ! Hintergrund unser Überlegungen ist, dass wir zurzeit in einem Einfamilienhaus mit 150 m2 wohnen, und vom Gefühl alles voll steht. Mit Sachen die ich bevor wir Kinder hatten, nicht vorstellen können. Der Dachboden ist ebenso voll, gerne würde bzgl. Dachbodenausbau zunächst eine vollwertige Treppe ins Dachgeschoss ausführen. Ich liebäugele mit einer Selbständigkeit und überlege hier unabhängig von Lager ggf. Einen abgetrennten Arbeitsbereich zu schaffen.
Kleiner bauen. Effektiver bauen.
Wo oder an welchen Stellen/Bereichen würdest du effektiver bauen ?
Die Frage, die sich stellt: weiß der GU von Eurem Konstrukt? Hat er die ganzen Finessen mit in der Kalku drin oder hat er Euch nur eine Hochrechnung der Qm mitgeteilt?
470000 ist auch in Niedersachsen ein Kampfpreis, wenn noch Teilklinker und ein ausbaufähiger Dachstuhl bedacht werden müssen.
Die Aussage beruht auf 2 konkreten Gesprächen, da Kosten wie oben beschrieben über unseren Limit, bat ich die GU um Vorschläge wie in ein Preisbereich von 400.000 Euro kommen können. Die Gegenentwürfe haben mit unseren Ideen jedoch nichts mehr überein
Um ins WZ oder Küche zu kommen, muss man erst zum Ende des Hauses gehen, um dann wieder einzubiegen.
Würdest du eine zusätzliche Tür vom Flur anordnen ?
Garderobe sehe ich nicht
Durchgangszimmer HAR zum Flur soll als Garderobe genutzt werden.

Danke für dein ausführliches Feedback.
Den Lageplan habe ich soeben schell vom Handy hochgeladen. Ich hoffe du erkennst etwas. Zu deinen Fragen gerne meine Antworten.
Aber gezeichnet sind gute 225qm mit der Option zum Dachgeschossausbau?
Was sollen denn im DG noch für Räume hin?
225 gilt es zu optimieren ! Hintergrund unser Überlegungen ist, dass wir zurzeit in einem Einfamilienhaus mit 150 m2 wohnen, und vom Gefühl alles voll steht. Mit Sachen die ich bevor wir Kinder hatten, nicht vorstellen können. Der Dachboden ist ebenso voll, gerne würde bzgl. Dachbodenausbau zunächst eine vollwertige Treppe ins Dachgeschoss ausführen. Ich liebäugele mit einer Selbständigkeit und überlege hier unabhängig von Lager ggf. Einen abgetrennten Arbeitsbereich zu schaffen.
Kleiner bauen. Effektiver bauen.
Wo oder an welchen Stellen/Bereichen würdest du effektiver bauen ?
Die Frage, die sich stellt: weiß der GU von Eurem Konstrukt? Hat er die ganzen Finessen mit in der Kalku drin oder hat er Euch nur eine Hochrechnung der Qm mitgeteilt?
470000 ist auch in Niedersachsen ein Kampfpreis, wenn noch Teilklinker und ein ausbaufähiger Dachstuhl bedacht werden müssen.
Die Aussage beruht auf 2 konkreten Gesprächen, da Kosten wie oben beschrieben über unseren Limit, bat ich die GU um Vorschläge wie in ein Preisbereich von 400.000 Euro kommen können. Die Gegenentwürfe haben mit unseren Ideen jedoch nichts mehr überein
Um ins WZ oder Küche zu kommen, muss man erst zum Ende des Hauses gehen, um dann wieder einzubiegen.
Würdest du eine zusätzliche Tür vom Flur anordnen ?
Garderobe sehe ich nicht
Durchgangszimmer HAR zum Flur soll als Garderobe genutzt werden.
Ähnliche Themen