ᐅ Einfamilienhaus für 4+ Personen: sagt uns eure Meinung! :)
Erstellt am: 11.08.19 06:18
C
Christian-OC
Christian-O11.08.19 06:18Was ist die wichtigste/grundlegende Frage zum Grundriss?
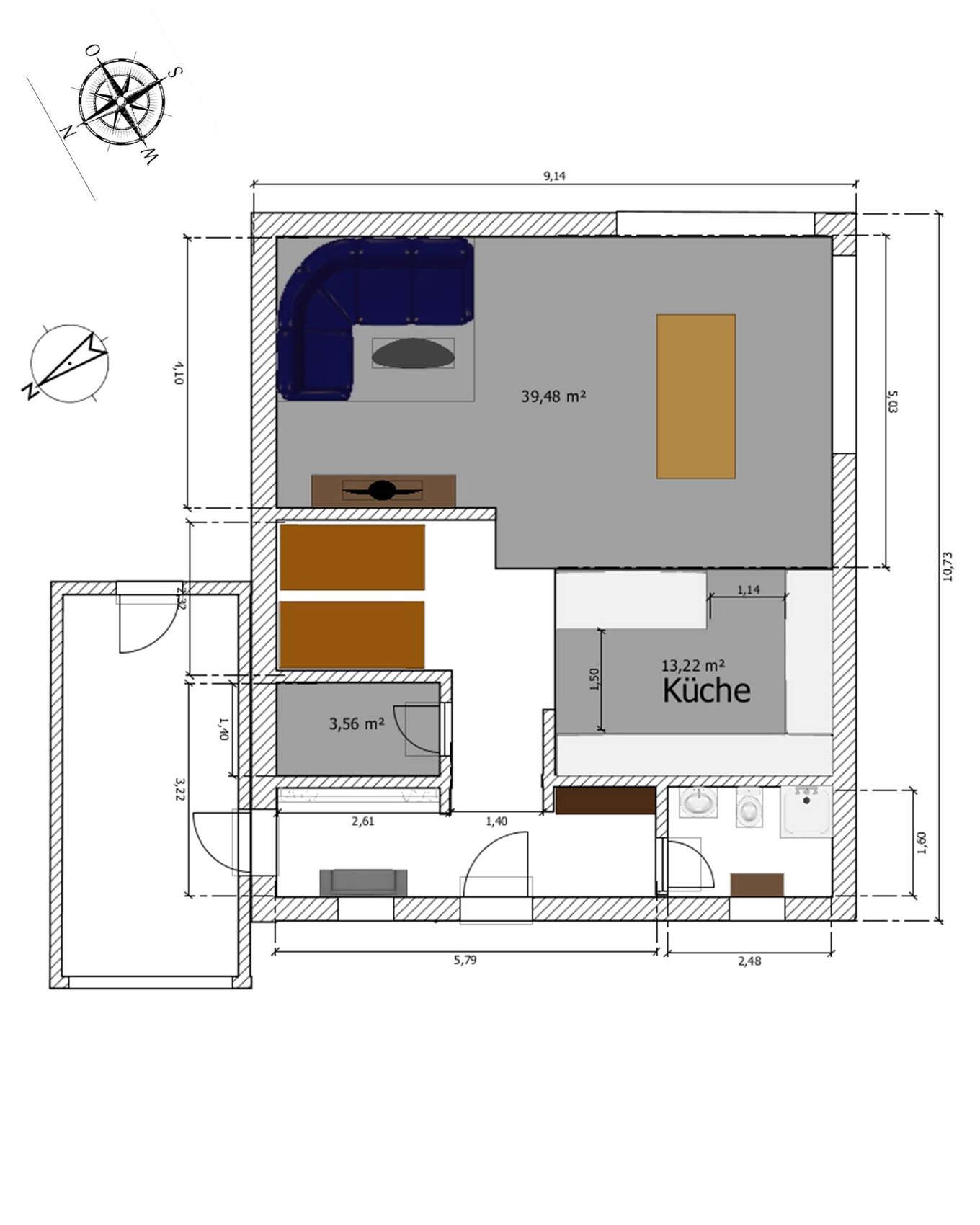
1) Wie findet ihr das EG und dessen Ausrichtung bzgl. Garten und Terrasse?
2) Küche und TV-Bereich tauschen, ja oder nein? Aktuell TV- und Essbereich zum Garten / Schwarzwald und Suedostseite ausgerichtet, Küche an der Suedwestseite.
3) Ideen für eine passende Treppe? Die Optik ist wichtig, da die Treppe teil des offenen Wohnraums ist.
Bebauungsplan/Einschränkungen
Größe des Grundstücks 490 qm
Hang: nein, Grundstück ist eben
Baufenster: 9,50 m x 14,00 m
Randbebauung: nur Garage und Carport
Anzahl Stellplatz: 3
Geschossigkeit: 2 Vollgeschosse
Dachform: frei (geplant Walmdach)
Stilrichtung: frei, geplant modern / Stadtvilla / mediterran
Ausrichtung: Terrasse / Garten Suedosten und Süden. Nach hinten Blick zum Schwarzwald.
Anforderungen der Bauherren
Stilrichtung, Dachform, Gebäudetyp: Walmdach
Keller, Geschosse: Voll unterkellert, 2 Vollgeschosse
Anzahl der Personen, 4 (2 EW, 2 Kinder)
Raumbedarf: im EG grosser Wohn-/Essbereich, OG 3 Schlafzimmer
Büro: ja für Homeoffice
Schlafgäste pro Jahr: 5-6 mal Gäste (einzelne Personen / Familien
offene Architektur
moderne Bauweise
offene Küche, Kochinsel
Anzahl Essplätze: 8-10
Kamin: nein
Balkon, Dachterrasse: nein, grosse EG-Terrasse
Garage, Carport: Garage zur Nutzung für Fahrräder, Kinderwagen, …, Carport für Autos
Hausentwurf
Von wem stammt die Planung: von uns selbst
Was gefällt besonders? Warum? Offener Wohnraum. Praktisches EG.
Was gefällt nicht? Warum? Wir sind uns mit der Treppengestaltung unschluessig.
Preisschätzung lt Architekt/Planer: EUR 600.000 (schlüsselfertig inkl. Baunebenkosten, Außenanlage, Garage)
favorisierte Heiztechnik: Fußbodenheizung oder Luft-Wasser-Wärmepumpe
Wenn Ihr verzichten müsst, auf welche Details/Ausbauten
-könnt Ihr verzichten: Carport, Dusche im EG
-könnt Ihr nicht verzichten: Glastüren im Wohnzimmer
Warum ist der Entwurf so geworden, wie er jetzt ist? ZB
Standardentwurf vom Planer? Der Plan stammt bisher aus unserer Feder.




1) Wie findet ihr das EG und dessen Ausrichtung bzgl. Garten und Terrasse?
2) Küche und TV-Bereich tauschen, ja oder nein? Aktuell TV- und Essbereich zum Garten / Schwarzwald und Suedostseite ausgerichtet, Küche an der Suedwestseite.
3) Ideen für eine passende Treppe? Die Optik ist wichtig, da die Treppe teil des offenen Wohnraums ist.
Bebauungsplan/Einschränkungen
Größe des Grundstücks 490 qm
Hang: nein, Grundstück ist eben
Baufenster: 9,50 m x 14,00 m
Randbebauung: nur Garage und Carport
Anzahl Stellplatz: 3
Geschossigkeit: 2 Vollgeschosse
Dachform: frei (geplant Walmdach)
Stilrichtung: frei, geplant modern / Stadtvilla / mediterran
Ausrichtung: Terrasse / Garten Suedosten und Süden. Nach hinten Blick zum Schwarzwald.
Anforderungen der Bauherren
Stilrichtung, Dachform, Gebäudetyp: Walmdach
Keller, Geschosse: Voll unterkellert, 2 Vollgeschosse
Anzahl der Personen, 4 (2 EW, 2 Kinder)
Raumbedarf: im EG grosser Wohn-/Essbereich, OG 3 Schlafzimmer
Büro: ja für Homeoffice
Schlafgäste pro Jahr: 5-6 mal Gäste (einzelne Personen / Familien
offene Architektur
moderne Bauweise
offene Küche, Kochinsel
Anzahl Essplätze: 8-10
Kamin: nein
Balkon, Dachterrasse: nein, grosse EG-Terrasse
Garage, Carport: Garage zur Nutzung für Fahrräder, Kinderwagen, …, Carport für Autos
Hausentwurf
Von wem stammt die Planung: von uns selbst
Was gefällt besonders? Warum? Offener Wohnraum. Praktisches EG.
Was gefällt nicht? Warum? Wir sind uns mit der Treppengestaltung unschluessig.
Preisschätzung lt Architekt/Planer: EUR 600.000 (schlüsselfertig inkl. Baunebenkosten, Außenanlage, Garage)
favorisierte Heiztechnik: Fußbodenheizung oder Luft-Wasser-Wärmepumpe
Wenn Ihr verzichten müsst, auf welche Details/Ausbauten
-könnt Ihr verzichten: Carport, Dusche im EG
-könnt Ihr nicht verzichten: Glastüren im Wohnzimmer
Warum ist der Entwurf so geworden, wie er jetzt ist? ZB
Standardentwurf vom Planer? Der Plan stammt bisher aus unserer Feder.
Ich sehe jetzt nicht viel was falsch ist, ich selbst würde den Abstellraum an die Küche setzen und das Gäste-WC Links zur Treppe, auch wenn das Abwasser getrennt würde, so hast in der Küche mehr davon.
Im og geht das Schlafzimmer ohne Kleiderschrank deutlich besser. Vielleicht sogar die Räume tauschen damit die Kinder mehr Sonne haben.
Im og geht das Schlafzimmer ohne Kleiderschrank deutlich besser. Vielleicht sogar die Räume tauschen damit die Kinder mehr Sonne haben.
Was ist schon falsch?!
Falsch könnte es sein, dass tragende Wände nicht berücksichtigt und somit erhöhte Planungskosten eingebaut wurden.
Falsch könnte auch der Flur im EG sein, der als Querriegel kaum Wohlfühleffekt noch fürs Ankommen einer Familie so richtig zu gebrauchen ist. Es ist halt ein Schlauch, der dafür sorgt, dass man zur Garage eine Tür hat, die umständlicher zu bedienen ist als 3 Meter weiter durch die Haustür zu gehen.
Im Keller müsste das Büro den Lichtschacht für den zweiten Rettungsweg bekommen. Wie soll denn der Schacht im Gästezimmer aussehen?
Für mich wäre es Perlen vor die Säue werfen, wenn man die beste Ecke des Hauses (West) mit der Toilette möbliert*
Im OG Aufenthaltsräume dafür eine unattraktivere Ausrichtung bekommt.
Das Schlafzimmer halte ich für verbaut.
*das wäre für mich Grund für eine Neuplanung.
Falsch könnte es sein, dass tragende Wände nicht berücksichtigt und somit erhöhte Planungskosten eingebaut wurden.
Falsch könnte auch der Flur im EG sein, der als Querriegel kaum Wohlfühleffekt noch fürs Ankommen einer Familie so richtig zu gebrauchen ist. Es ist halt ein Schlauch, der dafür sorgt, dass man zur Garage eine Tür hat, die umständlicher zu bedienen ist als 3 Meter weiter durch die Haustür zu gehen.
Im Keller müsste das Büro den Lichtschacht für den zweiten Rettungsweg bekommen. Wie soll denn der Schacht im Gästezimmer aussehen?
Für mich wäre es Perlen vor die Säue werfen, wenn man die beste Ecke des Hauses (West) mit der Toilette möbliert*
Im OG Aufenthaltsräume dafür eine unattraktivere Ausrichtung bekommt.
Das Schlafzimmer halte ich für verbaut.
*das wäre für mich Grund für eine Neuplanung.
C
Christian-O11.08.19 19:03ypg schrieb:
Was ist schon falsch?!
Falsch könnte es sein, dass tragende Wände nicht berücksichtigt und somit erhöhte Planungskosten eingebaut wurden.
Falsch könnte auch der Flur im EG sein, der als Querriegel kaum Wohlfühleffekt noch fürs Ankommen einer Familie so richtig zu gebrauchen ist. Es ist halt ein Schlauch, der dafür sorgt, dass man zur Garage eine Tür hat, die umständlicher zu bedienen ist als 3 Meter weiter durch die Haustür zu gehen.
Im Keller müsste das Büro den Lichtschacht für den zweiten Rettungsweg bekommen. Wie soll denn der Schacht im Gästezimmer aussehen?
Für mich wäre es Perlen vor die Säue werfen, wenn man die beste Ecke des Hauses (West) mit der Toilette möbliert*
Im OG Aufenthaltsräume dafür eine unattraktivere Ausrichtung bekommt.
Das Schlafzimmer halte ich für verbaut.
*das wäre für mich Grund für eine Neuplanung.Hallo Yvonne, vielen Dank für deine ausfuehrliche Rückmeldung. Wollten wir keine Kritik, würden wir unsere Planung hier nicht veroeffentlichen.
Mir ist deine Antwort zum Bad im EG nicht ganz klar. Ja, das ist die SW-Seite des Hauses. Aber diese Ecke grenzt an den Parkplatz, d.h. sodass das aus meiner Sicht nicht die beste Ecke des Hauses ist. Wie würdest du das EG (insbesondere Esszimmer, Küche, TV-Bereich) auf Basis unseres Grundstücks ausrichten?
"Im OG Aufenthaltsräume dafür eine unattraktivere Ausrichtung bekommt." --> Was meinst du damit?
Vielen Dank und viele Grüße.
C
Christian-O11.08.19 19:04hanse987 schrieb:
Wenn die Türe in die Garage so rein kommt, dann hat man im Auto gleich mal ein paar neue Ecken.Vielen Dank für die Rückmeldung. Die Garage ist als Abstellgarage für Fahrräder, Kinderwagen, etc. gedacht. Von daher ist das mit den Schrammen nicht so tragisch Ansonsten hast du Natürlich vollkommen recht.
Ähnliche Themen