Hausbau - Ratgeber
Bauherrenhilfe
- Bauherrenhilfe vor Vertragsabschluss
-- Warum einen unabhängigen Baubetreuer?
-- Vertragsgrundlagen
-- Bausumme
-- Zahlungsplan zur Kostenkontrolle
-- Pflichten des Bauherren vor Vertragsabschluss
-- Unterlagen beim Hausbau vor Vertragsabschluss
- Bauherrenhilfe nach Vertragsabschluss
-- Bauantrag bei Behörden
-- Bau-Genehmigungsverfahren bei Baubehörden
-- Bauspezifische Versicherungen
-- Bauzeitenplan
-- Baubeginn - die Letzten Pflichten der Bauherrschaft
- Bauherrenhilfe während der Bauzeit
- Gewährleistungsansprüche
- Bauabnahme
Baufinanzierung
- Baufinanzierung - Allgemeine Fragen
- Kreditarten
- Kredit-Konditionen
- Bausparen
- Staatliche Förderungen
- Verkehrswert
- Haushaltsrechnung und Bonität
Hausbau Planung
- Haustypen
- Hausbau Vorbereitungsarbeiten
- Das Baugrundstück
- Baugrund beim Hausbau
- Baurecht
- Gebäudeschutz
- Erdarbeiten und Wasserhaltung
- Stützmauern
- Einfriedung
- Untergeschoss
- Kanalisation
- Tragende Elemente
- Nichttragende Innenwände
- Fundation / Fundament
- Deckenkonstruktionen
- Dächer
- Kaminanlagen
- Treppen Rampen Leitern
- Dachbeläge und Spengler
- Fenster
- Sonnen und Wetterschutz
- Aussenputze
- Einbauten, Küchen, Türen
- Bodenbeläge und Unterlagsböden
- Parkett
- Gips, Wand, Decke
Haustechnik und Energie
- Heiztechnik
- Lüftung und Klimatechnik
- Sanitärtechnik
- Elektrotechnik
- Erneuerbare Energie
Whirlpools / Jacuzzi
Hausbau Magazin
- Baufinanzierung trotz Krise?
- Das Blockhaus
- Moderne Dämmstoffe im Vergleich
- Erker Vor- und Nachteile
- Glasflächen beim Hausbau
- Günstig ein Haus Bauen
- Mediterraner Hausbaustil
- Mehrgenerationenhaus
- Moderne Architektur
- Gartengestaltung leicht gemacht
- Traditioneller Ziegelbau
- Villa als höchster Traum
- Im Eigenheim Ruhestand geniessen
- Altbau sanieren
- Kauf einer Holzgarage
- Immobilienmakler
- Arbeitshandschuhe für den Winter
- Zuhause verschönern
- Outdoor-Plissees
- Schlafzimmer planen
- Terrassenüberdachung
- Wohngebäudeversicherung
- Zaunarten und Eigenschaften
- Hauseingang gestalten
- Der perfekte Grundriss
- Sparsamer heizen im Altbau
- Einfamilienhaus smart finanzieren
- Planung einer PV-Anlage
- Neues Haus
- Immobilienfinanzierung
- Installation einer Photovoltaikanlage
- Asbest erkennen und entfernen
- Gartenpflege im Frühling – worauf achten
- Sauna im Fokus - Wellness zuhause
- Erfolgreich vermieten
- Die perfekte Winterbekleidung
- Das Niedrigenergiehaus
- Der April und seine Stürme
- Architektonische Vielfalt
- Ökologisch und nachhaltig bauen
- Das perfekte Schlafzimmer
- Nachhaltige Energieversorgung
- Zukunftsorientiert bauen
- Nachhaltigkeit beim Hausbau
- Tiny Houses
- Wärmepumpen als nachhaltige Heizvariante
- Maßgeschneiderten Kleiderschrank
- Der richtige Baukredit
- Ratgeber für erfolgreichen Hausbau
- Haus als Altersvorsorge
Do-it-yourself Anleitungen
- Verlegeanleitung für Bodenbeläge und Parkett
- Bodenbeläge und Parkett reinigen und pflegen
- Malerarbeiten am Haus
- Garten Tipps
- Umzug und Reinigung

ᐅ Grundriss Einfamilienhaus 2 Geschosse mit Keller ca. 190m², Grundstück ca. 440m²

Erstellt am: 11.10.21 12:39
T
Tortuga123
T
Tortuga123
11.10.21 12:39
Hallo zusammen,

wir sind noch an der Planung unseres Einfamilienhauses und haben mal ein bisschen mit einem Freeware-Grundrissprogramm herumgespielt. Wir würden gerne eure Einschätzung haben.

Aber zuerst der Fragebogen:

Bebauungsplan/Einschränkungen
Größe des Grundstücks: 440m²
Hang: ca. 2m auf 20m nach Osten und ca. 2m auf 20m nach Süden
Grundflächenzahl: kein Bebauungsplan vorhanden, Bebauung nach §34 Baugesetzbuch: also Grundflächenzahl 0,4
Geschossflächenzahl: s. o.: 1,2
Baufenster, Baulinie und -grenze: Norden (zur Straße): ca. 2m, Westen: 3m, Süden: 3m, Osten: an grenzbebautem Nachbarhaus 6m, sonst 3m
Randbebauung: ja, Nachbar östlich
Anzahl Stellplatz: 2 Garage und 2 vor Garage für Gäste
Geschossigkeit: 2 Vollgeschosse
Dachform: Walmdach (es ist aber alles erlaubt)
Stilrichtung: modern (es ist aber alles erlaubt)
Ausrichtung: Garten nach Süden
Maximale Höhen/Begrenzungen: wie Nachbarbebauung, hoch genug
weitere Vorgaben: keine
Straße: sehr eng, Sackgasse

Anforderungen der Bauherren
Stilrichtung, Dachform, Gebäudetyp: Stadtvilla mit Walmdach oder Satteldach mit mind. 2,00m Kniestock
Keller, Geschosse: Keller, EG und OG
Anzahl der Personen, Alter: noch 2, geplant 4
Raumbedarf im EG, OG: ca. 60-70 m²
Büro: Familiennutzung oder Homeoffice? beides, aber überwiegend privat
Schlafgäste pro Jahr: ein paar, in ein paar Jahren evtl. auch längere Aufenthalte
offene oder geschlossene Architektur: offen
konservativ oder moderne Bauweise: modern
offene Küche, Kochinsel: offene Küche mit Theke oder Insel
Anzahl Essplätze: 4-6
Kamin: nein
Musik/Stereowand: normale TV Wand
Balkon, Dachterrasse: nein
Garage, Carport: Doppelgarage mit einem Tor
Nutzgarten, Treibhaus: normal
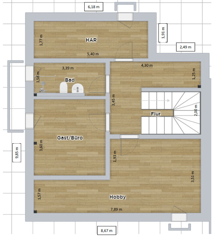
weitere Wünsche/Besonderheiten/Tagesablauf, gern auch Begründungen, warum dieses oder das nicht sein soll: Gästezimmer und Gästebad im Keller, Wäscheraum im OG

Hausentwurf
Von wem stammt die Planung: DIY
Was gefällt besonders? Warum?: OG Bad und Schlafzimmer in den Garten (Nähe zum Waldrand), separater Eingangsbereich mit Garderobe, damit Katzen nicht zur Haustür rauslaufen können, Wäscheraum im OG
Was gefällt nicht? Warum?: Bäder liegen nicht übereinander, dadurch Abflüsse im Wohnzimmer, aber das nehmen wir in Kauf
favorisierte Heiztechnik: Luft-Wasser-Wärmepumpe mit oder ohne Lüftungsanlage

Wenn Ihr verzichten müsst, auf welche Details/Ausbauten
-könnt Ihr verzichten: eigentlich nix 🙂

Warum ist der Entwurf so geworden, wie er jetzt ist? ZB
Unsere speziellen Wünsche haben wir aufskizziert und dann geguckt, dass sie in den umbauten Raum passen.
Was macht ihn in Euren Augen besonders gut oder schlecht? Ich hoffe, er ist komfortabel zum wohnen.

Was ist die wichtigste/grundlegende Frage zum Grundriss in 130 Zeichen zusammengefasst?
Wie findet ihr den Grundriss? Ich kann auch bei Fragen gerne noch erklären, was wir uns bei den speziellen Sachen gedacht haben.
Würden die Abflüsse im Wohnzimmer sehr auffallen? Ich denke mir, die könnte man ja evtl mit Möbeln verdecken (evtl. DIY). Diese schwarzen Quadrate in den Zeichnungen sollen die Abflüsse bzw. Entlüftungen sein.

Ich würde mit dem Entwurf zu verschiedenen GU gehen. Architekt kommt aus verschiedenen Gründen nicht in Frage. Bitte keine Grundsatzdiskussionen, warum wir uns gegen Architekt und für GU entschieden haben.

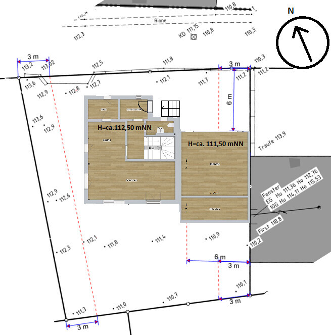
Durch die Grenzbebauung des Nachbarn und die Aussage vom Bauamt, dass wir 6m von der Hauswand mit unserem Haus wegbleiben müssen, wollen wir die Garage an seine Hauswand setzen (mit entsprechenden Fundamenten natürlich, um keinen Druck auf seine Kellerwand auszuüben). Die Garage sitzt ca. 1m tiefer als das Haus, damit die Steigung von der Straße zur Garage nicht so steil ist. Deshalb habe ich auch diese Ecke ins EG und KG gemacht, damit man von der Haustür die paar Stufen zur Garage runter gehen kann. Evtl kann man ja auch bei der Treppe einen Durchgang zur Garage machen, wenn das von den Höhen her passt. Die Treppe soll eine Podesttreppe sein, das Programm kann das aber nicht darstellen. Von der Haustür zur Straße hin würde man ohne Stufen auskommen, da würde eine Rampe denke ich reichen.

Im Keller soll im HAR und Hobbyraum ein Lichtschacht sein und im Gästezimmer/Büro und Bad ein Lichthof. Gästezimmer und Büro kann man zusammenfassen, da muss nur ein Bett, ein schrank und ein schreibtisch rein.

Wir freuen uns auf eure Anregungen!

Viel Glück Tortuga

Grundriss eines Hauses mit Küche, Wohnen, Speisekammer, Garderobe, WC, Flur, Garage und Werken.


Grundriss eines Wohnhauses: Küche, Wohnen, SPK, Garderobe, Flur, WC, mit Maßen.


Lageplan eines Grundstücks mit Gebäudefläche, Höhenpunkten und roten Messlinien.


Grundriss eines Hauses mit Innenaufteilung, Treppe, Messlinien und Nordpfeil


Grundriss eines Hauses: Flur, Treppenhaus, Hobby, Gast/Büro, Bad und HAR.


Grundriss eines Hauses mit Schlafzimmer, zwei Kinderzimmern, Bad, Wäsche und Flur
Y
ypg
11.10.21 13:09
Wo ist denn der massive und doch nicht gerade unbedeutende Hang im Entwurf dargestellt?
Wieviel Budeget ist fürs Haus, fürs Nebengebäude und für die Hangbefestigungen eingeplant bzw. verfügbar?
H
Hausbautraum20
11.10.21 13:46
Ich finde das Eck im Hobbyraum seltsam.
Was ist der Grund dafür?
Würde das dem schönen Raum mit Licht zuschlagen, also Arbeiten/Büro.

Ansonsten gefällt es mir als Laie erstmal gut.
T
Tortuga123
11.10.21 15:13
ypg schrieb:

Wo ist denn der massive und doch nicht gerade unbedeutende Hang im Entwurf dargestellt?
Wieviel Budeget ist fürs Haus, fürs Nebengebäude und für die Hangbefestigungen eingeplant bzw. verfügbar?
Hi @ypg: ich habe den leeren Lageplan mit den Höhenpunkten angefügt. Also so stark ist der Hang eigentlich gar nicht. Nur die Garage muss halt wegen dem Hang ca. 1m tiefer als das Haus. Deswegen (und auch wegen den anderen Ideen) auch der Keller, denn bei Bau mit Bodenplatte müssten wir sonst an der Garagenseite die Abgrabung für die Garage irgendwie abfangen.
Der Hang knickt in der Mitte des Grundstücks, also ca. an der rechten Hausseite stärker ab. Alles weiter links ist eigentlich gar nicht so viel vom Hang her. Die Gartengestaltung, auch mit evtl. L-Steinen an der südlichen Grenze kommt dann auch so nach und nach.

Ich füge nachher mal noch ein Bild an, dann kann man sich das auch nochmal bildlich vor Augen führen.

Ansonsten haben wir aber auch in meinem anderen Post schon mal über Lage und Höhe von Haus und Garage gesprochen (weiß aber nicht, wie ich den Link hier reinkriege).

Budget ist fürs Haus bis 400.000, erste Kostenschätzung von einem GU ist sogar darunter. Garage würden wir erstmal nach hinten stellen und evtl später machen. Die soll erstmal nur mit geplant und genehmigt werden. Nebenkosten sind so ca. 50.000€ geplant.
Hausbautraum20 schrieb:

Ich finde das Eck im Hobbyraum seltsam.
Was ist der Grund dafür?
Würde das dem schönen Raum mit Licht zuschlagen, also Arbeiten/Büro.

Ansonsten gefällt es mir als Laie erstmal gut.
Hi @Hausbautraum20: mein Partner möchte gerne so viel wie möglich Hobbyraum und er braucht nach eigener Aussage keine Fenster (wird sein Gaming Room mit privatem "Retro-Museum") :-D Diese Ecke da konnte ich irgendwie wegen der Zimmeranordnung nicht anders machen und die ist auch nicht schlimm, das wäre dann seine Bastelecke, diese Arbeiten führt er zurzeit auch schon unter Tageslichtleuchte mit Lupe usw. durch und er kommt damit gut klar (wir wohnen zurzeit Souterrain und das Bastelzimmer hat auch kein richtiges Fenster...). Alternativ würde er vllt auch so eine Automatenecke da hin machen..... Die meisten seiner Ideen beschränken sich auf dieses Zimmer, alles andere durfte ich machen, wie ich wollte :-D
H
Hausbautraum20
11.10.21 15:36
Tortuga123 schrieb:

Budget ist fürs Haus bis 400.000, erste Kostenschätzung von einem GU ist sogar darunter. Garage würden wir erstmal nach hinten stellen und evtl später machen. Die soll erstmal nur mit geplant und genehmigt werden. Nebenkosten sind so ca. 50.000€ geplant.

Okay, dann baut ihr entweder in einer sehr günstigen Gegend oder die erste Einschätzung ist sehr ungenau.
Wir liegen selbst mit 160qm ohne zweites Bad und sehr viel Eigenleistung darüber.

Ein Familienmitglied baut aktuell 160qm schlüsselfertig mit Keller für 500k. Dazu kommen 100k Außenanlagen für Hangabsicherung, Lichthof, Terrasse, Doppelgarage und Hofeinfahrt.

Ist allerdings beides in Bayern.
T
Tortuga123
11.10.21 17:53
@Hausbautraum20: Das Grundstück ist in Neuwied (nördliches RLP).

Man muss dazu sagen, dass wir bestimmt später bei 400k nur fürs Haus ohne Außenanlagen, Erdarbeiten und Garage liegen. Das eine Angebot vom GU (mit dem hatten wir am Wochenende einen Termin) rechnet hat uns für genau die Kubikmeter umbautem Raum inkl. Wohnkeller einen Festpreis von 346.000€ genannt. Schlüsselfertig. Da kommen dann natürlich noch unsere Erdarbeiten obendrauf. Beim Keller macht die Firma die Abdichtung und der TÜV nimmts ab und dann macht unser Erdbauer die Noppenbahn, die Drainage, die Kanalanschlüsse usw.
Der Preis von ihm ist mit Fliesen und Sanitärobjekten im Bad OG und im WC EG. Das heißt, das Bad KG wurde natürlich noch mit 5k oben drauf kommen. Elektrik kommt bestimmt auch noch mehr, vllt 5k. Fliesen und streichen im restlichen Haus bestimmt auch 15-20k. Dann hier noch ein extra, da noch ein extra usw usw. Also das läppert sich alles. Obwohl ich finde schon, dass der eine GU eigentlich laut der Bauleistungsbeschreibung schon einen hohen Standard hat.

Gemauert wird das Haus mit ytong komplett. Im Boden ist laut Gutachten kein Wasser. Ich habe schon gelesen bei ytong im Kellerbereich muss genau geguckt werden, dass alles dicht ist, aber ich vertraue da mal auf den Hausbauer, den TÜV und unseren Erdbauer. Und wer weiß, ob wir überhaupt 20 Jahre da drin wohnen. Wir haben evtl noch andere Sachen in Zukunft vor...

Wir haben aber auch noch ein paar andere Termine mit anderen GUs in den nächsten paar Wochen.
ytongdoppelgaragekellerhanggästezimmerhaustürabflüsseentwurfhobbyraumbebauungsplan